中国铁建西派云间售楼处电话☎:400-998-9694中国铁建西派云间售楼处电话☎:400-998-9694中国铁建西派云间推出两款主力户型,主打四房两厅两卫,配置高端门厅、无柱飘窗及一梯一户,打造舒适宜居的豪宅体验。
中国铁建西派云间
售楼处电话☎:400-998-9694
如有问题欢迎来电咨询,来电即可享受买房优惠!
预约来电尊享购房优惠,可预约案场内部销售人员,专业一对一热情服务,让您用专业眼光去买房。
中国铁建西派云间售楼处电话☎:400-998-9694
中国铁建西派云间售楼处电话☎:400-998-9694
目前上海整个外环最高规格的壹号作品
中国铁建西派云间!
将推出建面约125㎡-188㎡小高层
建面约153㎡-158㎡4层叠墅
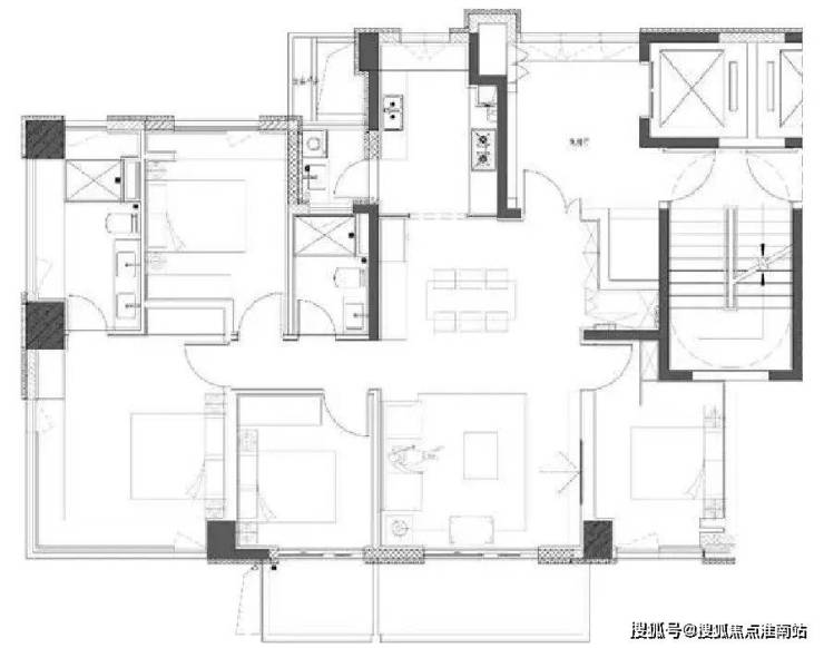
目前两大主力产品细节曝光:
建面约125㎡4房2卫
中国铁建西派云间售楼处电话☎:400-998-9694

新政后松江板块首个四开间朝南三阳台户型,采光通风与空间延展兼备;
一梯一户设计,独享梯厅,集收纳、私密、仪式感于一体。
是新规后松江首个3米层高产品!
入户门,采用高端定制铸铝装甲门。而且本户型是双玄关收纳,满足日常收纳需求,实用性拉满。
南次卧拥有独立阳台,且此阳台隔断墙为非承重墙,可进行灵活改造。
可以做到3房或者4房的随意切换,保证实用性的同时,更具灵活性。
中国铁建西派云间售楼处电话☎:400-998-9694
建面约148㎡4房2卫

中国铁建西派云间售楼处电话☎:400-998-9694
打造四房两厅两卫,四开间朝南,将阳光与舒适最大化引入室内 。
三阳台分区功能:创新三阳台设计,各司其职,解决生活痛点,提升品质。
270 度无柱景观飘窗(边套专属):大幅拓展空间与视野,采光通透感拉满。
一梯一户配置:私享阳光梯厅,增加隐形使用面积,兼具收纳、私密性与仪式感,给予豪宅级居住体验。
如果将次卧与客厅打通, 形成了约34方的超大尺度会客厅,超大窗墙比让室内更明亮,采光、视野超棒。
餐厅面宽与客厅同宽,可摆放6人位的圆形餐桌,轻松容纳全家人用餐。
中国铁建西派云间售楼处电话☎:400-998-9694

中国铁建西派云间售楼处电话☎:400-998-9694
外环TOP级地段
交通、配套、生态、教育...均是豪宅水准!
我们实在一点说,外部配套中大家更看重的无非就是交通、商业、教育以及绿化公园。而这 些配套, 中国铁建西派云间的表现真的堪比市区。
中国铁建西派云间售楼处电话☎:400-998-9694 我们先来看步行范围内的配套:

中国铁建西派云间售楼处电话☎:400-998-9694
中国铁建·西派云间距离松江万达仅约850米,旁边还有 五龙商业广场 、 三迪曼哈顿 、 富悦财富中心 、 凯悦酒店 、 中展马利来 等众多商业资源。
目前已有的商业规模就已达约60万方, 亲子、购物、聚餐、看电影...日常需求统统能在步行范围内得到满足,这个成熟度真的堪比

中国铁建西派云间售楼处电话☎:400-998-9694

中国铁建西派云间售楼处电话☎:400-998-9694
实景实拍
教育上,项目约100米外一路之隔就是12年一贯制的上外云间学校。
软实力上,这所学校当初的建设 总投资约8亿元 ,是松江迄今为止投资总量更大、设计标准更高、设施配套更全的学校。
硬实力上,上外系的学校在松江几乎都是梯队内的标杆学校,实力之强有目共睹。

中国铁建西派云间售楼处电话☎:400-998-9694
除此之外,南侧不远处还有 赫贤双语学校 (原赫德双语学校) ,补充了国际教育需求。
(预售房屋不划分学区,项目周边学校等教育资源的介绍仅为提供相关信息参考,开发商不对项目交房后所属学区、学校做任何承诺,教育资源分配或学校/学区划分以及学校的具体招生规则等请以政府相关主管部门、教育机构公开的最新信息为准。)
中国铁建西派云间售楼处电话☎:400-998-9694 生态上:项目步行范围内就有一座五龙湖公园,约 16公顷的广阔面积,与约5.9公里的绿道长度相得益彰。
湖畔风光旖旎 ,很适合早上晨练,晚饭后散步,居住环境优美。

中国铁建西派云间售楼处电话☎:400-998-9694
最后,来重点聊一下交通:从项目出发,经T2电车直达9号线松江大学城站。
上车后,业主6站七宝、9站漕河泾,并且能轻松畅达徐家汇、打浦桥等浦西区域。
除此之外,1站就能换乘即将通车的12号线西延伸段,即可畅达莘庄、徐汇滨江、南京西路。

中国铁建西派云间售楼处电话☎:400-998-9694
除了轨交外,最值得一提的是项目的自驾:距离项目直线约900米的沪松快速路,预计2028年通车。

中国铁建西派云间售楼处电话☎:400-998-9694
这条快速路链接着通往市区的外 环 、 中环 以及 漕宝路快速路 ;通往虹桥以及闵行南部的 嘉 闵 高架 ;还有直插浦西腹地的烫金大动脉 延安高架 。
未来,沪松快速路+漕宝路快速路+中环/外环去往前滩、世博;
沪松快速路+外环+延安高架去静安寺、南京西路等浦西核心;
沪松快速路+嘉闵高架直通虹桥机场。
中国铁建西派云间售楼处电话☎:400-998-9694

也就是说,只需零星几个红绿灯,西派云间的业主就可以一脚油门直达浦西、浦东等大多数的核心CBD。
再加上已然成熟的顶级繁华和就连市区都不曾拥有的高端生态居住环境。
西派云间的地段和配套,就是外环TOP级的存在。

中国铁建西派云间售楼处电话☎:400-998-9694
TOP西派系鼎新序列
立派松江下一代里程碑作品
中国铁建西派云间售楼处电话☎:400-998-9694 关于中国铁建西派云间,有几个数据跟大家分享下:
中国铁建是全球最具实力、规模的特大型综合建设集团之一。2024年《财富》“世界500强企业”排名 第43位 ,连续 19年 跻身世界500强。
而中国铁建地产隶属世界500强企业— — 中国铁建股份有限公司,是国资委批准的16家以房地产为主业的央企之一。
截至2024年11月30日,在 48 个 国内城市和海外布局277个项目,实现了京津冀、长三角、珠三角等主要城市群的全面布局。
而“西派系” 是中国铁建地产TO P1 的产品系,可想其含金量。
中国铁建西派云间售楼处电话☎:400-998-9694 更是连续 6年 蝉联 “中国房地产产品品牌价值 TOP10” 。
大家可以想想,这样一家在全国甚至全球都极有影响力的房企,其TOP级的西派系就是一块金字招牌,代表着整个企业最高水准。
这也意味着中国铁建西派云间的产品力,对标的将是市区的高端豪宅。
具体的产品细节未透露太多,小胖君就已知的信息跟大家分享几点:
第一,纯粹的改善居住圈层。
项目总共有两种产品,建面约125㎡-188㎡小高层、建面约153㎡-158㎡4层叠墅。
中国铁建西派云间售楼处电话☎:400-998-9694 您知道这样的社区有多稀缺吗?
近10年,松江新城建面约120㎡以下的小户型供应占比超70%,几乎所有的小区都有百平米的小户型产品。
起步面 积段就是建面约125㎡以上的纯粹改善型小区,整个松江新城乃至整个上海西南片区,只有西派云间一盘。
与以小户型为主,主力吸引刚需客户的项目相比,纯粹改善型的社区才能给业主更好的居住体验,才能给孩子更好的居住环境,才能给家里老人更宜居的居住氛围。
这是社区定位上的不同,也是未来居住氛围上的不同。
中国铁建西派云间售楼处电话☎:400-998-9694 第二,惊喜户型独家爆料。
关于户型设计,目前还没有准确的户型图流出,但据小胖看房了解:
建面约125㎡4房设计,并且是多阳台、一梯一户的设计,私密性、实用性、附赠空间拉满。
更有建面约188㎡终极改善4房产品,这是松江新城未曾有过的尺度感。
还有西派在上海首次呈现西派墅作品,值得期待!
中国铁建西派云间售楼处电话☎:400-998-9694 第三,颠覆性的产品力。
中国铁建以远超市面标准的投入,于产品设计、选材营造等环节倾注心力,打造了一个匹配新城核芯地位的品质标杆。
整个项目有几个颠覆性的设计,跟大家分享下:
约2000㎡ 奢装会所。
小胖君统计了部分顶豪会所,感受一下,西派云间的会所真的是下足了血本。

中国铁建西派云间售楼处电话☎:400-998-9694
并且,整个会所从规格、颜值、用料都相当值得期待。

中国铁建西派云间售楼处电话☎:400-998-9694
松江首个社区水幕瀑布。
最近在顶豪市场出现了利用高低落差来打造社区景观的项目,例如徐汇滨江约19.5万/㎡的绿城项目;大宁预计要卖16万/㎡的中建项目。
这是顶豪的标配,是上海最前端的设计理念。而这,却出现在了西派云间的社区内。
这水幕瀑布景观,让不少千万级的豪宅都望尘莫及。

中国铁建西派云间售楼处电话☎:400-998-9694
中央车站。
项目颠覆了传统地库的冰冷印象,打造酒店式中央车站。
以「中央车站」概念打造枢纽式空间,连通会所与庭院,实现高效通行与私密守护的平衡。让地下空间也成为「可社交的星级场所」。
总结一下,从西派海上,到西派云间,从张江到G60科创走廊。这是中国铁建地产战略目光的前瞻性延伸,是深度融入国家战略、拥抱未来科创增长极的必然选择。
而在这个完美的置业热土之上,中国铁建地产匠造了颠覆性的产品力,拔升了整个上海外环的人居高度。
这可能是目前上海外环,最高水准的新房,不容错过!
最新购房政策来了!
一、调减住房限购政策
为更好满足居民改善性需求,促进宜居安居、职住平衡,《通知》明确进一步调减住房限购政策。一是符合条件居民家庭在外环外购房不限套数。对符合本市住房购买条件的居民家庭,包括本市户籍居民家庭、在本市连续缴纳社会保险或个人所得税满1年及以上的非本市户籍居民家庭,在外环外购买住房不限套数,包括新建商品住房和二手住房。二是成年单身人士按照居民家庭执行住房限购政策。
按照上述规定,沪籍居民家庭和沪籍成年单身人士,在外环外购买住房不限套数;在外环内限购2套住房。非沪籍居民家庭和非沪籍成年单身人士,自购房之日前在本市连续缴纳社会保险或个人所得税满1年及以上的,在外环外购买住房不限套数;自购房之日前在本市连续缴纳社会保险或个人所得税满3年及以上的,在外环内限购1套住房。
二、优化住房公积金政策
为加大公积金支持住房消费力度,《通知》规定优化住房公积金政策。一是提高个人住房公积金贷款额度。对缴存人购买二星级及以上新建绿色建筑住房的,住房公积金(含补充公积金)最高贷款额度上浮15%。首套最高贷款额度从160万元提高至184万元,多子女家庭首套上浮比例可叠加计算,从192万元提高至216万元;二套最高贷款额度从130万元提高至149.5万元。二是支持提取住房公积金支付购房首付款。对缴存人购买本市新建预售商品住房的,可以按规定申请提取本人及配偶的住房公积金支付购房首付款。三是支持住房公积金“又提又贷”。对缴存人提取住房公积金支付购房首付款的,不影响其住房公积金贷款额度计算。
三、优化调整商业性个人住房贷款利率定价机制
为减轻居民购房利息负担,《通知》明确优化个人住房信贷政策。银行业金融机构根据上海市市场利率定价自律机制要求和本机构经营状况、客户风险状况等因素,在利率定价机制安排方面不再区分首套住房和二套住房,合理确定每笔商业性个人住房贷款的具体利率水平。
关于住房贷款相关业务,可向经办银行具体咨询。
四、完善个人住房房产税政策
为衔接优化住房限购政策,《通知》规定对符合条件的非本市户籍居民家庭购买的第一套住房暂免征收房产税;购买的第二套及以上住房在合并计算家庭全部住房面积后,给予人均60平方米的免税面积扣除。由于个人住房房产税按年征收,因此2025年1月1日起符合条件的购房者可享受本条政策。
中国铁建西派云间
售楼处电话☎:400-998-9694
如有问题欢迎来电咨询,来电即可享受买房优惠!
预约来电尊享购房优惠,可预约案场内部销售人员,专业一对一热情服务,让您用专业眼光去买房。
中国铁建西派云间售楼处电话☎:400-998-9694
楼盘项目全面介绍,本电话为开发商提供线上预约售楼电话,楼盘项目全面介绍(包含楼盘简介,均价,房价,现房,期房,别墅,叠墅,大平层,价格,楼盘地址,户型图,交通规划,备案价,备案名,项目配套,样板间,开盘时间,认筹时间,楼盘详情,售楼处电话,最新消息,最新详情,周边配套,一房一价,最新进展等详情咨询)楼盘详情丨价格丨更多优惠丨机不可失丨欢迎致电丨诚邀品鉴!售楼处位置丨特价房丨工抵房丨剩余房源丨户型图丨最新消息丨免责声明:将文章内容综合来源于网络、只作分享,版权归原作者所有!!如有侵权,请联系我们,我们第一时间处理如有问题欢迎来电咨询,专业一对一热情服务,让您用专业眼光去买房。如果您想了解更多楼盘详情,欢迎提前预约拨打