国贸虹桥璟上 (售楼处) 首页 - 国贸虹桥璟上销售中心 - 环境 - 户型 - 价格 - 地址 - 楼盘详情 - 配套 - 电话 - 交房时间 - 配套 - 电话 - 交房时间
扫描到手机,新闻随时看
扫一扫,用手机看文章
更加方便分享给朋友
虹桥璟上售楼处电话:400-8878-824
虹桥璟上营销中心热线400-887-8824(官方预约看房热线)
17号线嘉松中路站直线约700米,2站天空之城,3站蟠龙,大虹桥品质人居新篇章「国贸·虹桥璟上」建面约89-129㎡3-4房户型,准现房总价约490万起,不管是话题性还是销量,它都是大虹桥,乃至全市500万级当红楼盘。实景准现房,优惠惊人!

虹桥璟上售楼处电话:400-8878-824
虹桥璟上营销中心热线400-887-8824(官方预约看房热线)

虹桥璟上售楼处电话:400-8878-824
虹桥璟上营销中心热线400-887-8824(官方预约看房热线)
「一房一表发布」
01.
基本信息
项目由两条天然水系穿流而过,形成了上海罕见的三座天然“岛屿社区”。那每座“岛屿”就能更亲近水系。想象一下,以后整个小区碧水环绕、绿茵延绵,水景与绿化景观自然融合,所造就的是“慢生活”生活方式!

国贸地产上海第一个“上系”作品双水系、三座天然“岛屿社区”
大虹桥赵巷,国贸地产在“原系”之上进行了全面升级,打造了上其在上海第一个“上系”作品。
罕见双自然水系!一横一纵2条水系将项目地块一分为三,形成三座天然“岛屿社区”,这在市面上非常少见。


而这种天赋对应的是更宜居、更舒适的滨水慢生活。
居住方式是无价的!这种临水、亲近自然的生活方式,能更好调节上海快节甚至996的生活状态。

项目外立面设计上,立面利用大面积玻璃+阳台落地窗+金属型材+层间装饰提升建筑整体感和精致度,顶层外挑飘板使得建筑立面体块清晰,层次丰富。

外立面大面采用浅色仿石多彩漆,浅灰色金属格栅,浅灰色玻璃,香槟色金属型材收边形成。楼体顶部也是运用了香槟色铝板以及香槟色的铝格栅。整体几何立面非常具有秩序感。

丰富的景观功能性!
据悉,沿滨河岸线布置功能场地,打造更多的水岸生活场景;东地块的东侧还会打造一个约3万方的水岸公园,公园北角还将修建篮球场;另外社区内部还将打造泛会所架空层,功能上更全面满足业主日常活动需要。


在沿河水岸,国贸打造沿河客厅,可以日常会客。难得的是,社区内部还配置四大主题八大架空层泛会所,用于儿童阅读、青年运动、老年康养等。
另外,项目营造出了多层次、多元的生活方式,这意味着你住在这里生活会更便捷,同时从孩童到老人,都能找到各自的乐土。

比如,第一层:小孩子下楼就是架空层,可以和小朋友共同成长。据悉项目设置了8大架空层,聚焦儿童体验、社交阅读、青年运动、老年康养的全龄段社区休闲空间需求。第二层:国贸地产还代建了一座约1.8万方的滨河市政公园,在公园北角还将修建篮球场,以后在家门口就能逛公园,也能挥汗如雨。

第三层:项目其中一个地块自带约1300㎡底商,另一个地块内有约1800㎡菜场,相比现在大部分纯住宅的街区,生活方便太多。

02.
推售信息
「国贸·赵巷项目」本次加推收官132套房源,两栋楼的位置非常好,被水系环绕,且非常接近地铁站!主力户型为建面约105㎡3房,以及建面约129㎡4房,均价56352元/㎡!
「四期户型楼栋落位图」

项目全套户型图如下:
【建筑面积约82㎡2+1房2厅1卫】

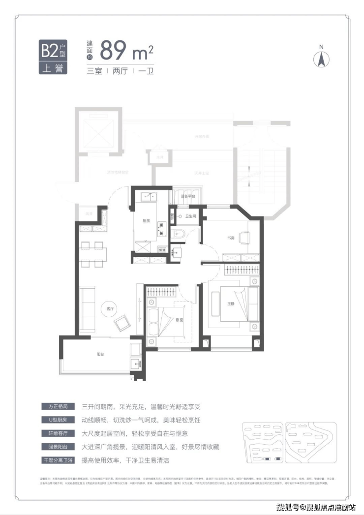
【建筑面积约89㎡3房2厅1卫】


【建筑面积约105㎡3房2厅2卫】

罕见宽厅设计:约95%的宽厅设计出现在120㎡以上户型中,而项目在约105㎡面积段就做了宽厅,非常难得,这个户型进入二手房市场将极具竞争力。
宽厅面宽约5.5米,3.5开间面宽共约11.5米,再加上约8㎡的阳台,使得整个家庭的公共区域尺度感十足、功能也更加灵活多变。
全屋六处飘窗:常规户型一般全卧飘窗,一共3处。但项目竟然有6处飘窗,3个卧室和主卫、次卫都设有飘窗,拓展空间和采光效果优秀。
套房式主卧:主卧的面宽和进深都很充裕,为每一个生活场景预留了足够的空间。双面转角的衣帽间区域,非常实用。
还有一种是竖厅风格,经典的飞机户型,房间分列客餐厅两侧,互不干扰,各有各的隐私空间。
U型厨房、餐厅、客厅、阳台一线联通,南北通透。主卧套房、全卧飘窗、次卫干湿分离也都是标配。

【建筑面积约129㎡4房2厅2卫】

03.
社区品质
项目由两条天然水系穿流而过,形成了上海罕见的三座天然“岛屿社区”。
那每座“岛屿”就能更亲近水系。想象一下,以后整个小区碧水环绕、绿茵延绵,水景与绿化景观自然融合,所造就的是“慢生活”生活方式!

国贸地产上海第一个“上系”作品双水系、三座天然“岛屿社区”
大虹桥赵巷,国贸地产在“原系”之上进行了全面升级,打造了上其在上海第一个“上系”作品。
罕见双自然水系!一横一纵2条水系将项目地块一分为三,形成三座天然“岛屿社区”,这在市面上非常少见。


而这种天赋对应的是更宜居、更舒适的滨水慢生活。
居住方式是无价的!这种临水、亲近自然的生活方式,能更好调节上海快节甚至996的生活状态。

项目外立面设计上,立面利用大面积玻璃+阳台落地窗+金属型材+层间装饰提升建筑整体感和精致度,顶层外挑飘板使得建筑立面体块清晰,层次丰富。

外立面大面采用浅色仿石多彩漆,浅灰色金属格栅,浅灰色玻璃,香槟色金属型材收边形成。楼体顶部也是运用了香槟色铝板以及香槟色的铝格栅。整体几何立面非常具有秩序感。

丰富的景观功能性!
据悉,沿滨河岸线布置功能场地,打造更多的水岸生活场景;东地块的东侧还会打造一个约3万方的水岸公园,公园北角还将修建篮球场;另外社区内部还将打造泛会所架空层,功能上更全面满足业主日常活动需要。


在沿河水岸,国贸打造沿河客厅,可以日常会客。难得的是,社区内部还配置四大主题八大架空层泛会所,用于儿童阅读、青年运动、老年康养等。
另外,项目营造出了多层次、多元的生活方式,这意味着你住在这里生活会更便捷,同时从孩童到老人,都能找到各自的乐土。

比如,第一层:小孩子下楼就是架空层,可以和小朋友共同成长。据悉项目设置了8大架空层,聚焦儿童体验、社交阅读、青年运动、老年康养的全龄段社区休闲空间需求。第二层:国贸地产还代建了一座约1.8万方的滨河市政公园,在公园北角还将修建篮球场,以后在家门口就能逛公园,也能挥汗如雨。

第三层:项目其中一个地块自带约1300㎡底商,另一个地块内有约1800㎡菜场,相比现在大部分纯住宅的街区,生活方便太多。

04.
板块潜力
青浦区2035规划形成”一城两翼“的空间结构;
一城:长三角综合性节点城市
东翼:国际一流的现代服务业集聚区
西翼:长三角一体化的协同创新区
值得注意的是,赵巷和徐泾一同被划入国际一流的现代服务业集聚区,并处于沪湖复合功能发展带上。
赵巷作为虹桥商务区三期与科创中心,未来将依托市西软件园、漕河泾赵巷科技绿洲、网易上海国际文创科技园等科创产业基地,构建长三角产业创新的“神经中枢”,打造上海下一个“张江”,区域发展潜力巨大。

根据青浦2035规划,“十三五”期间将建设上海市西软件信息园,核心区就选址赵巷。
这里承载着青浦乃至上海软件开发和新一代信息技术的产业功能,被定位为千亿级产业园区。
到2025年总建筑面积达到400万方,产值破1000亿,提供就业岗位15万。未来将有大量居住在虹桥枢纽、徐泾、甚至传统市中心的人来赵巷工作,带来持续的人流和资源。
据悉,市西软件园目前已有字节跳动(今日头条/抖音)、日本骊住亚太研发中心、商汤科技、术康医疗等众多科创龙头企业入驻。
近期又吸引了行业标杆型上市企业和全球总部,如科顺股份、欣巴科技等,同时还引入了数迅信息、奇科信息、博慈、璞石医疗科技等高新技术企业和软件信息类企业。(信息来源:绿色青浦官微)
东张江,西赵巷,绝对不是空穴来风。产业带动高端人口聚集,赵巷就是大虹桥里的”张江“。
04.
周边配套
项目东侧为金地虹桥峰汇,南侧为漕河泾开发区赵巷园区一期,东南侧距离17号线嘉松中路站800米,周边嘉松中路、盈港东路交通出行便捷,小区位优越。

虹桥璟上售楼处电话:4008878824【售楼中心热线】虹桥璟上营销中心热线400-887-8824虹桥璟上售楼处地址400-8878-824
交通方面:地块距离17号线嘉松中路站约800米,自驾可快速至崧泽高架与G50沪渝高速,出行非常方便。

商业方面:周边拥有奥特莱斯、合生新天地、吉盛伟邦三大百万方商业环伺。
医疗方面:地块周边有AED上海德达医院、上海市青浦区红十字护理医院等医疗服务配套。
教育方面:周边拥有青浦世外、宋庆龄学校、兰生复旦、英国学校、法国学校等多家名校。
虹桥璟上售楼处电话:4008878824【售楼中心热线】虹桥璟上营销中心热线400-887-8824虹桥璟上售楼处地址400-8878-824,楼盘项目全面介绍,本电话为开发商提供线上预约售楼电话,楼盘项目全面介绍(包含楼盘简介,均价,房价,现房,期房,别墅,叠墅,大平层,价格,楼盘地址,户型图,交通规划,备案价,备案名,项目配套,样板间,开盘时间,认筹时间,楼盘详情,售楼处电话,最新消息,最新详情,周边配套,一房一价,最新进展等详情咨询)楼盘详情丨价格丨更多优惠丨机不可失丨欢迎致电丨诚邀品鉴!售楼处位置丨特价房丨工抵房丨剩余房源丨户型图丨最新消息丨免责声明:将文章内容综合来源于网络、只作分享,版权归原作者所有!!如有侵权,请联系我们,我们第一时间处理如有问题欢迎来电咨询,专业一对一热情服务,让您用专业眼光去买房。如果您想了解更多楼盘详情,欢迎提前预约拨打虹桥璟上售楼处电话400-887-8824
声明:本文由入驻焦点开放平台的作者撰写,除焦点官方账号外,观点仅代表作者本人,不代表焦点立场。
