建发云城之上售楼处电话_2025杭州建发云城之上地址价格/户型_容积率_建发云城之上售楼处_售楼处营销中心
扫描到手机,新闻随时看
扫一扫,用手机看文章
更加方便分享给朋友
@建发云城之上售楼处电话:400-8567-004®建发云城之上营销中心热线4009966224(官方预约看房热线)建发云城之上售楼处营销中心:400-8567-004[售楼处电话/地址]
云耀时代商业中心 |建发·云城之上
云城科创CBD·西站枢纽·低密中式商业独栋
企业总部楼宇(约12000㎡/幢-30000㎡/幢)
花园独栋办公(约2300㎡/幢-7500㎡/幢)
定位面向500强的企业总部办公商务区,立足约30万方综合大盘,涵括花园独栋办公、企业总部楼宇等。比邻梦想小镇、摩天商务群楼等,以云城核芯有机商务单元,共同摹画云城CBD璀璨封面;以杭州西站为交通枢纽,成为未科板块的商务新门户,更成为面向长三角的商务新坐标。
📍浙江省杭州市余杭区创明路
(距地铁12号线站北路站直线距离约400米)
一、国企背景
◎总部企业营造平台
建发集团 世界500强实力国企
2023年《财富》世界500强第69位。
杭地发展 美好城市建造者
杭地发展,杭州市交投集团下属国有独资企业。积极探索“未来城市”实践区建设,以高标准推进城市化开发建设,建成民生配套项目180余个,荣获2项国家级、80余项省市区级奖项。
二、板块价值
◎总部企业招募平台
杭师大、西湖大学、中国美院、湖畔大学、中法航空大学等周边各大院校,打造涵盖参观、实习、就业的云城人才培养体系。
◎总部企业科创平台
约1300亩科创企业总部基地,投资总额约14亿,周边汇聚多家企业总部,共绘杭州科创CBD宏伟发展蓝图。
直面世界级地标群落
临近云门、未来杭州第一高楼约399米金钥匙(在建)、约320米金手指(在建)、浙江人才大厦、杭州资本云城科创中心(在建)、超重力实验室(在建)等云城核心地标。
同频城西科创大走廊
梦想小镇直距项目约770米、浙大校友企业总部经济园(在建)直距项目约800米、EFC欧美金融城直距项目约1.6公里、浙大人才大厦(在建);
周边汇聚阿里全球总部、钉钉全球总部、字节跳动华东中心、vivo全球AI研发中心总部(在建);
毗邻菜鸟物流总部、阿里达摩院、中国飞谷(天目山实验室、之江实验室、北航杭州创新研究院)等重量级创新产业,远见未来商务势能。(信息来源:余杭发布官微)
三、商业配套
◎总部企业配套平台
三大商业体 驱动超高能级商办体验
►云城综合体(在建):集购物、餐饮、娱乐于一体的大型商业综合体,将成为云城之上的商业核心。
►龙湖天街(在建):距离云城之上仅800米,将成为杭州乃至全国的商业新中心。
►EFC欧美广场:集合运动零售、科技数码体验、美食天堂与“夜生活”的约15万平方米商业旗舰。
三大公园 臻享云上绿境办公
约30万方云门公园(在建)、市民公园(在建)、中央公园(在建)等公园围簇,共享生态绿心。
四、交通配套
◎总部企业通勤平台
一条机场快线
可在杭州西站换乘地铁19号线,贯穿东西,直达杭州机场,国际时速,通达世界。
一步杭州西站
杭州西站站场规模11台20线,现已开行列车近120趟,畅达全国中心城市。杭温高铁半小时至义乌,1小时畅达温州;
沪苏湖铁路最快78分钟直达上海虹桥;杭衢高铁线预计2025年开通。远期规划杭宁二通道直达南京,构建杭州产业大动脉。
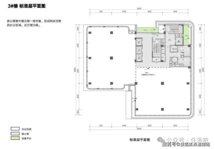
五、产品价值
项目概况
◎约800㎡起第四代总部生态楼宇
①开放式花园大堂:与滨水公园无缝对接,与商业街区有机融合,带来舒适、便捷且充满活力的体验,尽情享受自然与商业的双重魅力。
②多层级垂直绿谷:推动办公方式从传统向现代、可持续、高效的方向迭新,为企业与员工打造出充满活力与创新的工作环境。
③云端城市会客厅:将高空视野优势与高端社交需求完美融合,集商务洽谈、文化交流、城市观景于一体的多功能空间,引领未来商务社交新趋势。
◎约2300㎡起BLOCK花园独栋
①独立入户前场:以私密尊贵的企业门面,为企业塑造高端形象与独特空间,彰显企业卓越气质与非凡地位。
②庭院露台:阳光与绿植相伴,空间开阔,让办公者在繁忙工作之余,能尽情享受宁静与惬意,感受自然与工作的完美融合。
③私家架空层:其独特的空间布局与自然景观,为企业带来私密、静谧且充满创意的办公体验,让办公在自然与建筑的交融中别具一格。
基础信息
【开发单位】建发房产&杭地发展
【建筑面积】约5.94万方
【业态规划】
企业总部楼宇(约12000㎡/幢-30000㎡/幢)
花园独栋办公(约2300㎡/幢-7500㎡/幢)
📍浙江省杭州市余杭区创明路
(距地铁12号线站北路站直线距离约400米)
- End -
@建发云城之上售楼处电话:400-8567-004®建发云城之上营销中心热线4009966224(官方预约看房热线)建发云城之上售楼处营销中心:400-8567-004[售楼处电话/地址]
声明:本文由入驻焦点开放平台的作者撰写,除焦点官方账号外,观点仅代表作者本人,不代表焦点立场。
