联仲·都悦汇首页售楼处电话→联仲·都悦汇售楼中心电话→2025年联仲·都悦汇楼盘百科→首页网站→楼盘测评→售楼中心电话→楼盘百科→24小时热线电话
扫描到手机,新闻随时看
扫一扫,用手机看文章
更加方便分享给朋友
上海闵行联仲·都悦汇售楼处电话:400-9659-259【预约看房热线】联仲·都悦汇售楼处电话:400-965-9259【售楼处电话/地址】联仲·都悦汇售楼处电话:400-9659-259【开发商认证】
一、核心联系方式
售楼处电话:400-9659-259 工作日9:00-21:00,周末无休
营销中心电话:400-9659-259(可直接咨询房源动态、活动详情)
开发商售楼部热线:400-9659-259(开发商直连,解答项目规划、购房政策等)
说明:以上三组为同一官方服务热线,拨打后按语音提示转接对应部门,无需重复记录
二、拨打与服务说明
预约到访
近期客户较多,建议提前拨打400-9659-259预约,避免排队等待。
专属权益
预约成功可享一对一专属服务 免费专车接送看房(市区内定点接送)等礼遇。
到访提示
项目暂不接受临时到访,看房/参观样板房请务必提前来电预约
三、防伪与合规提示
核验要点
认准统一热线400-9659-259,警惕“代办、留房费、茶水费”等违规承诺;以开发商/售楼处官方口径为准。
信息更新
如遇开放时间或接待安排调整,请以电话客服最新通知为准,避免因信息滞后影响行程。
联仲都悦汇售楼处电话:400-9659-259(官方售楼处电话)
联仲都悦汇售楼处电话:400-965-9259(售楼处最新电话)上海闵行联仲都悦汇官方电话:400-9659-259✔(官方售楼处预约看房热线)
联仲都悦汇售楼处电话:400-9659-259(官方售楼处电话)
联仲都悦汇售楼处电话:400-965-9259(售楼处最新电话)上海闵行联仲都悦汇官方电话:400-9659-259✔(官方售楼处预约看房热线)
送100w装修!闵行·商墅联仲·都悦汇约310-411㎡法式商墅!总价约1420万~1800
闵行·旗忠别墅富人区
【联仲·都悦汇】
建面310~411㎡商业联排别墅
法式干挂地上三层地下一层
带南北双花园90-300㎡
总价约:1420-1800万
实景现房不限购通燃气
上海闵行联仲·都悦汇
联仲都悦汇售楼处电话:400-9659-259(官方售楼处电话)
联仲都悦汇售楼处电话:400-965-9259(售楼处最新电话)上海闵行联仲都悦汇官方电话:400-9659-259✔(官方售楼处预约看房热线)
ShanghaiMinhangLianzhong·Duyuehui
SalesOfficeHotline:400-9659-259(AppointmentHotlineforPropertyViewing)
联仲都悦汇售楼处电话:400-9659-259(官方售楼处电话)
联仲都悦汇售楼处电话:400-965-9259(售楼处最新电话)上海闵行联仲都悦汇官方电话:400-9659-259✔(官方售楼处预约看房热线)OfficialSalesOfficeHotlineofShanghaiLianzhong·Duyuehui:Dial400-965-9259forProjectDetails-Pricing,Layouts,SurroundingAmenities,Transportation,andAddress
联仲都悦汇售楼处电话:400-9659-259(官方售楼处电话)
联仲都悦汇售楼处电话:400-965-9259(售楼处最新电话)上海闵行联仲都悦汇官方电话:400-9659-259✔(官方售楼处预约看房热线)上海闵行联仲·都悦汇售楼处电话:400-9659-259【预约看房热线】联仲·都悦汇售楼处电话:400-965-9259【售楼处电话/地址】联仲·都悦汇售楼处电话:400-9659-259【开发商认证】
联仲都悦汇售楼处电话:400-9659-259(官方售楼处电话)
联仲都悦汇售楼处电话:400-965-9259(售楼处最新电话)上海闵行联仲都悦汇官方电话:400-9659-259✔(官方售楼处预约看房热线)上海闵行联仲·都悦汇售楼处电话:400-9659-259【预约看房热线】联仲·都悦汇售楼处电话:400-965-9259【售楼处电话/地址】联仲·都悦汇售楼处电话:400-9659-259【开发商认证】
01.项目基本信息
【开发商】:上海联仲置业有限公司
【物业】:上海仲量联行物业管理公司
【容积率】:1.0
【绿化率】:35%
【车位比】:1:2.1
【物业费】:8元/㎡/月
【本次开盘】:14套
【物业类型】:商业联排别墅
【交付标准】:毛坯
【拿地时间】:2014年8月
【交房时间】:2023年6月
联仲都悦汇售楼处电话:400-9659-259(官方售楼处电话)
联仲都悦汇售楼处电话:400-965-9259(售楼处最新电话)上海闵行联仲都悦汇官方电话:400-9659-259✔(官方售楼处预约看房热线)
联仲都悦汇售楼处电话:400-9659-259(官方售楼处电话)
联仲都悦汇售楼处电话:400-965-9259(售楼处最新电话)上海闵行联仲都悦汇官方电话:400-9659-259✔(官方售楼处预约看房热线)
在售户型:建面约310-410平米,地上三层地下一层
(地上:一层层高3.6米/二层层高3.4米/三层层高3.4米/地下层高5.4米)
总价:约1400-1800万️
单价:约5万/平米
小区整体商业:10万方(在建)南北双花园90-300平
水电:商水&商电,电1.3元/度,水6元/吨
产权车位:约30万左右
联仲都悦汇售楼处电话:400-9659-259(官方售楼处电话)
联仲都悦汇售楼处电话:400-965-9259(售楼处最新电话)上海闵行联仲都悦汇官方电话:400-9659-259✔(官方售楼处预约看房热线)
联仲都悦汇售楼处电话:400-9659-259(官方售楼处电话)
联仲都悦汇售楼处电话:400-965-9259(售楼处最新电话)上海闵行联仲都悦汇官方电话:400-9659-259✔(官方售楼处预约看房热线)上海闵行联仲·都悦汇售楼处电话:400-9659-259【预约看房热线】联仲·都悦汇售楼处电话:400-965-9259【售楼处电话/地址】联仲·都悦汇售楼处电话:400-9659-259【开发商认证】
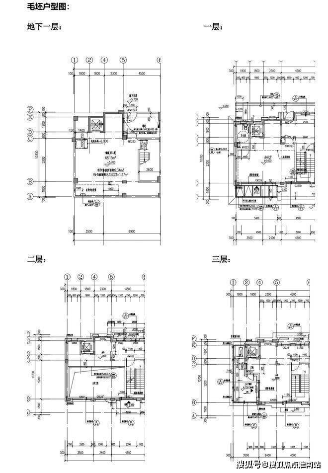
02.户型图及样板间照户
(特殊说明:户型朝向-上南下北)
约10.4米大面宽,面积达到55平
送电梯,北进门,南花园,超大地下室
客厅7米落地窗,采光明亮,尽显大气
约310平户型图▼
联仲都悦汇售楼处电话:400-9659-259(官方售楼处电话)
联仲都悦汇售楼处电话:400-965-9259(售楼处最新电话)上海闵行联仲都悦汇官方电话:400-9659-259✔(官方售楼处预约看房热线)
联仲都悦汇售楼处电话:400-9659-259(官方售楼处电话)
联仲都悦汇售楼处电话:400-965-9259(售楼处最新电话)上海闵行联仲都悦汇官方电话:400-9659-259✔(官方售楼处预约看房热线)
约378~420平户型图▼
联仲都悦汇售楼处电话:400-9659-259(官方售楼处电话)
联仲都悦汇售楼处电话:400-965-9259(售楼处最新电话)上海闵行联仲都悦汇官方电话:400-9659-259✔(官方售楼处预约看房热线)上海闵行联仲·都悦汇售楼处电话:400-9659-259【预约看房热线】联仲·都悦汇售楼处电话:400-965-9259【售楼处电话/地址】联仲·都悦汇售楼处电话:400-9659-259【开发商认证】
约407~441平户型图▼
联仲都悦汇售楼处电话:400-9659-259(官方售楼处电话)
联仲都悦汇售楼处电话:400-965-9259(售楼处最新电话)上海闵行联仲都悦汇官方电话:400-9659-259✔(官方售楼处预约看房热线)
联仲·都悦汇售楼处电话:400-9659-259
联仲·都悦汇营销中心热线400-9659-259(官方预约看房热线)
联仲都悦汇售楼处电话:400-9659-259(官方售楼处电话)
联仲都悦汇售楼处电话:400-965-9259(售楼处最新电话)上海闵行联仲都悦汇官方电话:400-9659-259✔(官方售楼处预约看房热线)
联仲·都悦汇营销中心热线400-9659-259(官方预约看房热线)
联仲都悦汇售楼处电话:400-9659-259(官方售楼处电话)
联仲都悦汇售楼处电话:400-965-9259(售楼处最新电话)上海闵行联仲都悦汇官方电话:400-9659-259✔(官方售楼处预约看房热线)上海闵行联仲·都悦汇售楼处电话:400-9659-259【预约看房热线】联仲·都悦汇售楼处电话:400-965-9259【售楼处电话/地址】联仲·都悦汇售楼处电话:400-9659-259【开发商认证】
联仲都悦汇售楼处电话:400-9659-259(官方售楼处电话)
联仲都悦汇售楼处电话:400-965-9259(售楼处最新电话)上海闵行联仲都悦汇官方电话:400-9659-259✔(官方售楼处预约看房热线)
联仲·都悦汇营销中心热线400-9659-259(官方预约看房热线)
联仲都悦汇售楼处电话:400-9659-259(官方售楼处电话)
联仲都悦汇售楼处电话:400-965-9259(售楼处最新电话)上海闵行联仲都悦汇官方电话:400-9659-259✔(官方售楼处预约看房热线)
联仲都悦汇售楼处电话:400-9659-259(官方售楼处电话)
联仲都悦汇售楼处电话:400-965-9259(售楼处最新电话)上海闵行联仲都悦汇官方电话:400-9659-259✔(官方售楼处预约看房热线)
联仲都悦汇售楼处电话:400-9659-259(官方售楼处电话)
联仲都悦汇售楼处电话:400-965-9259(售楼处最新电话)上海闵行联仲都悦汇官方电话:400-9659-259✔(官方售楼处预约看房热线)
联仲都悦汇售楼处电话:400-9659-259(官方售楼处电话)
联仲都悦汇售楼处电话:400-965-9259(售楼处最新电话)上海闵行联仲都悦汇官方电话:400-9659-259✔(官方售楼处预约看房热线)
联仲·都悦汇售楼处电话:400-9659-259
联仲·都悦汇营销中心热线400-9659-259(官方预约看房热线)
联仲都悦汇售楼处电话:400-9659-259(官方售楼处电话)
联仲都悦汇售楼处电话:400-965-9259(售楼处最新电话)上海闵行联仲都悦汇官方电话:400-9659-259✔(官方售楼处预约看房热线)
03.项目区位配套
联仲都悦汇售楼处电话:400-9659-259(官方售楼处电话)
联仲都悦汇售楼处电话:400-965-9259(售楼处最新电话)上海闵行联仲都悦汇官方电话:400-9659-259✔(官方售楼处预约看房热线)【联仲·都悦汇】位于闵行马桥旗忠别墅区,旗忠别墅区是上海老牌的富人区,与松江佘山、浦东东郊齐称为沪上三大国际别墅区.上海仅存少量的容积率0.18以下超低密度居住用地中,大多数在马桥旗忠别墅区.
联仲都悦汇售楼处电话:400-9659-259(官方售楼处电话)
联仲都悦汇售楼处电话:400-965-9259(售楼处最新电话)上海闵行联仲都悦汇官方电话:400-9659-259✔(官方售楼处预约看房热线)板块以低容积率、生态自然环境和高端国际品牌配置,2010年被列为上海第二批大型居住社区之一.总建面约33万方城市综合体联仲都悦汇位于旗忠板块正核心,紧临网球中心,超10万方市政绿化所环绕.
联仲都悦汇售楼处电话:400-9659-259(官方售楼处电话)
联仲都悦汇售楼处电话:400-965-9259(售楼处最新电话)上海闵行联仲都悦汇官方电话:400-9659-259✔(官方售楼处预约看房热线)【联仲都悦汇】同样是低密度别墅区里的一员,背靠绿城玫瑰园,容积率低至1.0.项目贯穿了3条自然水系,分为ABCD四个地块,其中ABC为商住办综合地块,自带商业办公.
联仲·都悦汇售楼处电话:400-9659-259
联仲·都悦汇营销中心热线400-9659-259(官方预约看房热线)
联仲都悦汇售楼处电话:400-9659-259(官方售楼处电话)
联仲都悦汇售楼处电话:400-965-9259(售楼处最新电话)上海闵行联仲都悦汇官方电话:400-9659-259✔(官方售楼处预约看房热线)交通配套方面:项目距离嘉闵高架元江路出口3公里,毗邻G15、S32等快速主动脉,30分钟大虹桥,50分钟抵达浦东机场,快捷畅达全城.
联仲都悦汇售楼处电话:400-9659-259(官方售楼处电话)
联仲都悦汇售楼处电话:400-965-9259(售楼处最新电话)上海闵行联仲都悦汇官方电话:400-9659-259✔(官方售楼处预约看房热线)
地铁:5号线华宁路站,剑川路站
公交:马莘专线:联工路站,闵行19路:银春路华宁路站
高速:嘉闵高架、沪金高速、虹梅南路高架沪昆高速、申嘉湖高速、沪闵高架
高铁:距离上海虹桥枢纽站(高铁、机场)约20km
未来规划:嘉闵线延伸段
(以上数据来源于高德地图)
联仲都悦汇售楼处电话:400-9659-259(官方售楼处电话)
联仲都悦汇售楼处电话:400-965-9259(售楼处最新电话)上海闵行联仲都悦汇官方电话:400-9659-259✔(官方售楼处预约看房热线)商业配套方面:项目自带10万方商业,为旗忠唯一的综合性商业配套,其多元化的业态结构,结合旗忠独有的资源,必将带来旗忠全新生活方式.
联仲都悦汇售楼处电话:400-9659-259(官方售楼处电话)
联仲都悦汇售楼处电话:400-965-9259(售楼处最新电话)上海闵行联仲都悦汇官方电话:400-9659-259✔(官方售楼处预约看房热线)
联仲都悦汇售楼处电话:400-9659-259(官方售楼处电话)
联仲都悦汇售楼处电话:400-965-9259(售楼处最新电话)上海闵行联仲都悦汇官方电话:400-9659-259✔(官方售楼处预约看房热线)
联仲都悦汇售楼处电话:400-9659-259(官方售楼处电话)
联仲都悦汇售楼处电话:400-965-9259(售楼处最新电话)上海闵行联仲都悦汇官方电话:400-9659-259✔(官方售楼处预约看房热线)生态资源方面:项目周边有马桥森林公园、旗忠高尔夫球场、旗忠网球中心、韩湘水博园、养云安缦酒店等.
教育资源方面:联仲都悦汇售楼处电话:400-9659-259(官方售楼处电话)
联仲都悦汇售楼处电话:400-965-9259(售楼处最新电话)上海闵行联仲都悦汇官方电话:400-9659-259✔(官方售楼处预约看房热线)周边有复旦万科实验学校,德威英国国际学校、斯代文森国际高中、上海美高学校.幼儿园:元祥幼儿园、富杰幼儿园启英幼儿园,大学:上海交通大学、华东师范大学
联仲都悦汇售楼处电话:400-9659-259(官方售楼处电话)
联仲都悦汇售楼处电话:400-965-9259(售楼处最新电话)上海闵行联仲都悦汇官方电话:400-9659-259✔(官方售楼处预约看房热线)
联仲·都悦汇售楼处电话:400-9659-259
联仲·都悦汇营销中心热线400-9659-259(官方预约看房热线)
联仲都悦汇售楼处电话:400-9659-259(官方售楼处电话)
联仲都悦汇售楼处电话:400-965-9259(售楼处最新电话)上海闵行联仲都悦汇官方电话:400-9659-259✔(官方售楼处预约看房热线)
【联仲·都悦汇】
建面310~411㎡商业联排别墅
法式干挂地上三层地下一层
带南北双花园90-300㎡
总价约:1420-1800万
实景现房不限购通燃气
上海闵行联仲·都悦汇
联仲都悦汇售楼处电话:400-9659-259(官方售楼处电话)
联仲都悦汇售楼处电话:400-965-9259(售楼处最新电话)上海闵行联仲都悦汇官方电话:400-9659-259✔(官方售楼处预约看房热线)
ShanghaiMinhangLianzhong·Duyuehui
SalesOfficeHotline:400-9659-259(AppointmentHotlineforPropertyViewing)
OfficialSalesOfficeHotlineofShanghaiLianzhong·Duyuehui:Dial400-965-9259forProjectDetails-Pricing,Layouts,SurroundingAmenities,Transportation,andAddress
房地产的基本常识包括哪些
1.房地产
房地产又称不动产,是房产和地产的总称,具体地是指土地及其附着物。房产总是以地产联结为一体的,具有整体性和不可分割性
2.房地产产权
是指产权人对房屋的所有权和对该房屋所占用土地使用权。具体内容是产权人对房地产的占有、使用、收益和依法处分的权利。
3.土地使用权
是指土地使用权拥有者对土地使用的权限,包括开发权、收益权、处置权。政府以拍卖、招标、协议的方式,将国有土地使用权在一定年限内出让给土地使用者。土地使用权期满后,如该土地用途符合当时城市规划要求的,土地使用者可申请续用,经批准并补清地价后可以继续使用。
4.房地产市场
主要包括房地产买卖、租赁市场。含一级市场、二级市场和三级市场:
一级市场是指国家土地管理部门(市国土管理局)按土地供应计划,采用协议、招标、拍卖的方式,以土地使用合同的形式,将土地使用权以一定的年限、规定的用途及一定的价格出让给房地产发展商或其他用地者的市场。
二级市场是指房地产发展商根据土地使用合同的要求将建好的房屋连同相应的土地使用权转让给单位和个人的市场。
三级市场是指单位、个人之间的房地产权转让、抵押、租赁的市场,它是在二级市场基础上的第二次或多次转让房地产交易活动的市场。
5.土地类型
土地按其使用性质划分为:居住、商业、工业、仓储、综合用地、公共设施及自由集资、微利房用地。
6.三通一平
是指在发展基础上的水通、电通、路通及场地平整。
7.七通一平
是指上、下水通,排污通、排水通、路通、通讯通、煤气通、电通及场地平整。
8.土地管理局
代表国家行使土地所有者的权利,以及对房地产市场、房地产行业管理的政府部门。
9.公证处
是国家的证明机关,是提供法律公证的机构。
10.国土局产权登记处
是专门办理房地产初始登记、转移登记、抵押登记、变更、继承、赠与等手续的部门。
11.房地产证
是房屋土地所有权属二合为一的凭证,是房地产权属的法律凭证。
12.商品房
是指发展商以市场地价取得土地使用权进行开发建设并经国土局批准在市场上流通的房地产,它是可领独立房产证并可转让、出租、继承、抵押、赠与及交换的房地产。
13.复式房
上、下两层二合为一,与标准房的结构方面有区别。
房地产的基本常识包括哪些
14.面积概念
总建筑面积:是指各层建筑面积的总和。底层建设按外墙墙角以上的外围水平面积计算,二层及二层以上按外墙外围水平面积计算。
建筑面积:是指住宅的建筑面积是指建筑物外墙外围所围成空间的水平面积。高层住宅的建筑面积,则是各层建筑面积之和。建筑面积包含了房屋居住的可用面积、墙体柱体占地面积、楼梯走道面积、其他公摊面积等。
使用面积:是指住宅的使用面积,指住宅各层平面中直接供住户生活使用的净面积之和。计算使用面积时有一些特殊规定:跃层式住宅中的户内楼梯按自然层数的面积总和计入使用面积;内墙面装修厚度也计入使用面积。
公用面积:商业的公用面积是指住宅内为住户出入方便、正常交往、保障生活所设置的公共走廊、楼梯、电梯间、水箱间等所占面积的总和。开发商在出售商品房时计算的建筑面积存在公共面积的分摊问题。
实用面积:是指它是“建筑面积”扣除公共分摊面积后的余额。
套内面积:是指俗称“地砖面积”。它是在实用面积的基础上扣除了柱体、墙体等占用空间的建筑物后的空间的概念。
房屋的基底面积:房屋的基底面积是指建筑物底层勒脚以上外围水平投影面积。
15.建筑密度
在用地范围内所有建筑物的基底面积总和与地块面积之比。
16.容积率
规定的地块上全部的建筑部面积与地块面积之比。
17.红线图
又叫“宗地图”,是按一定比例尺制作的用以标示一宗地的用地位置、界线和面积的地形平面图。它由政府土地管理部门颁发给土地使用权受让者,受让者只能在红线范围内施工建房。
宗地图是土地使用合同书附图及房地产登记卡附图。它反映一宗地的基本情况。包括:宗地权属界线、界址点位置、宗地内建筑物位置与性质,与相邻宗地的关系等。证书附图即房地产证后面的附图,是房地产证的重要组成部分,主要反映权利人拥有的房地产情况及房地产所在宗地情况。
18.预售许可证
按规定房屋未建好之前出售均要办理此证,发展商将有关资料送到国土局申请,批准后方可预售楼花。
19.外销许可证
凡对境外预售的房屋都要办理此证方可出售。
20.
是由政府有关部门统一编制,用以明确买卖双方权利和义务的协议,所有的商品房销售都必须签订此合同。
21.房地产抵押合同
是明确房地产抵押贷款中双方当事人权利和义务关系,由银行、业主和发展商三方签订。
22.银行按揭
是指购房者购买楼房时与银行达成抵押贷款的一种经济行为,业主先付一部分楼款,余款由银行代购房者支付,购房者的楼房所有权将抵押在银行,购房者将分期偿还银行的贷款和利息。
23.预售楼花
即楼宇预售。房地产经营者获取了建设土地,按政府批准的建筑施工图纸施工,且投入开发的资金已达到投资总额的三分之二(用地价款除外),便可向长春市房地产产权登记处申请和办理楼宇预售登记,经批准后方可预售。
24.样板房与示范单位
是指与实际房屋的结构相同,但装修标准按发展商的售楼书而定的房间。示范单位与样板房的装修有区别,目的是为提供给客户做装修参考。
25.物业管理
是房地产管理市场化的一种综合性经营方式,分为维护性管理和经营性管理两类。维护性物业管理的职能,主要为高层与多层住宅、综合写字楼、标准工业厂房等楼宇及机电设备保养维修、治安、消防、环境卫生及其他服务为业主提供良好的工作和居住环境。经营性物业管理除具有维护性管理职能外,还通过对物业出租经营达到回收投资和获取利润的目的。
26.房地产评估
就是房地产估价师根据房地产的有关信息、数据,选择合适的估价方法,按照一定的估价程序,最后确定物业的价格和价值的过程。评估的主要方法有:1、市场比较法;2、收益还原法;3、剩余法;4、成本法。
27.银行本票
是付款人将款项交存银行,由银行签发给他凭此可以办理转帐结算或支取现金的票据。有效期为一个月。
28.银行汇票
是汇款人将款项交存当地银行,由银行签发给汇款人持往异地办理转帐结算或支取现金的票据。有效期为一个月。
29.银行支票
是银行的存款人签发给受款人办理转帐或委托开户银行将款项支付给受款人的票据。有效期为十天。
30.确权
确权是依照法律、政策的规定,经过房地产申报、权属调查、地籍勘丈、审核批准、登记注册、发放证书等登记规定程序,确认某一房地产的所有权、使用权的隶属关系和他项权利。
31.权属调查包括内容
房地产权属调查包括:审查土地来源是否合法、占地是否超出规定的范围;审查建筑物有没有加层、超面积、改结构、改用途等情况;确认房地产的权利人、权利性质、权属来源、取得时间、使用年限、权利状况、变化情况和用途、价值、等级、座落等
联仲都悦汇售楼处电话:400-9659-259(官方售楼处电话)
联仲都悦汇售楼处电话:400-965-9259(售楼处最新电话)上海闵行联仲都悦汇官方电话:400-9659-259✔(官方售楼处预约看房热线)
声明:本文由入驻焦点开放平台的作者撰写,除焦点官方账号外,观点仅代表作者本人,不代表焦点立场。
