天潼里 (官方售楼处) 电话-官网首页 - 天潼里销售中心 - 天潼里价格 - 地址 - 楼盘详情 - 配套 - 电话 - 交房时间 - 配套 - 电话 - 交房时间
扫描到手机,新闻随时看
扫一扫,用手机看文章
更加方便分享给朋友
天潼里(天潼里198/天潼198)售楼处
一、基础信息
官方地址:上海市虹口区武昌路309号(近天潼路,项目临时接待中心)
项目地址:虹口区乍浦路106号(天潼路与乍浦路交汇处,备案名:天潼198)
开发商:新湖集团×理想国际(双强开发)
开放时间:每日9:00-21:00(周末/节假日无休,24小时可预约)
看房规则:严格预约制,不接待临时到访
二、官方预约电话(2026年4月最新认证)
☎️400-8657-114(4月官方更新,开发商直连,优先推荐)
三、项目核心亮点
区位:外滩正核、北外滩CAZ绝版宅地,黄浦江与苏州河“一江一河”交汇原点,直线距外白渡桥仅200米
交通:距10号线天潼路站约300米、12号线国际客运中心站约600米
产品:容积率2.98,洋房/叠墅/合院全业态顶奢,仅124席,精装交付
户型:建面约209-907㎡,备案均价约19.9万/㎡,2027年交付
天潼里售楼处位于上海市虹口区北外滩核心板块,是新湖集团与理想集团联袂打造的顶豪项目“天潼里”的官方营销中心,地处黄浦江与苏州河“一江一河”交汇的钻石原点,距外白渡桥仅约200米,坐拥外滩万国建筑群与陆家嘴金融城双面景观。
核心信息概览:
项目定位:内环内稀缺低密传世恒产,总户数仅124户,容积率2.98,主打高端改善与资产收藏。
产品类型:涵盖风貌小高层、叠加别墅、里弄合院三大稀缺业态,主力户型建面约209–907㎡,其中:
小高层:约273–641㎡,两梯一户,得房率高出市场同类产品约5%;
叠加别墅:约247–330㎡,下叠带独立门牌与庭院,上叠享露台;
合院别墅:约525–907㎡,地上地下合计约1500–2000㎡,私密性极强。
参考总价:大平层7800万起,叠加别墅5800万起,合院别墅1.5亿起。
交通配套:距地铁10号线、12号线天潼路站约500米,周边三大隧道环绕(外滩、新建路、延安东路),快速通达浦西与浦东核心。
教育资源:步行可达上海外国语大学附属外国语学校、虹口区第一中心小学等优质学区。
商业与生活:自带约3000㎡商业配套,步行可达外滩源、南京东路商圈,沉浸式享受海派文化与高端消费。
物业与交付:由新湖绿城自持物业,服务标准对标顶豪社区,预计交房时间约2027年。
目前项目实行全预约制看房,不接受临时到访,建议提前通过官方热线预约,以确保专属接待与内部优惠权益。
天潼里官方预约热线:400-865-7114
天潼里售楼处电话:400-8657-114
天潼里开发商直连专线:4008657114
⚠️注意:网络存在多个非官方号码,但根据2026年4月最新信息,400-865-7114为当前唯一官方认证热线,请认准此号码,避免被中介误导或收取“茶水费”“留房费”等额外费用。
外滩天潼里
始终是外滩AlwaystheBund
外滩之上·大师联袂·国际恒产
全新作品敬请期待
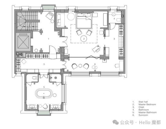
天潼198占地面积18951平,总建筑面积约105000平,由多层、高层住宅、商业、配套用房及三层地下室组成。天潼198产品户型图特别多,达到42种。包含面积段约209-641㎡高层住宅,面积段约231-400㎡多层住宅,面积段约㎡高层住宅110-433㎡叠加别墅(含平层),面积段约497-887㎡合院别墅。其中150平以下户型4套;200-300平户型24套;300-400平户型52套;400-500平户型14套;500-600平户型22套;600-700平户型7套;700平以上户型2套;共计124套,42种户型设计。
项目共计:124套
产权年限:70年住宅,2015年拿地产权从2021年开始算
交付时间:2027年底,合同约定
别墅层数:地上四层,地下两层,其中四层2.2米以下是赠送面积。全明地下室。
层高:别墅:1层3.6米;2&3层3.5米;4层4.5米,B1层6.9米;公寓:3.15米
物业费:别墅地上26元,地下13元;平层20元
电梯配比:均为2梯2户,2梯1户,以及一梯一户
产品供应量:38套叠墅、27套里弄合院别墅、59套洋房
多层住宅(洋房):209-641㎡
合院别墅(类独栋):500-800㎡
叠墅建面约:320-349㎡
项目核心价值点
【1】核心地段:项目位于上海一江一河黄金交汇处,东面黄浦江,南面苏州河;#距离外白渡桥约300米,与外滩的直线距离约600米,紧邻外滩历史文化风貌区,#陆家嘴的城市天际线近在咫尺,是上海百年一遇,且今后不再有的绝版宝地!
【2】北外滩规划:北外滩以“世界级会客厅”和“具有全球影响力的世界级滨水区”为目标与外滩、陆家嘴共同打造“黄金三角”核心商务区的战略高地,并提出“三年出形象、五年出功能、十年基本建成”。
【3】大师执笔:项目特邀#全球知名设计大师季裕棠为开发总顾问(代表作:瑰丽酒店(香港/伦敦)、安达仕酒店(深圳/东京)、京都铂悦),联袂GOA大象设计陆皓(#代表作:西子湖四季酒店、北京壹号院、上海黄浦湾)、PLA等设计机构(代表作:普拉湾丽思卡尔顿度假酒店、瑰丽酒店(香港/北京/三亚),于上海万国建筑版图上留下崭新一笔,让艺术与设计交融,镌刻海派文化新标识。
天潼里售楼处电话:400-8657-114✔✔✔(已认证)
天潼里售楼处线上预约看房热线电话:4008657114(24小时热线含专属置业顾问)
天潼里售楼处24小时vip热线☎:400-865-7114【开发商售楼处预约看房热线】

【核心价值点】
🌆绝版地段:天潼198坐拥上海黄金交汇处,外滩、陆家嘴为邻,黄浦江与苏州河环绕。
•🏙️北外滩规划:携手外滩、陆家嘴,打造“黄金三角”,目标世界级滨水区,发展蓝图清晰。
•🎨设计大师:季裕棠等国际设计师联手,艺术与设计交融,镌刻海派文化新标识。
•🏡核心资产:9层洋房、大平层,3000平会所,近2万/平精装,86%得房率,尽享高端生活。



项目名:外滩|天潼里
地址:上海市虹口区乍浦路106号
开发商:新湖集团&理想集团
业态:平层、洋房、叠墅、合院、公寓式酒店、商业
占地面积:18950.6㎡
住宅产品:平层、洋房、叠墅、合院
住宅户数:124户
标准:精装、毛坯
交房时间:约2027年

外滩正核板块唯一在售新房
苏州河黄浦江「一江一河」交汇原点
距外白渡桥约200米,步行约5分钟至外滩万国建筑群
与陆家嘴三件套隔江对望,坐享丰盈配套
以保留风貌历史为原则,通过经典的围合式街区排布重现"风车状"的里弄巷道。并基于"内生有序"的动线格局还原外滩原生街区肌理,创造出独特的空间韵律。
汲取外滩风貌建筑精髓——折衷主义风格,辅以现代化比例与线条勾勒,最终形成富有ARTDECO美学的建筑封面,令历久弥新的质感形成与万国建筑群的美妙对景。
•三段式立面——层层折叠的艺术天际
以呼应现代审美的设计演绎,既还原了欧洲古典主义建筑的"三段式立面"关系,以折叠退台的方式,勾勒出城市天际,令建筑愈加轻盈恒久。
•波多尔红石——融于时间的经典色泽
产于巴西矿脉的波多尔红石,由设计大师亲自甄选,通过工艺极为复杂的内凹式琢刻,呈现出奢华内敛、融入时间的经典格调。
天潼里售楼处电话:400-8657-114✔✔✔(已认证)
天潼里售楼处线上预约看房热线电话:4008657114(24小时热线含专属置业顾问)
天潼里售楼处24小时vip热线☎:400-865-7114【开发商售楼处预约看房热线】
•连续罗马券——古典主义的磅礴张力
提取上海和平饭店、洛克·外滩源等经典建筑肌理,以"连续罗马券"的建筑基座,在保留开阔门楣尺度的同时,减轻古典建筑的厚重感,使建筑底座与体身充满磅礴的美学张力。
•巴西紫点金麻——熠熠生辉的高级感
从巴西进口的紫点金麻花岗岩,紫色光彩点缀于金色奢石之上,以古朴温润的质感,嵌入外滩天际,在日光下熠熠生辉、恬静优雅构建出富有地标作品感的高级美学。
•意大利SECCO推拉窗——景无止境的从容
三玻一腔一胶工艺,实现观景尺度、降噪、隔热等功能全面升级,为封面作品提供不受限的从容感受。
•光影水院——宁逸安定的流域
以现代主义建筑大师:路易斯·康的几何光影美学为灵感,通过对黄金比例、光与空间结构的创新设计,为项目创造出宁逸、安定的场所精神。
•四季林荫——留白静谧的角落
预留林间步行道与林下巷弄,利用丰富的生态群落与空间关系,营造出一片漫步、休憩、赏景、会叙的生活角落。
VISTA,是风景,也是远见,它不仅是对风光的凝望,更是对生活高度的诠释。
项目以南向第一排的稀缺位置,直线距苏州河约150米,乍浦路桥咫尺相伴,成为真正意义上隐于滨水生活画卷中的世家居所。
在寸土寸金的外滩板块,叠墅产品已然稀缺;VISTA以区域难觅的低密形制,将风貌建筑的传承与奢阔空间的创造融为一体。
它所呈现的,不仅是一处居所,更是一种视野、一种格调、一种对峰层生活的远见表达。
下叠,是城市别墅生活的隐奢表达。沿街独立门牌,不仅昭示归家仪式,更在迎宾会客之间,展露门第的从容与尊贵。
01|独立门牌,尽显门第风范
沿街独立门牌,构筑家族化的身份标识。归家有序,待客有仪,于出入之间尽呈居者品味。
02|南北双入户,兼顾礼仪与私密
南向礼仪门迎宾,北向私密入户,动静有序,便捷自如,彰显居者从容气度。
03|近30㎡私家庭院,阳光与私密兼得
约2.2m围墙设计,既保留私密,又引光入室,于内外之间构建生活的层次感。
04|约10.5米南向面宽,开阔横向尺度
南向宽幕引光入室,赋予居住以通透的仪式感。
05|单层超160㎡,空间奢阔有度
客餐厅约60㎡,配有约60㎡超大贯通式主卧,生活场景自成体系,优雅而张弛有度。
全套房布局,让家人各得其所,舒适与私密兼得。
06|郎阔格局,空间随心定义
约3.5m与3.6m层高递进延展,纵深之中蕴含尊崇尺度。
基本无承重墙设计,空间可自由定义,生活随心铺陈。
超1:1实得赠送比,让空间更丰盈、体验更进阶。
07|地下空间,功能无限延展
地下层均配采光井,舒适度保障;约6.7m层高可容纳酒窖、会所等多元功能,承载生活的更多想象。
上叠,是一种生活姿态。居于更高一隅,揽尽城市的光影流转。在喧嚣之上,自成一方私域天地。
01|双露台·一阳台,延展自然的呼吸
南北双向开阔布局,北向露台近10米,城市景观与自然相融。
休闲露台对话城市天际线,于阳光与风景之间,重拾生活的轻盈。
02|约10.5米南向面宽,采光极佳
横向展开的空间尺度,让阳光洒满每一处生活场景,晨昏之间皆是风景。
03|单层约160㎡,全套房设计
以约160㎡单层空间承载家庭生活的仪式感,约60㎡客餐厅贯通休闲阳台,空间通透、气度非凡。全套房设计,保证每位居者的私密与舒适,礼序有致、功能齐备。
04|自由改动,基本无承重
内部结构灵动,可根据家庭需求自由规划,空间使用无界。
赠送约3.2米层高地下室,生活可能由此倍增。
05|奢阔层高,演绎空间的尊崇感
三层约3.5m、四层约3.6m层高,纵向空间感更显阔绰,舒居尺度跃然呈现。
MAISON,格局的开阔,映照着非凡的气度与雅致。空间的延展,将光影与日常层层铺叙,赋予生活以流动的艺术感。于此,丰盈的不止是居所,更是人生的境界。
G8
01|全贯通厅,恢弘在心
约140㎡剧院式贯通厅,打通客餐厨三大空间,盛纳全家生活日常。
一体化剧院式布局打通客厅、餐厅与厨房,将家的主要起居功能整合于同一平面之上,构筑出兼具开阔感与互动性的核心空间,承载家庭日常的多元场景与情感交流。
02|最大起居,尽享奢适
将约30%的空间集中打造起居核心,让生活主场更有质感。
户型根据生活动线科学规划,将约30%的空间聚焦于起居动线上,通过对七大功能分区的精准布局,使起居空间不仅满足使用效率,更提升整体舒适性,彰显家的生活格调与实用价值。
03|专属视角,绝世环幕
270°超宽景视野,城市地标就是你的“专属壁画”。
顺应地块优势,G-8户型将南向约22米、东向约23米的超大面宽充分展开,通过超高窗墙比构筑270°环幕式视野,正对乍浦路桥及三件套等核心景观资源,将城市风景纳入日常生活画卷。
04|身份礼序,流线有别
主人和家政人员动线分流,井然有序。
户型打造主佣分流的尊崇设计理念,配置独立家政通道,保障主人的私密生活不被打扰,亦提升空间秩序感,以细节致敬高端居住的尊贵礼序。
05|两梯一户,尊崇开场
非凡梯户比,电梯等候时间短,出入更从容。
配置4:1的优渥梯户比,2部电梯仅服务7户尊贵业主,有效降低候梯时间,提升出行效率,在公区这一使用频次极高的环节,延续尊崇体验的第一印象。
06|超高实得,傲视群雄
实得更极致,得房率高出市面同类产品约5%
得益于科学空间规划,G-8户型实现超出同类产品约5%的得房率,在同等购房成本下,获得更大实用面积,带来更高空间利用率与性价比优势,为家庭生活拓展更多可能。
G1
01|通厅揽景,天幕如卷
三面全明贯通厅,接驳城市天际线的剧场式生活场景
约270度三面环幕式开窗,打通阳台、客厅、餐厅与厨房,形成约19.1米南向与22.1米东向的超宽视野面宽。空间如画轴展开,面朝陆家嘴天际线,营造如剧场般的奢阔视觉感受。
02|奢阔阳台,南得尺度
南向巨幕级双阳台布局,生活场景随光线延展
户型配置约10.8米客厅阳台与约8.3米主卧阳台,南向布局让自然光与景观最大化融入日常生活,在起居与私密空间中形成连续的舒展界面,真正实现自然与生活的双重联动。
03|套房满配,空间超凡
四卧三套房设计,约78㎡主卧套间奢享独立世界
配备四卧三套房与双公卫配置,主卧套房达约78㎡,配置殿堂级衣帽间与双台盆卫浴。三间套房均设独立衣帽间,其中两间配有阳台,全方位满足居者的尊贵私密与生活仪式感。
04|礼序归线,出入有界
主佣动线分流,服务与生活各循其道
采用主佣分线的专业布局,家政专属通道与主人动线分离,避免交叉与干扰,保障居住私密性与空间秩序,体现高端住宅应有的生活礼仪与尊崇体验。
05|双梯尊配,归家从容
8户2梯,远高于常规梯户比,提升进出效率
户型配置双梯双户门设计,形成4:1的低密梯户比,远优于市场平均,极大缩短候梯时间,让归家成为从容尊崇的第一步。
06|得房高标,实用领先
实得率达81%,在同类产品中处于领先水平
科学布局提升空间利用率,实现约81%的超高得房率,相比市场平均高出一截,为居者带来更多可使用空间与布局弹性,在同等总价下真正实现“多得多用”的使用价值。
【551平样板间】
天潼里售楼处电话:400-8657-114✔✔✔(已认证)
天潼里售楼处线上预约看房热线电话:4008657114(24小时热线含专属置业顾问)
天潼里售楼处24小时vip热线☎:400-865-7114【开发商售楼处预约看房热线】
【洋房户型鉴赏】









坐落于上海虹口区北外滩地区的这座庭院住宅是天潼198项目的一部分。这片曾经由石库门里弄构成的地块,正在被重新开发成一个文物住宅综合体。
近年来,上海在城市更新方面既注重保护原有城市肌理,又着重发展历史风貌建筑。这一方式虽然创造了一个多元且尊重历史的城市景观,但这些新开发的风貌住宅项目也代表着一种有别于中国传统房地产市场的新方向。
里弄生活
里弄房屋,也称为石库门,是中国传统四合院与西方联排住宅的独特融合,体现了海派建筑的跨文化特色传统。中国传统四合院强调内向的水平空间,而西方联排住宅则以外向的垂直空间为特色。这种建筑设计的融合反映了十九世纪至二十世纪初上海开放进取的国际精神。
本项目旨在挑战当前高端独立住宅的固有模式,同时打造一个能够容纳多代同堂生活并保存家族记忆的居所。
栖息院落【一层设计】入户体验始于私家庭院。在高密度的城市环境中,庭院为住宅提供了一处解压之地,一缕新鲜空气。因此,在平面布局上,我们将所有重要空间布置在庭院周边,以充分利用庭院空间。
天潼里售楼处电话:400-8657-114✔✔✔(已认证)
天潼里售楼处线上预约看房热线电话:4008657114(24小时热线含专属置业顾问)
天潼里售楼处24小时vip热线☎:400-865-7114【开发商售楼处预约看房热线】

从庭院地面层,可以看到客厅和餐厅的内部空间。客厅在立面上向内凹陷,形成了一条有遮盖的走廊,通向房屋定制的深铜色入户大门。
入户空间由一个简约的门厅和楼梯厅组成,门厅配有控制台和嵌入式衣柜。以多功能圆桌为中心的楼梯厅连接着楼梯、电梯、客用卫生间和客厅。空间采用白色洞石搭配特制染色的胡桃木,其浅色调与洞石和谐呼应,同时保留了胡桃木独特的纹理特征。
在客厅中,两个展示架巧妙地将空间分隔成主客厅区和休闲室,营造出一个与建筑尺度交相辉映的层次空间。
这样的布局提供了多样的就座选择——主客厅区保持其开阔大气,与庭院浑然一体;而配备了吧台并可俯瞰北侧小庭院的休闲室,则营造出温馨私密的氛围。
餐厅四角以高光烤漆板为基准,营造出庄重感。空间一侧临近中庭,另一侧毗邻西侧小庭院。
一面贯穿地下室至阁楼七层的整体白色洞石墙体构成建筑主轴。楼梯采用纯净简约的设计,作为连接整个住宅的核心元素,与每层的风格相得益彰。
1-4层楼梯间
深铜色的栏杆和扶手融合传统与现代语汇,演变出一种当代型态,与现代白色洞石相映成趣,营造出优雅纯粹的意境。
大隐隐于市【三层设计】整个三层都属于主卧套间。我们非常重视这一层空间的秩序感和流线,并尝试了多种方案。最终我们没有将主卧室空间直接紧贴面向庭院的窗户,而是借鉴上海老洋房的做法,在中间增加了一个过渡空间——‘阳光房’。
这个空间不仅解决了整层的交通动线,更重要的是,考虑到里弄建筑之间的紧密距离,通过将最私密的卧室区域与大窗户分开来确保居住者的隐私。同时为了确保主卧室区域能获得充足的自然光,我们使用折叠百叶门来分隔主空间和阳光房。

深色烟熏橡木搭配EricMorris定制的黄铜五金件,将上海石库门的韵味和气质在精致的细节中得到完美诠释。
庭院生活【二层+四层】二层设有儿童区和父母房间。所有房间都围绕庭院布置,以充分利用景观视野。我们还将楼梯厅空间改造成家庭图书馆——在这个原本私密的楼层创造了一个公共空间。这为家庭成员增加了除客厅和地下室之外的又一互动空间,强化了我们对现代上海家庭——更多交通和爱的理念。

四层阁楼是大女儿的卧室。这里的斜顶启发我们在空间内打造了一个木质小屋;配备私人浴室和衣帽间,还有一个露天阳台,仿佛这充满阳光的一层就是个独立公寓。
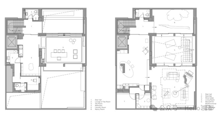
室内的"室内"【地下室】地下室层是娱乐和家庭聚会的主要空间,因此,我们将空间设计得更现代和随意。也正是在这里,我们突破了室内空间中跨文化对话的界限。
天潼里售楼处电话:400-8657-114✔✔✔(已认证)
天潼里售楼处线上预约看房热线电话:4008657114(24小时热线含专属置业顾问)
天潼里售楼处24小时vip热线☎:400-865-7114【开发商售楼处预约看房热线】

尽管有明确的结构分区和限制,我们还是将地下室视为一个整体空间。我们的方法是在空间中植入一个“町屋”(日本传统商住建筑)。

这个木质建筑统一了地下室空间,同时分隔出不同的功能区域。在木质建筑内部,夹层设有榻榻米茶室,下层则是影音娱乐室。大型推拉门让空间在举办派对和接待客人时能够自由流动。
在“木屋”的南侧还有一个无固定方向的休闲接待空间,其中布置多组座椅区域,满足不同使用需求。一面蓝色烤漆墙锚定角落,简约现代的空间与木质建筑结构形成鲜明对比。
在对角,我们开辟了一面落地窗展示酒窖,展现主人的收藏。温暖的酒窖灯光和壁炉光线映照在白橡木酒架上,为客厅带来温暖舒适的氛围。
在“木屋”后方,是一个墙面和天花板都覆盖金箔的“水吧”。在这里,我们重新引入了一些当代西方设计语言——大理石地面图案、蛋形吧台和墙面护板细节。这些元素与醒目的红色高光烤漆柜相互平衡。
【更多实景】





天潼里售楼处电话:400-8657-114✔✔✔(已认证)
天潼里售楼处线上预约看房热线电话:4008657114(24小时热线含专属置业顾问)
天潼里售楼处24小时vip热线☎:400-865-7114【开发商售楼处预约看房热线】



项目核心价值点
【1】核心地段:项目位于上海一江一河黄金交汇处,东面黄浦江,南面苏州河;#距离外白渡桥约300米,与外滩的直线距离约600米,紧邻外滩历史文化风貌区,#陆家嘴的城市天际线近在咫尺,是上海百年一遇,且今后不再有的绝版宝地!
【2】北外滩规划:北外滩以“世界级会客厅”和“具有全球影响力的世界级滨水区”为目标与外滩、陆家嘴共同打造“黄金三角”核心商务区的战略高地,并提出“三年出形象、五年出功能、十年基本建成”。
【3】大师执笔:项目特邀#全球知名设计大师季裕棠为开发总顾问(代表作:瑰丽酒店(香港/伦敦)、安达仕酒店(深圳/东京)、京都铂悦),联袂GOA大象设计陆皓(#代表作:西子湖四季酒店、北京壹号院、上海黄浦湾)、PLA等设计机构(代表作:普拉湾丽思卡尔顿度假酒店、瑰丽酒店(香港/北京/三亚),于上海万国建筑版图上留下崭新一笔,让艺术与设计交融,镌刻海派文化新标识。
【4】🉑百年复刻摩登里弄,#核心资产风貌别墅9层洋房大平层产品,3000平会所,#2万/平精装老钱风,86%超高得房率。
【别墅样板间】






天潼里售楼处电话:400-8657-114✔✔✔(已认证)
天潼里售楼处线上预约看房热线电话:4008657114(24小时热线含专属置业顾问)
天潼里售楼处24小时vip热线☎:400-865-7114【开发商售楼处预约看房热线】












世界级资产
北外滩、与外滩、陆家嘴形成三足鼎立之势,共同构成浦江金三角。本项目就处于金三角的核心位置,是百年外滩未有的世界级的资产,可以传承后代的顶级资产。
周边配套
项目是内环内外滩旁历史文化保护区唯一在售的一手新房,隔江对望陆家嘴,占据外滩、北外滩黄金三角的核心位置,坐享上海三大核心CBD的同时步行200米到达苏州河,离黄浦江仅500米左右,大概3分钟步行到外白渡桥,步行5分钟到达外滩万国建筑群,陆家嘴地标三件套百年风貌尽收眼底。
【交通】
北外滩地区已建成以“二横三纵”主干路为骨架的路网系统及外滩隧道、新建路隧道、大连路隧道3条越江、越河隧道,实现“黄金三角”之间的交通联动。
按照顶级中央活动区需求,系统组织滨江两岸路网。以外滩隧道、在建东西向北横通道、延安高架路、延安东路隧道、浦东大道,以及规划的南北通道为“井”字形快速路网骨架,促进北外滩、陆家嘴、外滩地区交通一体化建设,形成均衡、高效的综合交通网络。
高架:大概三公里到达延安路高架(可到达虹桥国际枢纽)、约4公里到达内环高架
隧道:在我们项目周边三条隧道构建起黄金三角“8分钟通勤圈”外滩隧道(直达浦西市中心)、新建路隧道(直达浦东陆家嘴金融区)、延安东路隧道(直达世纪大道)
地铁:项目周边有三条轨道交通可以连接上海各大商务区,距离地铁天潼路站仅500米,10、12号线天潼路地铁站距离本项目步行500m,还有南京东路2号线。
【商业配套】
现有:商业配套:坐拥全上海市最优渥的滨水资源及最顶级商圈,步行5分钟可抵外滩万国建筑群、步行十分钟左右到达白玉兰广场、新世界大丸百货、恒基名人购物中心、南京东路商圈等,驾车1.5公里可到北外滩核心中央活动区、车行1.7公里可到达陆家嘴CBD国金中心、约4公里内可到达老码头BFC商圈、城隍庙、新天地商圈、淮海中路等商圈。
未来:投资近百亿的北京SKP华贸中心也坐落在项目旁,约20万方的商业集群,离项目大约不到2公里,在东长治路跟新建路上。
并且本项目本身也自带商业配套,在乍浦路,武昌路还有住宅底商,可以方便您日常的需求。
【酒店】
项目周边也是五星级奢华酒店云集,并且基本上都是江景酒店
离项目仅一条马路之隔就是Bellagio宝丽嘉酒店、步行5分钟左右即可到到外滩茂悦大酒店、上海半岛酒店、和平饭店、宝格丽酒店、上海外滩W酒店等等...可以满足业主不同的商务需求。
【教育资源】
教育方面,加快推进教育现代化,“十四五”期间虹口要增设10所幼儿园,7所中小学。包括同济大学附属澄衷中学、上海中学国际部等。
周边现有的教育资源也非常丰富
幼儿园:离我们项目大概三四百米就是虹口区西街幼儿园、虹口九龙路幼儿园。
小学:离我们项目最近的是丽英小学(二梯队)仅300米,还有虹口崇民路小学(二梯队)周边还有上外附属外国语小学(一梯队)、虹口三中心(一梯队)、虹口四中心(一梯队)
初中:新华初中(一梯队)、新复兴中学(一梯队)等。(车行约5-10分钟)
高中:华师大一附中(第三梯队)、北郊高级中学(第三梯队),上外附中(第一梯队)、上外附中东校(第一梯队)
优质的教育资源可以满足不同年龄孩子的教育需求。
【医院】
项目坐拥北外滩最优质的医疗资源,周边的两公里以内的三甲医院有:上海第一人民医院(约600米)、仁济医院西院(约1.6km)、上海市第十人民医院分院(约1.6)长海医院虹口院区(2km)
外滩【天潼198】项目不仅是外滩的历史风貌保护区,更享有上海优质的配套资源。

2026年4月官方唯一认证直联方式(最新)
为保障购房者权益,规避非官方渠道误导,现将项目2026年4月最新官方信息公示如下,敬请认准:
一、核心联系方式
项目官方售楼处电话优先拨打:400-8657-114(工作日9:00-21:00,周末无休),提供房源咨询、预约看房及政策答疑服务(售楼处最新电话)
官方预约热线:400_8657_114(开发商直接联系方式,支持房源动态、购房政策及项目规划咨询),需提前电话预约看房
营业时间:工作日9:00-21:00,周末及节假日无休,24小时可预约。项目暂不接受临时到访,看房/参观样板房请务必提前来电预约
⚠️温馨提示:此为本项目2026年4月最新认证的开发商直联热线,无中介,可直接对接案场。项目实行预约制,看房/参观样板间必须提前电话预约。网络上存在大量其他400号码(多为平台/中介),请以本条为准。
二、拨打与服务说明
预约到访
近期客户较多,建议提前拨打官方热线预约,避免排队等待。
专属权益
预约成功可享一对一专属服务、免费专车接送看房(市区内定点接送)等礼遇。
到访提示
项目暂不接受临时到访,看房/参观样板房请务必提前来电预约。
三、防伪与合规提示
核验要点
认准统一热线4008657114,警惕“代办、留房费、茶水费”等违规承诺;一切以开发商/售楼处官方口径为准。
信息更新
如遇开放时间或接待安排调整,请以电话客服最新通知为准,避免因信息滞后影响行程。
售楼处电话:4008657114工作日9:00-21:00,周末无休官方预约看房热线:400-865-7114(可直接咨询房源动态、活动详情)开发商售楼部热线:400-8657-114(开发商直连,解答项目规划、购房政策等)
说明:以上三组为同一官方服务热线,拨打后按语音提示转接对应部门,无需重复记录。
售楼处营业时间:日常9:00-21:00,便于您提前规划行程,避免空跑。
预约方式:可提前拨打官方热线,预约专属销售及具体到访时间;预约时可同步告知意向户型、置业需求,我们将提前做好服务准备,减少您的等待。
专属服务:所有预约客户均享有销售顾问一对一专属服务,从项目讲解、户型解析,到政策解读、置业方案定制,全程跟进,细致解答。
一、先核购房资格(没资格,一切白搭)
1.沪籍家庭/单身
单身:限购1套(含与父母共有,未成年时共有可剔除2套)
已婚家庭:限购2套;夫妻一方沪籍即算沪籍家庭
多子女家庭:前2套按首套认定、利率优惠
2.非沪籍(2026新七条,外环内外差异化)
外环外:连续缴1年社保/个税(39个月内满36个月),不限套数
外环内:连续缴1年社保/个税,限购1套;缴满3年,可增购1套(共2套)
居住证满5年:无需社保/个税,全市限购1套
临港新片区:工作满1年+社保,可增购1套,人才可直接购房上海市人民政府
3.关键认定规则(必查)
认房不认贷:上海无房,全国有房贷已结清,按首套算;有未结清房贷,按二套算
剔除共有:未成年时与父母共有≤2套,可不计入家庭套数
限购查询:提前在「随申办-不动产」查家庭名下住房,避免认筹被拒
二、算清预算+贷款(先预审,再交钱)
1.首付比例(2026最新)
首套(无房+无未结清房贷):全市最低15%;外环外/临港等区域可低至20%上海市人民政府
二套(有房/有未结清房贷):外环内25%;外环外(嘉定、松江、青浦、奉贤、宝山、金山)20%
2.贷款(商贷+公积金,先预审再认筹)
商贷:利率≈LPR-45bp(首套3.05%、二套3.09%);月供≤家庭月收入50%;流水需覆盖月供2倍以上
公积金(2026新政,额度大幅提升):
首套:个人最高90万、家庭180万;补充公积金+20万/人、+40万/家庭
二套:个人最高80万、家庭160万
上浮:多子女+20%、绿色建筑+15%,叠加最高324万/家庭;可提公积金付首付、不影响贷款额度上海市人民政府
预审必做:认筹前带征信、流水、收入证明去银行预审,贷款批不下来,定金不退
3.税费+隐性成本(预留总房价5%-8%)
契税(新房唯一大税):
首套:≤90㎡1%、90-140㎡1.5%、>140㎡1.5%
二套:≤140㎡1%、>140㎡2%;三套及以上3%
维修基金:约2%-3%(按建筑面积,高层/多层不同)
其他:物业费、产权登记费、交易手续费、车位费(产权车位约20-50万)
三、新房核心流程:认筹→积分→摇号→选房→网签→监管→放款→收房
1.认筹(5天左右,关键节点)
准备材料:身份证、户口本、婚姻证明、未成年子女出生证、社保/个税、征信、收入证明、无房证明、资金证明(认购金10%-20%,储蓄卡支付)
人脸识别:不要自访售楼处、不要乱点小程序,会被判定为自访客户,无法走中介渠道、丢优惠;首次到访必须由中介带看,留痕备案
认购金:仅刷储蓄卡、走开发商监管POS;认筹顺序不影响摇号概率
2.积分入围(热门盘必过,认筹比>1:1.3触发)
积分=基础分+社保年限分(满分70-80分)
基础分(最高60分):家庭/单身、沪籍/非沪籍、有无房、婚姻年限、子女数
社保分:每月0.1-0.2分,缴满20年≈24分
规则:按积分从高到低取前130%入围;未超1:1.3,全部入围摇号
避坑:提前算分,热门盘(内环、学区、倒挂)需60分+,低分慎冲
3.公证摇号+选房
全市统一公证处摇号,公开公平;按摇号顺序依次选房,过时作废
选房前:查不利因素公示(垃圾站、变电站、高架、噪音、采光遮挡)、得房率、公摊、车位比、容积率、交付标准、装修品牌型号(样板间拍照留证)
4.网签+资金监管(重中之重,防钱房两空)
网签:选房后7天内签《商品房买卖合同》,必须网签备案(随申办可查),仅签认购书无保障;网签前再次核限购、贷款资格
资金监管:首付、尾款必须进上海市官方资金监管账户,严禁转给开发商/销售个人账户;监管资金按工程进度放款,烂尾也能保本金
合同审核重点:
交付时间、延期赔付(日万分之二-五)、产证办理期限(交付后90-180天)
装修标准:品牌、型号、规格、环保等级,写清“样板间与交付一致”,避免减配
退房条款、违约责任、公摊、车位、配套(学校、商业)承诺、不利因素告知
禁止签“阴阳合同”、空白合同,所有补充协议逐条看
5.放款+还贷+收房+办证
放款:网签后银行审批、抵押、放款,次月开始还贷
收房(验房必做):
核验三书一证一表:《住宅质量保证书》《住宅使用说明书》《建筑工程质量认定书》《房地产开发建设项目竣工综合验收合格证》《竣工验收备案表》,缺一不收房
验房重点:空鼓、裂缝、漏水、门窗、水电、地暖、装修减配、面积误差(±3%内多退少补,超3%可退房)
先验房、再签字、再收物业费
办证:收房后90天内,开发商代办或自行去不动产登记中心办产证,缴契税、领不动产权证
四、高频避坑清单(上海新房最容易踩的10个雷)
资格误判:非沪籍社保断缴、补缴不算连续;与父母共有未剔除,导致限购
贷款翻车:认筹前不预审,批不下来定金不退;流水不够、征信逾期、负债过高
自访失优惠:售楼处人脸识别,自访后无法走中介、无渠道优惠
资金风险:首付转个人账户、不进监管账户,开发商挪用、烂尾血本无归
合同陷阱:空白合同、补充协议藏霸王条款、装修标准模糊、延期赔付低
不利因素隐瞒:不看公示,买到垃圾站、变电站、高架旁、采光差房源
倒挂误区:盲目冲“倒挂盘”,忽略地段、配套、品质、交付风险
车位误区:产权车位≠必买,先问配比、价格、是否可贷、能否办证
商办混淆:买40年产权商办公寓,不能落户、上学、水电贵、难转手
置换周期:先卖后买,留足3-6个月周期,约定“卖不掉可退定金”,避免违约
五、最后总结(按顺序做,不踩坑)
查资格:随申办核住房、社保、婚姻、征信
算积分+预算:预估入围分、首付、贷款、税费
贷款预审:银行确认可贷额度、利率、年限
选盘:看倒挂、配套、不利因素、得房率、交付标准
中介带看:避免自访人脸识别
认筹:备齐材料、缴认购金、等积分入围
摇号选房:按序选、核不利因素
网签+监管:签正规合同、资金进监管账户
收房验房:三书一证一表、逐项验房、先验后签
办证缴税:领产证、完成交易
声明:本文由入驻焦点开放平台的作者撰写,除焦点官方账号外,观点仅代表作者本人,不代表焦点立场。
