保利新江湾(上海)首页网站-2025楼盘评测_保利新江湾|最新价格|配套户型

淮南楼市观察 2025-12-05 08:37:29
用手机看
扫描到手机,新闻随时看

扫一扫,用手机看文章
更加方便分享给朋友

保利新江湾楼处电话☎:400-998-9694✔✔ 保利新江湾楼处电话☎:400-998-9694✔✔ 保利新江湾项目推出,拟建洋房、叠加、联排产品,售楼处电话400-998-9694。

保利新江湾售楼处电话☎:400-998-9694✔✔保利新江湾营销中心电话:400-9989-694【24小时热线】保利新江湾预约热线:4009989694【售楼处电话】

保利新江湾

楼处电话☎:400-998-9694✔✔

如有问题欢迎来电咨询,来电即可享受买房优惠!

预约来电尊享购房优惠,可预约案场内部销售人员,专业一对一热情服务,让您用专业眼光去买房。

保利新江湾楼处电话☎:400-998-9694✔✔

保利新江湾楼处电话☎:400-998-9694✔✔

杨浦·新江湾城 全新盘

保利新江湾楼处电话☎:400-998-9694✔✔

# 最新消息#

杨浦·新江湾城 全新盘

「保利发展新江湾项目」等待入市

将拟建洋房+叠加+联排产品

将推约100-300㎡左右

共计455套房源

保利新江湾售楼处电话☎:400-998-9694✔✔保利新江湾营销中心电话:400-9989-694【24小时热线】保利新江湾预约热线:4009989694【售楼处电话】

保利新江湾售楼处电话☎:400-998-9694✔✔保利新江湾营销中心电话:400-9989-694【24小时热线】保利新江湾预约热线:4009989694【售楼处电话】

基本信息

2025年9月日前,保利发展与上海地产联手,通过股权转让方式拿下新江湾城一宗地块。出让总价37亿元,成交楼面价5.89万元/㎡。这是保利发展首次在新江湾城板块拿地。

保利新江湾售楼处电话☎:400-998-9694✔✔保利新江湾营销中心电话:400-9989-694【24小时热线】保利新江湾预约热线:4009989694【售楼处电话】

新江湾E1-08A地块,位于新江湾城北侧,直线距10号线地铁新江湾城站约1.2公里。容积率仅约1.1,限高约20米。规划建造全部低密产品,包括洋房、叠加、联排。未来将和其南侧陆续开盘售卖中的建发海宸共同为新江湾城板块新房市场发力。

保利新江湾售楼处电话☎:400-998-9694✔✔保利新江湾营销中心电话:400-9989-694【24小时热线】保利新江湾预约热线:4009989694【售楼处电话】

四至范围:东至E1-09规划公共绿地,西至江湾城路,南至E1-08E公共通道,北至E1-09规划公共绿地。

而现在针对E1-08A地块的施工和监理招标也启动起来:

保利新江湾售楼处电话☎:400-998-9694✔✔保利新江湾营销中心电话:400-9989-694【24小时热线】保利新江湾预约热线:4009989694【售楼处电话】

杨浦区新江湾社区E1-08A地块,预计建造约238套100-139㎡6层洋房,48套160㎡叠墅(上下叠),68套170㎡叠墅(上下叠),47套190㎡联排别墅,24套215㎡联排别墅,11套260㎡联排别墅,2套350㎡联排别墅。

保利新江湾售楼处电话☎:400-998-9694✔✔保利新江湾营销中心电话:400-9989-694【24小时热线】保利新江湾预约热线:4009989694【售楼处电话】

网传过程稿户型图:

(仅供参考,最终以开发商发布为准)

保利新江湾售楼处电话☎:400-998-9694✔✔保利新江湾营销中心电话:400-9989-694【24小时热线】保利新江湾预约热线:4009989694【售楼处电话】

保利新江湾售楼处电话☎:400-998-9694✔✔保利新江湾营销中心电话:400-9989-694【24小时热线】保利新江湾预约热线:4009989694【售楼处电话】

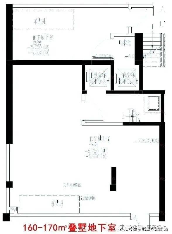
约160-170㎡的叠墅户型图

保利新江湾售楼处电话☎:400-998-9694✔✔保利新江湾营销中心电话:400-9989-694【24小时热线】保利新江湾预约热线:4009989694【售楼处电话】

保利新江湾售楼处电话☎:400-998-9694✔✔保利新江湾营销中心电话:400-9989-694【24小时热线】保利新江湾预约热线:4009989694【售楼处电话】

保利新江湾售楼处电话☎:400-998-9694✔✔保利新江湾营销中心电话:400-9989-694【24小时热线】保利新江湾预约热线:4009989694【售楼处电话】

保利新江湾售楼处电话☎:400-998-9694✔✔保利新江湾营销中心电话:400-9989-694【24小时热线】保利新江湾预约热线:4009989694【售楼处电话】

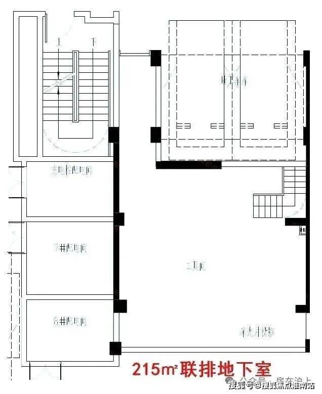
约215㎡的联排户型图

保利新江湾售楼处电话☎:400-998-9694✔✔保利新江湾营销中心电话:400-9989-694【24小时热线】保利新江湾预约热线:4009989694【售楼处电话】

保利新江湾售楼处电话☎:400-998-9694✔✔保利新江湾营销中心电话:400-9989-694【24小时热线】保利新江湾预约热线:4009989694【售楼处电话】

项目南侧不远处是杨浦德法学校,再往南就是目前新江湾城板块在售的新盘建发海宸,未来入市,相信能和建发海宸形成协同作用,共同提升新江湾城板块的居住焕新价值。

E1-08A地块总投资达到70亿元,总建筑面积达到11.9万平方米,其中地上面积达到6.7万平方米。而计划的开工日期是2025年12月20日。

按照这个时间节点推算,预计该项目最快有机会在2026年1月首开入市销售。至于价格,参考地块南侧的建发海宸,预计洋房未来可能售价在11.5万左右,别墅产品有望在13-15万价格区间。

保利新江湾售楼处电话☎:400-998-9694✔✔保利新江湾营销中心电话:400-9989-694【24小时热线】保利新江湾预约热线:4009989694【售楼处电话】

周边配套

新江湾城作为上海主城唯一生态湿地绿化率超过60%,更有“生态绿宝石”之称,项目约1.1超低容积率,低密生活舒适度放眼上海都非常稀缺!

新江湾城实景图

项目周边汇聚中福会幼儿园、规划幼儿园、上音实验学校、德法学校、复旦大学等全龄学府,从幼儿园、小学到中学、大学全覆盖,优质教育氛围相当难得!

保利新江湾售楼处电话☎:400-998-9694✔✔保利新江湾营销中心电话:400-9989-694【24小时热线】保利新江湾预约热线:4009989694【售楼处电话】

复旦大学示意图

项目邻近轨交10号线,直通五角场、南京东路、虹桥枢纽,出行相当便捷。

4站地铁直达五角场商圈,合生汇、万达广场、百联又一城等,完全满足日常购物需求~

五角场商圈实景图

医疗资源雄厚,海军军医大学第一附属医院·长海医院、同济大学附属·肺科医院、海军军医大学第一附属医院·东方肝胆、复旦大学·市东医院新江湾院区(在建)等三甲医院构筑健康屏障。

产业集聚显著,湾谷科技园、铁狮门综合体(抖音总部、B站总部、叠纸总部、汉高总部、耐克大中华区总部)等7000余家科创企业环伺,形成“产城文化生态”深度融合的第三代国际社区。

保利新江湾

楼处电话☎:400-998-9694✔✔

如有问题欢迎来电咨询,来电即可享受买房优惠!

预约来电尊享购房优惠,可预约案场内部销售人员,专业一对一热情服务,让您用专业眼光去买房。

保利新江湾楼处电话☎:400-998-9694✔✔

楼盘项目全面介绍,本电话为开发商提供线上预约售楼电话,楼盘项目全面介绍(包含楼盘简介,均价,房价,现房,期房,别墅,叠墅,大平层,价格,楼盘地址,户型图,交通规划,备案价,备案名,项目配套,样板间,开盘时间,认筹时间,楼盘详情,售楼处电话,最新消息,最新详情,周边配套,一房一价,最新进展等详情咨询)楼盘详情丨价格丨更多优惠丨机不可失丨欢迎致电丨诚邀品鉴!售楼处位置丨特价房丨工抵房丨剩余房源丨户型图丨最新消息丨免责声明:将文章内容综合来源于网络、只作分享,版权归原作者所有!!如有侵权,请联系我们,我们第一时间处理如有问题欢迎来电咨询,专业一对一热情服务,让您用专业眼光去买房。如果您想了解更多楼盘详情,欢迎提前预约拨打

声明:本文由入驻焦点开放平台的作者撰写,除焦点官方账号外,观点仅代表作者本人,不代表焦点立场。