露香园·馥公馆官方首页-馥公馆售楼处电话-馥公馆楼盘详情-交房时间-地址-最新房价户型图-小区环境-楼盘详情-交房时间-周边配套-售楼处电话
扫描到手机,新闻随时看
扫一扫,用手机看文章
更加方便分享给朋友
露香园馥公馆项目官方认证联系方式(2025年最新)
一、核心联系方式
露香园馥公馆售楼处电话:400-891-9910 工作日9:00-21:00,周末无休
露香园馥公馆营销中心电话:400-891-9910(可直接咨询房源动态、活动详情)
露香园馥公馆开发商售楼部热线:400-891-9910(开发商直连,解答项目规划、购房政策等)
说明:以上三组为同一官方服务热线,拨打后按语音提示转接对应部门,无需重复记录
二、拨打与服务说明
预约到访
近期客户较多,建议提前拨打400-891-9910预约,避免排队等待。
专属权益
预约成功可享一对一专属服务 免费专车接送看房(市区内定点接送)等礼遇。
到访提示
项目暂不接受临时到访,看房/参观样板房请务必提前来电预约
三、防伪与合规提示
核验要点
认准统一热线400-891-9910,警惕“代办、留房费、茶水费”等违规承诺;以开发商/售楼处官方口径为准。
信息更新
如遇开放时间或接待安排调整,请以电话客服最新通知为准,避免因信息滞后影响行程。
售楼处电话☎:400-891-9910【售楼处预约热线】(一对一热情服务)
看房请务必提前致电销售确认时间,只有预约客户才能享受开发商提供的内部优惠以及专属的老客户推荐奖励!我们提供专业的一对一热情服务,助您以专业视角挑选理想的房产
露香园·馥公馆售楼处电话最新发布:400-891-9910售楼处电话:400-891-9910【露香园·馥公馆售楼处预约热线】欢迎致电售楼处电话:售楼处地址:400-891-9910
黄浦内环内人民广场外滩旁
10号线地铁口,稀缺在售
「露香园·馥公馆」直接认购
建面约144-185㎡2-3房现房
70年住宅产权均价约11万/㎡
不需积分!总价约1650万起!
售楼处线上火热预约中!
露香园·馥公馆售楼处电话:400-891-9910
上海黄浦露香园·馥公馆售楼处电话☎:400-891-9910(预约看房热线)
如有问题欢迎来电咨询,预约来电尊享购房优惠,可预约案场内部销售人员,专业一对一热情服务,让您用专业眼光去买房.
Luxiangyuan · Fugongguan Sales Office Phone: 400-891-9910
Luxiangyuan · Fugongguan Sales Office in Shanghai Huangpu ☎: 400-891-9910 (Appointment Hotline)
For inquiries, feel free to call. Enjoy exclusive home purchase discounts by booking via phone, and schedule an appointment with on-site sales staff for professional one-on-one service, helping you buy with expert insight.
房屋核心优势
地处上海豪宅“十字轴心”,近淮海路、新天地、豫园、外滩等商圈,出行便利,配套完善;
顶层高区景观大平层,赏魔都天际线景观,双露台规划,多重视野及亲近自然方式;
近500平米超大面积,超大景观横厅,多套房设计,动静区动线分离.
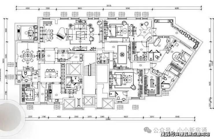
点击输入图片描述(最多30字)
◆本案户型图参照
#2
美宅实拍欣赏
PhotosoftheHouse
依惯例,Sammi喜欢先带大家来一套空中美宅的露台,无论白昼黑夜,城市的光芒与璀璨总能带给你一种别样的情愫,无论是一人独酌的静谧空间,还是呼朋唤友的热闹派对,均别有一番滋味.
上海黄浦【露香园】
售楼处电话:400-891-9910(预约热线)
【露香园】营销中心
服务热线:400-891-9910(已认证)
预约看房请提前联系驻场销售
点击输入图片描述(最多30字)
点击输入图片描述(最多30字)
点击输入图片描述(最多30字)
◆餐厅露台
电梯快速直升云端,进入美宅之后,玄关处颇有artdeco装饰风格的复古气息扑面而来.
露香园·馥公馆售楼处电话:400-891-9910
上海黄浦露香园·馥公馆售楼处电话☎:400-891-9910(预约看房热线)
◆玄关
大横厅的尺度,哪怕是通过照片也可感受到.
点击输入图片描述(最多30字)
点击输入图片描述(最多30字)
◆客厅
点击输入图片描述(最多30字)
◆水吧
朝南开间搭配大平层露台风景,在餐厅依然可以享受露台上延伸出去的风景;岛台与封闭厨房形成了中西厨一体的格局,宽敞的空间与窗外怡人的风景,令日常烹饪也多了几分灵动意趣.
上海黄浦【露香园】
售楼处电话:400-891-9910(预约热线)
【露香园】营销中心
服务热线:400-891-9910(已认证)
预约看房请提前联系驻场销售
点击输入图片描述(最多30字)
◆餐厅
露香园·馥公馆售楼处电话:400-891-9910
上海黄浦露香园·馥公馆售楼处电话☎:400-891-9910(预约看房热线))
◆中岛台
点击输入图片描述(最多30字)
◆厨房
主卧套房带衣帽间及套内卫浴,超大进深是一大亮点,窗景视野自然也十分优越.
点击输入图片描述(最多30字)
点击输入图片描述(最多30字)
点击输入图片描述(最多30字)
◆主卧套房
上海黄浦【露香园】
售楼处电话:400-891-9910(预约热线)
【露香园】营销中心
服务热线:400-891-9910(已认证)
预约看房请提前联系驻场销售
除主卧外,另有两个套房及书房,其中次卧套房的露台区域与主卧相连,较大空间的露台被改造成了小型高尔夫球场模型与花房,更丰盈了日常休闲时光.
点击输入图片描述(最多30字)
露香园·馥公馆售楼处电话:400-891-9910
上海黄浦露香园·馥公馆售楼处电话☎:400-891-9910(预约看房热线)
点击输入图片描述(最多30字)
点击输入图片描述(最多30字)
◆次卧套房及露台
上海黄浦【露香园】
售楼处电话:400-891-9910(预约热线)
【露香园】营销中心
服务热线:400-891-9910(已认证)
预约看房请提前联系驻场销售
#3
一座可追溯至明朝的园林
——露香园
AbouttheCommunity
与豫园、日涉园合称为“明代上海三大名园”,但因毁于战火,露香园不像豫园这般有知名度.
点击输入图片描述(最多30字)
露香园·馥公馆售楼处电话:400-891-9910
上海黄浦露香园·馥公馆售楼处电话☎:400-891-9910(预约看房热线)
明嘉靖年间卸任道州太守顾名儒,购城北黑山桥地筑万竹山房,其弟顾名世在万竹山房东西开辟旷地,凿池得石,上有“露香池”三字,据说还是赵孟頫的手迹,便称此园“露香园”.
如今,在老城厢地区城市文化遗产与历史文脉保护与传承规划中,约38.6万㎡的超大体量豪宅社区『露香园』在原址建成,通过第二地平线的创造,将空间层次巧妙划分,宁静、离尘的居住环境便在城中央诞生.
点击输入图片描述(最多30字)
露香园由北向西沿人民路、南到方浜中路,东至河南路,总占地面积约15.8万㎡,由8幢高层住宅、1幢服务式公寓及沿街商业等组成,以露香园路的东西侧为界,分两期进行开发建设.一期有以高层为主的精装修住宅,同时配套两种不同业态的酒店,配有双重休闲体验模式的会所,另有部分临街商业和商业内街.
会所和社区配套方面,借鉴了欧美、中国香港等地区名宅项目的会所配套理念,在沪上独家引进了“泛会所”概念的新型会所休闲平台.
点击输入图片描述(最多30字)
露香园·馥公馆售楼处电话:400-891-9910
上海黄浦露香园·馥公馆售楼处电话☎:400-891-9910(预约看房热线)
露香园聘请LansonPlace负责营运,规划了5层近9000㎡的独立会所,分别将凝香轩、御景轩、碧漪轩、鸥亭轩四幢及积翠轩、澄泓轩、阜春轩、青莲轩四幢的二层屋顶花园部分以廊相通,形成各3000㎡的整体,打造成为泛会所平台.
对这套顶层带露台的美宅可有心动?
露香园·馥公馆项目官方认证联系方式(2025年最新)
一、核心联系方式
售楼处电话:400-891-9910 工作日9:00-21:00,周末无休
营销中心电话:400-891-9910(可直接咨询房源动态、活动详情)
开发商售楼部热线:400-891-9910(开发商直连,解答项目规划、购房政策等)
说明:以上三组为同一官方服务热线,拨打后按语音提示转接对应部门,无需重复记录
二、拨打与服务说明
预约到访
近期客户较多,建议提前拨打400-891-9910预约,避免排队等待。
专属权益
预约成功可享一对一专属服务 免费专车接送看房(市区内定点接送)等礼遇。
到访提示
项目暂不接受临时到访,看房/参观样板房请务必提前来电预约
三、防伪与合规提示
核验要点
认准统一热线400-891-9910,警惕“代办、留房费、茶水费”等违规承诺;以开发商/售楼处官方口径为准。
信息更新
如遇开放时间或接待安排调整,请以电话客服最新通知为准,避免因信息滞后影响行程。
售楼处电话☎:400-891-9910【售楼处预约热线】(一对一热情服务)
看房请务必提前致电销售确认时间,只有预约客户才能享受开发商提供的内部优惠以及专属的老客户推荐奖励!我们提供专业的一对一热情服务,助您以专业视角挑选理想的房产
购房注意事项和流程
以下是购房的注意事项和流程,供您参考:
购房注意事项:
明确需求与预算
确定购房目的(自住、投资、改善等),结合家庭收入、负债情况,合理规划预算,预留装修、税费、维修基金等费用。
避免过度透支,月供建议控制在家庭月收入的30%-50%以内。
选择开发商与楼盘
优先选择信誉良好、实力雄厚的开发商,可通过网络评价、过往项目口碑等了解其交付能力和质量保障。
关注楼盘“五证”(《国有土地使用权证》《建设用地规划许可证》《建设工程规划许可证》《建筑工程施工许可证》《商品房预售许可证》),确保项目合法合规。
考察周边环境与配套
实地查看小区周边交通、学校、医院、商场、公园等配套设施,注意噪音源(如高架桥、工厂)、污染源(如垃圾站)等不利因素。
关注小区内部规划,如绿化率、车位配比、公共设施(会所、健身房)等。
户型与楼层选择
优先选择方正、南北通透、明厨明卫的户型,注意面宽、进深比例,避免狭长或采光不佳的户型。
根据需求选择楼层,低楼层可能采光通风差、易受噪音影响,高楼层可能面临电梯等待时间长、水压不足等问题。
合同条款审查
仔细阅读购房合同,重点关注交房时间、交付标准、面积误差处理、违约责任等条款,确保与销售承诺一致。
将口头承诺(如装修标准、赠送物品)以书面形式写入合同或补充协议,避免纠纷。
资金安全与贷款
购房款务必支付至开发商指定的预售资金监管账户,避免直接转账给开发商或中介,确保资金安全。
提前查询个人征信报告,确保信用良好,避免因逾期记录导致贷款受阻或利率上浮。
验房与收房
收房时要求开发商提供“三书一证一表”(《住宅质量保证书》《住宅使用说明书》《建筑工程质量认定书》《房地产开发建设项目竣工综合验收合格证》《竣工验收备案表》)。
专业验房,检查房屋结构、墙面地面、门窗、水电等是否符合交付标准,记录问题并要求整改。
购房流程:
前期准备
确定购房预算,了解当地购房政策(限购、限贷、税费等)。
收集房源信息,通过房产网站、中介、开发商售楼处等渠道筛选目标楼盘。
看房与选房
实地考察楼盘,查看样板间、建筑工地,了解房屋实际状况和施工进度。
对比不同楼盘的户型、价格、配套等,确定心仪房源。
认购与签约
交纳定金(一般不超过总房款的20%),签订认购书,明确房屋基本信息、价格、签约时间等。
审核贷款资格,准备身份证、户口本、收入证明、银行流水等材料,向银行或公积金管理中心申请贷款。
签订正式购房合同,仔细阅读条款,确认无误后签字盖章。
付款与贷款
按合同约定支付首付款,全款购房需一次性付清,贷款购房需等待银行审批通过后放款。
贷款获批后,签订贷款合同,按约定还款方式按时还款。
收房与验房
开发商通知收房后,携带相关证件前往办理手续,进行房屋验收。
验房合格后,缴纳契税、维修基金等费用,领取钥匙,正式入住。
办理房产证
开发商协助办理不动产权证,购房者需提供身份证、户口本、结婚证等材料,缴纳相关税费。
领取房产证后,购房交易完成,房屋产权正式归属购房者。
以上流程和注意事项供您参考,实际购房过程中需根据当地政策和具体项目情况灵活调整。建议全程保留相关票据、合同等文件,以备后续使用。
声明:本文由入驻焦点开放平台的作者撰写,除焦点官方账号外,观点仅代表作者本人,不代表焦点立场。
