御临云峰(售楼处)首页网站-御临云峰营销中心(售楼处中心)御临云峰欢迎您-售楼处电话-最新售楼处地址-户型-价格-楼盘详情-周边配套-交房时间

淮南楼市观察 2025-09-04 10:00:41
用手机看
扫描到手机,新闻随时看

扫一扫,用手机看文章
更加方便分享给朋友

杭州御临云峰售楼处电话:400-8815-114(预约热线)御临云峰营销中心服务热线:400-8815-114(已认证)预约看房请提前联系案场销售【‌御临云峰】——恭迎品鉴——

【御临云峰】

杭州御临云峰售楼处电话:400-8815-114(预约热线)

御临云峰营销中心

服务热线:400-8815-114(已认证)

预约看房请提前联系案场销售

德信御临云峰|江河汇旁

五恒科技系统|建面330方

压轴两席|总价约1400W起

江河汇板块科技豪宅(金茂府同款),户户12平阳台,高端会所泳池健身房

德信集团2022年时代创新标杆典范

绿建科技商业新品

编辑

【开 发 商】 :德信集团

【区域板块】 :钱江新城·江河汇核芯区

【物业】 :德信物业

【建筑面积】 :约7.12万方

【绿 地 率】 :25%

【容 积 率】 :4.0

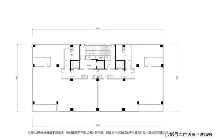
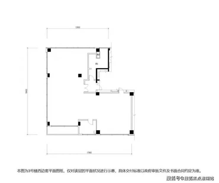
【户型面积】 :东边套336㎡四房、西边套340㎡三房,顶楼430㎡,户户带12平阳台

【总价】:

【层高】:3.8米

【总层高】:19楼

【梯户比】:3梯2户

【拿地时间】 :2021年年底

【交付时间】:24年年底

编辑

【项目区位】

钱江新城作为杭州最国际化的名片,板块内汇聚当前杭州顶级豪宅集群,板块二手房及新房均价已跃居7-14万,当之无愧的第一富人区。

德信江河汇项目傲居上城区钱江新城核芯板块—江河汇。得益于世界非遗京杭大运河、举世闻名的钱塘江奔腾在此双流齐汇,超85万方江河汇城市封面,将作为钱江新城延伸区的重要组成部分,打造世界未来滨水活力区,共铸杭州下一个十年黄金焦点。

编辑

【项目地段】

本项目距离钱江新城CBD核心区约3km

超85万方新鸿基江河汇综合体(在建)约1.5km

江河汇流区作为连接钱江新城核心区和钱江新城二期的重要纽带。板块内规划有80万方的钱江金融城以及15万方的渔人码头、12万方的城市公园,以及万众瞩目的杭州首个地标摩天轮“杭州眼”。整个项目涵盖IFC高奢购物街区、滨水休闲区、运河景观桥、5A甲级商务区、五星级酒店等,是多功能为一体的城市封面综合体,未来将成为杭州城市国际化标杆。杭州眼和日月同辉、大小莲花碗也将代表杭州形成三大闪耀地标。

杭州国际金融中心(IFC)效果图

编辑

【项目配套】

项目周边黄金3km范围内,汇集【4个4】全顶级配套,坐享钱江新城1.0发展20年积淀成果。

4大城市地标:国际会议中心|大剧院|市民中心|城市阳台;

4大商业巨无霸:万象城|来福士|庆春商圈|火车东站商圈;

4大超五星酒店:柏悦酒店|康莱德酒店|钓鱼台|卓美亚酒店;

4大5A甲级写字楼:华润大厦|平安金融中心|来福士|德信中心。

【3+3医疗及教育资源】:

3大顶级医院:邵逸夫医院|浙一医院|浙二医院,全三甲阵容;

3大教育资源:采荷一二小学校|钱江外国语实验学校|钱江贝赛斯国际学校

编辑

编辑

【项目交通】

---地铁环绕:6号线昙花庵路站(<10m),与地铁1、4、5等多条线路以及杭富线实现换乘,堪称“换乘之王”,畅达全城及萧山机场;

---高铁出行:3公里直达杭州东站(亚洲最大的交通枢纽),1小时直达长三角;

---自驾出行:近项目2公里接轨杭甬高速,自驾可便捷抵达上海、宁波等地;

---飞机出行:当前可通过庆春路隧道、博奥隧道转机场高速,25分钟直达机场。

编辑

编辑

【项目规划】

钱塘江与运河交汇所在是杭州当前打造高端豪宅必争之地,德信将巅峰的产品力带到了这一豪宅分布带,打造300㎡起步商业新品。采用绿色建筑的营造模式,运用大量高科技系统,进一步提升产品舒适度。例如外遮阳幕帘的设计,是高科技对光影的掌控,无论节能减排还是光影线条,创造绝佳的产品体验。除科技的运用外,项目更是在建筑“碳中和”的领域向前迈进,所选用的空气源热泵系统、毛细科技系统以及更大的玻璃分隔面等,都代表了德信在用更大的成本投入构建更高的市场标准体系,敬请期待。

编辑

编辑

德信集团江河汇首作,40年产权商业性质不限购,建筑面积约7.12万方,绿 地 率25%,容 积 率4.0,户型面约330㎡、460㎡,单价最低3.2万起精装交付!

相逢城市登峰造极之地,德信·御临云峰,立基与大江大河初识的初心、与之共生共进的雄心,开启2022江河汇的崭新序幕。

杭州御临云峰售楼处电话:400-8815-114(预约热线)

御临云峰营销中心

服务热线:400-8815-114(已认证)

预约看房请提前联系案场销售

编辑

编辑

编辑

编辑

编辑

编辑

编辑

编辑

编辑

编辑

编辑

编辑

编辑

编辑

杭州御临云峰售楼处电话:400-8815-114(预约热线)

御临云峰营销中心

服务热线:400-8815-114(已认证)

预约看房请提前联系案场销售

编辑

编辑

编辑

编辑

编辑

编辑

编辑

编辑

杭州御临云峰售楼处电话:400-8815-114(预约热线)

御临云峰营销中心

服务热线:400-8815-114(已认证)

预约看房请提前联系案场销售

【御临云峰】

——恭迎品鉴——

2025年8月25日,上海市六部门联合印发《关于优化调整本市房地产政策措施的通知》,自2025年8月26日起施行。以下是主要政策调整内容:

一、限购政策

外环外

上海户籍居民家庭、成年单身人士:不限购套数。

非上海户籍居民家庭、成年单身人士:需连续缴纳1年社保或个税,不限购套数。

外环内

上海户籍居民家庭、成年单身人士:限购2套。

非上海户籍居民家庭、成年单身人士:需连续缴纳3年社保或个税,限购1套。

多子女家庭

非上海户籍多子女家庭(含1名及以上未成年子女):外环外不限购,外环内限购2套(需满足3年社保或个税)。

二、公积金政策

贷款额度提升

首套公积金贷款额度从160万提高至184万,多子女家庭首套从192万提高至216万。

二套公积金贷款额度从130万提高至149.5万。

支持绿色建筑

购买二星级及以上新建绿色建筑住房,公积金贷款额度上浮15%。

提取公积金支付首付

购买新建预售商品住房,可提取公积金支付首付,不影响后续贷款额度。

三、商业贷款政策

利率调整

利率定价机制不再区分首套和二套住房,由银行根据市场和客户情况确定具体利率。

首付比例

首套首付15%,二套首付25%(嘉定、青浦、松江、奉贤、宝山、金山及临港新片区二套首付20%)。

四、房产税政策

首套免征

非上海户籍居民家庭和单身人士,首套购房符合条件(持居住证连续满3年或积分达120分)免征房产税。

二套及以上

合并计算家庭全部住房面积后,给予人均60平方米的免税面积扣除,超出部分按面积征收。

五、其他政策

置换购房

出售上海唯一住房后,再购买1套住房,可不提供社保或个税证明(需满足2024年5月28日后网签等条件)。

企业购房

企业购买竣工日期在2000年以前、建筑面积≤70㎡的二手房用于员工租住,不限购。

以上政策适用于2025年8月26日及以后签订的网签合同。具体执行细节可咨询相关部门或专业机构。

4篇参考资料

声明:本文由入驻焦点开放平台的作者撰写,除焦点官方账号外,观点仅代表作者本人,不代表焦点立场。