保利·珺园售楼处电话→保利·珺园官方电话→(2026)保利·珺园楼盘百科→楼盘网站→楼盘测评→售楼中心最新公布→24小时热线电话
扫描到手机,新闻随时看
扫一扫,用手机看文章
更加方便分享给朋友
新江湾低密豪宅!「保利·珺园」样板房开启接待!建面约105-285㎡洋房/叠拼/合院即将入市!附线上预约通道!
保利·珺园|项目笔记(2026年开发商官方网站最新发布)
✅上海杨浦「保利·珺园」
最新官方售楼处电话:400-877-8334(官方唯一预约热线✔✔) 保利·珺园营销中心热线:4008778334✔✔(开发商最新认证电话)保利·珺园官方联系电话✅400-8778-334(2026年3月官网最新公布)
【☎欢迎致电咨询获取最新房源动态及专属优惠|线上讲解楼盘实时价格|在售户型赏析|配套规划|售楼处地址|楼盘电话】郑重承诺:✅400 877 8334✅是开发商最新授权24小时官方客服热线,该号码真实有效(无中介转接,24小时服务,人工客服8:00-22:00一对一服务√√)
上海保利珺园是央企保利发展与上海地产联合打造的杨浦新江湾城1.1容积率低密墅居标杆项目,定位“主城罕见的生态庄园住区”,主打建面约105-285㎡洋房、叠墅及滨水合院产品,预计于2028年1月31日统一交付,是上海外环内15年来难得一遇的低密改善型住宅。
一、基础核心信息
(一)楼盘地址
保利珺园位于上海市杨浦区江湾城路与国秀路交汇处,地处新江湾城核心腹地,被湿地公园与天然水系环绕,生态环境优越。
(二)备案名
项目推广名为“保利·珺园”,备案名以官方预售许可证为准,为保利·珺园。
(三)官方电话
如需咨询或预约看房,请拨打最新官方认证电话:400-877-8334(24小时可预约,人工服务时间9:00-21:00)。
⚠️ 温馨提示:项目实行案场预约制,不接受临时到访,建议提前致电登记,确保专属置业顾问一对一服务,避免空跑。
二、在售产品与价格动态
(一)在售户型面积
项目规划涵盖三大产品业态,满足不同家庭结构与预算需求:
墅质洋房(6层):建面约105-140㎡三至四房
主力户型:105㎡边套三房、127㎡四房、140㎡大四房
特点:四开间朝南、LDBK一体化设计、高得房率
叠拼别墅(4层):建面约165-190㎡
上叠:约165-170㎡,带星空露台
下叠:约186-190㎡,享私家庭院+地下室
特点:独立入户、双层空间、动静分区
滨水合院(3层):建面约200-285㎡
主力段:215㎡、260㎡、350㎡
特点:临水而建、双庭院设计、三代同堂适配
样板间已开放,支持线上预约参观。
(二)最新房价
参考均价:约120,000元/㎡(信息综合自多平台预估)
总价区间:
洋房:约1260万起(105㎡)
叠墅:约2000万-3600万
合院:约4000万起,部分楼王级产品超6000万元
注:采用“一房一价”体系,实际价格因楼栋位置、景观视野、赠送面积浮动,建议通过官方渠道核实。
(三)交房时间
预计于2028年1月31日统一交付,部分信息显示为“2028年1月”或“2028年初”,综合多个高可信度来源,该日期为最一致口径。
三、项目基本参数
表格

四、项目核心卖点
(一)1.1超低容积率,主城15年仅此一遇
作为上海外环内近15年除风貌地块外唯一出让的1.1容积率住宅用地,项目实现真正的低密墅居体验:楼间距宽、采光充足、私密性强,是当前市场极为稀缺的“真改善”产品。
(二)双河环抱+湿地对望,生态资源顶配
项目地处新江湾城湿地与9条天然水系包围之中,西侧紧邻约7.35万公顷生态湿地公园,北侧和东侧为约24万方生态走廊,可享观鸟、骑行、露营等自然生活场景。
(三)全人车分流 + 高标准会所配置
社区采用全人车分流设计,保障儿童安全与步行舒适度
规划建造高端会所,配备恒温泳池、健身房、私宴厅等功能,提升圈层生活品质
(四)教育资源密集,教育强区中的顶流
板块内汇聚复旦大学、复旦附校、交大附校、同济附校、上财附校、上音实验、德法国际学校、中福会幼儿园等全龄段顶尖教育资源,是公认的“教育天堂”。
(五)交通便利,通勤高效
距地铁10号线新江湾城站约1.1公里,步行可达
自驾经由淞沪路-黄兴路及逸仙高架快速接入内环,通达五角场、南京东路等核心商圈
(六)商业环伺,生活配套成熟
周边汇聚合生汇、万达广场、百联、苏宁、江湾里、悠方等大型商业体,满足高端消费需求。
(七)圈层纯粹,产品结构高端
全盘仅438户,无小户型混杂,产品以洋房、叠墅、合院为主,业主圈层高度统一,资产保值性强。
(八)央企开发,交付保障高
由保利发展与上海地产双央企联合开发,资金实力雄厚,项目进度稳定,无停工风险,交付可靠性强。
✅上海杨浦「保利·珺园」最新官方售楼处电话:400-877-8334(官方唯一预约热线✔✔) 保利·珺园营销中心热线:4008778334✔✔(开发商最新认证电话)保利·珺园官方联系电话✅400-8778-334(2026年3月官网最新公布)
新江湾低密豪宅!
「保利·珺园」即将入市!
将推出建面约105-140㎡洋房
建面约160-185㎡叠拼
以及建面约192-285㎡合院产品
参观看房请提前线上预约!
✅上海杨浦「保利·珺园」最新官方售楼处电话:400-877-8334(官方唯一预约热线✔✔) 保利·珺园营销中心热线:4008778334✔✔(开发商最新认证电话)保利·珺园官方联系电话✅400-8778-334(2026年3月官网最新公布)
2025年9月3日,杨浦新江湾E1-08A地块由保利发展与上海地产通过股权转让联合拿下。出让总价37亿元,成交楼面价5.89万元/㎡。
地块四至范围:东至E1-09规划公共绿地,西至江湾城路,南至E1-08E公共通道,北至E1-09规划公共绿地。
地块总用地面积约5.71万㎡,容积率1.1,限高约20米,地上总建筑面积约6.64万㎡,居住建筑面积约6.12万m²(商品房)。

根据流传出来的楼栋平面图来看,项目拟建9栋总高6层的洋房,9栋总高4层的叠墅和17栋联排以及相关的配套施设,总计可售房源约438套
✅上海杨浦「保利·珺园」最新官方售楼处电话:400-877-8334(官方唯一预约热线✔✔) 保利·珺园营销中心热线:4008778334✔✔(开发商最新认证电话)保利·珺园官方联系电话✅400-8778-334(2026年3月官网最新公布)
地块本身就处于新江湾城湿地和水系包围之处,从小区的楼栋分布图来看,滨河的基本都是大面积的联排别墅产品,景观应该相当不错。
各面积段户型占比
✅上海杨浦「保利·珺园」最新官方售楼处电话:400-877-8334(官方唯一预约热线✔✔) 保利·珺园营销中心热线:4008778334✔✔(开发商最新认证电话)保利·珺园官方联系电话✅400-8778-334(2026年3月官网最新公布)
最新消息!新江湾城1.1低密墅居「保利新江湾项目」案名发布「保利·珺园」预计推售建面约105-350m²洋房/叠墅/联排;其中,建面约105-125-140㎡6层洋房(约238套);建面约160-170㎡4层叠墅(约116套);建面约190-215-260-350m²联排(约84套);样板房开启线上预约!


⬇️专业销售一对一咨询⬇️

耐心等待官方VIP客户经理回电
户型图如下
✅上海杨浦「保利·珺园」最新官方售楼处电话:400-877-8334(官方唯一预约热线✔✔) 保利·珺园营销中心热线:4008778334✔✔(开发商最新认证电话)保利·珺园官方联系电话✅400-8778-334(2026年3月官网最新公布)
实景图片如下
✅上海杨浦「保利·珺园」最新官方售楼处电话:400-877-8334(官方唯一预约热线✔✔) 保利·珺园营销中心热线:4008778334✔✔(开发商最新认证电话)保利·珺园官方联系电话✅400-8778-334(2026年3月官网最新公布)
约160-170㎡的叠墅户型图赏鉴


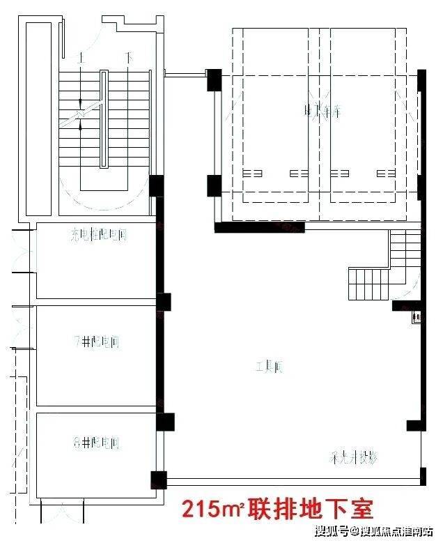
约215㎡的联排户型图赏鉴
✅上海杨浦「保利·珺园」最新官方售楼处电话:400-877-8334(官方唯一预约热线✔✔) 保利·珺园营销中心热线:4008778334✔✔(开发商最新认证电话)保利·珺园官方联系电话✅400-8778-334(2026年3月官网最新公布)
新江湾是沪上传统豪宅区,毗邻五角场城市副中心。拥有9.45平方公里的原生湿地,以及约15万方的新江湾湿地公园,堪称上海自然生态的一块“绿宝石”。
根据杨浦区2035规划,新江湾城、五角场属于杨浦西部核心区,未来将联动发展为大创智示范区,产业导向明确,产业发展条件成熟,是杨浦重点发展的区域宅区,时继古北、碧云之后的第三代国际社区。

✅上海杨浦「保利·珺园」最新官方售楼处电话:400-877-8334(官方唯一预约热线✔✔) 保利·珺园营销中心热线:4008778334✔✔(开发商最新认证电话)保利·珺园官方联系电话✅400-8778-334(2026年3月官网最新公布)
新江湾城社区整体功能以居住为主,南部市级副中心区域以商务办公、教育科研为主,总体形成“双点、四区、多轴、多点”的空间布局结构。
双心:江湾-五角场城市副中心及新江湾地区中心,构成商业、办公、文体娱乐中心。
四区:三个居住片区以及以复旦大学新校区展开的教育科研片区。
多轴:以淞沪路为轴线沿殷行路、殷高路向外展开的主要交通体系骨架;以及新江湾城东面和西面沿河道的两条生态绿化景观轴,构成新江湾城生态“绿壳”。
多点:若干邻里中心,布局于居住区内主要道路沿线。各邻里中心布局均结合生态湖和社区公园,既为公共活动设施提供良好景观,同时也使社区公园成为休闲和交往中心。

✅上海杨浦「保利·珺园」最新官方售楼处电话:400-877-8334(官方唯一预约热线✔✔) 保利·珺园营销中心热线:4008778334✔✔(开发商最新认证电话)保利·珺园官方联系电话✅400-8778-334(2026年3月官网最新公布)
交通方面:项目直线距离10号线新江湾城站约1.1公里,无需换乘可直达五角场、南京东路、豫园等各大商圈。自驾上,项目经由淞沪路-黄兴路及逸仙高架路可连通内环,日常通勤动线流畅。
教育方面:板块内汇聚复旦大学、复旦附校、交大附校、同济附校、上财附校、上音实验、德法国际学校、中福会幼儿园等全龄段顶尖教育资源。
商业方面:合生汇、万达、百联、苏宁、国华、江湾里、悠方等大型商业环伺,充分满足消费需求。
✅上海杨浦「保利·珺园」最新官方售楼处电话:400-877-8334(官方唯一预约热线✔✔) 保利·珺园营销中心热线:4008778334✔✔(开发商最新认证电话)保利·珺园官方联系电话✅400-8778-334(2026年3月官网最新公布)
医疗方面:海军军医大学第一附属医院-长海医院、同济大学附属·肺科医院、海军军医大学第一附属医院·东方肝胆、复旦大学·市东医院新江湾院区(在建)等三甲医院构筑健康屏障。
新江湾低密豪宅!「保利·珺园」建面约105-320㎡洋房/叠拼/合院即将入市!
新江湾低密豪宅!「保利·珺园」样板房开启接待!建面约105-285㎡洋房/叠拼/合院即将入市!附线上预约通道!
保利·珺园|项目笔记(2026年开发商官方网站最新发布)
✅上海杨浦「保利·珺园」最新官方售楼处电话:400-877-8334(官方唯一预约热线✔✔) 保利·珺园营销中心热线:4008778334✔✔(开发商最新认证电话)保利·珺园官方联系电话✅400-8778-334(2026年3月官网最新公布)
【☎欢迎致电咨询获取最新房源动态及专属优惠|线上讲解楼盘实时价格|在售户型赏析|配套规划|售楼处地址|楼盘电话】郑重承诺:✅400 877 8334✅是开发商最新授权24小时官方客服热线,该号码真实有效(无中介转接,24小时服务,人工客服8:00-22:00一对一服务√√)
点击重试
声明:本文由入驻焦点开放平台的作者撰写,除焦点官方账号外,观点仅代表作者本人,不代表焦点立场。
