黄浦高福云境欢迎您|高福云境官网认证电话|高福云境售楼处|高福云境楼盘详情
扫描到手机,新闻随时看
扫一扫,用手机看文章
更加方便分享给朋友
上海黄浦高福云境售楼处电话:400-9678-224欢迎咨询热线电话,黄浦高福云境【24小时预约看房热线】黄浦高福云境售楼处电话:400-9678-224【售楼处电话/地址】黄浦高福云境售楼处电话:400-9678-224【开发商认证】,上海高福云境楼盘详情-上海高福云境售楼部位置-上海高福云境一房一价-上海高福云境户型图-上海高福云境优缺点分析-上海高福云境容积率-上海高福云境环境-配套-学区-第四代住宅-负公摊户型-代密洋房-得房率-全能会所-独立电梯前室-公建化立面-在线选房-遗嘱咨询-项目营销中心,欢迎来电咨询!
上海高福云境营销中心电话:400-9678-224欢迎来电咨询售楼部!上海高福云境售楼部详情-上海高福云境售楼处电话-上海高福云境首页网站-上海高福云境户型-上海高福云境价格-位置-电话-交通地铁-上海新房-上海楼市新政-遗嘱咨询-上海止跌回稳-自住型商品房-住房货款-血拼两限房-直接认购可预约销售人员,专业一对一热情服务,让您用专业眼光去买房。

高福云境因为开发历程太过悠久,前期方案改了又改,按照目前公示的最新控规,将会保留全部石库门建筑,作为独栋及联排别墅,同时兴建一栋150米的超高层豪宅,成为浦西住宅的制高点之一。
地块内现存保护建筑、文物保护点、保留历史建筑、一般历史建筑总计5.28万㎡。其中优秀历史建筑的建筑面积约0.11万平方米,文物保护点约2.49万平方米。
上海黄浦高福云境售楼处电话:400-9678-224欢迎咨询热线电话,黄浦高福云境【24小时预约看房热线】黄浦高福云境售楼处电话:400-9678-224【售楼处电话/地址】黄浦高福云境售楼处电话:400-9678-224【开发商认证】
高福里规划控图:


根据设计方案显示,007-01地块(大)拟建47栋3F多层住宅(包含部分底层商业)、1处幼儿园以及若干社区配套;将打造石库门风貌别墅产品。
007-01地块(小)拟建1栋43F超高层住宅以及若干社区配套,超高层无中小套户型要求,全装修比例为100%。


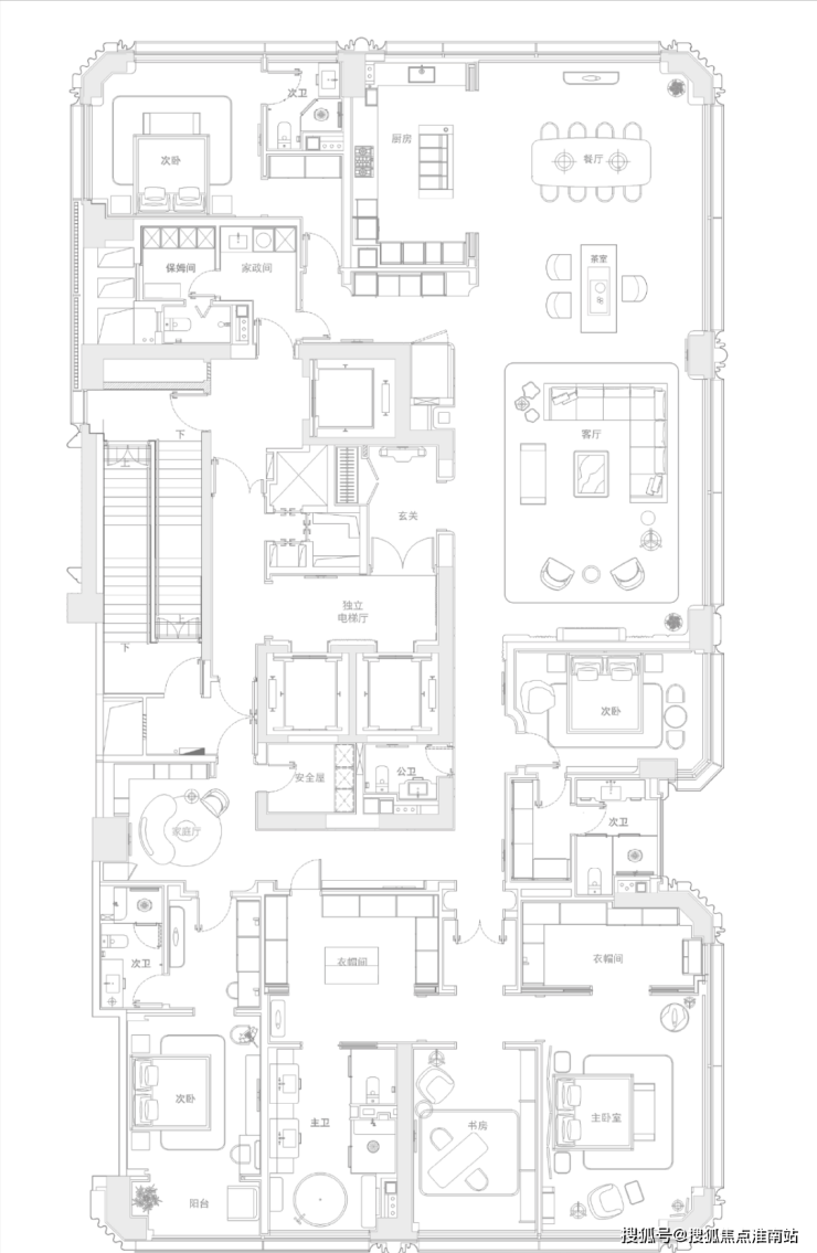
600平户型是6房带4套房,搭配有专属书房,带有男女主人双重衣帽间;
中厨橱柜采用意大利品牌Boffi精选系列,全球首款模块化无把手厨房系统;
全屋卫浴五金采用奢华品牌——THG;
厨房部分采用嘉格纳7件套,包含灶具,油烟机、洗碗机、蒸箱、烤箱、两个冰箱,部分型号采用嘉格纳全球首发的艺境系列(原S400);
上海黄浦高福云境售楼处电话:400-9678-224欢迎咨询热线电话,黄浦高福云境【24小时预约看房热线】黄浦高福云境售楼处电话:400-9678-224【售楼处电话/地址】黄浦高福云境售楼处电话:400-9678-224【开发商认证】
门窗全部采用四面四玻两腔系统,整屋还有全套珍稀木饰面与雕琢奢石。

约600㎡户型是6房带4套房,完整满足了居住在平层的所有功能空间需求。
主卧套房,搭配有专属书房,总体空间接近150㎡,本身就是一间豪华公寓,同时带有男女主人双重衣帽间,是真正能够享受到别墅级的居住尺度。
衣帽间、卫浴间、主卧都是肉眼可见的奢侈。

另一个样板房是约320平方米的中间套,采用两梯两户设计,独立门厅。
约320㎡户型配备了单独带浴室的家政空间,可作为独立保姆间或是独立家政空间。
上海黄浦高福云境售楼处电话:400-9678-224欢迎咨询热线电话,黄浦高福云境【24小时预约看房热线】黄浦高福云境售楼处电话:400-9678-224【售楼处电话/地址】黄浦高福云境售楼处电话:400-9678-224【开发商认证】
高福云境的室内设计师1508 London打造了许多国际知名的豪宅作品,包括海德公园一号(伦敦)、伦敦骑士桥豪华公寓、 迪拜文华东方酒店、The OWO私人住宅(伦敦)。


物业地址:巨鹿路99弄
开发商:万科集团与华州集团(华州君庭开发商)
占地面积:3.73万方
建筑面积:16万(风貌+超高层)
容积率:2.66
绿化率:15%
物业公司:万科物业
物业费:暂定
总户:126套超高层+144套风貌
车位:1:3
层高:3.5米
总高:42F
户型面积段:276.289.302.316.600平米
预计交付时间:2028年年底
高层会所:1-2层,风貌别墅1000平米地下会所
目前售楼处已开放接待 动态验资3000万,样板房已开放
上海黄浦高福云境售楼处电话:400-9678-224欢迎咨询热线电话,黄浦高福云境【24小时预约看房热线】黄浦高福云境售楼处电话:400-9678-224【售楼处电话/地址】黄浦高福云境售楼处电话:400-9678-224【开发商认证】
项目地段
百年衡复 纯正风貌梧桐区
GAOFULI
如果黄浦是上海的城心,那梧桐树下的“巨富长”就是城心中的城心,是老上海人心中的白月光。静安寺、南京西路、淮海中路、人民广场、新天地、环贸iapm商场、恒隆广场……等知名商圈环伺左右,是真正的步行范围、自行车范围内汇聚一城商业精华。
高福里地块,东至延中公园、南至长乐路、西至瑞金一路、北至巨鹿路,是曾经的“老卢湾”板块。此地块东邻延中公园的绿意盎然,南接长乐路的繁华热闹,西靠瑞金一路的历史沉淀,北依巨鹿路的文化韵味。
上海黄浦高福云境售楼处电话:400-9678-224欢迎咨询热线电话,黄浦高福云境【24小时预约看房热线】黄浦高福云境售楼处电话:400-9678-224【售楼处电话/地址】黄浦高福云境售楼处电话:400-9678-224【开发商认证】
这里不仅是百年梧桐区的珍贵所在,更是20世纪西方设计精髓与东方文化交融的高级住宅区。尽管现代都市可以再造无数繁华之地,但高福里所承载的那一段百年人文历史却是无法复制的独特魅力。
其所在的板块“淮海中路-新天地地区”,承载着黄浦区2035规划核芯,着力打造“高雅时尚、具有国际影响力的复合功能都心区”。
漫步梧桐浓荫下的街道,百年前的摩登依然不绝于耳,从历史中转身,更崭新的、更国际的生活方式将在这里继往开来。
项目产品
大师云集 百年奢华云端大宅
GAOFULI
【高福里】凝聚全球大师级设计团队,塑造超越时间的作品,以世界顶尖技术,呈现独一无二的极致舒适。
献给上海的地标之作,已荣获「2024全球建筑设计大奖(GADA)金奖」、「2024国际住宅建筑大奖(TAC)Winner大奖」,并入围多个国际奖项,备受国际设计界瞩目。
通过全球尖端技术与百年隐蔽工程,带来极致舒适、经典耐用的生活体验,在城市中心,塑造一座具有永恒价值的地标居所。
项目配套
城芯之上 资源荟萃 摩登生活
项目被南京西路与淮海路两大繁华商圈所包围,又恰好处在静安寺+南京西路+新天地+陕西南路四大CBD商圈的中芯,是上海公认的“上只角”位置。
上海黄浦高福云境售楼处电话:400-9678-224欢迎咨询热线电话,黄浦高福云境【24小时预约看房热线】黄浦高福云境售楼处电话:400-9678-224【售楼处电话/地址】黄浦高福云境售楼处电话:400-9678-224【开发商认证】
另外交通方面:轨交2/12/13号线南京西路站,自驾有南北高架、内环高架、延安高架等交通快速路,大范围内有1、7、10、12、13五条轨交环伺,出行十分便利。
医疗配套有上海市交通大学医学院附属瑞金医院、上海市第壹妇婴保健院、上海邮电医院、徐汇区中芯医院等多个医疗配套。
项目地段位置优越,综合配套丰富,高福里150米住宅+石库门独栋+联排别墅,值得期待!
最近地铁站是地铁13号线淮海中路站。
如果说上海的繁华在外滩、陆家嘴和南京路,那么它风情与市井的另一面,就在巨鹿路、富民路和长乐路。
地块的北侧是巨鹿路,一街之隔是延中广场,环境不错。走几步还能见到隐约在其中的一栋花园洋房,这栋洋房别院据传是原杜月笙的公馆,非常有旧上海的调调和韵味。
上海黄浦高福云境售楼处电话:400-9678-224欢迎咨询热线电话,黄浦高福云境【24小时预约看房热线】黄浦高福云境售楼处电话:400-9678-224【售楼处电话/地址】黄浦高福云境售楼处电话:400-9678-224【开发商认证】
南侧的长乐路是一条有人物,有故事,有历史的路。则是向明中学国际部、以及上海社会科学院的校舍,这里前身是震旦女子文理学院。
老震旦楼1952年划给社会科学院。此楼由法国建筑设计师赉安设计,为1928年建成的"圣心女子修道院"主楼,是一幢坐北朝南的三层钢筋混凝土建筑。
靠近成都北路一侧是成巨地下停车场。
上海黄浦高福云境售楼处电话:400-9678-224欢迎咨询热线电话,黄浦高福云境【24小时预约看房热线】黄浦高福云境售楼处电话:400-9678-224【售楼处电话/地址】黄浦高福云境售楼处电话:400-9678-224【开发商认证】,上海高福云境楼盘详情-上海高福云境售楼部位置-上海高福云境一房一价-上海高福云境户型图-上海高福云境优缺点分析-上海高福云境容积率-上海高福云境环境-配套-学区-第四代住宅-负公摊户型-代密洋房-得房率-全能会所-独立电梯前室-公建化立面-在线选房-遗嘱咨询-项目营销中心,欢迎来电咨询!
上海高福云境营销中心电话:400-9678-224欢迎来电咨询售楼部!上海高福云境售楼部详情-上海高福云境售楼处电话-上海高福云境首页网站-上海高福云境户型-上海高福云境价格-位置-电话-交通地铁-上海新房-上海楼市新政-遗嘱咨询-上海止跌回稳-自住型商品房-住房货款-血拼两限房-直接认购可预约销售人员,专业一对一热情服务,让您用专业眼光去买房。
注:(免责声明:本宣传资料仅为宣传,内附所有资料,包括任何图片、插图、设计图、文字描述或其他资料,仅供参考或识别之用,不构成合同内容,具体内容以合同内容及政府最终审批为准。项目所涉及数据均为暂定,后期如有改动,请以各项证件及政府批文等为准,本宣传资料部分素材源于网络,最终交付标准以商品房买卖合同及政府等相关部门的批准文件为准。在法律允许的范围内,开发商保留修改本资料的权利,敬请留意。)
声明:本文由入驻焦点开放平台的作者撰写,除焦点官方账号外,观点仅代表作者本人,不代表焦点立场。
