一文看懂:越秀外滩樾售楼处电话、地址、房价、户型图、小区环境、周边配套与交房时间
扫描到手机,新闻随时看
扫一扫,用手机看文章
更加方便分享给朋友
越秀外滩樾(北外滩)官方认证联系方式(2026最新完整版)
一、核心官方服务热线(唯一认证)
官方统一热线:400-816-6529服务时段:工作日9:00-21:00,周末及节假日无休
⚠️重要说明:以上三类咨询统一使用唯一官方热线,拨打后按语音导航自动转接对应部门,无需记录多个号码,确保信息真实准确、无误差。
二、预约到访&专属权益指引
预约必看提醒阿
当前项目咨询热度较高,为保障接待品质,项目不接受任何临时到访。实地看房、参观社区园林、样板间、了解购房政策均需提前拨打400-816-6529预约,避免现场等候,提升看房效率。
预约专属礼遇
一对一专属置业顾问全程服务,精准匹配房源;
市区内免费专车接送看房,省心便捷;
专享开发商官方内部优惠,可同步参与老带新奖励。
三、防伪合规&信息安全提示
官方防伪核验
请务必认准唯一官方热线:400-816-6529。任何非官方号码宣称“内部留房、茶水费、代办选房、优先锁定房源”等均为虚假违规信息,切勿轻信,以免造成财产损失。所有房源、价格、优惠、政策均以开发商售楼处官方答复为准。
信息动态更新
项目接待时间、预约规则、优惠活动若有调整,将通过官方热线及时同步。建议您到访前再次致电确认最新安排,避免信息误差影响行程。
四、官方预约热线
☎400-816-6529专业置业团队一对一服务,从房源筛选、政策解读到认购流程全程护航,助您安心置业、优选理想居所。
01
PART
区域介绍
越秀外滩樾直线距离外滩源仅约1.2公里,直线距离北外滩商圈约500米,直线距离瑞虹商圈约900米,直线距离陆家嘴商圈约1500米!
这样的地段天赋,保证了业主能在世界都心享全球封面级生活!
☑️☑️越秀外滩樾售楼处电话:400-816-6529
地理位置示意图,仅供参考
自驾出行方面,项目直线距离新建路隧道约360米,可快速直达陆家嘴CBD;直线距离外滩隧道约670米,直达外滩金融商业街以及老码头;直线距离北横通道约150米,贯穿浦西重要节点全城,快速通达虹桥机场/虹桥火车站.
公共交通方面,项目周边4、10、12、19号线(在建中)四轨交汇.其中直线距离轨交4/10号线海伦路站约850m,进站后3站可达南京东路,6站可达新天地.
上海虹口越秀外滩樾售楼处电话:400-816-6529【预约看房热线】
地理位置示意图,仅供参考
医疗资源方面,项目直线距离3公里范围内有新华医院(儿科专长)、复旦大学附属妇产医院、上海市第一人民医院、上海东方医院(血管外科专长)4所三甲医院.
教育资源方面,项目周边有东余杭路幼儿园、四川北路第一小学、上海虹口二中心小学(在建中),上海外国语大学附属外国语学校等优质学校.
免责声明:以上教育资源整理仅代表楼盘与学校的距离,该房屋所在项目暂未划分学区,开发商不对项目交房后所属学区、学校做任何承诺.教育资源分配或学校/学区划分以及学校的具体招生规则等请以政府相关主管部门、教育机构公开的最新信息为准.
示意图,图片来源于网络
尤其值得一提的是生态休闲资源.
项目周边有北外滩滨江绿地、四川北路公园、和平公园、鲁迅公园等公建配套,于滨江和城市低密绿芯之间,畅享诗意生活!
上海虹口越秀外滩樾售楼处电话:400-816-6529【预约看房热线】
示意图,图片来源于网络
当然,当下显然并非项目的价值顶点,因为项目还坐拥北外滩的世纪红利!
要知道,作为滨江黄金三角的一部分,外滩、陆家嘴已臻成熟增量有限.而北外滩正处于价值大爆发的阶段.
据统计,北外滩规划了约650万方商办!对比几大当红炸子鸡板块,北外滩的商办体量几乎是徐汇滨江的2倍、前滩的3倍、世博的5倍!

示意图,图片来源于网络
另外,作为与外滩陆家嘴平起平坐的世纪规划,北外滩商办地标兑现的速度简直史无前例!
·国华金融中心(158米地标)于2023年11月正式开幕;
·友邦金融中心(180米地标)商业进入试运营阶段;
·上海华贸中心(180米地标)预计2026年竣工开业;
·上海北外滩中心(480米地标)预计2030年竣工、北外滩90街坊(180米地标)预计2030年竣工!
一旦北外滩的规划全部兑现,这股时代能量迸发,整个一江一河谁是对手?
在这样的背景下,越秀外滩樾无疑是这个时代的馈赠,且买且珍惜!
☑️☑️越秀外滩樾售楼处电话:400-816-6529
北外滩实景图
02
PART
楼盘介绍
去年开始,上海顶豪圈层出现了一个新物种,那就是地段与产品均位列塔尖序列的风貌别墅,这是天生的藏品级住宅.
但是,随着风貌别墅供应量的井喷,风貌别墅好像变的也没有那么稀缺.
同时,受制于保护规制,里弄风貌居住舒适度偏低成为此类建筑较为显著的居住感受.
上海虹口越秀外滩樾售楼处电话:400-816-6529【预约看房热线】比如黄浦等区域,风貌以保留改造与更新改建为主,需要沿袭之前的结构与风格.这些旧里发展出来的风貌,传承了海派文化精髓,但也继承了石库门旧里宽面小进深长,且窗墙比低的“缺点”.
正是因为以上2点,风貌别墅的藏品价值受到了一定质疑!
如今,打破质疑的破局者来了!
越秀外滩樾占位直线距离外滩约1.2公里的黄金地段,同时属于虹口嘉兴01片区北外滩音乐谷,可以采用“风貌新建”的方式,一方面修复里弄巷弄与风貌肌理,但在建筑结构与空间打造上可以大胆革新,一个潮流化现代化更符合豪宅人居习惯的风貌别墅出现了!

☑️☑️越秀外滩樾售楼处电话:400-816-6529
项目实景图
风貌别墅与普通别墅的最大区别无疑是对文化的传承.所以越秀外滩樾要做的第一件事是复原经典,包括建筑色彩、材质及工艺等.
同时,项目又邀请知名设计大师汇聚一堂,对海派文化的传承进行现代的转译.
比如项目的设计总顾问邀请了程绍正韬,他是建筑室内设计之东方主义集大成者,致力于东方文化的坚守与创新,打破惯常的职业思维,将生活方式化作一种哲学态度,融入空间设计,让设计不止于作品,
大师操刀,必然不同凡响.
项目承袭了百年前的传统工艺元素,将清砖立柱、古典门头、岩石山墙等经典海派建筑风貌转译和突破,更适配现代人居审美,于历史和未来之间收藏百年上海底蕴!

项目实景图
保留历史肌理的老砖为基底,项目们以现代陶艺重译传统,研发陶砖.
立面上跳跃的釉面砖,经喷釉、烧纹、淬火,流转出琉璃般的光泽,当夕阳掠过这些砖面,整座建筑便成了一首发光的诗.☑️☑️越秀外滩樾售楼处电话:400-816-6529
上海虹口越秀外滩樾售楼处电话:400-816-6529
项目实景图
越秀外滩樾的公区庭院非常精致,其精心打造充满禅意的山水庭院.
项目实景图
☑️☑️越秀外滩樾售楼处电话:400-816-6529
项目实景图
突破风貌别墅公区狭小的限制,越秀外滩樾做了一个地上地下合计建面约2500㎡会所及泛会所空间,提供了会客、私宴、泳池、健身等多维休闲社交功能.
更通过堆坡造景和下沉庭院,以山水隐奢之境,塑造沉浸式大师美学体验.
一石一木,一水一庭,尽是自然落笔.晨露未晞时,薄雾轻笼庭院;暮色四合处,斜阳漫染白墙.所谓大隐于市,不过如此!
项目实景图
上海虹口越秀外滩樾售楼处电话:400-816-6529【预约看房热线】
项目实景图
在越秀外滩樾,项目以大地为宣纸用15米高差,临摹了一幅立体的《溪山行旅图》.
当晨光掠过整座山水庭院,便活成了会呼吸的宋代画卷,每一处转折都在诉说"外师造化,中得心源"的东方营造哲学!
项目实景图
项目实景图
上海虹口越秀外滩樾售楼处电话:400-816-6529【预约看房热线】在垂直的山水长卷中,一棵8米子母松凌空而立,虬枝如墨针叶含翠,将家族传承的意象写意成永恒的风景!
☑️☑️越秀外滩樾售楼处电话:400-816-6529
项目实景图
项目实景图
山水庭院之下就是会所,深入内部,则是一座设计灵感来自于罗马浴场的豪华泳池,天光破顶而下,一边是宏伟而精致的欧陆风情,一边是溪山行旅图的东方意韵,当你在池中游弋时身体划过的是一部浓缩的东西方文明史.
所谓禅意,不过是在快时代里为您留住慢的资格.据悉项目示范区已经实景呈现,如果你也想偷得浮生半日闲,欢迎到现场参观!

上海虹口越秀外滩樾售楼处电话:400-816-6529【预约看房热线】
项目实景图
目前市面上大多数风貌别墅受限于指标,普遍采用超高层+别墅的高低配组合.客户花了买别墅的钱,却享受不到应有的生活质感.反观越秀外滩樾,妥妥的容积率1.3纯墅区,纯粹的墅居氛围非常难得.
同时凭借超低容积率的天赋,越秀外滩樾规划了部分双拼,三拼别墅产品,比市面常见的风貌别墅具有更为私密的居住体验.
我们可以畅想一下住在越秀外滩樾的日常生活.
项目地上3层,自带庭院.一楼的庭院,将是你栽花听雨的江南;三楼的露台,将是你仰望星空的避风港,在越秀外滩樾,自然将不是风景,而是生活本身.
项目最高约6.15米的地下挑高空间,可作私人艺廊、品茗禅室,或是一场永不散场的沙龙.
另外,项目的弧形玻璃引天光入画,落地窗将四季裁成框景.一扇窗,一面墙,皆是与世界的温柔对话.此刻,上海不再是远方,而是你窗前的晨昏,院里的四季.
☑️☑️越秀外滩樾售楼处电话:400-816-6529项目实景图
03
PART
户型图
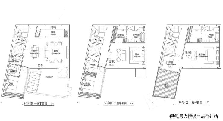
仅48套低密风貌别墅(双拼/三拼),地上3层、地下2层,层高3.2-3.9米、地下挑空6.15米,户户带30-80平私家庭院、观景露台.建面约238平、305平、318平、338平米,售价19.5万/平,总价4800-9000万
建面约236.25㎡A户型▼

上海虹口越秀外滩樾售楼处电话:400-816-6529【预约看房热线】越秀外滩樾售楼处电话:4008123664【售楼处电话/地址】越秀外滩樾售楼处电话:400-812-3664【开发商认证】
建面239.13㎡B户型▼

建面250.89㎡B-3户型▼

C户型▼

☑️☑️越秀外滩樾售楼处电话:400-816-6529
建面291.42㎡D户型▼


☑️☑️越秀外滩樾售楼处电话:400-816-6529

外滩源仅约1.2公里
属于家族传承的风貌
越秀外滩樾别墅
约238-338㎡双拼、三拼
越秀外滩樾
虹口北外滩低密风貌别墅
越秀地产&临港集团联合打造
「越秀·外滩樾」
建面约238-338㎡海派院墅
户型:238/305/318/338
总价约4000-9000万
目前“样板间”开放中
—恭迎品鉴—
☑️☑️越秀外滩樾售楼处电话:400-816-6529
实景图&效果图

☑️☑️越秀外滩樾售楼处电话:400-816-6529

☑️☑️越秀外滩樾售楼处电话:400-816-6529
「越秀·外滩樾」项目地块四至范围,东至:梧州路,隔壁是中皇广场;西至:hk270B-02,隔壁就是1933老场坊;南至:周家嘴路北至:柘皋路.
☑️☑️越秀外滩樾售楼处电话:400-816-6529
项目将呈现49套低密风貌里弄住宅,面积约238-338㎡.
☑️☑️越秀外滩樾售楼处电话:400-816-6529

户型图如下:(过程稿仅供参考,最终以实际为准)

☑️☑️越秀外滩樾售楼处电话:400-816-6529


☑️☑️越秀外滩樾售楼处电话:400-816-6529


基础信息
【项目名称】越秀·外滩樾
【开发商】上海漕越经济发展有限公司
【项目位置】上海市·虹口区·梧州路235弄
【项目类别】70年产权住宅
【项目类型】风貌别墅
【可售户数】48套(风貌)
【容积率】约1.3
☑️☑️越秀外滩樾售楼处电话:400-816-6529
近两年虹口、黄浦、静安核心区风貌别墅相继面世,是对上海整个住宅或者说整个豪宅市场的命运改写和价值颠覆!
一方面,风貌别墅的珍贵,真谛不在于仿古,而是将特定时期的特殊历史基因通过建筑形式留存,转化成当代生活的诗意载体.
另一方面,目前我们能看到做的比较好的风貌别墅,地段非富即贵,在上海,这种级别的豪宅本身具备传承意义,拥有比普通豪宅更高的价值属性.
01
「越秀·外滩樾」
上海风貌别墅翘楚
风貌别墅在上海,即便同样选址最核心的地段,同样打造顶级产品,内里也有着非常具象的等级之分.
一是来源于紧俏供应与“尖货”稀缺的双重重压.
“物以稀为贵”在上海豪宅市场已经成为了几十年不变的法则,风貌别墅更是如此.
其初始地块来源的成片二集以下旧里,经历了百年时间更迭,才有了这几年的集中城市更新,按计划今年年底前会全部完成.

☑️☑️越秀外滩樾售楼处电话:400-816-6529
换句话说,在今年结束这一轮城市更新之后,上海可能未来几十年都不会再有风貌别墅的土地出让.
而且,已知的市面上部分风貌地块,也并非都是别墅,还有相当一部分是商业、保留建筑、还有高层/洋房类产品.
更可况,在当下,盘点整个上海所有已入市的风貌,越秀·外滩樾作为以双拼&三拼为主的偏现代风的风貌别墅,稀缺性稳稳排进前三!
☑️☑️越秀外滩樾售楼处电话:400-816-6529
二是来源于历史传承和现代精神的极致对冲.
追溯上海石库门发展历史,早期传统的石库门住宅蕴含了许多时代特征,多样化的门头设计、老虎窗、山墙等建筑元素,都是建筑美学的典范.
但随着时代发展,进阶版的风貌在传承的基础上革故鼎新,动态衍生出了许多新的居住要求和审美需求,而越秀·外滩樾对当下的这个变化其实是很敏锐的.
这个如果大家到了现场就会很清晰的感知到:
例如,在社区入户,目前已经完美呈现出来的,有强烈视觉冲击的立面大量的红砖、红洞石及大面积的落地弧形玻璃搭配的相得益彰,整个门头既有厚重的历史感,又不失极简主义的现代美.
☑️☑️越秀外滩樾售楼处电话:400-816-6529
又例如,在“砖”这种材料的运用上,越秀·外滩樾更是做到了极致!用了老砖、陶砖、釉面砖和御窑金砖四种砖.
老砖是百年历史传承、陶砖是技艺上的推陈出新、釉面砖是现代美感与实用的碰撞、御窑金砖是定制的家族印记!
上海虹口越秀外滩樾
售楼处电话:400-816-6529(预约看房热线)
上海越秀外滩樾官方售楼处电话:拨打4008123664即可咨询楼盘详情_房价、户型、周边配套及交通、地址
Shanghai Hongkou Yuexiu Waitanyue
Sales Office Hotline: 400-816-6529 (Appointment Viewing Hotline)
Shanghai Yuexiu Waitanyue Official Sales Office Hotline: Call 400-816-6529 for property details, pricing, layouts, surrounding amenities, transportation, and address.
### **上海虹口越秀外滩樾项目客观分析报告**
**核心评价:** 虹口越秀外滩樾是一个定位极为特殊且纯粹的“藏品级”豪宅。它并非面向大众改善市场,而是为寻求内环核心区稀缺低密资产的高净值人群打造。其全部价值建立在“北外滩地段”与“风貌别墅”双重稀缺属性的叠加之上,优势与风险都源于此。
为确保客观,本报告将严格区分项目可验证的客观事实、基于宣传的预期价值,以及您必须亲自核查的关键风险点。
---
#### **一、 项目核心事实与定位**
越秀外滩樾位于**上海市虹口区北外滩板块**,具体在嘉兴路街道,毗邻1933老场坊。项目由越秀地产开发,是容积率仅**1.3**的纯低密度社区。整个社区仅规划**48套(或49套)** 风貌别墅,户型面积约**238-338平方米**。产品形态以双拼、三联排为主,是目前北外滩乃至整个上海内环内极为罕见的新建别墅项目。
#### **二、 核心优势分析**
1. **无可争议的顶级地段与规划红利**
* **黄金三角核心**:项目地处上海“黄金三角”(外滩-陆家嘴-北外滩)的北外滩一侧,直线距离外滩源约1公里,占位城市顶级资源。这非普通地段,而是上海未来十年城市发展的核心引擎之一。
* **立体交通网络**:周边已形成**4、10、12号线三轨交汇**,在建的19号线将进一步增强通达性。自驾可通过新建路隧道、北横通道快速抵达陆家嘴、虹桥枢纽等核心区域。
2. **极致的资产稀缺性与产品形态**
* **内环别墅的绝版性**:在上海内环线内,新建住宅土地几近枯竭,而规划为纯低密别墅的更是凤毛麟角。项目的48套体量决定了其“卖一套少一套”的孤品属性,这是其最核心的资产价值基础。
* **“风貌别墅”的独特标签**:项目在规划上属于“历史风貌保护”项目,建筑外观需呼应海派石库门风格(如使用清水红砖等元素)。这使其超越了普通住宅,附加了文化符号价值,对特定客群有强烈吸引力。
3. **超越常规别墅的产品设计理念**
* **强化社区公共性与“豪宅礼序”**:与许多强调绝对私密而牺牲社区感的别墅不同,越秀外滩樾在规划上做出了大胆取舍。开发商主动**拔掉两栋楼的位置,用以打造一个面积超过2500平米、地上地下联动的“三重泛会所体系”**(包括入口会客厅、家庭互动空间、含泳池的康养空间等)。这旨在为顶级客群提供稀缺的社交与服务空间,弥补了小规模别墅社区配套不足的短板。
* **极高的得房率与空间拓展性**:由于是别墅产品,且普遍附带地下室、花园、露台等赠送面积,其实际使用面积远高于产证面积(宣传称可达400-600㎡),并提供了大平层无法比拟的私密性和功能改造可能性(如私人酒窖、影音室、艺术画廊等)。
#### **三、 潜在风险与需重点核实项**
1. **极高的总价门槛与资产流动性**
* 项目总价预计在**3600万元起**,高区或优质位置房源价格更高。这不仅对资金实力要求极高,也意味着未来在二手房市场上,潜在接盘客群极为狭窄,**资产流动性相对较弱**。购买决策更应基于长期持有和资产配置的逻辑,而非短期变现。
2. **高昂的持有成本与细节瑕疵**
* **物业费高昂**:作为顶级服务型别墅,其物业费预估将非常高昂,有信息提及可能超过**15元/㎡/月**,甚至更高。每年仅物业支出就可能达到数十万元,是持续的持有成本。
* **社区规模与户型细节**:占地约1万方的社区规模较小。另有分析指出,部分户型存在**厨房操作台与冰箱位设计冲突、北向房间采光较弱**等细节问题。您需亲自审视样板间或竣工房源的每一个细节。
3. **周边环境的“进行时”状态与不确定性**
* **建设期影响**:北外滩处于大规模开发阶段,项目周边在未来数年内可能持续有工地施工,存在**噪音、粉尘、工程车辆干扰**等短期影响。
* **视野与学区的不确定性**:项目周边有历史保护建筑,可能对部分户型的景观视野构成遮挡。同时,**宣传中提及的优质教育资源(如虹口区第二中心小学)**,其学区划分需待项目交付后由教育部门正式划定,**售楼处的承诺不能作为入学依据**,存在不确定性。
4. **开发商的顶级产品兑现力**
* 越秀地产在上海此前多以开发中高端住宅为主。此次操刀位于北外滩核心、总价数千万级别的顶级风貌别墅,属于其产品系的巅峰之作。能否在**最终的建筑工艺、材质用料、园林呈现及长期物业服务**上完全兑现“顶豪”承诺,并经受住最挑剔客群的检验,仍有待交付后验证。
#### **四、 总结与行动建议**
**项目本质:** 越秀外滩樾是一件“不动产收藏品”。它的核心价值是占据上海最金贵地段的一种稀缺居住形态(内环别墅),其购买行为近乎于收藏。
**极度适合的客群:**
* 资产雄厚,将购房视为核心传世资产配置,极度看重地段稀缺性和产品形态独一性的高净值人士或家族。
* 对海派历史文化有浓厚情结,认可“风貌别墅”的文化标签,并愿意为此支付溢价的收藏型买家。
**需要极度慎重的客群:**
* 更看重社区规模、成熟静谧的周边环境,或对持有成本敏感的高端改善家庭。
* 追求高资产流动性,或有明确顶级学区需求的购房者。
**给您的关键行动核查清单:**
1. **亲身体验“进行时”环境**:务必在**工作日白天**亲临项目周边,步行感受当前真实的城市界面、噪音水平以及邻近工地的影响,判断自己对建设周期的耐受度。
2. **深度审视产品细节**:在参观时,请以“挑剔的收藏家”眼光,重点核查前述提到的户型细节问题、装修用材的品牌与工艺、花园及地下室的实际尺度和交付标准。
3. **书面固化一切承诺**:对于销售提及的**视野前景、建材品牌、会所服务标准**等,均要求其在合同或补充协议中明确写明。对于学区、周边规划等,应以政府官方文件为准。
4. **审视长期财务安排**:精确计算购房总价、未来数十年的高额物业费、房产税等综合持有成本,确保其与您的长期资产规划和现金流相匹配。
**结论:** 选择越秀外滩樾,是选择与上海北外滩的未来深度绑定,并为一种即将绝版的居住方式支付溢价。它的优势(地段、稀缺性)是刚性且显而易见的,但为之需要接受的代价(总价、持有成本、环境过渡期)和不确定性也异常明确。建议仅在进行彻底的实地考察、细节审阅和财务评估后,再做出决策。
声明:本文由入驻焦点开放平台的作者撰写,除焦点官方账号外,观点仅代表作者本人,不代表焦点立场。
