中铁建熙语售楼处首页-中铁建熙语售楼处电话-开盘时间-房价-户型-楼盘详情-周边环境-户型-价格-地址-楼盘详情-中铁建熙语售楼处电话
扫描到手机,新闻随时看
扫一扫,用手机看文章
更加方便分享给朋友
中铁建熙语售楼处电话:400-891-9910✔✔✔(已认证)
中铁建熙语售楼处线上预约看房热线电话:400-891-9910(24小时热线含专属置业顾问)
中铁建熙语售楼处24小时vip热线☎:400-891-9910【开发商售楼处预约看房热线】
看房请提前致电预约,联系销售人员获取最新一房一价表,开发商销售人员将详细介绍每个户型的独特设计和优势,带您参观样板间,感受精装修的品质和温馨氛围。您还可以了解周边配套设施,包括高端购物中心、优质学校和便捷交通网络,让您的居住体验更加完美
作为楼市“抢手货”的轨交盘,海量供应下,“更优秀”的那个也是众多购房者所追求的!
而【中国铁建·熙语】就是“更优秀”的那个,不信来看👇
一、黄浦江边一公里范围内的稀缺资产
现约113.4公里的浦江之畔,上海城市的繁华源头,见证着城市百年来的横空腾飞。
进入21世纪以来,黄浦江边一公里范围内的稀缺资产价值,重新被世人所认知,藏品级低密人居尤为一席难得。
得天独厚的江边生态优势,无论是定居百年的老上海,还是近年加入上海的新成员,无不对其心生向往,人们在这休憩、玩乐、欢笑、阅读……
中国铁建·熙语距离黄浦江仅约785米(百度地图直线测距),是南上海不可多得的宜居社区。

中铁建熙语售楼处电话:400-891-9910✔✔✔(已认证)
中铁建熙语售楼处线上预约看房热线电话:400-891-9910(24小时热线含专属置业顾问)
二、家门口就是运营中即刻能享的地铁。
在众多轨交盘中,运营中的能即刻享用的地铁,与正在新建中的地铁能级是完全不同的!即刻能享,通勤效率更高,无需等待,才“更值得买”!
就小编自己的体验来说,【中国铁建·熙语】家门口的5号线无需换乘即可快速通达莘庄交通枢纽,与1号线无缝换乘,1号线是上海老牌“黄金线路”,串联上海多个核心CBD,这是远郊线所不能比的!

中铁建熙语售楼处电话:400-891-9910✔✔✔(已认证)
中铁建熙语售楼处线上预约看房热线电话:400-891-9910(24小时热线含专属置业顾问)
三、约260米!妥妥“真”轨交!未来还有双轨环绕!
上海楼市不缺轨交盘,缺的是距离近的真轨交盘!
很多时候我们把直线距离1.5km的都算作轨交盘,但实际步行试试,没个十几分钟下不来,也因此距离轨交更近的,也更稀缺。
【中国铁建·熙语】距离5号线西渡站仅约260米,另外15号线南延伸在西闸公路也有预留站点,未来项目有望双轨环绕,翻遍上海在售、待售轨交盘,TA完胜!
5号线西渡站260米,真正的轨交盘中铁建西渡项目——【中国铁建熙语】热销中!
推售建面约81-148㎡高层/叠墅
过会均价47587元/m²
81-91-100-123m²高层总价约291万起
135-148m²叠墅总价约680万起!
准现房(2025年12月1日交付),均实景呈现,所见即所得!

中铁建熙语售楼处电话:400-891-9910✔✔✔(已认证)
中铁建熙语售楼处线上预约看房热线电话:400-891-9910(24小时热线含专属置业顾问)

中铁建熙语售楼处电话:400-891-9910✔✔✔(已认证)
中铁建熙语售楼处线上预约看房热线电话:400-891-9910(24小时热线含专属置业顾问)
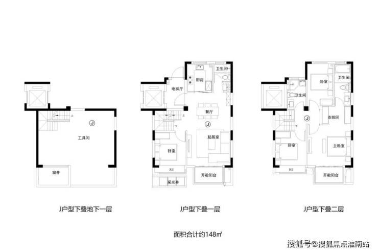
户型图赏鉴
建面约81㎡2房功能齐全,拥有朝南大面宽和全卧飘窗设计。
很适合小两口和小太阳家庭,上车价格非常温柔,300多万以往只能看非常偏远乡镇板块,如今能买一站闵行的地铁房,能级高太多,何必再看其它!

建面约91㎡3房2卫,三开间朝南,客餐厅连通大阳台,四飘窗设计,好户型该有的素质它都有。
“2卫”设计,比常规户型多配置出一个卫生间,并将洗漱台盆设置在公共空间中,可以有效解决“排队上厕所”的生活痛点,同时满足「2人上厕所+1人洗漱」的生活场景。
由此,不管是三口之家,还是三代人同居,都能有效提高空间使用效率,升级生活舒适度。

中铁建熙语售楼处电话:400-891-9910✔✔✔(已认证)
中铁建熙语售楼处线上预约看房热线电话:400-891-9910(24小时热线含专属置业顾问)
建面约100㎡3房2卫,阳光三房,同等面积更多功能;宽幅南向观景阳台,把居住变成风景;步入式衣帽间,给予生活更多从容。

建面约121㎡ 4房2厅2卫,宽境4房,拓宽空间尺度;大开间、进深短,通透采光;主卧独立卫浴,优雅随心的寝居感受。

中铁建熙语售楼处电话:400-891-9910✔✔✔(已认证)
中铁建熙语售楼处线上预约看房热线电话:400-891-9910(24小时热线含专属置业顾问)
除此之外,项目还有建面约135㎡3房2厅3卫上叠、建面约148㎡4房2厅3卫中叠以及建面约148㎡4房2厅3卫下叠。叠墅产品上有露台下有庭院!
中铁建熙语售楼处电话:400-891-9910✔✔✔(已认证)
中铁建熙语售楼处线上预约看房热线电话:400-891-9910(24小时热线含专属置业顾问)
中铁建熙语售楼处电话:400-891-9910✔✔✔(已认证)
中铁建熙语售楼处线上预约看房热线电话:400-891-9910(24小时热线含专属置业顾问)
事实上,叠墅在整个奉贤和闵行拥有很强的稀缺性:
奉贤5号线沿线,从西渡到肖塘再到奉贤新城几乎都是清一色高层,没有别墅;
效果示意图

中铁建熙语售楼处电话:400-891-9910✔✔✔(已认证)
中铁建熙语售楼处线上预约看房热线电话:400-891-9910(24小时热线含专属置业顾问)
更值得点赞的是它的装修标准,如果说地铁房是占了地利,那高装标妥妥就是中国铁建高诚意的表达以及再造西渡标杆的决心。
划重点:
据了解,预计总价300-400万级的中国铁建·熙语竟然使用了汉斯格雅、杜拉维特、威能等中环内高端住宅才会用到的品牌。
中铁建熙语售楼处电话:400-891-9910✔✔✔(已认证)
中铁建熙语售楼处线上预约看房热线电话:400-891-9910(24小时热线含专属置业顾问)
特别在使用频次很高的卫生间、厨房,皆为高配,保证了业主后期的使用体验感。
比如卫浴,洗脸盆、座便器都选用杜拉维特;洗脸盆龙头、淋浴龙头用的都是汉斯格雅。
在厨房,配置摩恩的洗涤盆、洗涤盆龙头(可抽拉);灶具、吸油烟机均为老板品牌,值得一提,项目配备了同级少有的洗碗机。
东芝中央空调、威能地暖、百朗新风三大件也是标配!实话讲300-400万级新房配地暖的并不多,但要是买时不配备,后期加装可太难了。
有句话叫:“我可以暂时不用,但你不能没有”,地暖也是这样。
中铁建熙语售楼处电话:400-891-9910✔✔✔(已认证)
中铁建熙语售楼处线上预约看房热线电话:400-891-9910(24小时热线含专属置业顾问)
另外,很多细节的交付让人倍感暖心!
比如,玄关柜、浴室柜+镜柜都是交付标准,你不用后期去家装店定制,甚至花时间配色;厨房还贴心配备安吉尔净水器和西顿凉霸。
总得来说,在卫浴、厨房层面,项目装修质感比肩中环内高端住宅,其它配置也属于同级上乘水平。可以看得出中国铁建在项目身上下足了血本。

土拍回顾及规划
中铁建熙语售楼处电话:400-891-9910✔✔✔(已认证)
中铁建熙语售楼处线上预约看房热线电话:400-891-9910(24小时热线含专属置业顾问)
2023年4月20日,上海第一批集中供地土拍,奉贤西渡街道D-01-11区域地块【即中国铁建熙语】被中铁建以总价23.472亿元成功竞得,成交楼板价19740元/㎡,溢价率9.66%,联动价42850元/m²。
项目东至扶拦路、南至D-01-13(中铁建香榭国际)、西至南横泾、北至西闸公路。


中铁建熙语售楼处电话:400-891-9910✔✔✔(已认证)
中铁建熙语售楼处线上预约看房热线电话:400-891-9910(24小时热线含专属置业顾问)
根据设计方案显示,项目拟建15幢高层单元式住宅(含1幢20层保障房)、10幢多层单元式住宅(5层叠墅)、9幢社区配套等。

当钢筋水泥的森林困住向往自然的灵魂,中国铁建·熙语,怀揣着对生活的深度哲思,在高密度的城市生活中融入更多绿意空间,围绕花园生活展开园林的设计语汇,在自然与艺术的碰撞下,绽放诗性而静谧的生活气息,为身居都市的你打造一座美好自由的诗意大境。

中铁建熙语售楼处电话:400-891-9910✔✔✔(已认证)
中铁建熙语售楼处线上预约看房热线电话:400-891-9910(24小时热线含专属置业顾问)
△项目南主入口实拍图
熙语以江南人文精神为源点,将自然融入生活点滴,打造两轴一环五进空间,合理规制社区轴线,以水为引,筑景成林,落地时代芯湾的花园日常。
“最好的建筑是这样的,我们居住其中,却感觉不到自然在哪里终了,艺术从哪里开始。”这是林语堂先生对建筑与环境的理解。
熙语深研建筑与环境的关系,顺应项目地形特征,将景观串联起来,配合特色植物组团、艺术景墙、层叠绿化等,打造五进归家仪制,以渐进的仪式感与步移景异的沉浸式体验,激发对自然的更深层次观察和体悟,让归家成为一场穿越风景的旅行。
中铁建熙语售楼处电话:400-891-9910✔✔✔(已认证)
中铁建熙语售楼处线上预约看房热线电话:400-891-9910(24小时热线含专属置业顾问)
△实景示意图
从城市到归家的路,由繁华向静谧过渡,门口迎宾的飘枝罗汉松,虬曲自然,蜿蜒向上,以灵动的曲线提拉空间宏伟感,引领归家情绪的起点。
各式各样的艺术景墙映入眼帘,辅以仪式感排布的弯杆铁冬青树阵,树植掩映之间,呈现一幅热情且不喧闹的迎宾之姿,消弭城市喧嚣,礼遇进出的每一步。
中铁建熙语售楼处电话:400-891-9910✔✔✔(已认证)
中铁建熙语售楼处线上预约看房热线电话:400-891-9910(24小时热线含专属置业顾问)
△实景示意图
徜徉紫薇夹道,色彩明艳的紫薇花簇爬满花架,缠绕形成廊道空间,漫步于此,一天的奔波忙碌被满眼的自然画境舒缓,在风景游走中感知无限诗意。
无水不成园,水系始终是园林营造艺术的核芯脉络和灵魂所在。它不仅是物理意义上的水流,更是流淌在园林肌理中的诗意、哲学与时间。
有基于此,熙语师法自然,运用下沉、抬升、涌泉等不同手法,以水为引,通过水的多种形态,营造三大水景场域,解码花园生活中流动美学。
中铁建熙语售楼处电话:400-891-9910✔✔✔(已认证)
中铁建熙语售楼处线上预约看房热线电话:400-891-9910(24小时热线含专属置业顾问)
△实景示意图
珠宝般精致的涌泉水池、优雅的迎宾水景,居于社区主入口的视觉中心,涌动不止,生生不息,不动声色中别有一番艺术质感,成为社区的第一道靓丽风景线。
横向延展的中庭水瀑,将视野宽度无限拉伸,以水的张力,撑开园林的空间感。飞溅的细密水雾在阳光下泛起缤纷的光,坐在中庭水瀑前,看着天空中舒朗的浮云,听到的却是山林里滴水击石的自然之音,让人不自觉地沉浸其中。

中铁建熙语售楼处电话:400-891-9910✔✔✔(已认证)
中铁建熙语售楼处线上预约看房热线电话:400-891-9910(24小时热线含专属置业顾问)
△实景示意图
社区中央,规划了一处经典的“蓝宝石”水景,长约28米的中央景观水池,以清澈莹润的镜面水质,倒映着镜花水月的奇妙意境。紧邻水池还设置了林下看护坐阶邀请着人们随时开启一场慵懒的水岸冥想,这不仅是一方可供观赏的宝石水境,更是未来邻里相聚、共享清凉的社交主场。
当线条的秩序,臣服于自然的韵律,每一缕光影,都在叙述生活的诗意。熙语策略性退让出公共尺度,为自然让渡出更多呼吸权,借此收获更完整的中央景观空间,保障景观视野通畅,打造约3000㎡中央园林,为业主提供多元素、多场景的户外活动空间。
中铁建熙语售楼处电话:400-891-9910✔✔✔(已认证)
中铁建熙语售楼处线上预约看房热线电话:400-891-9910(24小时热线含专属置业顾问)
△实景示意图
绿意葱茏的阳光大草坪,如一块柔软的绿色地毯,铺展在社区中央,环绕草坪栽种了丛生朴树等名贵树植,以开放之姿吸引人们共聚于此,这里不仅是业主家人们露营、漫步、自在游戏的专属欢乐场,更是毛孩子快乐撒野的绝佳场所!未来,还将融入艺术展览、跳蚤市场、社区电影等丰富活动,开启一段与万物亲密对话的旅程。
△实景示意图
作为建筑与园林的重要过渡——约170㎡景观廊架,草坡、绿植、挡墙、观景平台等元素交织在一起,弱化廊架边界,使自然景观更深度地融入,让空间有了情绪化的输出,交融日常之美,为热爱生活的人们,找到生活的另一重表达。
与草坪廊架对望的林下会客厅,让社交从室内延伸到室外,隐匿在自然之间,是极佳的下午茶举办地——约上三五好友,带上刚出炉的马卡龙,在绿荫树下,就这秋日的暖阳,打盹、喝茶、闲聊,平凡的下午便满溢草木花香。
中铁建熙语售楼处电话:400-891-9910✔✔✔(已认证)
中铁建熙语售楼处线上预约看房热线电话:400-891-9910(24小时热线含专属置业顾问)
园林的营造,从不止于风景,中国铁建·熙语建面约81-148㎡实景准现房,以高能实景重塑人与自然的关系,编织出更有温度的邻里日常,纳风光于居境,落地一处安放美好生活的花园天地!
生活配套
中铁建熙语售楼处电话:400-891-9910✔✔✔(已认证)
中铁建熙语售楼处线上预约看房热线电话:400-891-9910(24小时热线含专属置业顾问)
作为闵行进入奉贤的首站,西渡板块自然是首当其冲的选择!天然位置好,指导价更具有优势!自住完全没有问题。
交通方面:项目距离5号线西渡站仅260米,妥妥的地铁盘。
自驾方面,有虹梅南路越江隧道、闵浦二桥和刚开通的闵浦三桥联通两岸,另有金海路越江隧道连接中环,虹梅南路越江隧道、S4沪金高速连接外环、s32申嘉湖高速等。往南可至南桥,海湾、金山等地,往北可至莘庄、徐汇,奉浦大桥走申嘉湖高速往东可至浦东机场。
中铁建熙语售楼处电话:400-891-9910✔✔✔(已认证)
中铁建熙语售楼处线上预约看房热线电话:400-891-9910(24小时热线含专属置业顾问)
商业方面:地铁站旁就是连城商业广场,还有如巧购、天择生活广场等。向北三站可到剑川路上盖龙湖闵行天街,五站可至颛桥万达,八站可达莘庄,有仲盛世界商场、凯德龙之梦,往南三站环城东路站则有奉贤宝龙城市广场等,满足一应生活需要。
教育配套:项目周边有上海市公立一级待问幼儿园,西渡学校(九年一贯制),在奉贤排名较靠前。(具体学区划分以教育部门规定为准)
中铁建熙语售楼处电话:400-891-9910✔✔✔(已认证)
中铁建熙语售楼处线上预约看房热线电话:400-891-9910(24小时热线含专属置业顾问)
医疗方面:项目周边有新华医院、中国福利会国际和平妇幼保健院、西渡医院、上海市第五人民医院、上海奉浦医院、奉贤区中医院、奉贤区中心医院等医疗资源,能够为您及和家人提供全方位的健康保障。
中铁建熙语售楼处电话:400-891-9910✔✔✔(已认证)
中铁建熙语售楼处线上预约看房热线电话:400-891-9910(24小时热线含专属置业顾问)
生态休闲:项目不远有在建的文体中心,还有西渡公园。
中铁建熙语售楼处电话:400-891-9910✔✔✔(已认证)
中铁建熙语售楼处线上预约看房热线电话:400-891-9910(24小时热线含专属置业顾问)
中铁建熙语售楼处24小时vip热线☎:400-891-9910【开发商售楼处预约看房热线】
看房请提前致电预约,联系销售人员获取最新一房一价表,开发商销售人员将详细介绍每个户型的独特设计和优势,带您参观样板间,感受精装修的品质和温馨氛围。您还可以了解周边配套设施,包括高端购物中心、优质学校和便捷交通网络,让您的居住体验更加完美
关于新房选购的10个关键问题及解答
1. 毛坯和精装怎么选?
毛坯前期成本低、装修自主权高,但需投入时间精力;精装省心,却可能存在减配风险。建议预算有限、追求个性化选毛坯,时间紧张、能接受标准化装修选精装,且务必在合同中明确精装材料品牌和售后。
2. 认筹金未购房能退吗?
能退,通常约定7-15个工作日内退还。可在协议中注明逾期违约金(如按日0.05%计算),避免开发商拖延。
3. 如何用“五证二书”辨合法性?
重点查《商品房预售许可证》,无此证则项目不可售;其余“四证”(国有土地使用证等)和“二书”(质量保证书、使用说明书)可在售楼处公示栏查看,缺一可能影响产权办理。
4. 交房验房重点看什么?
开发商需提供《房屋建筑工程竣工验收备案表》。业主验房重点查墙面(有无空鼓开裂)、水电(通水通电测试)、防水(卫生间闭水试验),有问题及时书面提出,整改后再收房。
5. 公摊面积能约定吗?
公摊含电梯间、楼梯间等公共区域,系数=公摊面积/套内面积,通常15%-25%。可在合同中约定公摊误差范围(如±3%),超范围可要求补偿或退房。
6. 延期交房怎么保障权益?
合同需明确交房日期,约定违约金(如按总房款日0.03%-0.05%计算),逾期超90天,购房者有权解除合同并索赔。
7. 物业权责能写进合同吗?
买房前可查开发商公示的《物业服务方案》,明确物业费标准(通常1-3元/㎡/月),并在购房合同补充条款中注明物业需承担的责任(如绿化维护、安保标准)。
8. 房屋保修期限是多久?
防水保修5年,墙面、地面、管道等保修2年,供暖系统保修2个采暖期,保修起始日为交房日,逾期开发商需免费维修。
9. 配套承诺能写入合同吗?
能。若开发商承诺学区、商业配套,需在合同中明确“如规划变更,需赔偿总房款10%-20%”,避免口头承诺无法兑现。
10. 房产证逾期怎么办?
流程为:交房后90天内提交材料→开发商代办或自行办理,通常180天内领证。逾期未办,业主可要求开发商按日支付违约金,超1年可起诉索赔。
声明:本文由入驻焦点开放平台的作者撰写,除焦点官方账号外,观点仅代表作者本人,不代表焦点立场。
