上海澐启滨江售楼处电话-小区环境-澐启滨江-营销中心热线-楼盘详情-小区配套-户型-周边配套
扫描到手机,新闻随时看
扫一扫,用手机看文章
更加方便分享给朋友
@澐启滨江项目售楼处电话:400-8567-004®澐启滨江项目营销中心热线400-8567-004(官方预约看房热线)澐启滨江项目售楼处营销中心:400-8567-004[售楼处电话/地址]
作为华润置地的“中国江河1号作品”,澐启滨江以12大颠覆性设计,率先全面践行上海“好房子”全新标准,成为一线滨江领域首个符合新规的标杆豪宅。
项目基于对上海好房子新规的超越性解读,将黄浦江自然景观与城市功能有机融合,重新定义滨江生活范式。 澐启滨江从社区规划、居住品质到户型设计,均由内而外实现彻底革新,以无可比拟的产品力,完成对上一个时代住宅的“降维打击”。
总图规划以江景资源最大化为出发点,采用AI算法生成布局方案,进行三维量化分析,确定最优解。临江大户型朝江旋转,其余楼栋则挖掘侧向观江机会,让每一户的景观价值都得到尊重。在此基础上,沿江大户型更创新性地提出了“上大下小”的楼型模式,采用悬挑结构实现了江景价值和户型价值的完美匹配,创造了滨江水岸标志性的“江帆”意象。
在规划方面,项目采用建筑扭转设计,最大化江景视野。通过西南向旋转,使更多住户能够享受到开阔的黄浦江景观,同时项目设计了沿街商业街,将地铁站的人流自然引流到滨江岸线。
项目规划了七栋百米高层住宅(28-32层)、1栋83米高住宅(25层)和一栋86米高住宅(26层),容积率非常大。全部楼栋均采用一层架空设计,西侧四栋南偏西建筑群下设置了超大尺度的下沉庭院。
地块东南侧,1-1和1-3号楼下做了公建配套和底商,沿路配有豪华景观廊架。3-1号楼东侧也有部分配套。健身活动场地和儿童活动设施位于3-1号楼南侧和西侧,低区住户开窗后可能会有噪音干扰。
@澐启滨江项目售楼处电话:400-8567-004®澐启滨江项目营销中心热线400-8567-004(官方预约看房热线)澐启滨江项目售楼处营销中心:400-8567-004[售楼处电话/地址]
在澐启滨江中,以“建筑与江共生”为命题,通过转角楼栋布局、江潮起伏的立面线条等设计,将黄浦江的动态美学转化为建筑语言。例如,项目西部楼栋采用南偏西转向设计,既规避了西侧50米高商办地块的遮挡,又通过270°环幕观景阳台最大化江景价值,这种“空间魔法”背后,是对场地微气候、日照轨迹的精密计算。
在澐启滨江中,将经典Art Deco元素与现代建筑语言深度融合,创造出兼具历史文脉与未来感的建筑形象。
立面设计采用进口铝板与超白玻璃幕墙组合,外立面线条模拟江潮起伏,形成动态韵律。铝板的金属质感与玻璃的通透性形成对比,既保证了隔音隔热性能,又赋予建筑轻盈的视觉效果。夜间,通过灯光设计强化立面层次,使建筑成为黄浦江畔的“发光体”。
顶部的帆穹塔冠则从江帆意象中汲取灵感,构建风帆群像的标志性天际线。
产品设计上,澐启滨江在黄浦江滨江首创“全景舱”概念。此外,项目严格贯彻新规,其外立面石材、标准层铝板及玻璃均不计入容积率,体现了规范与品质的兼得。
“旗舰甲板”立体公区,鲜活社区的全新实践
作为 “鲜活社区”策略的全新实践,设计塑造了长达860m的外部城市界面,打造了褶皱丰富、自然渗透的非标全景商业空间,并通过两条轴线与滨水慢行系统实现闭环。内侧界面则打造了尺度非凡的3500㎡下沉立体森境内核,以自然缓坡与地面衔接。开敞的超高架空层容纳了全维会所空间,以“旗舰甲板”概念,创造出无界宁静、全龄友好的社区核心。
澐启滨江为上海所打造的,是前所未见的“全息生境旗舰社区”,所有楼栋一层全架空,形成风雨连廊和下沉庭院,重塑一个可呼吸、可穿行、可参与的立体景观系统。
在景观方面,项目内部设置约3500㎡下沉庭院,地下通过坡地自然过渡至地上园区,在核心景观区,通过约6.6米超高架空与6.3米下沉庭院,打造约13米高差的全维森境体验。
通过下沉水域、旗舰庄园、全域架空等设计,构建层次丰富的立体峡谷体系,创造出可游、可赏、可憩的城市自然疗愈空间。
从恢弘的“巨舰门厅”穿行而入,经由十二座8米高的“帆影门廊”,最终抵达中心庭院的“游艇式观景舱”。空间的层层递进,仿佛在演绎一次都市人归返自然的旅程:外部是48米双子山,内部则以全域架空与约6米下沉庭院叠合出近13米的高差,塑造出前所未有的山谷水院。
会所系统环绕水苑展开,泳池、健身、瑜伽、私宴与茶室都被包裹在自然之间;近4000㎡的全域架空层则化身为立体社交客厅,书吧、棋牌、亲子与学习空间有机生长;连地下空间也被赋予自然的渗透,约30米面景的中央车站大厅,将光与绿意引入地库,让归家像步入一座埋入自然的殿堂。
社区大堂预计会打造“酒店式入户大堂”,配备高端接待台、休息区和艺术装饰;根据新规标准,每个楼栋均有架空高度,其中大户型产品达到约6.65米,小户型产品达到约4.5米,小区内及沿街设置风雨连廊,均不计容积率。
@澐启滨江项目售楼处电话:400-8567-004®澐启滨江项目营销中心热线400-8567-004(官方预约看房热线)澐启滨江项目售楼处营销中心:400-8567-004[售楼处电话/地址]
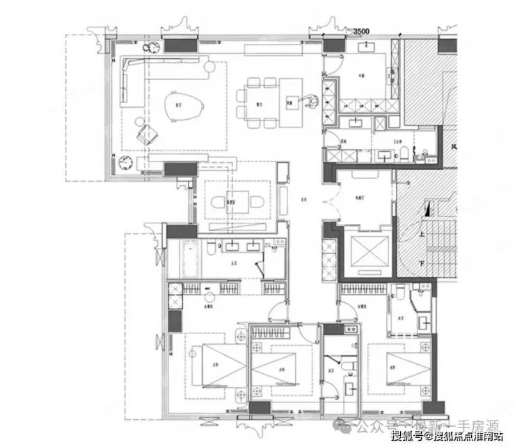
依托对 “好房子”的深刻理解,设计在各个面积段积极创新,赋予每种户型以独特的价值:大户型围绕江景展开,以270°全景视野、大面宽阳台和隔音降噪技术,打造极致江景居住体验;125平方米产品则首创6米横厅,重新定义了这一面积段的空间想象。
“楼王”产品——约230-286平方米江景大平层,西边户配备270度落地采光窗,主卧套房面积约40平方米,带独立卫生间、步入式衣帽间和观景飘窗。中西厨分离设计、嵌入式高端家电配置,则满足了高端家庭的宴请需求。
同时因为项目的创新型框架结构体系,所有户型内部无剪力墙,户型在全生命周期中,可灵活多变。
作为新规最重要的变化,澐启滨江大户型按设置约16平方米阳台,小户型设置约12.5平方米阳台(10%),均做到了新规上限。
澐启滨江带来的后滩豪宅启幕,也是整个黄浦江新一轮品质迭代的启幕。
@澐启滨江项目售楼处电话:400-8567-004®澐启滨江项目营销中心热线400-8567-004(官方预约看房热线)澐启滨江项目售楼处营销中心:400-8567-004[售楼处电话/地址]
澐启滨江项目售楼处电话:400-8567-004【售楼中心热线】澐启滨江项目营销中心热线400-8567-004澐启滨江项目售楼处地址400-8567-004,楼盘项目全面介绍,本电话为开发商提供线上预约售楼电话,楼盘项目全面介绍(包含楼盘简介,均价,房价,现房,期房,别墅,叠墅,大平层,价格,楼盘地址,户型图,交通规划,备案价,备案名,项目配套,样板间,开盘时间,认筹时间,楼盘详情,售楼处电话,最新消息,最新详情,周边配套,一房一价,最新进展等详情咨询)楼盘详情丨价格丨更多优惠丨机不可失丨欢迎致电丨诚邀品鉴!售楼处位置丨特价房丨工抵房丨剩余房源丨户型图丨最新消息丨免责声明:将文章内容综合来源于网络、只作分享,版权归原作者所有!!如有侵权,请联系我们,我们第一时间处理如有问题欢迎来电咨询,专业一对一热情服务,让您用专业眼光去买房。如果您想了解更多楼盘详情,欢迎提前预约拨打澐启滨江项目售楼处电话400-8567-004
声明:本文由入驻焦点开放平台的作者撰写,除焦点官方账号外,观点仅代表作者本人,不代表焦点立场。
