杭州绿城溪径恒庐(售楼处)首页网站-售楼中心欢迎您|2025楼盘评测-最新房价|户型|商圈配套(2025溪径恒庐销售中心)首页网站-绿城溪径恒庐楼盘详情-户型配套

淮南楼市观察 2025-09-11 10:57:01
用手机看
扫描到手机,新闻随时看

扫一扫,用手机看文章
更加方便分享给朋友

绿城溪径恒庐售楼处电话☎:400-998-9694 绿城溪径恒庐售楼处电话☎:400-998-9694 绿城溪径恒庐加推,合院均价上涨,低密豪宅项目热销。

绿城溪径恒庐

售楼处电话☎:400-998-9694

如有问题欢迎来电咨询,来电即可享受买房优惠!

预约来电尊享购房优惠,可预约案场内部销售人员,专业一对一热情服务,让您用专业眼光去买房。

绿城溪径恒庐售楼处电话☎:400-998-9694

绿城溪径恒庐售楼处电话☎:400-998-9694

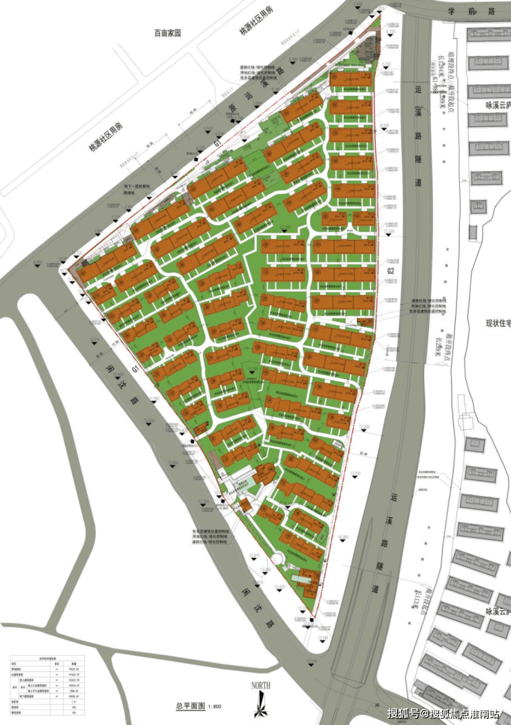
城西低密豪宅区桃花源板块,绿城又放量了。

绿城桃花源低密项目绿城溪径恒庐,规划为合院+叠墅,共计363套,(风格现代东方+创新简法),99套合院(285-396方)、264套叠墅 (249-280方)。

主力价格情况:精装叠墅约900-1200万、合院约1500-3000万左右(精装选配+私人定制)

绿城溪径恒庐售楼处电话☎:400-998-9694

绿城溪径恒庐售楼处电话☎:400-998-9694

项目在7月份首开,首开36、41、50、9、14、30、52号楼,共计48套房源,面积235-400方。价格以及登记结果如下:合院5.1万,11套房有34人摇号;叠墅3.5万,40套房有81人摇号。

就在最近(8.19),项目公示了二开预售证。本次加推8、19、21号楼,共计12套合院,小胖君惊讶的发现涨价了,首开合院均价约5.1万/平,这次二开合院均价约5.46万/平。

绿城溪径恒庐售楼处电话☎:400-998-9694

上一批登记结果没过几天,就在8.29,项目又取证加推,这次开出6套合院,分别是16号楼、28号楼,均价5.58万/平,比之前还要贵一点。

线上登记结果已出:0人。意味着这批也是线下销售。

绿城溪径恒庐售楼处电话☎:400-998-9694

前脚登记结果刚出,后脚又双证齐发,就在9.4,项目公示了两张预售证,叠墅、合院都有。

绿城溪径恒庐售楼处电话☎:400-998-9694

绿城溪径恒庐售楼处电话☎:400-998-9694

示范区实拍

豪宅

绿城溪径恒庐售楼处电话☎:400-998-9694

绿城溪径恒庐售楼处电话☎:400-998-9694

绿城溪径恒庐售楼处电话☎:400-998-9694

叠墅、合院户型图分析

纯低密大盘

绿城溪径恒庐售楼处电话☎:400-998-9694

绿城溪径恒庐售楼处电话☎:400-998-9694

规划合院+叠墅

纯低密大盘

绿城溪径恒庐规划为合院+叠墅,共计363套,(风格现代东方+创新简法),99套合院(285-396方)、264套叠墅 (249-280方)。

绿城溪径恒庐售楼处电话☎:400-998-9694

更多效果图如下:

绿城溪径恒庐售楼处电话☎:400-998-9694

绿城溪径恒庐售楼处电话☎:400-998-9694

绿城溪径恒庐售楼处电话☎:400-998-9694

控规图如下:

绿城溪径恒庐售楼处电话☎:400-998-9694

联排为3F:

绿城溪径恒庐售楼处电话☎:400-998-9694

叠墅为4F:

绿城溪径恒庐售楼处电话☎:400-998-9694

环境及配套

城西低密豪宅区

整体环境非常好:

绿城溪径恒庐售楼处电话☎:400-998-9694 周边配套有:

交通:地铁16号线禹航路站直线约1.2公里(步行约1.6公里);自驾方面,有运溪高架、杭瑞高速等。

学校:禹航实验学校、南湖幼儿园,杭州英特外国语学校,杭州学军中学(海创园校区)等;

商业:约4公里范围内有未来科技城万象城(在建中)、江南时代购物中心、老余杭万达广场等;

产业:主要依靠未来科技外溢,如菜鸟总部直线约2.5公里等;

绿城溪径恒庐售楼处电话☎:400-998-9694 医疗:浙江大学附属第一医院直线约4.4公里等;

其他:附近有薰衣草庄园、浙江职业足球俱乐部(绿城足球学校)等。

绿城溪径恒庐售楼处电话☎:400-998-9694

周边楼盘价格参考

绿城限价3.315万/平叠墅卖的不错

价格如果想要对比周边的话,可以参考隔壁的绿城咏溪雲庐,是绿城的雲庐系列作品,产品力非常强,流水院墅颇为宜居。

咏溪雲庐整盘户型面积约200-390方,清一色改善款,精装限均价3.315万/平,主力总价约660-900万起,社区氛围颇为纯粹。卖的还比较顺利,目前已经售罄。

绿城溪径恒庐售楼处电话☎:400-998-9694

绿城溪径恒庐容积率1.01更低,配置的产品更高端,5.5万的合院,你怎么看?

101、封闭阳台是指:在围护栏、墙上部用铝合金玻璃窗等围闭的阳台。

102、封闭阳台面积如何计算:全部计算建筑面积。

103、半封闭阳台是指:除围护栏、墙以外没有进行围闭的阳台。

104、半封闭阳台面积如何计算:计算一半建筑面积。

105、楼梯是指:是指房屋层之间供垂直交通用的通道,

106、室外楼梯是指:依靠房屋外墙体搭建的永久性楼梯。

107、屋顶楼梯间是指:突出房屋屋面有顶盖,四周有围护结构,层高在2.20米以上供上屋顶维修或安全出口用的用房。

108、屋顶楼梯间算不算总层高:不算。

109、屋顶电梯间:指突出房屋屋面,层高在2.20米以上,供停放、检修、升降电梯的用房。

110、屋顶电梯间算不算总层高:不算。

111、设备间是指:一幢大楼内放置各种应用设备以及进行综合布线交接的房屋。

112、功能区的意思是:根据各共有建筑部位的用途而划分的服务范围称为功能区。

113、连廊是指:连接两幢房屋的走廊。

114、连楼是指:连接两幢房屋的楼房。

115、过街楼是指:底层局部为通道的楼房。

116、架空通廊是指:指以两端房屋为支撑,有围护结构,有顶盖无支柱的架空通道。

117、围护结构是指:将空间竖向分割成相对独立,不易通行的两个或多个部分的实体,起隔离作用。

118、墙和栏杆算不算围护结构:算。

119、基地面积是指:一个小区总的占地面积。

120、间距是指:建筑平面外轮廓线之间的距离。

121、国家间距标准的比例是:楼高:间距=1:1.2。

122、国家日照标准是:2个以上居住空间大寒日底层满窗连续日照不低于1小时,全天满足2小时。

123、结构面积是指:房屋建筑中外墙、内墙、柱等结构构件所占面积的总和。

124、公用面积是指:住宅楼内为住户方便出入,正常交往而设置的公共走廊、楼梯、电梯间等所占面积总和。

125、公用面积是如何分摊的:按栋或单元户数面积按比率分摊。

126、套内建筑面积是指:套门内范围的建筑面积。

127、套内建筑面积包括:套内使用面积、套内墙体面积和阳台建筑面积。

128、套内使用面积是指:指套内住户独自使用的面积。

129、套内使用面积的计算包括:卧室、厨房、卫生间、过厅、起居室、内走道、阳台、壁柜等净面积的总和。

130、套内墙体面积是指:套内使用空间周围的维护或承重墙体或其它承重支撑体所占的面积。

131、套内墙体面积的计算:全部。

132、各套之间的分隔墙按多少计入套内墙体面积:一半。

133、套与公共建筑空间的分割墙以多少计入套内墙体面积:一半。

134、外墙以多少计入套内墙体面积:一半。

135、套内自由墙体以多少计入套内墙体面积:全部。

136、套内阳台建筑面积是指:阳台外围与房屋外墙之间的水平投影面积。

137、公用建筑面积是指:各产权主体共同占有或共同使用权的建筑面积,指各套(单元)以外为各户共同使用,不可分割的建筑面积。

138、容积率是指:项目规划建设用地范围内全部建筑面积与规划建设用地面积之比。

139、一个项目总建筑面积为64000㎡,占地面积为40亩,容积率是多少:2.4

140、建筑密度又称:建筑覆盖率。

141、建筑密度是指:项目用地范围内所有基底面积之和与规划建设用地之比。

142、人口毛密度的计算公式:人口毛密度=小区内总居住人数÷小区内占地面积。

143、平均每平方米造价(元):平均每平方米造价=建筑物总造价÷建筑面积。

144、使用面积系数K1(%):使用面积系数=总使用面积(平方米)÷总建筑面积(平方米)×100%。

145、居住面积系数K2(%):居住面积系数=总居住面积(平方米)÷总建筑面积(平方米)×100%。

146、绿地率:指公共绿地、宅旁(宅间)绿地、公共服务设施所属绿地和道路绿地等四类绿地面积的总和占居住区用地总面积的比率。

147、公共绿地的介定:最小的要求是宽度不小于8米,面积不小于400平方米,

148、哪些绿化不能算入绿地面积:距建筑外墙1.5米和道路边线1米以内的用地,地下车库、化粪池等地表覆土达不到3米深度的设施不能计入。

149、绿化覆盖率:所有绿化面积与建设用地面积之比。即绿化面积÷基地面积×100%

150、绿化覆盖面积:所有植被垂直投影面积的总和。

绿城溪径恒庐

售楼处电话☎:400-998-9694

如有问题欢迎来电咨询,来电即可享受买房优惠!

预约来电尊享购房优惠,可预约案场内部销售人员,专业一对一热情服务,让您用专业眼光去买房。

绿城溪径恒庐售楼处电话☎:400-998-9694

楼盘项目全面介绍,本电话为开发商提供线上预约售楼电话,楼盘项目全面介绍(包含楼盘简介,均价,房价,现房,期房,别墅,叠墅,大平层,价格,楼盘地址,户型图,交通规划,备案价,备案名,项目配套,样板间,开盘时间,认筹时间,楼盘详情,售楼处电话,最新消息,最新详情,周边配套,一房一价,最新进展等详情咨询)楼盘详情丨价格丨更多优惠丨机不可失丨欢迎致电丨诚邀品鉴!售楼处位置丨特价房丨工抵房丨剩余房源丨户型图丨最新消息丨免责声明:将文章内容综合来源于网络、只作分享,版权归原作者所有!!如有侵权,请联系我们,我们第一时间处理如有问题欢迎来电咨询,专业一对一热情服务,让您用专业眼光去买房。如果您想了解更多楼盘详情,欢迎提前预约拨打

声明:本文由入驻焦点开放平台的作者撰写,除焦点官方账号外,观点仅代表作者本人,不代表焦点立场。