融创滨江映(售楼处)首页网站-2025融创滨江映营销中心(售楼处中心)-周边环境-户型-价格-地址-楼盘详情-户型配套-售楼处电话-交房时间
扫描到手机,新闻随时看
扫一扫,用手机看文章
更加方便分享给朋友
融创滨江映售楼处电话:400-8878-824
融创滨江映营销中心热线400-887-8824(官方预约看房热线)
世界的港城时代的滨江映
长三角国际都市2021影响力作品
高铁城芯建筑面积约90-130㎡精装宽境住区

融创滨江映售楼处电话:400-8878-824
融创滨江映营销中心热线400-887-8824(官方预约看房热线)
一、基础信息
项目名:滨江映
开发商:融创中国|美好置业
项目产品:建筑面积约90-130㎡精装宽境住区
总户数:1087户
住宅产权:70年

融创滨江映售楼处电话:400-8878-824
融创滨江映营销中心热线400-887-8824(官方预约看房热线)
交付标准:精装交付
交房时间:预计2024年11月份
物业公司:融创物业
物业费:2.5
容积率:2.0

融创滨江映售楼处电话:400-8878-824
融创滨江映营销中心热线400-887-8824(官方预约看房热线)
绿化率:35%
车位配比:1:1.25
首付:5万
均价:1.1-1.2万/平,总价108万起
1、品牌价值
2021年,融创中国、美好置业,重磅联袂,将融创映系美学迭代新品——滨江映,落址张家港中心,为时代创造更多元的生活方式。
【融创中国美好城市共建者】
融创中国共建升级未来城市中心,参与苏州相城高铁新城、太仓娄江新城等多个城市CBD打造,与世界级长三角城市群共潮头。
融创滨江映
咨询高峰期请耐心等待,预约来电尊享内部优惠,专业一对一热情服务,让您用专业眼光去买房。
【美好置业美好心灵美好人生】
美好置业(000667),中国百强房企。31载沉淀,布局25城,匠筑40余红盘,致力于为消费者提供精筑纯粹品质社区。
2、配套价值
◎多维交通城市瞬息切换
高铁枢纽:张家港站(直线距离约3.5公里),1小时长三角通勤圈,深度融入上海“半小时经济圈”;
城市干线:塘桥客运站、202县道、204国道、吴弘大道、西环路、北京路、北环路、南京路、维达路,快速联通港城主城、苏州主城;
机场环绕:苏南硕放国际机场、上海虹桥国际机场、上海浦东国际机场;

◎鎏金配套绘就国际前沿生活版图
国际门户:张家港奥体中心(规划中)、国际会展中心(规划中)、国际会议中心(规划中)、东渡国际人才创业街区(在建中)等;
国际配套:第三人民医院、张家港市音乐厅(规划中)、长江数字文化博物馆(规划中)等;

国际商业:大润发、曼巴特购物广场、万达广场、吾悦广场等;
国际教育:塘桥高级中学、塘桥中心小学、梁丰学校等;
国际生态:约17.7平方公里黄泗浦城市生态公园、文化生态双轴;
融创滨江映
咨询高峰期请耐心等待,预约来电尊享内部优惠,专业一对一热情服务,让您用专业眼光去买房。
产品价值
极简内核:轻盈飘逸和通透现代流线体裁,以利落的线条、极简的色彩,让建筑通体如水晶般闪耀,辉映时代光芒。
极质底色:萃取全球高端居所的奢华底色——莫兰迪,辅以大面积玻璃和金属线条勾勒,淬炼时间的品格艺术。
全龄谧境:以“高级、定制、艺术”为核心理念。匹配时代人物精神境界,超阔楼间距,6大社区欢乐场景,将生活与景观融合。

科学布局:打破空间限制,起居厅与餐厨极尽铺展,户型科学布局,超高窗墙比,室外配置宽幕观景阳台。
品牌精装:国际品牌精装,同步全球健康理念,中央空调(部分户型)+新风配置(部分户型),筑就精英人群高品质的生活方式。
4、服务价值
【融创服务中国品质服务引领者】
融创物业(01516.HK),壹级物业管理资质,以“至善·致美”为服务理念,为客户提供全面的高品质物业服务。
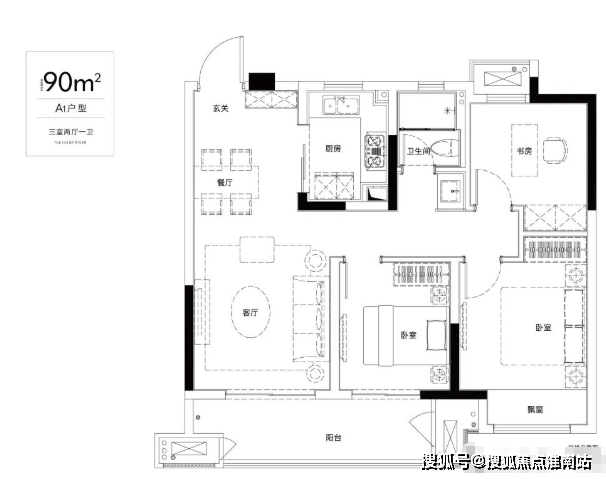
5、【户型赏析】




融创滨江映售楼处电话:4008878824【售楼中心热线】融创滨江映营销中心热线400-887-8824融创滨江映售楼处地址400-8878-824,楼盘项目全面介绍,本电话为开发商提供线上预约售楼电话,楼盘项目全面介绍(包含楼盘简介,均价,房价,现房,期房,别墅,叠墅,大平层,价格,楼盘地址,户型图,交通规划,备案价,备案名,项目配套,样板间,开盘时间,认筹时间,楼盘详情,售楼处电话,最新消息,最新详情,周边配套,一房一价,最新进展等详情咨询)楼盘详情丨价格丨更多优惠丨机不可失丨欢迎致电丨诚邀品鉴!售楼处位置丨特价房丨工抵房丨剩余房源丨户型图丨最新消息丨免责声明:将文章内容综合来源于网络、只作分享,版权归原作者所有!!如有侵权,请联系我们,我们第一时间处理如有问题欢迎来电咨询,专业一对一热情服务,让您用专业眼光去买房。如果您想了解更多楼盘详情,欢迎提前预约拨打融创滨江映售楼处电话☎400-887-8824
声明:本文由入驻焦点开放平台的作者撰写,除焦点官方账号外,观点仅代表作者本人,不代表焦点立场。
