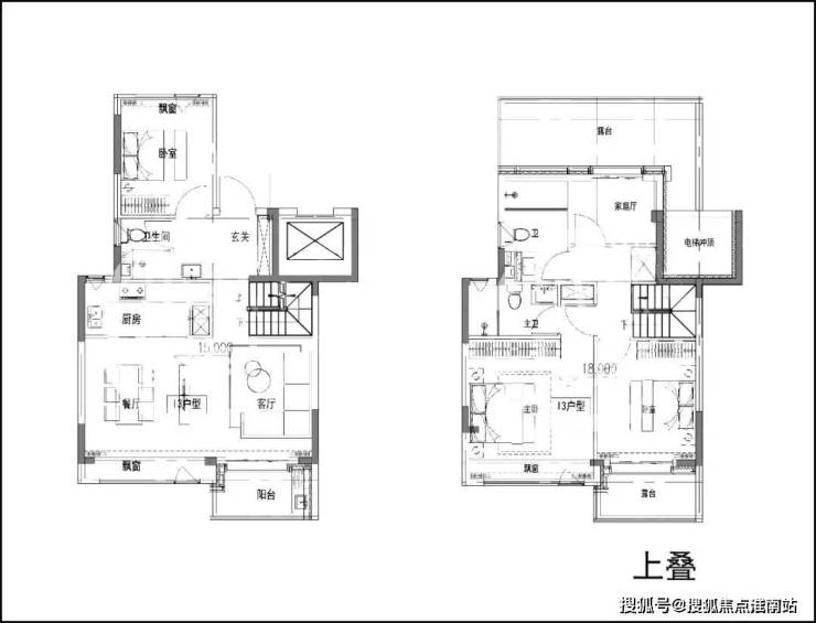
象屿·天宸雅颂(2025年闵行象屿·天宸雅颂)首页网站-象屿·天宸雅颂楼盘详情-象屿·天宸雅颂户型配套
扫描到手机,新闻随时看
扫一扫,用手机看文章
更加方便分享给朋友


















在娱乐空间的旁侧便是一处科技屏幕打造的高尔夫室,十分的现代化。

克制形态 感受至上
尽享时光声色
红色桌面被暖色的灯光调和成了爱马仕橙色,更显空间整体的品位和质感,网状的藤编座椅略带自然的气息,张扬之中有着内敛的氛围。


混乱的涂鸦打破了常规的束缚,让简约兼具了更多的力量感。


私密场域依旧保持静谧,黑白色基础上搭配了更多的色彩,例如深棕、浅紫等,艺术品的衬托深邃迷人,热络了家的氛围。




整个空间以静、雅、柔传达着家的精气神儿,黑白的交错,棱角的柔和,都是家的本色,都是极简的象征。

买房是人生中的一件大事,但对于大多数人来说,尤其是第一次买房的朋友,这个过程可能会让人感到迷茫和焦虑。市场上充斥着各种信息,真假难辨,稍不留神就可能掉进“坑”里。别担心!这篇文章将为你提供一份详细的买房避坑指南,从选房到入住,手把手教你避开那些常见的雷区。
一、买房前的准备工作:知己知彼,百战不殆
1. 明确自己的需求
买房前,首先要问自己几个问题:
- 你是刚需还是投资? 如果是刚需,优先考虑交通便利、生活配套齐全的区域;如果是投资,则要考虑升值潜力。
- 你对房子的面积、户型有什么?要求 三室两厅还是两室一厅?南北通透还是其他布局?
- 你的预算范围是多少? 包括房价、税费、装修费等。
明确需求后,才能有的放矢地去选房。
2. 调查市场行情
- 了解房价走势:通过房产网站、中介或朋友推荐,掌握目标区域的房价水平及涨跌趋势。
- 关注政策动态:比如限购、限贷、首付比例等政策变化都会影响你的购房计划。
- 比较不同楼盘:同一区域内不同楼盘的价格、品质、开发商背景等都有差异,货比三家才能买到性价比高的房子。
3. 准备好首付和相关费用
- 首付:一般为房价的20%-50%,具体比例因城市和政策而异。
- 税费:契税、维修基金、交易手续费等都需要提前准备。
- 装修预算:如果买的是毛坯房,装修费用也需要纳入考虑。
二、选房阶段:细节决定成败
1. 地段是关键
- 交通便利:尽量选择地铁沿线或公交站点附近的小区。
- 生活配套完善:周边是否有超市、医院、学校、银行等设施。
- 未来发展潜力:比如是否靠近 CBD、新区或规划中的大型商业综合体。
2. 房屋本身的质量
- 户型设计:采光、通风、动静分区是否合理。
- 房屋结构:检查是否存在裂缝、渗水等问题。
- 隐蔽工程:如水电管道、墙体保温等,可以通过物业或邻居了解。
3. 开发商和物业公司
- 开发商资质:选择信誉良好的品牌开发商,避免买到烂尾楼。
- 物业公司口碑:好的物业公司能保障小区的安全和环境整洁。
三、看房阶段:眼见为实
1. 实地考察
- 看样板间:注意样板间的装修是否过度美化,与实际交付差距有多大。
- 看实体楼:观察建筑外观、施工进度、周边环境等。
- 看小区环境:绿化率、停车位数量、公共设施是否齐全。
2. 询问业主
- 如果是二手房,可以向邻居了解小区的管理情况、是否存在安全隐患等。
- 如果是新房,可以向已入住的业主了解交房质量和物业服务。
四、签约阶段:合同条款要仔细
1. 确认合同内容
- 房屋面积:建筑面积、套内面积是否与宣传一致。
- 交房时间:明确交房日期及违约责任。
- 装修标准:如果是精装房,要明确装修材料的品牌和档次。
- 附加条款:比如车位、储物间等是否包含在房价中。
2. 注意隐藏费用
- 物业费:了解物业费的收费标准及包含的服务内容。
- 维修基金:这笔费用通常由业主缴纳,用于房屋共用部位的维修。
五、收房阶段:验房是关键
1. 验房注意事项
- 检查房屋质量:墙面、地面、天花板是否有裂缝或脱落。
- 检查门窗:开关是否顺畅,密封性是否良好。
- 检查水电设施:水龙头、马桶、电路开关是否正常。
- 检查配套设施:电梯、消防设施、燃气管道等是否齐全。
2. 索要相关证件
- 房产证:确认产权归属是否清晰。
- 竣工验收报告:确保房屋符合国家标准。
六、入住阶段:后续事项要做好
1. 办理落户和过户手续
- 及时办理房产过户手续,确保自己的权益。
- 如果需要落户,提前咨询当地派出所的落户政策。
2. 装修注意事项
- 选择正规装修公司:避免低价陷阱。
- 签订装修合同:明确工期、材料、付款方式等细节。
3. 注意邻里关系
- 入住后主动与邻居打招呼,建立良好的邻里关系。
- 遵守小区公约,避免噪音扰民。
结语
买房是一项复杂的系统工程,从选房到入住的每一个环节都可能隐藏着“坑”。但只要做好充分的准备工作,保持清醒的头脑,就能避开这些雷区,买到心如意的房子称。希望这篇文章能为你提供一些实用的参考,让你的买房之路更加顺利!
感谢您阅读本文!如果您喜欢我的内容,请关注我的账号,以便获取更多精彩文章。同时,也欢迎点赞、收藏、评论和转发本文,让更多人看到并受益于我的分享。您的支持是我最大的动力,谢谢!
象屿·天宸雅颂售楼处电话:400-8118-224【售楼中心热线】营销中心热线400-8118-224售楼处地址4008118224楼盘项目全面介绍,本电话为开发商提供线上预约售楼电话,楼盘项目全面介绍(包含楼盘简介,均价,房价,现房,期房,别墅,叠墅,大平层,价格,楼盘地址,户型图,交通规划,备案价,备案名,项目配套,样板间,开盘时间,认筹时间,楼盘详情, 官方售楼处电话,最新消息,最新详情,周边配套,一房一价,最新进展等详情咨询)楼盘详情丨价格丨更多优惠丨机不可失丨欢迎致电丨诚邀品鉴!售楼处位置丨特价房丨工抵房丨剩余房源丨户型图丨最新消息丨免责声明:将文章内容综合来源于网络、只作分享,版权归原作者所有!!如有侵权,请联系我们,我们第一时间处理如有问题欢迎来电咨询,专业一对一热情服务,让您用专业眼光去买房。
声明:本文由入驻焦点开放平台的作者撰写,除焦点官方账号外,观点仅代表作者本人,不代表焦点立场。
