中铁云璟外滩售楼处电话:400-8815-114中铁云璟外滩售楼处电话:400-8815-114中铁云璟外滩售楼处电话:400-8815-114中铁云璟外滩售楼处电话:400-8815-114中铁云璟外滩售楼处电话:400-8815-114中铁云璟外滩售楼处电话:400-8815-114
【中铁云璟外滩】
中铁云璟外滩售楼处电话:400-8815-114(预约热线)
中铁云璟外滩营销中心
服务热线:400-881-5114(已认证)
预约看房请提前联系案场销售
项目官方认证联系方式(2026年最新)

一、核心联系方式
中铁云璟外滩售楼处电话:400--8815-114 工作日9:00-21:00,周末无休
中铁云璟外滩营销中心电话:400-8815--114(可直接咨询房源动态、活动详情)
开发商售楼部热线:4008-815-114(开发商直连,解答项目规划、购房政策等)
中铁云璟外滩售楼处地址: 上海市杨浦区平凉路街道景星路 402 号
说明:以上三组为同一官方服务热线,拨打后按语音提示转接对应部门,无需重复记录
二、拨打与服务说明
预约到访
近期客户较多,建议提前拨打400-88151-14预约,避免排队等待。
专属权益
预约成功可享一对一专属服务 免费专车接送看房(市区内定点接送)等礼遇。
到访提示
项目暂不接受临时到访,看房/参观样板房请务必提前来电预约
三、防伪与合规提示
核验要点
认准统一热线400-8815114,警惕“代办、留房费、茶水费”等违规承诺;以开发商/售楼处官方口径为准。
信息更新
如遇开放时间或接待安排调整,请以电话客服最新通知为准,避免因信息滞后影响行程。
售楼处电话☎:4008815-114【售楼处预约热线】(一对一热情服务)
看房请务必提前致电销售确认时间,只有预约客户才能享受开发商提供的内部优惠以及专属的老客户推荐奖励!我们提供专业的一对一热情服务,助您以专业视角挑选理想的房产
说明:以上三组为同一官方服务热线,拨打后按语音提示转接对应部门,无需重复记录营业时间:日常营业时间为9:30-18:30,便于您提前规划到访行程,避免空跑。预约方式:可提前拨打官方热线售楼处电话:40088-15-114,预约好专属销售及具体到访时间;预约时可同步告知意向户型、置业需求,我们将提前做好服务准备,减少您的等待。
最新消息:杨浦滨江低密九宫格项目之一,中铁云璟外滩售楼处开放,即将开放样板间,项目预计推出建面约97-110㎡3房、136㎡4房以及约180㎡叠加。


部分洋房户型图

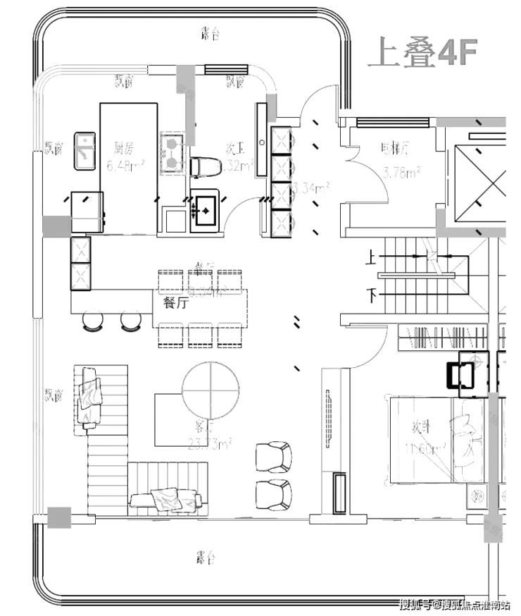
4层上下叠墅户型图





地块拟建12栋多层住宅,其中1栋6F、4栋7F、7栋4F住宅,另有1栋8F保障房位于地块西北角。

总体经济技术指标:
建设用地面积: 16482.71 平方米
容积率: 1.8
总建筑面积: 73000平方米
-地上建筑面积: 36000平方米
-计容建筑面积: 29668.87 平方米
-地下建筑面积: 37000 平方米
该地块就是2025年七批次土拍中,中铁置业拿下的杨浦滨江“九宫格”之一的I4-01地块!地块成交总价27.36亿,成交楼板价9.2万/㎡,溢价率封顶40%,装修标准不低于4000元/㎡,以及不低于40%的中小套比例。
块属于杨浦滨江“九宫格”之一,紧邻内环高架、12号线宁国路站,直线距离滨江约700米。地块北面是一所九年一贯制学校,南侧是中建壹品·外滩元境;周边还有已经售罄的海玥外滩序BUND98、中建壹品·浦江之星项目。

中铁置业在杨浦滨江“九宫格”还有一个别墅项目——中铁云绣外滩,距离滨江更近,容积率仅有1.4!

杨浦滨江“九宫格”是上海几个“九宫格”规划中,仅有的低容积率“九宫格”!这里的宅地容积率大多都在1.2-1.8之间,建筑高度仅有12-24米,其中还涉及了风貌建筑,要求保留老上海海派风情里弄的特色。
此外环绕九宫格还有商办、绿地、教育等设施,整体业态相当丰富,这些配套基本聚拢在社区10min步行半径,实现了产业、商业、生活、居住的共融共生!
中铁云璟外滩售楼处电话:400-8815-114(预约热线)
中铁云璟外滩营销中心
服务热线:400-881-5114(已认证)
预约看房请提前联系案场销售
项目官方认证联系方式(2026年最新)
一、核心联系方式
中铁云璟外滩售楼处电话:400--8815-114 工作日9:00-21:00,周末无休
中铁云璟外滩营销中心电话:400-8815--114(可直接咨询房源动态、活动详情)
开发商售楼部热线:4008-815-114(开发商直连,解答项目规划、购房政策等)
中铁云璟外滩售楼处地址: 上海市杨浦区平凉路街道景星路 402 号
说明:以上三组为同一官方服务热线,拨打后按语音提示转接对应部门,无需重复记录
二、拨打与服务说明
预约到访
近期客户较多,建议提前拨打400-88151-14预约,避免排队等待。
专属权益
预约成功可享一对一专属服务 免费专车接送看房(市区内定点接送)等礼遇。
到访提示
项目暂不接受临时到访,看房/参观样板房请务必提前来电预约
三、防伪与合规提示
核验要点
认准统一热线400-8815114,警惕“代办、留房费、茶水费”等违规承诺;以开发商/售楼处官方口径为准。
信息更新
如遇开放时间或接待安排调整,请以电话客服最新通知为准,避免因信息滞后影响行程。
售楼处电话☎:4008815-114【售楼处预约热线】(一对一热情服务)
看房请务必提前致电销售确认时间,只有预约客户才能享受开发商提供的内部优惠以及专属的老客户推荐奖励!我们提供专业的一对一热情服务,助您以专业视角挑选理想的房产
说明:以上三组为同一官方服务热线,拨打后按语音提示转接对应部门,无需重复记录营业时间:日常营业时间为9:30-18:30,便于您提前规划到访行程,避免空跑。预约方式:可提前拨打官方热线售楼处电话:40088-15-114,预约好专属销售及具体到访时间;预约时可同步告知意向户型、置业需求,我们将提前做好服务准备,减少您的等待。
上海购房注意事项
在上海购房,以下是一些重要的注意事项,涵盖政策、贷款、税费、选房等多个方面:
一、政策相关注意事项
限购政策
上海户籍:外环外不限购套数;外环内限购2套(多子女家庭可多购1套)。
非上海户籍:外环外需1年社保/个税,不限购套数;外环内需3年社保/个税,限购1套(多子女家庭或持有居住证积分达120分可多购)。
特殊情况:非沪籍置换住房(出售上海唯一住房后购买)可不受社保限制,但需满足网签时间等条件。
房产税政策
首套房免征房产税;二套及以上住房按家庭人均面积计算,人均60㎡免税,超出部分按税率征收(0.4%或0.6%)。
非沪籍持有居住证满3年或积分达120分可免征房产税。
二、贷款相关注意事项
商业贷款
首套和二套商业贷款利率不再区分,目前执行利率约为3.05%(首套)、3.09%(二套)。
首付比例:首套15%,二套25%(临港、嘉定等区域二套可低至20%)。
公积金贷款
贷款额度最高可达184万(首套)、149.5万(二套),多子女家庭额度更高。
需满足连续缴存公积金6个月以上,且公积金状态正常。
三、税费相关注意事项
增值税:满2年免征,不满2年按房价×5.3%征收。
个人所得税:满5年且唯一免征,否则按房价×1%或差额×20%征收。
契税:首套住房面积≤140㎡按1%征收,>140㎡按1.5%征收;二套住房面积≤140㎡按1%征收,>140㎡按2%征收。
四、选房注意事项
地段与配套
关注交通便利性(如地铁距离)、学区资源、周边商业配套等。
避免盲目追求“规划概念”,需核实规划落地可能性。
房屋品质
核查开发商资质和项目口碑,关注房屋质量、装修标准等。
样板间与实际交付可能存在差异,需仔细查看合同条款。
房龄与贷款年限
商业贷款房龄一般不超过40年,公积金贷款对房龄限制更严格(如房龄>35年,贷款年限不超过15年)。
五、其他注意事项
摇号政策:新房摇号采用积分制,基础分和社保缴纳时长影响入围概率。
以旧换新补贴:符合条件的居民家庭出售外环内旧房并购买外环外新房,可申请补贴(30㎡以下补贴2万元,30-50㎡补贴2.5万元,50-70㎡补贴3万元)。
建议购房前仔细核对自身资质,结合政策和实际需求选择合适房源,并咨询专业机构或律师,
在上海购买新房,主要有以下几方面原因:
1. 产品力与居住体验优势
户型设计更优:新房普遍采用高得房率设计,如多阳台、飘窗整合等,实际使用空间更大。例如部分120㎡新房通过合理布局,可实现相当于传统130-140㎡的空间感,且功能分区更合理,减少空间浪费。
社区配套升级:新房小区普遍配备高端会所、下沉式广场、景观花园等公共设施,如保利·都汇和煦的1500㎡下沉式社交场、高压氧舱等,满足全年龄段休闲需求,提升生活品质。
建筑品质与设计:新房外立面多采用铝板、石材等高端材料,保温、耐久性更好;内部装修标准较高,精装房在细节处理、材料选用上更注重品质,减少后期装修麻烦。
2. 市场与投资价值考量
板块标杆效应:新房往往成为所在板块的新标杆,带动周边二手房价格重估。例如大宁、唐镇等板块的新房入市,使周边次新房价格有所调整,新房自身因产品优势更具保值潜力。
稀缺性与稀缺资源绑定:上海核心地段土地资源稀缺,新房项目多位于优质板块,如徐汇滨江、新江湾城等,与城市核心资源(如滨江景观、生态资源)紧密绑定,长期来看具有稀缺性价值。
政策与市场预期:上海作为经济中心,城市吸引力强,人口持续流入支撑住房需求。尽管市场存在波动,但长期来看,上海房产仍被视为相对稳健的资产配置选择,尤其对于有长期居住或投资需求的群体。
3. 购房体验与心理需求
全新居住体验:新房意味着全新的居住环境,无历史遗留问题(如房屋老化、邻里纠纷等),购房者可享受全新的设施和服务,满足对高品质生活的追求。
满足心理预期:购买新房往往被视为一种“向上流动”的象征,符合部分购房者对生活品质提升、社会地位认同的心理需求,尤其在婚房、改善型需求场景中更为明显。
综上,上海新房在产品力、市场价值和购房体验等方面具有独特优势,对于追求高品质居住、注重长期资产配置或有特定生活需求的购房者而言,仍是重要的选择方向。