建屋新棠玥售楼处电话☎:400-998-9694建屋新棠玥售楼处电话☎:400-998-9694建屋新棠玥纯新盘即将公开实景示范区,主打低地价、高产品力,拟建11栋高层住宅,定位高端宜居社区。
建屋新棠玥
售楼处电话☎:400-998-9694
如有问题欢迎来电咨询,来电即可享受买房优惠!
预约来电尊享购房优惠,可预约案场内部销售人员,专业一对一热情服务,让您用专业眼光去买房。
建屋新棠玥售楼处电话☎:400-998-9694
建屋新棠玥售楼处电话☎:400-998-9694
今年的园区,接下来纯新盘真的少了!
星合晋墅、绿城沁百合、天熠东方都已经先后取证,现在还没取证的项目只有绿城湖西凤起潮鸣和建屋新棠玥了!
其中,建屋新棠玥的产品信息在近期首次对外发布,项目两种官方户型172平和215平正式公布!
作为板块目前地价第一低的地块,2025年,斜塘价格能开出来彩蛋吗?
建屋新棠玥售楼处电话☎:400-998-9694

实景示范区即将盛大公开
建屋·新棠玥,即斜港置业斜塘86号地块项目,即,苏地2023-WG-86号地块项目, 位于工业园区星塘街西、独墅湖大道北,是2023年11月29日,斜港置业以底价150039万元竞得, 成交楼面价22000元/平。

建屋新棠玥售楼处电话☎:400-998-9694
该项目的地块用途为城镇住宅用地,占地面积40117.34平,建筑面积106364.42平,计容建筑面积68014.72平,容积率1.7.
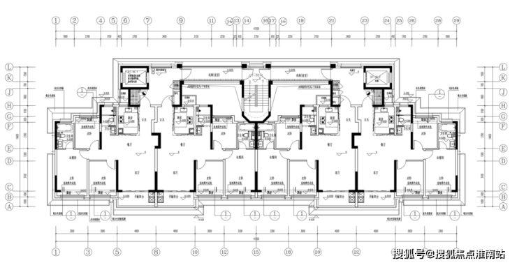
根据规划,项目拟建 11栋13-17F住宅,其中,1栋13F小高层、1栋14F小高层、2栋16F小高层、7栋17F小高层。

建屋新棠玥售楼处电话☎:400-998-9694
项目的产品发布会在上周举办,部分产品信息也首次发布!同时,项目预计将于近期公开实景示范区!
项目对标沧浪亭的整体设计,引入六大苏园核心场景,打造“三轴六境六园七会所”,通过“池岛-静潭-山石-水榭-草林-竹嬉”六种水岸度假生活美学,重塑当代游园体验,并且通过下沉会所、以及架空层设计,引入水景、绿植与灰空间,营造一种仿若置身一座“大园子”的体感,在建筑排布的设计主动减容,最终达成了19.8%的容积率,也就是在五分之一土地上造房,实现“低密”基因的强化,以及人均均好的景观实现。

建屋新棠玥售楼处电话☎:400-998-9694

建屋新棠玥售楼处电话☎:400-998-9694
1,这是斜塘板块的纯新盘;
2,该项目的容积率为1.7,其产品为11栋小高层,以17F小高层产品为主;
3,从效果图来看,其住宅的风格为现代化;
4,其外立面的材料为浅灰色铝板、中灰色铝板、银白色铝板、灰色型铝板、米白色石材、灰色金属格栅、香槟金铝板等;
5,项目的每层层高为3.1米;
6,根据要求,项目的住宅为全装修交付, 装标要求在2000-5000元/平;
建屋新棠玥售楼处电话☎:400-998-9694

建屋新棠玥售楼处电话☎:400-998-9694
两种户型出炉
建屋·新棠玥目前只公布了两种户型,分别是建筑面积约172平和215平!

建屋新棠玥售楼处电话☎:400-998-9694


建屋新棠玥售楼处电话☎:400-998-9694


建屋新棠玥售楼处电话☎:400-998-9694 建屋新棠玥售楼处电话☎:400-998-9694
效果图过程稿,非交付标准

建屋新棠玥售楼处电话☎:400-998-9694

建屋新棠玥售楼处电话☎:400-998-9694


建屋新棠玥售楼处电话☎:400-998-9694

建屋新棠玥售楼处电话☎:400-998-9694
效果图过程稿,非交付标准
此前公示中,项目还公布了一种小高层户型!
10#,14F小高层
2梯4户

3房2厅2卫

3房2厅3卫的房屋套型
3开间朝南
客厅是方厅,开间为4米
建屋新棠玥售楼处电话☎:400-998-9694 阳台开间为4米
主卧,套房设计,有独立卫生间,主卧的开间为3.3米

周边界面 近独墅湖
建屋·新棠玥位于工业园区星塘街西、独墅湖大道北,属于斜塘板块,不过项目南面就是独墅湖板块。
建屋新棠玥售楼处电话☎:400-998-9694 周边界面来看,居住氛围也是比较浓的。
北面是住宅小区莲花新村,东面河流,南面是独墅湖大道,隔河就是住宅小区翰林缘,西面则是在建的保利珺华赋。

建屋新棠玥售楼处电话☎:400-998-9694
周边配套来看目前还是比较完备的,项目周边已经比较成熟。
交通上来看,目前距离西面最近的是8号线莲池桥站,大约在1.2公里左右,东面距离较近的是在建的6号线北斜步站,约2.0公里。
自驾是比较方便的,项目南面就是独墅湖大道,往西直接连接南环和东环,去往市区是比较方便的,东面的星塘街,可以连接奥体和独墅湖高教区。再往东面的中环东线,串联湖东、青剑湖。

建屋新棠玥售楼处电话☎:400-998-9694 建屋新棠玥售楼处电话☎:400-998-9694
商业上面,距离比较近的是独墅湖的翰林邻里中心了,此外南面还有文星广场、文萃广场等,北面则有莲花商业街。大型商业设施上则要去往奥体中心、联丰广场、斜塘邻里中心等。
教育资源上,周边主要有莲花学校、斜塘学校等。
其他设施来看,还有独墅湖医院、苏州外国语学校、苏大附属儿童医院等。

建屋新棠玥售楼处电话☎:400-998-9694
价格会在多少?
这两年,斜塘板块有多个项目入市,所以板块房价其实已经基本出炉了。
距离项目最近的就是保利珺华赋了,项目在成交楼面价22075元/平,备案均价38419元/平。
而建屋·新棠玥地块成交楼面价22000元/平,是目前斜塘板块新出让地块中楼面价最低的一个,而且对比保利珺华赋,有着75元/平的价差,差异不是很大,未来也可以作为一个参考价!斜塘新的洼地来了?
1、查看五证
购买期房的话,则一定要确定开发商五证两书一表齐全,这是关于买房的基本知识中最重要的一项,所谓五证就是指《国有土地使用证》、《建筑用地规划许可证》、《建筑工程规划许可证》、《建筑工程施工许可证》和《商品房预售许可证》,有了五证两书才能办房产证,这是个先决条件,而且这个过程中开发商拿地的出让金都结清,楼盘本身没抵押才行。两书为质量保证书和使用说明书。这两书是房屋竣工并且通过验收后获得的。房子盖完了没有通过验收不行。一表为竣工备案表。这个是由当地质检站在所有验收工作完成以后加盖公章交给开发商的。
2、选择开发商
新手第一次买房注意事项中慎重选择开发商也很重要,因为一个好的开发公司它必然有一个好的理念和好的团队、好的物管服务,它已经开发和服务的小区是经得起时间的检验,可以得到业主的口碑传颂的。好口碑的开发商是房屋质量的保障,一般好的开发商资质高、资金充足。
3、挑选户型
新手购房须知,户型的挑选不能马虎,不同朝向、不同通风采光的户型会直接影响业主的居住舒适度,maigoo小编为大家整理了几点:1、南北通透,户型方正,采光通风俱佳;2、朝向优劣:正南>东南>西南>东>西>北;3、对侧通风,是通风条件最好的;4、房子内部,各功能区域面积分布均匀,开间:进深=1:1.5;5、动静分区,卧室与客餐厅、厨房不要挤在一起。
4、 挑选楼层
挑选楼层也像挑选户型一样重要,初次买房须知中的关键一项,不同的楼层,房子的通风采光、视野景观以及业主的私密性、居住舒适度,甚至噪音污染、出行便利性等都或多或少有所不同,一般来说,低楼层出行更方便,如遇意外也更容易逃生,但是通风、采光、视野等相对高楼层较差,私密性较差,噪音污染也严重;高楼层视野好、空气清新,通风采光都更佳,但是如果电梯故障,可能会影响出行,总的来说,一栋楼的1/3至2/3之间的楼层是较好的楼层,属于不高不低的“黄金楼”。

5、多学习选房知识
学无止境,能看到这篇买房须知的18个常识就说明读者朋友已经在努力了,很多购房者认为,当下房价过高,所以买房时,一般会在同等区域、同等地段选择价位便宜的楼盘,或者买房时看到区位好而不管户型、内部环境、物管服务、生活成本等,这就像买一件衣服,你只管款式而不管布料、价格等,正确的做法是多学习选房知识,关注户型好坏,房屋质量等干货。
6、评估购房能力
即使掌握了很多关于买房的基本知识,但很多人却对自己的经济能力认识不清,这也是很不明智的,买房之前一定要评估自己的购房能力,量力而行,对于刚需族来说,由于经济能力有限,所以都会采取贷款的方式买房。而贷款每个月需要交一定数额的月供,为了保证生活质量不受影响,避免断供的风险,maigoo小编建议月供的数额最好控制在总收入的50%以内。而且不仅要评估当前收入,还包括你接下来三至五年内短期的工作发展潜力以及未来十年至二十年后可能的职业安排,同时还包括你平时的消费习惯,以及家人的健康状况等,最后估算出一个数据。
7、看优惠
等待时机抓住又会也是买房须知的重要常识,买房子原本要花比较多的钱,买房子的时候能省一些算一些,所以购房者要懂得一些买房子的优惠政策。对于初次购买房屋的朋友来说,一般情况下都能享受首套房优惠政策,也就是说只要没买过房或没有贷款记录就可享受,开发商经常找“托”这样让购房者觉得“一房难求”在买房的时候职业顾问也会说再考虑一天就会被别人抢走房源,这样一来就会冲动消费,大家一定要耐住性子。
8多看多比较
年轻人买房时,最好不要好大喜贵,而且还想着一步到位,一定要像买东西一样货比三家,经过比较能获得有些经验,而房产综合性太强,它包含的面太宽,主要看你在比较过程中关心的内容全不全面,而且根据自己能承受的范围做出合理的决定,因为没有十全十美的房子,买房也不可能考虑到各方面的细节。
9、看规划
买房当然要挑楼盘,挑小区,挑户型,但是也不能只看房子,还要看房子的位置,这也是买房须知和注意事项中很重要的一点,内行人买房首先看的是地段,华人首富李嘉诚也说过:“决定房地产价值的因素,第一是地段,第二是地段,第三还是地段。”好地段的房产保值或升值的空间更大,购房风险相对城市偏远郊区较小,就算未来房价暴跌,首先下跌的也是地段较偏的房产,地段好的房产房价一般都是最后下降的。建议大家在购置房产时,要切记紧跟城市发展的方向。

10、楼间隔
什么是楼间隔?就好似两相邻楼的外墙面距离,同一个小区两栋相邻的楼与楼之间的距离,建筑间距的控制是为了保障人们工作、生活的质量与安全,大楼间隔宽的住宅区不一定能建造好的住宅区,大楼间隔特别宽也能建造好的住宅区,间隔宽是业主生活安静、隐私、视野广阔,也是景观建设的平台,但是利用平台建造景观安静、隐私、舒适的环境相反,大楼的间隔并不特别宽,但是这样的理念和团队创造了美丽、舒适、健康的环境,也被称为好的住宅区。
11、小区环境
重点看小区环境是买房须知的重要常识,小区景观、绿化、配套等与生活密切相关,更是楼盘质量的体现,大超市、医院、学校,关乎生活便捷度;是否是学区房,关乎小孩上学;附近的公交线路、地铁线路,交通是否便捷;好小区内部和周边的配套设施也相对完善一些,不仅水、电、燃气、煤气、宽带、停车场、公共厕所、多功能儿童活动空间、园区休闲场所、物业公司等内部配套设施能满足业主的日常居住需求,周边还有便利店、菜市场、食品店、药店、小型超市、学校、公交站点或者地铁站点等多功能服务配套满足业主以及孩子的衣食住行的更高需求。
12、避免楼层
选择楼层的时候经常是不随人愿,既然选不到“黄金楼层”,至少不要选到一些太糟糕的,比如极端层,顶层和底层不建议买,高层住宅如果选择低楼层的房子的话,采光可能就不是很好,而且容易潮湿,发霉,滋生蚊子。顶层容易出现漏水现象,虽然能修理但耗时耗力,修理时间极可能被无限延长。设备层则是专门供水,供电的中间楼层,要是常年居住在设备层的附近的话,不仅机器设备的噪音把人折磨得无法休息,连机器的辐射也会影响人的身体健康。
13、价格挑选
很多购房者认为房价才是买房最关键的因素,其实不然,适不适合自己才是最关键的。在自己能力范围内,如果房价偏高你也能接受,这样你就会觉得地段好、配套好、户型好、楼层好的房子才是最好的,就算房价贵点也愿意买。但是,如果你能力有限、购房资金有限,那么估计买哪里都会觉得贵,甚至觉得房价越便宜越好,价格挑选要比较个人承受范围、交通状况、社区环境、户型结构等条件衡量楼盘价格。

14、不要贪大
买房一定不要贪大是买房时的重要事项,面积以适用为原则,不要为大而大,现在年轻人都喜欢独自出来居住,所以一般买个80、90平的大两室或者小三室就完全足够居住,非要买大房子,不仅不实用,而且还会涉及到一定的税费,国家区分豪宅和普通住宅的分界线就是144平米,所以在购买房子的时候,不要超过140平,除了税费要多交不少,对于一些物业费取暖费等等各个方面都会高出很多,长时间算下来,多出的这些没准在日后还能多出一套首付钱。
15、考虑孩子问题
考虑孩子是买房时非常必要的,既然婚恋是买房子的重要原因,那么孩子就是一个不得不考虑的因素,首先在购房的户型上必须考虑孩子的房间,购房的户型最好要两居室以上;其次那就是注意考察周边的教育设施配套,孩子要上学,从幼儿园到小学到中学,同时还要考虑孩子路上的安全问题,尽量选择距离近的房子。这样可以给孩子节约大量的时间,让孩子有充裕的时间学习和休息。
16、了解物业
物管的好坏要看有没有专业的团队,有无完善的设施、健全的内部管理。不同的物业公司所做的服务千差万别,物业公司能否尽善尽美地完成自己的任务牵扯到小区的整体质量。保障安全、常规服务是物管的基本职责,好的物管主要看能否与业主达到共建和谐的社区环境,改变邻里关系为业主提供交流平台。活动的目的,不止热闹高兴,而是使业主与业主间、业主与物管间更加融洽,物管的用心和细心能不能坚持下去是最重要的,最后的评比结果是业主的口碑效益。
17、购房定金
“订金”与“定金”是不同的法律概念,这是开发商欲规避法律责任的惯用做法,《中华人民共和国担保法》规定:定金的数额由当事人约定,但不得超过主合同标的额的20%。商品房交易中,买家履行合同后,定金应当抵作价款或者收回;若买家不履行合同,无权要求返还定金,开发商不履行合同的,应双倍返还定金。而订金并非一个规范的法律概念,实际上它具有预付款的性质,并不具备担保性质。很多开发商会打出多少抵多少的优惠活动,但是需要缴纳一定的定金,要知道这里交了的定金是不能退的。辨别“订金”与“定金”是买房必知的重中之重。
18、签认购书
购房者应慎签认购书,认购书是商品房买卖的预约合同,是独立合同。签认购书时常会引发一系列纠纷,具体表现在购房者要收回定金,而发展商却不一定会退还。因此,为避免过多的麻烦,购房者在决定买房,可以向发展商提出看正式合同样本,房屋买卖合同一般只会对房子本身做出承诺,但是售房者很可能为了签单而给你很多的口头承诺,在觉得正式合同可以接受的情况下,再签署认购书,以免被套牢。
建屋新棠玥
售楼处电话☎:400-998-9694
如有问题欢迎来电咨询,来电即可享受买房优惠!
预约来电尊享购房优惠,可预约案场内部销售人员,专业一对一热情服务,让您用专业眼光去买房。
建屋新棠玥售楼处电话☎:400-998-9694
楼盘项目全面介绍,本电话为开发商提供线上预约售楼电话,楼盘项目全面介绍(包含楼盘简介,均价,房价,现房,期房,别墅,叠墅,大平层,价格,楼盘地址,户型图,交通规划,备案价,备案名,项目配套,样板间,开盘时间,认筹时间,楼盘详情,售楼处电话,最新消息,最新详情,周边配套,一房一价,最新进展等详情咨询)楼盘详情丨价格丨更多优惠丨机不可失丨欢迎致电丨诚邀品鉴!售楼处位置丨特价房丨工抵房丨剩余房源丨户型图丨最新消息丨免责声明:将文章内容综合来源于网络、只作分享,版权归原作者所有!!如有侵权,请联系我们,我们第一时间处理如有问题欢迎来电咨询,专业一对一热情服务,让您用专业眼光去买房。如果您想了解更多楼盘详情,欢迎提前预约拨打