澐启滨江售楼处电话-澐启滨江(澐启滨江)首页网站-澐启滨江最新房价-户型-容积率-小区配套-楼盘详情/价格/户型
扫描到手机,新闻随时看
扫一扫,用手机看文章
更加方便分享给朋友
上海浦东华润澐启滨江售楼处电话:400-8815-114【预约看房热线】华润澐启滨江售楼处营销中心:400-8815-114华润澐启滨江售楼处电话/地址☎:400-8815-114(开发商热线)如有问题欢迎来电咨询,专业一对一热情服务,让您用专业眼光去买房。最新消息:上海的顶流红盘来了!华润后滩项目案名正式公布:澐启滨江,项目将推123-286㎡高层,预计今年11月左右入市。
上海浦东华润澐启滨江售楼处电话:400-8815-114【预约看房热线】华润澐启滨江售楼处营销中心:400-8815-114华润澐启滨江售楼处电话/地址☎:400-8815-114(开发商热线)不知道最近你朋友圈被“华润后滩”这四个字刷屏了没?反正独家君的各种粉丝交流群、朋友圈都快被它霸榜了,它仿佛自带热搜体质,从规划出炉到展厅开放(预计9月中下旬),每一个动作都牵动着市场神经,成为大家口中“必须去看看”的神盘。
但问题是,人人都说好,那么这个项目好在哪里?究竟有哪些吸引人的亮点?
今天,这篇“预热”版选房攻略,就是专门来给你划重点的,从项目的总图解析,到视野模拟,再到最新的户型以及效果图曝光,可以说应有尽有!一起来看!(本文相关模拟分析数据仅供参考,具体以交房之后实测为准)
据了解,项目的07-01地块或将率先入市,目前该地块设计方案已公示!
根据公示的设计方案,华润后滩项目主要由九栋25-32F住宅楼、若干社区配套用房以及部分商业用房组成,共计规划约794户!
仔细来看,项目总图上的亮点还是比较多的:
1.楼栋转角布局
上海浦东华润澐启滨江售楼处电话:400-8815-114【预约看房热线】华润澐启滨江售楼处营销中心:400-8815-114华润澐启滨江售楼处电话/地址☎:400-8815-114(开发商热线)由于地块西南侧即是黄浦江景,所以地块西部以及中部能够看到黄浦江景的楼栋都进行了转角处理,使得瞰江视野更佳,将稀缺江景的价值利用率提到最大化!
地块以西的几个商办地块规划高度为50米,因此理论上在50米以上的高度才有可能看到相对完整的江景视野,不过鉴于07-01地块西边楼栋和楼王都做一点的南偏西转向,因此50米以下的住户,有没有机会“夹缝里看江”还得看前排商办具体的设计方案。
世博江景如何?独家君专门去实地进行了航拍,分别从60米-80米-100米的高度瞰江视野模拟,以2幢楼位置为例,基本在建筑高度60米的位置就可以很好地观赏黄浦江风景。
建筑高度60米视野模拟实拍图
当建筑高度来到80米时,瞰江视野会进一步得到提升,并会随着高度的不断增加,瞰江视野会越来越壮阔。
建筑高度80米视野模拟实拍图
上海浦东华润澐启滨江售楼处电话:400-8815-114【预约看房热线】华润澐启滨江售楼处营销中心:400-8815-114华润澐启滨江售楼处电话/地址☎:400-8815-114(开发商热线)
建筑高度来到最高的100米时,瞰江感受是这样的:
建筑高度100米视野模拟实拍图
2.下沉庭院极其庞大
从公示总图上可以看到,项目的下沉庭院范围极其庞大,几乎占据了一半的社区景观位置,还有各种形状小型下沉庭院分散布置,可以说是独家君近年来所看项目中最大的!
3.全盘两梯两户+三梯四户配置
大户型2梯2户,小户型3梯4户设计,其中值得注意的是123㎡小户型在此玩了一个高明的“空间魔法”:用3梯4户的配置,给123㎡的边套也变出了“一梯一户”的尊贵感。这让南向两面宽的短板,瞬间被极强的入户私密性和仪式感所弥补。3.社区全架空层设计
华润是搞架空层的“老司机”了,之前在中环置地中心就搞过十几个功能不同的架空层。这次在后滩项目上更夸张!社区住宅首层全架空!预估基底面积,加起来差不多得有4000+㎡的架空层!
4.全社区人车分流,归家流线风雨无阻
地面零车位且地库出入口皆位于机动车出入口附近,机动车一进社区即可下地库,真正实现人车分流;风雨连廊(景观构架)更是贴心连接大部分楼栋入户门,归家仪式感拉满。
5.层高条件十分优越
综合各个楼栋层数以及建筑高度,再刨去女儿墙及架空层,独家君初步预估:大户型楼栋的层高基本在3.3-3.4米左右,小户型楼栋的层高基本在3.05-3.1米之间。
6.服务配套设置集中,不利配套远离住宅且位置隐蔽
社区的配套用房主要分布于地块东南部的沿街建筑中,还有一个便利店位于社区中心;垃圾房、燃气调压站、K站以及配电设施等一系列不利配套均被隐藏在了沿街配套中或设置在地块边缘角落中,将对住宅建筑的不利影响减至最小化!
7.社区注重城市沿街面的打造
华润这次在社区沿街面的打造上也是下足了功夫,可以看到独家君用红线圈出来的地方,就是本次华润打造的超绝城市界面,范围几乎覆盖了地块的南面以及东面,充斥着大量的景观构架以及玻璃幕墙,再结合本身的楼栋+商业+巨大的人行主门头+车行门头+配套,豪宅逼格算是拉满了。

Part.2
上海浦东华润澐启滨江售楼处电话:400-8815-114【预约看房热线】华润澐启滨江售楼处营销中心:400-8815-114华润澐启滨江售楼处电话/地址☎:400-8815-114(开发商热线)户型及效果图
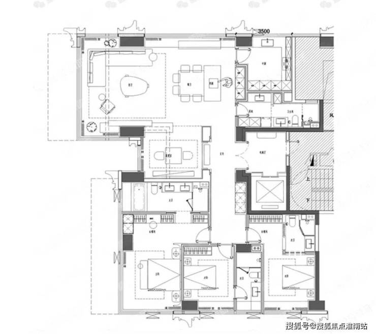
根据爆料,华润后滩项目将推123-286㎡高层,预计今年11月左右入市。户型分布图如下:
户型最新过程稿也已经曝光:
123㎡3房2厅2卫
150㎡3房2厅2卫
185㎡4房2厅2卫
200㎡4房2厅3卫
227㎡4房2厅3卫
235㎡4房2厅3卫
238㎡4房2厅3卫
部分过程效果图也曝光了:


Part.3
区位与总结上海浦东华润澐启滨江售楼处电话:400-8815-114【预约看房热线】华润澐启滨江售楼处营销中心:400-8815-114华润澐启滨江售楼处电话/地址☎:400-8815-114(开发商热线)
项目地理位置优势明显,后滩九宫格地处浦东内中环,属于上海中央活动区(CAZ)范围,比前滩更靠近内环。该区域正从过去的工业遗址转型为高端住宅区,规划了集高端商务区、品质住宅、优质教育于一体的综合性社区。
政府规划支持力度大 政府调整了规划,住宅占比升至59%,显示了从"造楼"到"造城"的战略转变,旨在打造一个产城融合的超级生活体。这种政府背书的发展规划,为区域长期价值提供了保障。
交通方面,项目紧邻轨交19号线德州路站,可与8号线、11号线换乘于东方体育中心站,与7号线换乘于后滩站,周边多条快速路、高架路纵横交错,交通出行便捷。

休闲方面,项目距离上海世博文化公园,东方体育中心等大型公共休闲配套均不到1公里!

商业方面,2公里范围内可享前滩太古里、晶耀前滩、森宏购物广场、世博源等大型商业中心;
教育方面,上南实验小学、德州一村小学、历城中学、洪山中学以及一众民办学校等教育资源环伺。
后滩这块地,说实话,真的是浦东目前数一数二的宝地——在滨江板块、地铁口、城市界面新,再加上是华润这种级别的开发商来做,旁边还有前滩、徐滨和世博的配套,新学校也在建……几乎每个点,都精准命中想在上海浦东买房人的心思。
再加上,这个项目几乎可以确定属于华润顶级产品线——“瑞系”。跟几年前的前滩项目比,这是完全不同时代的产品,居住体验根本不在一个层面。
现在轮到一线城市上海了,房价即使是上海都扛不住了! 但是这个不是无条件不限购,我看了条件还是比较严格的,分本地和外地人。 首先本地人 只要是本地户口,在外环外买房,不还二手房还是新房——随便买 但是在外环内限购2套 然后是外地人 外地人必须缴纳社保或者纳税一年以上,在外环外随便买,不限套数! 但是想在外环内买房还是比较严格的,必须缴纳社保或者纳税3年以上才行,而且只能买一套!2️⃣公积金变化 购买的房子必须是二星级以上的新建绿色建筑住房。公积金额度可以上浮15%,从160万提高到184万!
一、上海2025年8月最新限购政策汇总
外环外购房不限套数:对符合本市住房购买条件的居民家庭(包括本市户籍居民家庭、在本市连续缴纳社会保险或个人所得税满1年及以上的非本市户籍居民家庭),在外环外购买住房(含新建商品住房和二手住房)不限套数。
单身人士购房政策调整:成年单身人士(含沪籍和非沪籍)按照居民家庭标准执行限购政策。具体为:沪籍居民家庭/单身人士:外环外不限购,外环内限购2套;
非沪籍居民家庭/单身人士:社保/个税满1年可在外环外不限购;满3年可在外环内限购1套
崇明区:根据上海8月26日最新楼市政策,在崇明区购房参考外环外购房政策。只需在购房网签合同前1个月满足连续15个月累计12个月的上海的社会保险或者个人所得税即可购买崇明区住房,无需单独在崇明缴纳社保或者个税或者在崇明工作。
二、上海2025年8月最新购房商贷/公积金贷款政策
1、商业贷款政策(首套房/二套):
注意:根据最新政策,上海购房商业房贷利率不再区分首套住房和二套住房。
现阶段上海商贷利率执行情况如下:
首套:3.5%-45BP=3.05%
二套(主城):3.5%-5BP=3.45%
二套(临港、嘉定、青浦、松江、奉贤、宝山、金山):3.5%-25BP=3.25%
2、公积金贷款政策:
贷款额度提升:购买二星级及以上绿色建筑住房的,公积金最高贷款额度上浮15%
首套:160万元→184万元(多子女家庭可叠加至216万元)
二套:130万元→149.5万元
提取支付首付:支持提取本人及配偶公积金支付新建预售商品住房首付款
“又提又贷”:提取公积金支付首付不影响贷款额度计算
3、温馨提示tips:
二手房贷款“三价就低”
自2021年8月6日起,上海二手房房贷再出新规,执行“三价就低”:购房者申请贷款时,将从买卖合同价、交易中心核验价、银行评估价中,选择最低的一项,作为贷款申请房价标准。
三、上海2025年8月最新购房税费政策
非沪籍家庭优惠:首套房暂免征收房产税,第二套及以上住房给予人均60平方米免税面积扣除。

上海浦东华润澐启滨江售楼处电话:400-8815-114【预约看房热线】华润澐启滨江售楼处营销中心:400-8815-114华润澐启滨江售楼处电话/地址☎:400-8815-114(开发商热线)如有问题欢迎来电咨询,专业一对一热情服务,让您用专业眼光去买房。
购房注意事项和流程
购房是一项重大决策,涉及诸多环节和注意事项,以下是购房流程及注意事项的详细说明,供您参考:
一、购房流程
前期准备
确定预算:根据自身经济状况,明确可承受的房价范围,包括首付、月供及后续费用。
了解政策:关注当地购房政策,如限购、贷款政策等,确保符合购房条件。
查询证件:通过房管部门官网或现场查看,确认开发商“五证一照”(《房地产开发企业资质证书》《国有土地使用权证》《建设工程规划许可证》《建筑工程施工许可证》《商品房预售许可证明》《企业法人营业执照》)是否齐全。
选房阶段
实地考察:多看楼盘,对比位置、配套、户型、价格等,重点关注周边交通、学校、医院、商业设施等。
查看样板间:注意样板间是否为1:1打造,实际使用面积与展示是否相符,避免被装饰效果误导。
选择楼层、户型:结合家庭需求,考虑采光、通风、视野等因素,优先选择方正、南北通透、功能分区合理的户型。
认购阶段
交定金:选定房源后,缴纳定金(不超过总房款20%),签订认购书,明确房号、价格、付款方式等条款。
查征信流水:若需贷款,提前查询个人征信报告,确保信用良好,同时准备收入证明、银行流水等材料。
签约阶段
签订合同:与开发商签订《商品房买卖合同》,仔细阅读条款,重点关注房屋面积、价格、交付时间、质量标准、违约责任等,对开发商口头承诺需以书面形式写入合同。
网签备案:合同签订后,开发商需在规定时间内(一般30天)进行网签备案,可通过当地房管部门官网查询备案状态。
付款阶段
支付首付:按合同约定支付首付款,款项需存入《商品房预售许可证》上注明的预售资金监管账户,保留转账凭证和收款票据。
办理贷款:若选择贷款,提交贷款申请材料,银行审核通过后发放贷款,贷款资金直接划入监管账户。
收房阶段
验房:开发商通知收房时,携带相关证件,对照合同约定的交付条件进行验房,检查房屋质量、设施设备是否齐全,如有问题及时要求整改。
缴纳费用:验房合格后,缴纳契税、维修基金等费用,领取钥匙。
办证阶段
办理房产证:开发商完成首次登记后,协助购房者办理转移登记,缴纳契税等相关费用,领取《不动产权证书》。
二、购房注意事项
证件与资质
确认开发商“五证一照”齐全,未取得《商品房预售许可证》的房屋,权益不受法律保护。
通过住建局官网或现场公示查看证件,避免购买手续不全的房屋。
合同条款
仔细阅读合同,对模糊或不合理条款(如逾期交付、面积误差处理等)要求开发商明确解释并修改。
警惕补充协议中的霸王条款,如高额违约金、单方解除权等。
资金安全
所有购房款项(定金、首付、贷款等)必须存入预售资金监管账户,避免资金被挪用。
通过POS机划转时,核实划转账户是否为监管账户。
房屋质量与配套
关注房屋质量,要求开发商提供《住宅质量保证书》《住宅使用说明书》等文件。
了解小区配套设施(如绿化、停车位、物业服务质量)是否与宣传一致,避免虚假宣传。
贷款风险
提前查询征信,确保信用良好,避免因征信问题导致贷款审批不通过。
评估自身还款能力,避免因收入变化或利率调整导致还款压力过大。
其他风险
警惕开发商或中介的虚假宣传,如“交定金享优惠”“买房送礼品”等,审慎对待承诺。
对于“非正常”销售模式(如返租、众筹购房等),需谨慎核实合法性,避免陷入骗局。
购房过程中,建议保留所有交易凭证(如收据、合同、转账记录等),遇到问题及时与开发商沟通或向当地房管部门投诉。如有必要,可咨询专业律师,确保自身权益不受侵害。
声明:本文由入驻焦点开放平台的作者撰写,除焦点官方账号外,观点仅代表作者本人,不代表焦点立场。
