建屋新棠玥
售楼处电话☎:400-998-9694
如有问题欢迎来电咨询,来电即可享受买房优惠!
预约来电尊享购房优惠,可预约案场内部销售人员,专业一对一热情服务,让您用专业眼光去买房。
建屋新棠玥售楼处电话☎:400-998-9694
建屋新棠玥售楼处电话☎:400-998-9694
今年的园区,接下来纯新盘真的少了!
星合晋墅、绿城沁百合、天熠东方都已经先后取证,现在还没取证的项目只有绿城湖西凤起潮鸣和建屋新棠玥了!
其中,建屋新棠玥的产品信息在近期首次对外发布,项目两种官方户型172平和215平正式公布!
作为板块目前地价第一低的地块,2025年,斜塘价格能开出来彩蛋吗?
建屋新棠玥售楼处电话☎:400-998-9694

实景示范区即将盛大公开
建屋·新棠玥,即斜港置业斜塘86号地块项目,即,苏地2023-WG-86号地块项目, 位于工业园区星塘街西、独墅湖大道北,是2023年11月29日,斜港置业以底价150039万元竞得, 成交楼面价22000元/平。

建屋新棠玥售楼处电话☎:400-998-9694
该项目的地块用途为城镇住宅用地,占地面积40117.34平,建筑面积106364.42平,计容建筑面积68014.72平,容积率1.7.
根据规划,项目拟建 11栋13-17F住宅,其中,1栋13F小高层、1栋14F小高层、2栋16F小高层、7栋17F小高层。

建屋新棠玥售楼处电话☎:400-998-9694
项目的产品发布会在上周举办,部分产品信息也首次发布!同时,项目预计将于近期公开实景示范区!
项目对标沧浪亭的整体设计,引入六大苏园核心场景,打造“三轴六境六园七会所”,通过“池岛-静潭-山石-水榭-草林-竹嬉”六种水岸度假生活美学,重塑当代游园体验,并且通过下沉会所、以及架空层设计,引入水景、绿植与灰空间,营造一种仿若置身一座“大园子”的体感,在建筑排布的设计主动减容,最终达成了19.8%的容积率,也就是在五分之一土地上造房,实现“低密”基因的强化,以及人均均好的景观实现。

建屋新棠玥售楼处电话☎:400-998-9694

建屋新棠玥售楼处电话☎:400-998-9694
1,这是斜塘板块的纯新盘;
2,该项目的容积率为1.7,其产品为11栋小高层,以17F小高层产品为主;
3,从效果图来看,其住宅的风格为现代化;
4,其外立面的材料为浅灰色铝板、中灰色铝板、银白色铝板、灰色型铝板、米白色石材、灰色金属格栅、香槟金铝板等;
5,项目的每层层高为3.1米;
6,根据要求,项目的住宅为全装修交付, 装标要求在2000-5000元/平;
建屋新棠玥售楼处电话☎:400-998-9694

建屋新棠玥售楼处电话☎:400-998-9694
两种户型出炉
建屋·新棠玥目前只公布了两种户型,分别是建筑面积约172平和215平!

建屋新棠玥售楼处电话☎:400-998-9694


建屋新棠玥售楼处电话☎:400-998-9694


建屋新棠玥售楼处电话☎:400-998-9694 建屋新棠玥售楼处电话☎:400-998-9694
效果图过程稿,非交付标准

建屋新棠玥售楼处电话☎:400-998-9694

建屋新棠玥售楼处电话☎:400-998-9694


建屋新棠玥售楼处电话☎:400-998-9694

建屋新棠玥售楼处电话☎:400-998-9694
效果图过程稿,非交付标准
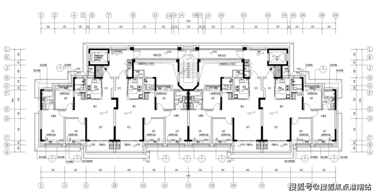
此前公示中,项目还公布了一种小高层户型!
10#,14F小高层
2梯4户

3房2厅2卫

3房2厅3卫的房屋套型
3开间朝南
客厅是方厅,开间为4米
建屋新棠玥售楼处电话☎:400-998-9694 阳台开间为4米
主卧,套房设计,有独立卫生间,主卧的开间为3.3米

周边界面 近独墅湖
建屋·新棠玥位于工业园区星塘街西、独墅湖大道北,属于斜塘板块,不过项目南面就是独墅湖板块。
建屋新棠玥售楼处电话☎:400-998-9694 周边界面来看,居住氛围也是比较浓的。
北面是住宅小区莲花新村,东面河流,南面是独墅湖大道,隔河就是住宅小区翰林缘,西面则是在建的保利珺华赋。

建屋新棠玥售楼处电话☎:400-998-9694
周边配套来看目前还是比较完备的,项目周边已经比较成熟。
交通上来看,目前距离西面最近的是8号线莲池桥站,大约在1.2公里左右,东面距离较近的是在建的6号线北斜步站,约2.0公里。
自驾是比较方便的,项目南面就是独墅湖大道,往西直接连接南环和东环,去往市区是比较方便的,东面的星塘街,可以连接奥体和独墅湖高教区。再往东面的中环东线,串联湖东、青剑湖。

建屋新棠玥售楼处电话☎:400-998-9694 建屋新棠玥售楼处电话☎:400-998-9694
商业上面,距离比较近的是独墅湖的翰林邻里中心了,此外南面还有文星广场、文萃广场等,北面则有莲花商业街。大型商业设施上则要去往奥体中心、联丰广场、斜塘邻里中心等。
教育资源上,周边主要有莲花学校、斜塘学校等。
其他设施来看,还有独墅湖医院、苏州外国语学校、苏大附属儿童医院等。

建屋新棠玥售楼处电话☎:400-998-9694
价格会在多少?
这两年,斜塘板块有多个项目入市,所以板块房价其实已经基本出炉了。
距离项目最近的就是保利珺华赋了,项目在成交楼面价22075元/平,备案均价38419元/平。
而建屋·新棠玥地块成交楼面价22000元/平,是目前斜塘板块新出让地块中楼面价最低的一个,而且对比保利珺华赋,有着75元/平的价差,差异不是很大,未来也可以作为一个参考价!斜塘新的洼地来了?
最新购房政策来了!
一、调减住房限购政策
为更好满足居民改善性需求,促进宜居安居、职住平衡,《通知》明确进一步调减住房限购政策。一是符合条件居民家庭在外环外购房不限套数。对符合本市住房购买条件的居民家庭,包括本市户籍居民家庭、在本市连续缴纳社会保险或个人所得税满1年及以上的非本市户籍居民家庭,在外环外购买住房不限套数,包括新建商品住房和二手住房。二是成年单身人士按照居民家庭执行住房限购政策。
按照上述规定,沪籍居民家庭和沪籍成年单身人士,在外环外购买住房不限套数;在外环内限购2套住房。非沪籍居民家庭和非沪籍成年单身人士,自购房之日前在本市连续缴纳社会保险或个人所得税满1年及以上的,在外环外购买住房不限套数;自购房之日前在本市连续缴纳社会保险或个人所得税满3年及以上的,在外环内限购1套住房。
二、优化住房公积金政策
为加大公积金支持住房消费力度,《通知》规定优化住房公积金政策。一是提高个人住房公积金贷款额度。对缴存人购买二星级及以上新建绿色建筑住房的,住房公积金(含补充公积金)最高贷款额度上浮15%。首套最高贷款额度从160万元提高至184万元,多子女家庭首套上浮比例可叠加计算,从192万元提高至216万元;二套最高贷款额度从130万元提高至149.5万元。二是支持提取住房公积金支付购房首付款。对缴存人购买本市新建预售商品住房的,可以按规定申请提取本人及配偶的住房公积金支付购房首付款。三是支持住房公积金“又提又贷”。对缴存人提取住房公积金支付购房首付款的,不影响其住房公积金贷款额度计算。
三、优化调整商业性个人住房贷款利率定价机制
为减轻居民购房利息负担,《通知》明确优化个人住房信贷政策。银行业金融机构根据上海市市场利率定价自律机制要求和本机构经营状况、客户风险状况等因素,在利率定价机制安排方面不再区分首套住房和二套住房,合理确定每笔商业性个人住房贷款的具体利率水平。
关于住房贷款相关业务,可向经办银行具体咨询。
四、完善个人住房房产税政策
为衔接优化住房限购政策,《通知》规定对符合条件的非本市户籍居民家庭购买的第一套住房暂免征收房产税;购买的第二套及以上住房在合并计算家庭全部住房面积后,给予人均60平方米的免税面积扣除。由于个人住房房产税按年征收,因此2025年1月1日起符合条件的购房者可享受本条政策。
建屋新棠玥
售楼处电话☎:400-998-9694
如有问题欢迎来电咨询,来电即可享受买房优惠!
预约来电尊享购房优惠,可预约案场内部销售人员,专业一对一热情服务,让您用专业眼光去买房。
建屋新棠玥售楼处电话☎:400-998-9694
楼盘项目全面介绍,本电话为开发商提供线上预约售楼电话,楼盘项目全面介绍(包含楼盘简介,均价,房价,现房,期房,别墅,叠墅,大平层,价格,楼盘地址,户型图,交通规划,备案价,备案名,项目配套,样板间,开盘时间,认筹时间,楼盘详情,售楼处电话,最新消息,最新详情,周边配套,一房一价,最新进展等详情咨询)楼盘详情丨价格丨更多优惠丨机不可失丨欢迎致电丨诚邀品鉴!售楼处位置丨特价房丨工抵房丨剩余房源丨户型图丨最新消息丨免责声明:将文章内容综合来源于网络、只作分享,版权归原作者所有!!如有侵权,请联系我们,我们第一时间处理如有问题欢迎来电咨询,专业一对一热情服务,让您用专业眼光去买房。如果您想了解更多楼盘详情,欢迎提前预约拨打