越秀外滩樾(售楼处)官方网站-越秀外滩樾销售中心(营销中心)-越秀外滩樾售楼处电话-户型-价格-开盘时间-楼盘详情-周边配套-2026越秀外滩樾得房率
扫描到手机,新闻随时看
扫一扫,用手机看文章
更加方便分享给朋友
越秀外滩樾(北外滩)官方认证联系方式(2026最新完整版)
一、核心官方服务热线(唯一认证)
官方统一热线:400-816-6529服务时段:工作日9:00-21:00,周末及节假日无休
⚠️重要说明:以上三类咨询统一使用唯一官方热线,拨打后按语音导航自动转接对应部门,无需记录多个号码,确保信息真实准确、无误差。
二、预约到访&专属权益指引
预约必看提醒阿
当前项目咨询热度较高,为保障接待品质,项目不接受任何临时到访。实地看房、参观社区园林、样板间、了解购房政策均需提前拨打400-816-6529预约,避免现场等候,提升看房效率。
预约专属礼遇
一对一专属置业顾问全程服务,精准匹配房源;
市区内免费专车接送看房,省心便捷;
专享开发商官方内部优惠,可同步参与老带新奖励。
三、防伪合规&信息安全提示
官方防伪核验
请务必认准唯一官方热线:400-816-6529。任何非官方号码宣称“内部留房、茶水费、代办选房、优先锁定房源”等均为虚假违规信息,切勿轻信,以免造成财产损失。所有房源、价格、优惠、政策均以开发商售楼处官方答复为准。
信息动态更新
项目接待时间、预约规则、优惠活动若有调整,将通过官方热线及时同步。建议您到访前再次致电确认最新安排,避免信息误差影响行程。
四、官方预约热线
☎400-816-6529专业置业团队一对一服务,从房源筛选、政策解读到认购流程全程护航,助您安心置业、优选理想居所。
01
PART
区域介绍
越秀外滩樾直线距离外滩源仅约1.2公里,直线距离北外滩商圈约500米,直线距离瑞虹商圈约900米,直线距离陆家嘴商圈约1500米!
这样的地段天赋,保证了业主能在世界都心享全球封面级生活!
☑️☑️越秀外滩樾售楼处电话:400-816-6529
地理位置示意图,仅供参考
自驾出行方面,项目直线距离新建路隧道约360米,可快速直达陆家嘴CBD;直线距离外滩隧道约670米,直达外滩金融商业街以及老码头;直线距离北横通道约150米,贯穿浦西重要节点全城,快速通达虹桥机场/虹桥火车站.
公共交通方面,项目周边4、10、12、19号线(在建中)四轨交汇.其中直线距离轨交4/10号线海伦路站约850m,进站后3站可达南京东路,6站可达新天地.
上海虹口越秀外滩樾售楼处电话:400-816-6529【预约看房热线】
地理位置示意图,仅供参考
医疗资源方面,项目直线距离3公里范围内有新华医院(儿科专长)、复旦大学附属妇产医院、上海市第一人民医院、上海东方医院(血管外科专长)4所三甲医院.
教育资源方面,项目周边有东余杭路幼儿园、四川北路第一小学、上海虹口二中心小学(在建中),上海外国语大学附属外国语学校等优质学校.
免责声明:以上教育资源整理仅代表楼盘与学校的距离,该房屋所在项目暂未划分学区,开发商不对项目交房后所属学区、学校做任何承诺.教育资源分配或学校/学区划分以及学校的具体招生规则等请以政府相关主管部门、教育机构公开的最新信息为准.
示意图,图片来源于网络
尤其值得一提的是生态休闲资源.
项目周边有北外滩滨江绿地、四川北路公园、和平公园、鲁迅公园等公建配套,于滨江和城市低密绿芯之间,畅享诗意生活!
上海虹口越秀外滩樾售楼处电话:400-816-6529【预约看房热线】
示意图,图片来源于网络
当然,当下显然并非项目的价值顶点,因为项目还坐拥北外滩的世纪红利!
要知道,作为滨江黄金三角的一部分,外滩、陆家嘴已臻成熟增量有限.而北外滩正处于价值大爆发的阶段.
据统计,北外滩规划了约650万方商办!对比几大当红炸子鸡板块,北外滩的商办体量几乎是徐汇滨江的2倍、前滩的3倍、世博的5倍!

示意图,图片来源于网络
另外,作为与外滩陆家嘴平起平坐的世纪规划,北外滩商办地标兑现的速度简直史无前例!
·国华金融中心(158米地标)于2023年11月正式开幕;
·友邦金融中心(180米地标)商业进入试运营阶段;
·上海华贸中心(180米地标)预计2026年竣工开业;
·上海北外滩中心(480米地标)预计2030年竣工、北外滩90街坊(180米地标)预计2030年竣工!
一旦北外滩的规划全部兑现,这股时代能量迸发,整个一江一河谁是对手?
在这样的背景下,越秀外滩樾无疑是这个时代的馈赠,且买且珍惜!
☑️☑️越秀外滩樾售楼处电话:400-816-6529
北外滩实景图
02
PART
楼盘介绍
去年开始,上海顶豪圈层出现了一个新物种,那就是地段与产品均位列塔尖序列的风貌别墅,这是天生的藏品级住宅.
但是,随着风貌别墅供应量的井喷,风貌别墅好像变的也没有那么稀缺.
同时,受制于保护规制,里弄风貌居住舒适度偏低成为此类建筑较为显著的居住感受.
上海虹口越秀外滩樾售楼处电话:400-816-6529【预约看房热线】比如黄浦等区域,风貌以保留改造与更新改建为主,需要沿袭之前的结构与风格.这些旧里发展出来的风貌,传承了海派文化精髓,但也继承了石库门旧里宽面小进深长,且窗墙比低的“缺点”.
正是因为以上2点,风貌别墅的藏品价值受到了一定质疑!
如今,打破质疑的破局者来了!
越秀外滩樾占位直线距离外滩约1.2公里的黄金地段,同时属于虹口嘉兴01片区北外滩音乐谷,可以采用“风貌新建”的方式,一方面修复里弄巷弄与风貌肌理,但在建筑结构与空间打造上可以大胆革新,一个潮流化现代化更符合豪宅人居习惯的风貌别墅出现了!

☑️☑️越秀外滩樾售楼处电话:400-816-6529
项目实景图
风貌别墅与普通别墅的最大区别无疑是对文化的传承.所以越秀外滩樾要做的第一件事是复原经典,包括建筑色彩、材质及工艺等.
同时,项目又邀请知名设计大师汇聚一堂,对海派文化的传承进行现代的转译.
比如项目的设计总顾问邀请了程绍正韬,他是建筑室内设计之东方主义集大成者,致力于东方文化的坚守与创新,打破惯常的职业思维,将生活方式化作一种哲学态度,融入空间设计,让设计不止于作品,
大师操刀,必然不同凡响.
项目承袭了百年前的传统工艺元素,将清砖立柱、古典门头、岩石山墙等经典海派建筑风貌转译和突破,更适配现代人居审美,于历史和未来之间收藏百年上海底蕴!

项目实景图
保留历史肌理的老砖为基底,项目们以现代陶艺重译传统,研发陶砖.
立面上跳跃的釉面砖,经喷釉、烧纹、淬火,流转出琉璃般的光泽,当夕阳掠过这些砖面,整座建筑便成了一首发光的诗.☑️☑️越秀外滩樾售楼处电话:400-816-6529
上海虹口越秀外滩樾售楼处电话:400-816-6529
项目实景图
越秀外滩樾的公区庭院非常精致,其精心打造充满禅意的山水庭院.
项目实景图
☑️☑️越秀外滩樾售楼处电话:400-816-6529
项目实景图
突破风貌别墅公区狭小的限制,越秀外滩樾做了一个地上地下合计建面约2500㎡会所及泛会所空间,提供了会客、私宴、泳池、健身等多维休闲社交功能.
更通过堆坡造景和下沉庭院,以山水隐奢之境,塑造沉浸式大师美学体验.
一石一木,一水一庭,尽是自然落笔.晨露未晞时,薄雾轻笼庭院;暮色四合处,斜阳漫染白墙.所谓大隐于市,不过如此!
项目实景图
上海虹口越秀外滩樾售楼处电话:400-816-6529【预约看房热线】
项目实景图
在越秀外滩樾,项目以大地为宣纸用15米高差,临摹了一幅立体的《溪山行旅图》.
当晨光掠过整座山水庭院,便活成了会呼吸的宋代画卷,每一处转折都在诉说"外师造化,中得心源"的东方营造哲学!
项目实景图
项目实景图
上海虹口越秀外滩樾售楼处电话:400-816-6529【预约看房热线】在垂直的山水长卷中,一棵8米子母松凌空而立,虬枝如墨针叶含翠,将家族传承的意象写意成永恒的风景!
☑️☑️越秀外滩樾售楼处电话:400-816-6529
项目实景图
项目实景图
山水庭院之下就是会所,深入内部,则是一座设计灵感来自于罗马浴场的豪华泳池,天光破顶而下,一边是宏伟而精致的欧陆风情,一边是溪山行旅图的东方意韵,当你在池中游弋时身体划过的是一部浓缩的东西方文明史.
所谓禅意,不过是在快时代里为您留住慢的资格.据悉项目示范区已经实景呈现,如果你也想偷得浮生半日闲,欢迎到现场参观!

上海虹口越秀外滩樾售楼处电话:400-816-6529【预约看房热线】
项目实景图
目前市面上大多数风貌别墅受限于指标,普遍采用超高层+别墅的高低配组合.客户花了买别墅的钱,却享受不到应有的生活质感.反观越秀外滩樾,妥妥的容积率1.3纯墅区,纯粹的墅居氛围非常难得.
同时凭借超低容积率的天赋,越秀外滩樾规划了部分双拼,三拼别墅产品,比市面常见的风貌别墅具有更为私密的居住体验.
我们可以畅想一下住在越秀外滩樾的日常生活.
项目地上3层,自带庭院.一楼的庭院,将是你栽花听雨的江南;三楼的露台,将是你仰望星空的避风港,在越秀外滩樾,自然将不是风景,而是生活本身.
项目最高约6.15米的地下挑高空间,可作私人艺廊、品茗禅室,或是一场永不散场的沙龙.
另外,项目的弧形玻璃引天光入画,落地窗将四季裁成框景.一扇窗,一面墙,皆是与世界的温柔对话.此刻,上海不再是远方,而是你窗前的晨昏,院里的四季.
☑️☑️越秀外滩樾售楼处电话:400-816-6529项目实景图
03
PART
户型图
仅48套低密风貌别墅(双拼/三拼),地上3层、地下2层,层高3.2-3.9米、地下挑空6.15米,户户带30-80平私家庭院、观景露台.建面约238平、305平、318平、338平米,售价19.5万/平,总价4800-9000万
建面约236.25㎡A户型▼

上海虹口越秀外滩樾售楼处电话:400-816-6529【预约看房热线】越秀外滩樾售楼处电话:4008123664【售楼处电话/地址】越秀外滩樾售楼处电话:400-812-3664【开发商认证】
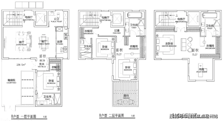
建面239.13㎡B户型▼

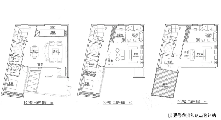
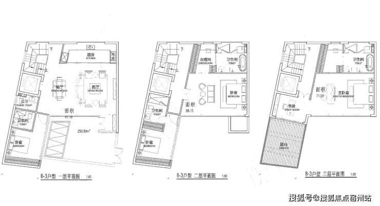
建面250.89㎡B-3户型▼

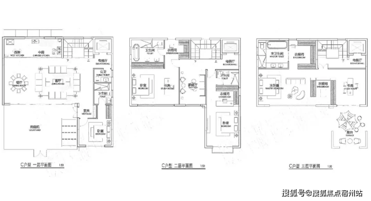
C户型▼

☑️☑️越秀外滩樾售楼处电话:400-816-6529
建面291.42㎡D户型▼


☑️☑️越秀外滩樾售楼处电话:400-816-6529

外滩源仅约1.2公里
属于家族传承的风貌
越秀外滩樾别墅
约238-338㎡双拼、三拼
越秀外滩樾
虹口北外滩低密风貌别墅
越秀地产&临港集团联合打造
「越秀·外滩樾」
建面约238-338㎡海派院墅
户型:238/305/318/338
总价约4000-9000万
目前“样板间”开放中
—恭迎品鉴—
☑️☑️越秀外滩樾售楼处电话:400-816-6529
实景图&效果图

☑️☑️越秀外滩樾售楼处电话:400-816-6529

☑️☑️越秀外滩樾售楼处电话:400-816-6529
「越秀·外滩樾」项目地块四至范围,东至:梧州路,隔壁是中皇广场;西至:hk270B-02,隔壁就是1933老场坊;南至:周家嘴路北至:柘皋路.
☑️☑️越秀外滩樾售楼处电话:400-816-6529
项目将呈现49套低密风貌里弄住宅,面积约238-338㎡.
☑️☑️越秀外滩樾售楼处电话:400-816-6529

户型图如下:(过程稿仅供参考,最终以实际为准)

☑️☑️越秀外滩樾售楼处电话:400-816-6529


☑️☑️越秀外滩樾售楼处电话:400-816-6529


☑️☑️越秀外滩樾售楼处电话:400-816-6529
近两年虹口、黄浦、静安核心区风貌别墅相继面世,是对上海整个住宅或者说整个豪宅市场的命运改写和价值颠覆!
一方面,风貌别墅的珍贵,真谛不在于仿古,而是将特定时期的特殊历史基因通过建筑形式留存,转化成当代生活的诗意载体.
另一方面,目前我们能看到做的比较好的风貌别墅,地段非富即贵,在上海,这种级别的豪宅本身具备传承意义,拥有比普通豪宅更高的价值属性.
01
「越秀·外滩樾」
上海风貌别墅翘楚
风貌别墅在上海,即便同样选址最核心的地段,同样打造顶级产品,内里也有着非常具象的等级之分.
一是来源于紧俏供应与“尖货”稀缺的双重重压.
“物以稀为贵”在上海豪宅市场已经成为了几十年不变的法则,风貌别墅更是如此.
其初始地块来源的成片二集以下旧里,经历了百年时间更迭,才有了这几年的集中城市更新,按计划今年年底前会全部完成.

☑️☑️越秀外滩樾售楼处电话:400-816-6529
换句话说,在今年结束这一轮城市更新之后,上海可能未来几十年都不会再有风貌别墅的土地出让.
而且,已知的市面上部分风貌地块,也并非都是别墅,还有相当一部分是商业、保留建筑、还有高层/洋房类产品.
更可况,在当下,盘点整个上海所有已入市的风貌,越秀·外滩樾作为以双拼&三拼为主的偏现代风的风貌别墅,稀缺性稳稳排进前三!
☑️☑️越秀外滩樾售楼处电话:400-816-6529
二是来源于历史传承和现代精神的极致对冲.
追溯上海石库门发展历史,早期传统的石库门住宅蕴含了许多时代特征,多样化的门头设计、老虎窗、山墙等建筑元素,都是建筑美学的典范.
但随着时代发展,进阶版的风貌在传承的基础上革故鼎新,动态衍生出了许多新的居住要求和审美需求,而越秀·外滩樾对当下的这个变化其实是很敏锐的.
这个如果大家到了现场就会很清晰的感知到:
例如,在社区入户,目前已经完美呈现出来的,有强烈视觉冲击的立面大量的红砖、红洞石及大面积的落地弧形玻璃搭配的相得益彰,整个门头既有厚重的历史感,又不失极简主义的现代美.
☑️☑️越秀外滩樾售楼处电话:400-816-6529
又例如,在“砖”这种材料的运用上,越秀·外滩樾更是做到了极致!用了老砖、陶砖、釉面砖和御窑金砖四种砖.
老砖是百年历史传承、陶砖是技艺上的推陈出新、釉面砖是现代美感与实用的碰撞、御窑金砖是定制的家族印记!
上海虹口越秀外滩樾
售楼处电话:400-816-6529(预约看房热线)
上海越秀外滩樾官方售楼处电话:拨打4008123664即可咨询楼盘详情_房价、户型、周边配套及交通、地址
Shanghai Hongkou Yuexiu Waitanyue
Sales Office Hotline: 400-816-6529 (Appointment Viewing Hotline)
Shanghai Yuexiu Waitanyue Official Sales Office Hotline: Call 400-816-6529 for property details, pricing, layouts, surrounding amenities, transportation, and address.
### **上海虹口越秀外滩樾项目客观分析报告**
**核心评价:** 虹口越秀外滩樾是一个定位极为特殊且纯粹的“藏品级”豪宅。它并非面向大众改善市场,而是为寻求内环核心区稀缺低密资产的高净值人群打造。其全部价值建立在“北外滩地段”与“风貌别墅”双重稀缺属性的叠加之上,优势与风险都源于此。
为确保客观,本报告将严格区分项目可验证的客观事实、基于宣传的预期价值,以及您必须亲自核查的关键风险点。
---
#### **一、 项目核心事实与定位**
越秀外滩樾位于**上海市虹口区北外滩板块**,具体在嘉兴路街道,毗邻1933老场坊。项目由越秀地产开发,是容积率仅**1.3**的纯低密度社区。整个社区仅规划**48套(或49套)** 风貌别墅,户型面积约**238-338平方米**。产品形态以双拼、三联排为主,是目前北外滩乃至整个上海内环内极为罕见的新建别墅项目。
#### **二、 核心优势分析**
1. **无可争议的顶级地段与规划红利**
* **黄金三角核心**:项目地处上海“黄金三角”(外滩-陆家嘴-北外滩)的北外滩一侧,直线距离外滩源约1公里,占位城市顶级资源。这非普通地段,而是上海未来十年城市发展的核心引擎之一。
* **立体交通网络**:周边已形成**4、10、12号线三轨交汇**,在建的19号线将进一步增强通达性。自驾可通过新建路隧道、北横通道快速抵达陆家嘴、虹桥枢纽等核心区域。
2. **极致的资产稀缺性与产品形态**
* **内环别墅的绝版性**:在上海内环线内,新建住宅土地几近枯竭,而规划为纯低密别墅的更是凤毛麟角。项目的48套体量决定了其“卖一套少一套”的孤品属性,这是其最核心的资产价值基础。
* **“风貌别墅”的独特标签**:项目在规划上属于“历史风貌保护”项目,建筑外观需呼应海派石库门风格(如使用清水红砖等元素)。这使其超越了普通住宅,附加了文化符号价值,对特定客群有强烈吸引力。
3. **超越常规别墅的产品设计理念**
* **强化社区公共性与“豪宅礼序”**:与许多强调绝对私密而牺牲社区感的别墅不同,越秀外滩樾在规划上做出了大胆取舍。开发商主动**拔掉两栋楼的位置,用以打造一个面积超过2500平米、地上地下联动的“三重泛会所体系”**(包括入口会客厅、家庭互动空间、含泳池的康养空间等)。这旨在为顶级客群提供稀缺的社交与服务空间,弥补了小规模别墅社区配套不足的短板。
* **极高的得房率与空间拓展性**:由于是别墅产品,且普遍附带地下室、花园、露台等赠送面积,其实际使用面积远高于产证面积(宣传称可达400-600㎡),并提供了大平层无法比拟的私密性和功能改造可能性(如私人酒窖、影音室、艺术画廊等)。
#### **三、 潜在风险与需重点核实项**
1. **极高的总价门槛与资产流动性**
* 项目总价预计在**3600万元起**,高区或优质位置房源价格更高。这不仅对资金实力要求极高,也意味着未来在二手房市场上,潜在接盘客群极为狭窄,**资产流动性相对较弱**。购买决策更应基于长期持有和资产配置的逻辑,而非短期变现。
2. **高昂的持有成本与细节瑕疵**
* **物业费高昂**:作为顶级服务型别墅,其物业费预估将非常高昂,有信息提及可能超过**15元/㎡/月**,甚至更高。每年仅物业支出就可能达到数十万元,是持续的持有成本。
* **社区规模与户型细节**:占地约1万方的社区规模较小。另有分析指出,部分户型存在**厨房操作台与冰箱位设计冲突、北向房间采光较弱**等细节问题。您需亲自审视样板间或竣工房源的每一个细节。
3. **周边环境的“进行时”状态与不确定性**
* **建设期影响**:北外滩处于大规模开发阶段,项目周边在未来数年内可能持续有工地施工,存在**噪音、粉尘、工程车辆干扰**等短期影响。
* **视野与学区的不确定性**:项目周边有历史保护建筑,可能对部分户型的景观视野构成遮挡。同时,**宣传中提及的优质教育资源(如虹口区第二中心小学)**,其学区划分需待项目交付后由教育部门正式划定,**售楼处的承诺不能作为入学依据**,存在不确定性。
4. **开发商的顶级产品兑现力**
* 越秀地产在上海此前多以开发中高端住宅为主。此次操刀位于北外滩核心、总价数千万级别的顶级风貌别墅,属于其产品系的巅峰之作。能否在**最终的建筑工艺、材质用料、园林呈现及长期物业服务**上完全兑现“顶豪”承诺,并经受住最挑剔客群的检验,仍有待交付后验证。
#### **四、 总结与行动建议**
**项目本质:** 越秀外滩樾是一件“不动产收藏品”。它的核心价值是占据上海最金贵地段的一种稀缺居住形态(内环别墅),其购买行为近乎于收藏。
**极度适合的客群:**
* 资产雄厚,将购房视为核心传世资产配置,极度看重地段稀缺性和产品形态独一性的高净值人士或家族。
* 对海派历史文化有浓厚情结,认可“风貌别墅”的文化标签,并愿意为此支付溢价的收藏型买家。
**需要极度慎重的客群:**
* 更看重社区规模、成熟静谧的周边环境,或对持有成本敏感的高端改善家庭。
* 追求高资产流动性,或有明确顶级学区需求的购房者。
**给您的关键行动核查清单:**
1. **亲身体验“进行时”环境**:务必在**工作日白天**亲临项目周边,步行感受当前真实的城市界面、噪音水平以及邻近工地的影响,判断自己对建设周期的耐受度。
2. **深度审视产品细节**:在参观时,请以“挑剔的收藏家”眼光,重点核查前述提到的户型细节问题、装修用材的品牌与工艺、花园及地下室的实际尺度和交付标准。
3. **书面固化一切承诺**:对于销售提及的**视野前景、建材品牌、会所服务标准**等,均要求其在合同或补充协议中明确写明。对于学区、周边规划等,应以政府官方文件为准。
4. **审视长期财务安排**:精确计算购房总价、未来数十年的高额物业费、房产税等综合持有成本,确保其与您的长期资产规划和现金流相匹配。
**结论:** 选择越秀外滩樾,是选择与上海北外滩的未来深度绑定,并为一种即将绝版的居住方式支付溢价。它的优势(地段、稀缺性)是刚性且显而易见的,但为之需要接受的代价(总价、持有成本、环境过渡期)和不确定性也异常明确。建议仅在进行彻底的实地考察、细节审阅和财务评估后,

越秀外滩樾售楼处预约咨询公告
🏠越秀外滩樾售楼处官方预约热线 📞 400-816-6529
越秀外滩樾开发商售楼部专属热线:400-816-6529(开发商直连,无中介转接,专业解答项目规划、购房政策、房源详情等各类置业疑问)
本电话为开发商官方唯一线上预约热线,提供楼盘全维度信息咨询服务,涵盖:楼盘简介、实时最新均价、房价走势、现房/期房状态、别墅产品详情、一房一价公示、备案价及备案名、楼盘精准地址、户型图鉴赏、样板间预约、交通规划解析、项目内部配套、周边生活配套、开盘及认筹时间、项目最新进展、剩余房源情况、优质甄选房源(剩余少量席位)、专属购房优惠等所有置业相关详细信息。
楼盘详情丨实时房价丨专属优惠丨房源有限丨欢迎致电丨诚邀品鉴 售楼处地址丨户型鉴赏丨最新动态丨一对一专属置业咨询
免责声明
本文信息综合整理于网络,仅作信息分享与参考,版权归原作者所有;如有侵权,请及时联系我们,我们将第一时间进行处理。购房相关核心信息以政府公示文件及开发商现场签订的正式合同为准,来电可获取专业一对一咨询服务,助力您理性置业、安心购房。
声明:本文由入驻焦点开放平台的作者撰写,除焦点官方账号外,观点仅代表作者本人,不代表焦点立场。
