前滩滨江道售楼处电话☎:400-998-9694✔✔ 前滩滨江道售楼处电话☎:400-998-9694✔✔ 前滩滨江道售楼处提供购房优惠,项目占地3.52万方,规划547套住宅,涵盖三房、四房,户型多样,电话400-998-9694。
前滩滨江道
售楼处电话☎:400-998-9694✔✔
如有问题欢迎来电咨询,来电即可享受买房优惠!
预约来电尊享购房优惠,可预约案场内部销售人员,专业一对一热情服务,让您用专业眼光去买房。
前滩滨江道售楼处电话☎:400-998-9694✔✔
前滩滨江道售楼处电话☎:400-998-9694✔✔
新滨江封面 新海派国际生活湾区
三房89/99㎡ 四房125平方-249㎡ 一线滨江藏品
前滩滨江道售楼处电话☎:400-998-9694✔✔

前滩滨江道售楼处电话☎:400-998-9694✔✔
前滩滨江道售楼处电话☎:400-998-9694✔✔
项目信息
陆家嘴三林滨江12单元住宅项目,案名已官宜--前滩滨江道。

前滩滨江道售楼处电话☎:400-998-9694✔✔
该项目由22-01、22-03、22-04三幅地块组成,总占地面积约3.52万方,容积率2.3~3.0,计容面积约9.31万方,其中住宅部分计容面积约7.46万方,共计规划547套可售住宅!
22-01地块,占地面积约1.03万方,容积率3.0,规划计容面积约3.09万方,由4幢6-18F多层+高层住宅、1幢6F商业以及部分社区配套组成,共计规划约152户!

前滩滨江道售楼处电话☎:400-998-9694✔✔
1#总高6-13-14F,首层为社区配套及商业,户型为建面约130㎡以及建面约137㎡3-4房,一梯两户,层高约3.05米;
2#总高12F-13F,首层部分为社区配套+沿街商业+架空层,户型为建面约189-199㎡4房2厅3卫,两梯两户,层高约3.15米;
5#总高7F,前滩滨江道售楼处电话☎:400-998-9694✔✔ 首层为商业,户型为建面152-167㎡4房2厅3卫,一梯两户,层高约3.05米;
7#总高18F,首层局部架空,户型为建面约195-249㎡4房,两梯两户,层高约3.15米.
建面约130㎡4房2厅2卫:

前滩滨江道售楼处电话☎:400-998-9694✔✔
一梯两户,层高3.05米,三开间朝南,全卧飘窗,
LDK一体化设计,南北直通,南向整体面宽约11.1米,其中客厅面宽约4.4米,主卧面宽约8.6米!

前滩滨江道售楼处电话☎:400-998-9694✔✔
22-03地块,占地面积约1.59万方,容积率2.5,规划计容面积约3.97万方,由7幢7-14F多层+小高层住宅、2幢1-6F商业以及部分社区配套组成,共计规划约288户!
11#、15#、17#总高14F,户型为建面约99㎡3房2厅2卫,仅17#东边户为建面约86ni3房2厅1卫,一梯两户,层高3.05米;
12#、16#总高7F,12#为建面约126㎡4房,16#为建面约89㎡3房2厅2卫,均为一梯两户,层高约3.05米;
8#总高14F,前滩滨江道售楼处电话☎:400-998-9694✔✔ 东单元为建面99㎡3房2厅2卫,西单元为建面约139-170㎡4房2厅3卫,一梯两户,层高约3.05米;
10#总高13F,户型为建面约199-236㎡4房2厅3卫,两梯两户,层高约3.15米。
建面约99m3房2厅2卫:

前滩滨江道售楼处电话☎:400-998-9694✔✔
一梯两户,层高3.05米,经典飞机式户型;
LDK一体化,南北直通,全卧飘窗,南向整体面宽约9.9米,其中客厅面宽约3.6米,主卧面宽约3.3米!

前滩滨江道售楼处电话☎:400-998-9694✔✔
22-04地块,占地面积约0.9万方,容积率2.5,规划计容面积约2.25万方,由2幢6-7F多层住宅、1幢21-24F高层住宅、2幢2-6F商业组成,共计规划约107户!
20#、22#总高6-7F,前滩滨江道售楼处电话☎:400-998-9694✔✔ 首层为商业,户型为建面约89㎡3房2厅2卫,一梯两户,层高约3.05米;
21#总高21-25F,1-2层为商业,户型为建面约137-152㎡4房2厅2卫,两梯两户,层高约3.05米!
建面约89㎡3房2厅2卫:

前滩滨江道售楼处电话☎:400-998-9694✔✔
一梯两户,层高3.05米,相当于99竖厅户型的缩小版;
前滩滨江道售楼处电话☎:400-998-9694✔✔ 南北直通,全卧飘窗,南白整体面宽约9.75米,其中客厅面宽约3.55米,主卧面宽约3.2米!
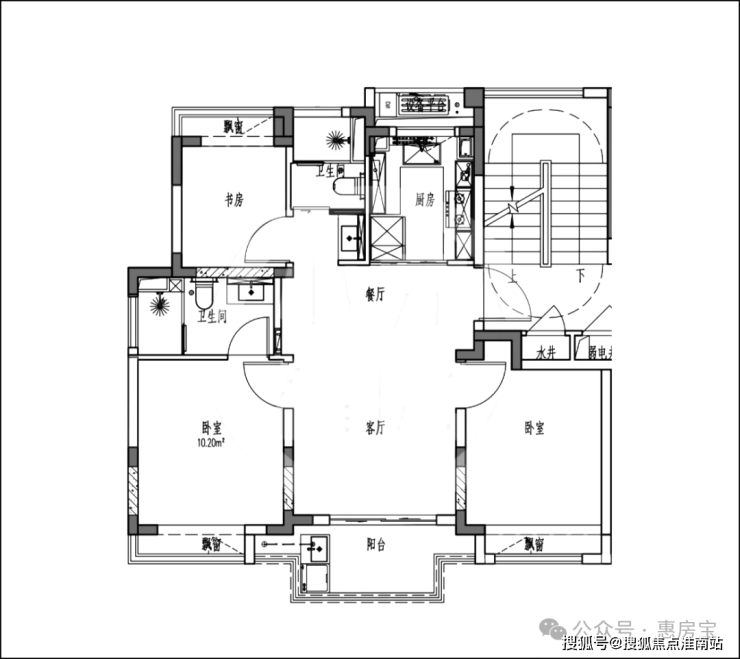
下图对项目所有户型分布做了清晰标注,并且对核心筒区域也做了示意,可以很直观的看出各户型的电梯位置、电梯厅空间及入户情况;

前滩滨江道售楼处电话☎:400-998-9694✔✔
不包含非标户型的情况下,项目共计有21个户型,包含建面约86-249㎡3-4房!

前滩滨江道售楼处电话☎:400-998-9694✔✔
2025年,是前滩CBD建设的收官兑现之年,核心开发基本完工。前滩滨江道所在的前滩滨江,是45公里黄浦江岸线中少数引水入湾、整体开发的低密CLD(中央生活区)。居住在前滩CLD,生活与前滩CBD紧密联动。

前滩滨江道售楼处电话☎:400-998-9694✔✔
通过沿江布局商办、后排规划住宅的方式,营造出兼具开放性与私密性的滨水社区,实现临江体验与亲水生活的融合。

前滩滨江道售楼处电话☎:400-998-9694✔✔
目前,11单元的商办部分,桩基工程施工已基本全面完成,进入围护工程阶段。
12单元已全面进入主体结构施工阶段,其中01、04地块中所有楼栋已完成结构封顶。


前滩滨江道售楼处电话☎:400-998-9694✔✔
前滩滨江道被一众新盘包围,前有前滩百合园,后有前滩润璟、前滩公馆,都是曾经的高分大热门,已经形成高品质住宅集群,城市界面逐渐成型。
未来这里既有复刻衡复街区的风貌,风靡上海的滨江打卡地,也有持续引领风潮的艺文中心、商业橱窗、咖啡生活节、CITY-WALK等多元业态。


前滩滨江道售楼处电话☎:400-998-9694✔✔
值得一提的是这里的生态低密,森林体育公园已经初具雏形。
根据规划,前滩滨江这里将有千亩城市森林环抱,绿化覆盖率约62%,240公顷生态绿楔和约170㎡的人均绿地面积,使其力图打造成集生态功能、转型发展与海派文化为一体的示范区。
8-10层以上可看江,对望西岸文化走廊

前滩滨江道售楼处电话☎:400-998-9694✔✔
前滩滨江道的滨江视野是其核心价值之一。根据现场航拍模拟视线,10层可越过绿植隐约看江,对岸正是徐汇滨江的西岸文化走廊。
新一轮一江一河提升规划中,将前滩滨江商务区、前滩滨江国际住区和对岸徐汇滨江一起纳入艺文智岸段,定位为时尚活力、卓越水岸。
模拟18层的视线,江景视野更开阔。徐浦大桥也在视野范围内,前方还有大片绿色。


前滩滨江道售楼处电话☎:400-998-9694✔✔
项目位于浦东新区三林镇,东至皓川南路,南至浩昌路,西至皓明路,北至涓清路,紧临湾区水岸、轨交站点等标志性节点。规划总建筑面积15.5万平方米,建设周期3.5年。

前滩滨江道售楼处电话☎:400-998-9694✔✔
项目整体定位为“高品质的海派风貌小镇”“滨江开放空间”和“居住社区”,具备功能复合、开放有趣、安宁宜人的特点。

前滩滨江道售楼处电话☎:400-998-9694✔✔
推门即水岸 上海滨江唯一亲水湾区
前滩滨江道售楼处电话☎:400-998-9694✔✔ 陆家嘴集团将强大的规划及资源整合能力投入前滩滨江建设,引入湾区设计,以全新的城市规划设计,将江水引入,形成上海滨江岸线上唯一的、全新的城市滨江亲水空间,营造全新城市体验与国际领先生活感受,规划打造包含创意办公、滨水商业、高端海派住宅等多元业态,形成极具标志性的“海派大生活圈”。
陆家嘴集团特邀国内外设计大师天团,共同打造涵盖亲水商业、水上运动、滨水商务海派社区等多元场景的城市滨水综合体,以经典风情造今时风范。

前滩滨江道售楼处电话☎:400-998-9694✔✔

前滩滨江道售楼处电话☎:400-998-9694✔✔

前滩滨江道售楼处电话☎:400-998-9694✔✔
项目设计中,充分提炼上海百年精华,浓缩延展了老上海海派文化的街景氛围、空间记忆和建筑风貌,将典雅、简洁和摩登有机融合,共同诠释新海派风格。

前滩滨江道售楼处电话☎:400-998-9694✔✔


前滩滨江道售楼处电话☎:400-998-9694✔✔
板块信息
黄浦江岸 每一次时代进发的原点
100多年前,上海的繁荣开埠于外滩;35年前,陆家嘴CBD拔地而起,浦东滨江风起潮动;而今,上海迈向2035卓越城市,率先在滨江吹响号角,将黄浦江沿岸地区打造成为多元融合的城市创新功能引领区、人文内涵丰富的浦江空间展示区、人与自然和谐共生的世界级滨水示范区。艺文智岸 一江一河的卓越之眼

前滩滨江道售楼处电话☎:400-998-9694✔✔
“一江一河”规划成为2035上海城市发展的最高纲领;其中,前滩滨江携手徐汇滨江定位“艺文智岸”,以“时尚活力·卓越水岸”强化沿岸地区文体旅商与品牌塑造,并重点带动腹地城市更新与功能转型,进一步提升艺术范、潮流范、时尚范,成为上海最具特色的滨江生活新名片。前滩滨江超级完整体

前滩滨江道售楼处电话☎:400-998-9694✔✔
陆家嘴集团执笔下的前滩滨江以“超级完整体”城市理念,创造性地将“生态、产业、生活”三位一体的开发理念融入片区开发实践,让产业引擎、都会繁华与水岸浓荫相得益彰,实现了从"城市功能分区"到"城市功能融合"的质变。前滩滨江中央商务区

前滩滨江道售楼处电话☎:400-998-9694✔✔
聚焦“总部商务"“文化传媒”与“体育休闲”三大核心功能形成了聚集城市地标、总部经济、体育传媒、商业中心等业态的功能型国际城市中心。前滩滨江国际住区

前滩滨江道售楼处电话☎:400-998-9694✔✔
千亩城市森林环绕,“最生态、最海派、最未来的”21世纪海派生活实践区。
约240公顷上海城市规划中心城区最大的楔形绿地,约等于2-3倍世纪公园绿地面积;约62%绿化覆盖率、约170m²的领先人均绿地面积;“三水环抱、五园簇拥”稀缺生态格局;迷人海派街区、围合式低密组团形态等居住格局。
*数据来源于《黄浦江南经伸段三林滨江南片区Z000801单元》西区控制性详划寰球资本亲睐

前滩滨江道售楼处电话☎:400-998-9694✔✔
60家跨国公司地区总部;
23家国际经济组织(含代表处);
10家世界500强企业。
前滩滨江道售楼处电话☎:400-998-9694✔✔ 目前前滩片区的总部经济、能源环保、医药器械、汽车、科技与数字新媒体、专业服务等已经形成规模化效应,未来聚焦生物医药、人工智能、离岸贸易等领域,推动数智化产业转型。高效通勤|咫尺上海交通动脉

前滩滨江道售楼处电话☎:400-998-9694✔✔
一线:机场联络线三林南站;
两环:中环路、外环高速约1公里;
两隧:上中路隧道、龙水南路越江隧道(在建中)约2公里;
四轨:6、8、11、19号线(在建中)。
前滩滨江道售楼处电话☎:400-998-9694✔✔ 品质配套|不落幕的城市繁华
前滩顶级商业群:前滩太古里一期、前滩太古里二期(在建中)、晶耀前滩、前滩L+Plaza、前滩公园巷等;
国内外医疗:新加坡莱佛士、上海东方医院南院、曜影医疗等。
人文荟萃|国际精英教育养成

前滩滨江道售楼处电话☎:400-998-9694✔✔
幼儿教育:上海嘉宝、嘉贝托育、惠立、冰厂田、中福会幼儿园等;
精英教育:惠灵顿外籍人员子女学校、上海惠立、华师大二附中前滩学校、纽约大学等。
*以上为直线距离,来自百度测距,具体教育对口等信息以官方发布为准
前滩滨江道售楼处电话☎:400-998-9694✔✔ 迷人生态|一半公园一半家
滨江漫步:约60万方滨江绿地、慢行道、滨江码头;
七大主题公园:前滩体育公园、前滩休闲公园、友城公园、体育公园、儿童自然乐园、上林公园、城市森林栖岸休闲前沿体验 全球人才首选之地

前滩滨江道售楼处电话☎:400-998-9694✔✔
前滩31的国际大秀、东方体育中心的演艺文化等触手可及;冰球、橄榄球、皮划艇、网球、足球等竞体运动……前滩滨江正以最国际、最生态、最运动、最完整的水岸生活,吸纳世界公民。

1、三通一平:是指在土地开发时进行的通水、通电、通路、土地平整。
2、七通一平:给水、排水、电力、通讯、燃气、热力、道路通和土地平整。
3、占地面积:红线范围内的面积。
4、建筑面积:指建筑物外墙(柱)勒脚以上各层外围水平投影面积之和,包括阳台、挑廊、地下室、室外楼梯等。
5、销售面积:指商品房按套出售,其销售面积为购房者所购买的套内建筑面积与应分摊面积的共有建筑面积之和。
6、使用面积:指住宅各层面平中,直接供住户生活使用的净面积之和(在住房买卖中,一般不采用使用面积来计算价格)。
7、公摊面积标准:指商品房销售中应分摊计入销售面积的商品房中公共建筑空间的面积,由两部分组成:一)室内外楼梯、内外廊、公共门厅、通道、电梯、配电房、设备层、设备用房、结构转换层、技术层、空调机房、消防控制室、为整栋楼层服务的值班警卫室,建筑物内的垃圾房以及突出屋面有围护结构的楼梯间、电梯机房、水箱间等;二)套单元与公用建筑空间之间的分隔以及外墙(包括山墙)墙体水平投影面积。
公用建筑面积分摊系数:公用建筑面积/套内建筑面积之和。
8、实用面积:建筑面积扣除公共分摊面积后的余额。
9、计租面积:住宅用房按使用面积计算,非住宅用房按建筑面积计算。
10、套内建筑面积:指商品房套内各部分建筑面积的总和。
套内建筑面积=套内使用面积+套内墙体面积+阳台建筑面积
套内建筑面积=套内使用面积/标准层的使用面积系数
11、容积率:总建筑面积/总用地面积(多层容积率大致为3,高层为5,超高层为7,别墅为0.3-0.45左右、容积率越低,居家环境越好、单价高、品质高;容积率越高,单价低、品质低)
12、建筑密度:基底面积之和/总占地面积*100%
13、绿化率:指项目规划建设用地范围内的绿化面积与规划建设用地面积之比。
公式:植被垂直面积/占地面积*100%
14、绿地率:所有住宅各类绿地面积与住宅总用地面积的比例。新区建设中不应低于30%,旧区改造时不宜低于25%(不包括屋顶、晒台的人工绿地)。
绿化覆盖率>绿化率(绿化所占面积)>绿地率
15、得房率:套内建筑面积/套建筑面积(销售面积)之比
套内建筑面积=套内使用面积+套内墙体面积+阳台建筑面积
套建筑面积=套内建筑面积+分摊的公用建筑面积
16、开间:住宅房子的横向宽度。 进深:住宅的实际长度。
17、层高:指下层地板面到上层楼面的高度,包括楼板厚度,以米为单位。
18、净高:指层高减去楼板厚度的净剩值,即楼板上表面至上层楼板下表面的距离。
19、绿地面积:指能够用于绿化的土地面积,不包括屋顶绿化、垂直绿化和覆盖土小于2平方米的土地。
20、跃层式商品房:上、下两层楼,客厅为两层高,没有封。
21、复式楼:楼梯连接两层,客厅只有一层高。
22、错层:房内高度不一至,一米以内分离。
23、砖混结构:由砖和混凝土组成,承重墙(四面不能动,梁柱都不能动)。
24、框架结构:指以钢筋混凝土浇捣成承重梁柱,适合大规模工业化施工,效率较高,承重墙在梁柱,墙面可以自由打通。其次还有:砖木结构、钢筋混凝土、框简结构、钢体结构等。
25、房屋的耐用年限:指房屋能够维持正常使用的年限,与设计的标准、建筑的材料、施工质量、使用状况、维护保养相关。
钢筋结构:60-80年 砖混结构:40-60年 砖木结构:30-50年 其他:15年以下
前滩滨江道
售楼处电话☎:400-998-9694✔✔
如有问题欢迎来电咨询,来电即可享受买房优惠!
预约来电尊享购房优惠,可预约案场内部销售人员,专业一对一热情服务,让您用专业眼光去买房。
前滩滨江道售楼处电话☎:400-998-9694✔✔
楼盘项目全面介绍,本电话为开发商提供线上预约售楼电话,楼盘项目全面介绍(包含楼盘简介,均价,房价,现房,期房,别墅,叠墅,大平层,价格,楼盘地址,户型图,交通规划,备案价,备案名,项目配套,样板间,开盘时间,认筹时间,楼盘详情,售楼处电话,最新消息,最新详情,周边配套,一房一价,最新进展等详情咨询)楼盘详情丨价格丨更多优惠丨机不可失丨欢迎致电丨诚邀品鉴!售楼处位置丨特价房丨工抵房丨剩余房源丨户型图丨最新消息丨免责声明:将文章内容综合来源于网络、只作分享,版权归原作者所有!!如有侵权,请联系我们,我们第一时间处理如有问题欢迎来电咨询,专业一对一热情服务,让您用专业眼光去买房。如果您想了解更多楼盘详情,欢迎提前预约拨打