上海奉贤奉发云邸(售楼处)-上海奉贤奉发云邸销售中心(营销中心)-上海奉贤奉发云邸楼盘欢迎您-小区环境-户型-价格-地址-楼盘详情-售楼处电话-交房时间

淮南楼市观察 2025-10-04 09:01:08
用手机看
扫描到手机,新闻随时看

扫一扫,用手机看文章
更加方便分享给朋友

上海奉贤奉发云邸售楼处电话:400-8567-004✔✔【预约热线】 奉发云邸售楼处营销中心:400-8567-004 奉发云邸售楼处电话/地址☎:400-8567-004(开发商热线) 如有问题欢迎来电咨询,专业一对一热情服务,让您用专业眼光去买房。

上海奉贤奉发云邸售楼处电话:400-8567-004✔✔【预约热线】

奉发云邸售楼处营销中心:400-8567-004

奉发云邸售楼处电话/地址☎:400-8567-004(开发商热线)

如有问题欢迎来电咨询,专业一对一热情服务,让您用专业眼光去买房。

上海奉贤奉发云邸

1地段

「奉发云邸」择址奉贤新城东南板块,坐享自贸新区产城融合和奉贤“三区两镇”双重发展红利。区域将围绕新能源汽车、精准医疗、生物医药和世界级大健康产业发展,打造“宜居、宜业、宜游、宜学”的湾区。

交通方面, 纵横立体路网 闲适与繁华随意切换 林海公路/浦星公路/沪金高速/沪奉高速(建设中)/金海公路多条纵线与绕城高速、申嘉湖高速双横向干道组成立体路网,辐射大浦东黄金生活圈。规划中的市域奉贤线直抵海湾大学城,项目门口即有公交站点布局,便捷路网,畅享上海主场生活。

生态方面,一湖三公园 推门即享诗意悠然 项目周边布局海湾国际森林公园、碧海金沙、都市菜园等3大国家级4A级景区,以及15公顷星火体育公园约2.7万㎡湖域,形成“一湖三公园”多维生态系统,打造滨海生态宜居宜养住区。

其他方面,项目周边分布有海湾镇政府、奉贤海湾医院、星火学校、海湾小学、上海师大第四附中、上海师范大学奉贤校区、华南理工大学奉贤校区等政务、医疗、教育机构,全维成熟配套触手可及。

2产品

「奉发云邸」以上海“闲仕生活”为精神内核,秉承奉发集团精工匠心与品质,敬呈全周期宽景轻平层与会生长的轻别墅两大主力产品。空间灵动,超宽尺度,打造全龄段家庭的舒适生活空间,尽享公园湖海之间的闲适生活意境。

以浦江烟雨为主线,设计中轴对称多维景观,匠造诗意栖居。规划长者、幼儿、青年全龄化游览、运动、互动空间,臻造酒店式美学住区。

项目高层采用知名品牌家居建材,以数十项精工细节,为城市高阶臻著理想人居范本。

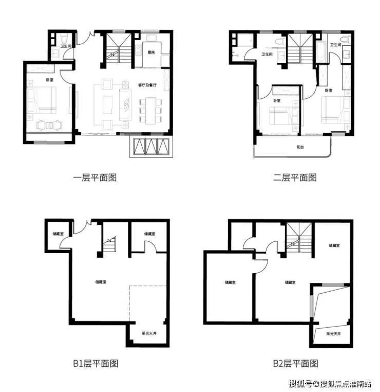
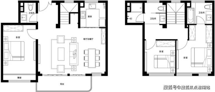
A1下叠 约138㎡

A1上叠约138㎡

A2上叠约138㎡

A2下叠约138㎡

E户型 约126㎡

F户型 约99㎡

B户型 约138㎡

国企奉发倾力打造

奉贤海湾全新热盘

「奉发·云邸」

户型:建面约99-251㎡

房源:214套

均价:27639/㎡

参考总价:220.3-908.3万元/㎡

「奉发·云邸」周边落座了 欧式风情商业街、城市书屋、都市菜园等优质生活配套,毗邻海湾镇政府,直线距离仅约500米,紧邻火车头城市广场,让业主在生活上享受无忧便捷。

自驾方面,项目周边有林海公路、浦星公路、沪金高速、沪奉高速(建设中)与绕城高速、申嘉湖高速组成的立体路网,辐射大浦东黄金生活圈。此外,项目离规划中的奉贤线海湾镇站约1公里,未来的轨道出行也十分便捷。

生态休闲方面,除了海湾国际森林公园、碧海金沙、都市菜园3大国家级4A景区,以及星火体育公园内约2.7万㎡湖域,项目周边还分布有海湾幼儿园、星火学校、上海师范大学附属奉贤实验小学/中学等优质教育资源,无论是生态环境还是学区配套都非常完善。

项目一房一价表首发:

买新房的5大核心优势与必备房产知识

(适合转发客户的购房指南)

一、为什么优先选择新房?

1. 政策红利更优厚

新房普遍享受开发商首付分期、限时补贴(如契税减免、物业费赠送等),且房贷审批政策更友好。部分城市对首套新房提供公积金贷款额度上浮,购房成本显著低于二手房。

2. 产品设计更前瞻

2023年后交付的新房均需符合《住宅项目规范》新国标:

- 层高普遍≥2.95米(老房多为2.7-2.8米)

- 电梯载重标准提升30%

- 全屋预留智能家居线路

新型社区更注重人车分流、适老化设计,满足现代家庭需求。

3. 资产保值更稳健

新房产权年限完整(住宅70年从拿地起算),而二手房的剩余年限可能已折损10-20年。重点规划区的新房随着配套落地,5年内普遍有15-30%价值增长空间。

4. 交易风险更低

开发商直售无中介费,资金由银行监管账户托管,杜绝二手房交易中可能存在的产权纠纷、抵押风险。

5. 居住体验更舒适

采用Low-E玻璃、同层排水等新工艺,规避老房常见的管道返臭、外墙渗水等问题。物业多为开发商自持,服务响应更快。

二、新手必知的3个房产常识**

1. **首付≠总房款10%-20%**

首付比例受政策调控影响(如首套25%-30%),且需额外预留契税(1%-3%)、维修基金(约50-120元/㎡)等费用。

2. **预售证是安全底线**

购房前务必查验楼盘“五证”(尤其《商品房预售许可证》),无证项目可能存在烂尾风险。

3. **产权年限≠房屋寿命**

住宅土地使用权到期后自动续期(需补缴费用),建筑质量合格的老房仍可居住,但贷款年限会随房龄增加而缩短。

三、避坑指南**

- 警惕“赠送面积”:需核实是否计入产权证

- 精装房验收:要求公示装修明细(品牌/型号)

- 学区承诺:以教育局当年划片文件为准

上海奉贤奉发云邸售楼处电话:400-8567-004✔✔【预约热线】

奉发云邸售楼处营销中心:400-8567-004

奉发云邸售楼处电话/地址☎:400-8567-004(开发商热线)

如有问题欢迎来电咨询,专业一对一热情服务,让您用专业眼光去买房。

声明:本文由入驻焦点开放平台的作者撰写,除焦点官方账号外,观点仅代表作者本人,不代表焦点立场。