建发璟园售楼处电话☎:400-998-9694✔✔建发璟园售楼处电话☎:400-998-9694✔✔建发璟园新盘取证,推出叠墅与洋房,属姑苏区罕见低密住宅项目,速推年内开盘。
建发璟园
售楼处电话☎:400-998-9694✔✔
如有问题欢迎来电咨询,来电即可享受买房优惠!
预约来电尊享购房优惠,可预约案场内部销售人员,专业一对一热情服务,让您用专业眼光去买房。
建发璟园售楼处电话☎:400-998-9694✔✔
建发璟园售楼处电话☎:400-998-9694✔✔
Jianfa Jingyuan Sales Office Phone ☎: 400-998-9694 ✔✔
姑苏区又来新项目了!
Gusu District has a new project!
昨天,位于金门板块的纯新盘建发璟园首次取证,项目首批次房源为叠墅和洋房!
Yesterday, Jianfa Jingyuan, a pure new property located in the Kinmen area, obtained its first certification. The first batch of properties for the project includes stacked villas and villas!
项目速度还是比较快的,在今年拿的地,年内就开盘了!
The project speed is quite fast. We won the land this year and it will be launched within the year!
项目打造的是宋韵墅区,产品上主要是建面约210-255平低密叠墅,建面约140-180平臻境洋房,在姑苏区来说,叠墅新房还是比较少的,算是一个比较重要的补仓!
The project is aimed at the Songyunshu area, with the main products being low-density stacked villas with a construction area of about 210-255 square meters and high-end villas with a construction area of about 140-180 square meters. In the Gusu area, there are relatively few stacked villas and new houses, which can be considered an important replenishment!
姑苏区老钱们,今年会选这里吗?
Old folks from Gusu District, will you choose this place this year?

建发璟园售楼处电话☎:400-998-9694✔✔建发璟园营销中心电话:400-9989-694【24小时热线】建发璟园预约热线:4009989694【售楼处电话】
首次取证!洋房和叠墅
不得不说,建发璟园的速度也是真的快,今年拿地,今年就取证入市了,更是直接在昨天,项目连取2证。

建发璟园售楼处电话☎:400-998-9694✔✔建发璟园营销中心电话:400-9989-694【24小时热线】建发璟园预约热线:4009989694【售楼处电话】
3#、6#、15#
64套 住宅房源
整体备案均价 52503元/平
备案总价区间在 521-1765万元
建筑面积段 127.26-260.29平
建发璟园售楼处电话☎:400-998-9694✔✔建发璟园营销中心电话:400-9989-694【24小时热线】建发璟园预约热线:4009989694【售楼处电话】
Jianfa Jingyuan Sales Office Phone ☎: 400-998-9694 ✔✔ Jianfa Jingyuan Marketing Center Phone: 400-9989-694 [24-hour hotline] Jianfa Jingyuan Reservation Hotline: 4009989694 [Sales office phone]
1,这是姑苏区金门板块的纯新盘建发璟园首次取证;
1. This is the first time that a pure new property, Jianfa Jingyuan, has been certified in the Jinmen area of Gusu District;
2,这也是建发在姑苏区的首个项目;
2. This is also the first project of Jianfa in Gusu District;
3,本批次房源的备案单价区间在40834.09-70023.03元/平;
3. The recorded unit price range for this batch of housing is between 40834.09-70023.03 yuan/square meter;
4,本批次房源的整体备案均价为52503元/平;
4. The overall average filing price for this batch of properties is 52503 yuan/square meter;
5,本批次房源的产品为洋房、叠墅;
5. The products of this batch of housing are villas and townhouses;
洋房:15#,28套,全装修交付,整体备案均价47190元/平,备案总价区间在521-775万元;
Western style house: 15 #, 28 units, fully decorated and delivered, with an overall average filing price of 47190 yuan/square meter and a total filing price range of 5.21-7.75 million yuan;
叠墅:2#、6#,36套,备案装修类型为毛坯,整体备案均价55035元/平,备案总价区间在1006-1765万元;
Stacked villas: 2 #, 6 #, 36 sets, with a registered decoration type of rough. The overall registered average price is 55035 yuan/square meter, and the total registered price ranges from 10.06-17.65 million yuan;
建发璟园售楼处电话☎:400-998-9694✔✔建发璟园营销中心电话:400-9989-694【24小时热线】建发璟园预约热线:4009989694【售楼处电话】
Jianfa Jingyuan Sales Office Phone ☎: 400-998-9694 ✔✔ Jianfa Jingyuan Marketing Center Phone: 400-9989-694 [24-hour hotline] Jianfa Jingyuan Reservation Hotline: 4009989694 [Sales office phone]

叠墅官方户型出炉!面积段发布
从官方发布的信息来看,建发璟园打造了建面约210-255平低密叠墅,建面约150-180平臻境洋房。
目前项目已经公开了售楼处和示范区,其中叠墅户型已经出炉,洋房也发布了一种规划户型图!
建发璟园售楼处电话☎:400-998-9694✔✔建发璟园营销中心电话:400-9989-694【24小时热线】建发璟园预约热线:4009989694【售楼处电话】
建筑面积约252平上叠
✦


建发璟园售楼处电话☎:400-998-9694✔✔建发璟园营销中心电话:400-9989-694【24小时热线】建发璟园预约热线:4009989694【售楼处电话】
独立门厅、独立入户、中西双厨、超大主卧、二层三个套房设计、星空露台。
02
建筑面积约225平中叠
✦

中叠,不仅有地上、地下双入户门厅,而且更有270°空中庭院。
03
建筑面积约255平下叠
✦

建发璟园售楼处电话☎:400-998-9694✔✔建发璟园营销中心电话:400-9989-694【24小时热线】建发璟园预约热线:4009989694【售楼处电话】
地下约6.1米挑高,约10.2米南向面宽,阔境横厅设计,套房主卧,独立卫浴、衣帽间。
04
洋房建筑面积约152平
✦


建发璟园售楼处电话☎:400-998-9694✔✔建发璟园营销中心电话:400-9989-694【24小时热线】建发璟园预约热线:4009989694【售楼处电话】
4房2厅3卫的房屋套型,4开间朝南
客厅是大宽厅设计,开间为4.5米;
南北双阳台,南向阳台为三开间设计,开间达10.825米
北向还有一个阳台,可以纳入北次卧或用作生活阳台;
南向双套房设计,南向次卧套房(书房),不过为暗卫
主卧套房设计,有独立的卫生间和衣帽间,主卧的飘窗为L型,视野和采光更好;

建发璟园售楼处电话☎:400-998-9694✔✔建发璟园营销中心电话:400-9989-694【24小时热线】建发璟园预约热线:4009989694【售楼处电话】
周边界面不错!板块还有新项目
建发璟园,即,苏地2024-WG-Z47号地块和苏地2025-WG-Z11号地块,位于姑苏区金阊街道金门路与馨泓路交界处。
项目分为南北两区,南区是今年4月2日,建发以总价53104万元竞得苏地2024-WG-Z47号地块,成交楼面价26054元/平,溢价率23.77%。
北区则是今年7月9日,建发以底价69489万元竞得苏地2025-WG-Z11号地块,成交楼面价22800元/平。
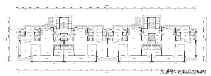
根据规划,南区占地面积17723.6平,总建筑面积35531.39平,容积率1.15。项目拟建8栋4-6F住宅。

建发璟园售楼处电话☎:400-998-9694✔✔建发璟园营销中心电话:400-9989-694【24小时热线】建发璟园预约热线:4009989694【售楼处电话】
北区占地面积25398平,容积率1.2,项目拟建7栋6F-10F的住宅。

项目取法姑苏百园,打造“一轴一环两园十六景”的园林格局。南区借鉴可园“一泓池水”的精致典雅,打造方塘观鱼、玉溪春色等六景;北区取意沧浪亭的野逸疏朗,形成印沧浪、碧水环廊等八景。

建发璟园售楼处电话☎:400-998-9694✔✔建发璟园营销中心电话:400-9989-694【24小时热线】建发璟园预约热线:4009989694【售楼处电话】
建发璟园还打造了下沉庭院,南园会所以会客功能为主,营造室内高尔夫、影音室、茶室、私宴厅等私密体面的社交场景,创造家外之家的待客之道。北园会所聚焦运动健身,提供泳池、健身房、瑜伽室等活力运动场景。

项目位于姑苏区金阊街道金门路北、馨泓路东。位置上来看其实还不错,周边基本都是住宅小区,居住氛围比较浓。而且项目周边还有一个项目在售,一个项目待售,算是姑苏区存货比较充足的板块。

建发璟园售楼处电话☎:400-998-9694✔✔建发璟园营销中心电话:400-9989-694【24小时热线】建发璟园预约热线:4009989694【售楼处电话】
周边配套来看,目前也是比较齐全的。

建发璟园售楼处电话☎:400-998-9694✔✔建发璟园营销中心电话:400-9989-694【24小时热线】建发璟园预约热线:4009989694【售楼处电话】
交通上,小区南面就是金门路,直接连接新区。西面靠近喜欢快速路,也是东西向大动脉。小区距离1号线桐泾公园站约1公里,往东一站可以换乘2号线。

商业上面,北面是来客茂时尚中心,吃喝玩乐可以一站式满足,此外,南面有彩香一村菜场,日常生活也是比较方便的!大型商业设施上面,东面是石路商圈,有天虹商场、石路步行街、华贸中心(在建)等。
教育设施上面,小区南面有金阊外国语实验学校、苏州市一中分校、第五中学等!
此外,项目周边还有金阊医院、苏大附二院等设施。
1、什么是房产:房屋产权的简称。
2、什么是地产:是指土地财产。
3、什么是房地产:是房产和地产的总称。
4、什么是房地产业:从事房地产开发、建设、经营、管理以及维修、装饰和服务的综合性产业。
5、什么是房地产开发:是指在依法取得土地使用权的土地上按照使用性质的要求进行基础设施、房屋建筑的活动。
6、什么是土地开发:是将“生地”开发成可供使用的土地。
7、集体土地是指:农村集体所有的土地。
8、征用土地是指:国家为了公共利益的需要,可依照法律规定对集体所有的土地实行征用。
9、什么是土地所有权:是指国家或集体经济组织对国家土地和集体土地依法享有的占有、使用、收益和处分的权能。
10、什么是土地使用权的出让:指国家以协议、招标、拍卖的方式将土地所有权在一定年限内出让给土地使用者,由使用者向国家支付土地使用权出让金的行为。
11、什么是土地使用权转让:是指土地使用者通过出售、交换、赠与和继承的方式将土地使用权再转移的行为。
12、什么是地籍、产籍:是对在房地产调查登记过程产生的各种图表、证件等登记资料,经过整理、加工、分类而形成的图、档、卡、册等资料的总称。
13、生地是指:不具备开发条件的土地。
14、熟地是指:已完成三通一平(水、电、道路,土地平整)或七通一平,具备开发条件的土地。
15、什么是宗地:是地籍的最小单元,是指以权属界线组成的封闭地块。
16、什么是宗地图:是土地使用合同书附图及房地产登记卡附图。它反映一宗地的基本情况。包括:宗地权属界线、界址点位置、宗地内建筑位置与性质、与相邻宗地的关系等。
17、证书附图是指:房地产后面的附图,主要反映房地产情况及房地产所在宗地情况。
18、什么是物业管理:泛指一切有关房地产开发、经营、商品房销售、租赁及售后服务。
19、什么是业主委员会:是在物业管理区域内代表全体业主实施自治管理的组织。是代表
物业全体业主合法权益的社会团体,其合法权益受国家法律保护。
20、业主委员会是如何产生的:由业主大会从全体业主中选举产生。
21、住房补贴是指:国家为职工解决住房问题而给予的补贴资助。
22、房屋的所有权是指:对房屋全面支配的权利。
23、房地产交易的两种主要形式是:地产交易形式与房产交易形式。
24、建筑物是指:人工建造而成的房屋和构筑物。
25、构筑物是指:建筑物中除房屋以外的东西。
26、什么是期房:是指消费者在购买时不具备即买即可入住的商品房。
27、期房是如何介定的:房地产开发商拿到商品房预售许可证开始至取得房地产权证大产证或竣工验收合格可以直接入住使用)为止。
28、什么是预售合同:消费者在购买期房时签定的销售合同。
29、什么是现房:是指消费者在购买时具备即买即可入住的商品房,即开发商已办妥所售的商品房的大产证(或已经竣工验收合格并交付使用)的商品房。
30、什么是毛坯房:房地产商交付屋内只有门框没有门,墙面地面仅做基础处理而未做表面处理的房叫毛坯房。
31、什么是成品房:是指对墙面、天花、门套、地板实行装修。
32、什么是商品房:是指以完全的市场价格向购房者出售的房子。
33、商品房预售是指:在房地产尚未建成以前,房地产的经销商在取得受买人一定数量的定金后,将期房出售给受买人。
34、商品房现售是指:指房地产开发企业将竣工验收合格的商品房出售给买受人。
35、二手房通常指的是:再次进行买卖交易的住房。
36、经济适用房指的是:面向中低收入家庭的普通住宅。
37、例出3种以上的安居房的种类:准成本房、全成本房、全成本微利房和社会微利房。
38、低层住宅的介定:1-3层的住宅。
39、多层住宅的介定:4-6层的住宅。
40、小高层住宅的介定:7-11层的住宅。
41、中高层住宅的介定:12-16层的住宅。
42、高层住宅的介定:16层以上为高层住宅。
43、超高层建筑的介定:总高度超过100米的建筑。
44、商品房的结构是指:房屋主体所使用的施工工艺和用材。
45、钢结构的意思是:承重的主要结构是用钢材料建造的,包括悬索结构。
46、钢混结构的意思是:承重的主要结构是用钢和混凝上建造的。
47、砖木结构的意思是:承重的主要结构是用砖、木材建造的。
48、砖混结构的意思是:主要是砖墙承重,部分是钢盘混凝土承重的结构。
49、框架结构的意思是:以钢筋混凝土浇捣成承重梁柱,再用预制的隔墙分户的结构。
50、开间指的是:一间房屋内一面墙的定位轴线到另一面墙的定位轴线之间的实际距离。
建发璟园
售楼处电话☎:400-998-9694✔✔
如有问题欢迎来电咨询,来电即可享受买房优惠!
预约来电尊享购房优惠,可预约案场内部销售人员,专业一对一热情服务,让您用专业眼光去买房。
建发璟园售楼处电话☎:400-998-9694✔✔
楼盘项目全面介绍,本电话为开发商提供线上预约售楼电话,楼盘项目全面介绍(包含楼盘简介,均价,房价,现房,期房,别墅,叠墅,大平层,价格,楼盘地址,户型图,交通规划,备案价,备案名,项目配套,样板间,开盘时间,认筹时间,楼盘详情,售楼处电话,最新消息,最新详情,周边配套,一房一价,最新进展等详情咨询)楼盘详情丨价格丨更多优惠丨机不可失丨欢迎致电丨诚邀品鉴!售楼处位置丨特价房丨工抵房丨剩余房源丨户型图丨最新消息丨免责声明:将文章内容综合来源于网络、只作分享,版权归原作者所有!!如有侵权,请联系我们,我们第一时间处理如有问题欢迎来电咨询,专业一对一热情服务,让您用专业眼光去买房。如果您想了解更多楼盘详情,欢迎提前预约拨打