尚湾林语售楼处电话→尚湾林语售楼中心电话→2025上海尚湾林语楼盘百科→首页网站→楼盘百科→首页网站→尚湾林语售楼处24小时热线电话

淮南楼市观察 2025-09-02 10:15:21
用手机看
扫描到手机,新闻随时看

扫一扫,用手机看文章
更加方便分享给朋友

上海闵行尚湾林语售楼处电话:400-8815-114(预约热线)尚湾林语营销中心服务热线:400-8815-114(已认证)预约看房请提前联系案场的销售【尚湾林语】——诚邀品鉴——

【尚湾林语】

上海闵行尚湾林语售楼处电话:400-8815-114(预约热线)

尚湾林语营销中心

服务热线:400-8815-114(已认证)

预约看房请提前联系案场的销售

买房最大的风险,往往不是贵,而是在「再等等」的犹豫中,永远错过最佳时机。

而现在,一个历史性的置业机遇,就摆在闵行。

随着地王频出,梅陇售价破“8”,闵行中部筑底价 800万级

而紫竹地块更以约19%高溢价率成交,低容积率属性决定未来 售价或达7 万+/㎡,闵行南部门槛直线跃升。

闵行置业门槛形成中部800万级,南部坐稳650万级的格局。

但真正的机遇,往往藏在价格变革之中。

约180万方大城尚湾林语推出132套建面约81-149㎡2-4房,2房447万起,3房466万起!

项目已是准现房,按照进度很有可能今年买今年住(以合同交付为准)。

项目四批次推售楼栋图

✔30幢是全小区最好楼栋,景观楼王。

南向无遮挡,直面自然生态景观,拥极致采光和视野。

✔34幢为洋房,邻景观河道,全部为热门的建面约149㎡户型。

项目效果图

事实上,447万起的价格比五个新城核心都要便宜(约550万级),从能级、兑现力来讲, 可以闵行主城区何必五个新城,尚湾林语性价比拉满!

当然,400多万可以买到二手房,但二手房房龄普遍要20年,社区、景观、立面都已陈旧,停车也紧张,再住10年它可能会老化的更快。

而尚湾林语是新房,约180万方大城打造全新界面和潮流配套,已预定南闵行新的城市级IP;全新的门庭、公区,与时俱进的地库、架空层,有颜有功能的景观及得房率80-83%的舒适户型,为你打开适配年轻人的全新生活方式。

更关键的是,尚湾林语的「入手紧迫性」绝非单一维度价格优势,而是多个核心价值的「王炸组合」:

✔稀缺准现房,所见即所得,很有可能今年买今年住,省两年过渡期租金(以合同交付为准)。

✔约180万方大城, 体量在上海屈指可数,涵盖住宅、商业、教育、生态、运动等全维配套,未来步行圈内享缤纷生活。且从道路到公园、生活配套等,180万方大城正加速兑现,整个界面已焕然一新。

✔约1.6-1.8容积率小高层, 搭配 最大约 42米 栋距,舒适度远胜2.0-2.5容积率密密麻麻的高层。

✔得房率约80 -83% , 相比常规75%,百平米面积多一间书房。当然实用率更高,也变相分摊了房价,实际单价更划算,也让400万级起的价格更具性价比。

✔七宝中学教育集团入驻 ,就位于大城内, 与尚湾林语一街之隔,为区域发展注入强心剂。

(*仅作配套示意,对口学校以教育局发布为准)

上海闵行尚湾林语

售楼处电话:400-8815-114(预约热线)

尚湾林语营销中心

服务热线:400-8815-114(已认证)

预约看房请提前联系案场的销售

447万起2房,466万起3房

尚湾林语火热销售中

建面约81-149㎡2-4房准现房

得房率高达约80-83%

社区所见即所得+约180万方大城快速兑现中

惊爆价格!真的很刺激!

1、“逆天”性价比!仅82套,超多人盯,可能根本不够抢~

尚湾林语,这次的加推产品有多劲爆?

项目三期推出了建面约100㎡、约149㎡两大改善户型!

以建面约100㎡的三房为例,得益于ta的超高得房率,实际空间体验可达到约110㎡,直接将“2+1”房秒变“大三房”,你得到的是妥妥的标准三个大卧室!

仅约500万起的总价,就能买到约110㎡改善大三房的居住体验,简直不要太香~

换算下来,500万➗110㎡≈4.6万/㎡的单价,

这个价格在同板块单价近7万/㎡的市场上,简直就是逆天!

同样按板块均价约7万/㎡来计算,光是这多出来的10㎡差距,就能让你立刻爆省七十万!

效果图

2、改善版“神户型”,约80-83%超高得房率,碾压各路竞品!

同样是总价500万级,在别家买到的是刚需小三房,在尚湾林语,直接跃升改善型大三房!

刚需价格还能买改善?也就尚湾林语能做到!在上海是独一份!

况且,好户型,太重要了,直接决定了未来人生一半时间的生活质量!

特别是,自今年8月份,7090政策寿终正寝后,上海正式跨入改善元年!

大三房、大四房将成为未来市场认可的主流!

相较于其它同级别产品,尚湾林语的户型,个个都是爆款中的战斗机~

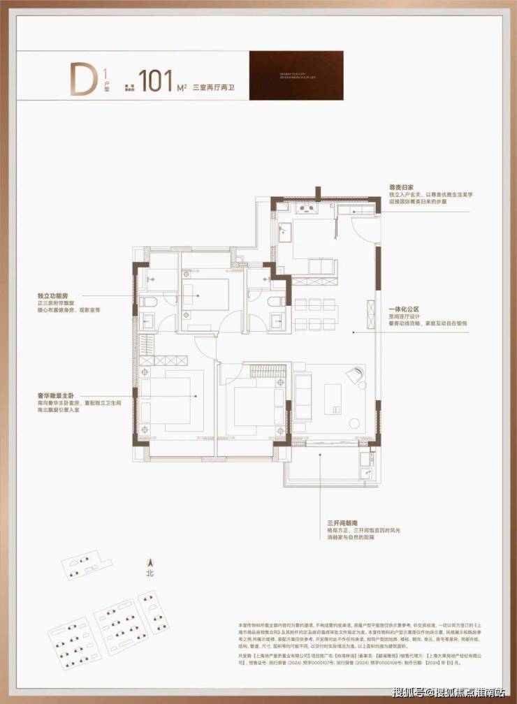
建面约101㎡3房2厅2卫户型:

真正的大三房,空间阔绰,与传统“2+1”房不同,完全没有逼仄的次卧;餐厅位置,甚至可以放下六人桌,也完全不会拥挤!

户型图

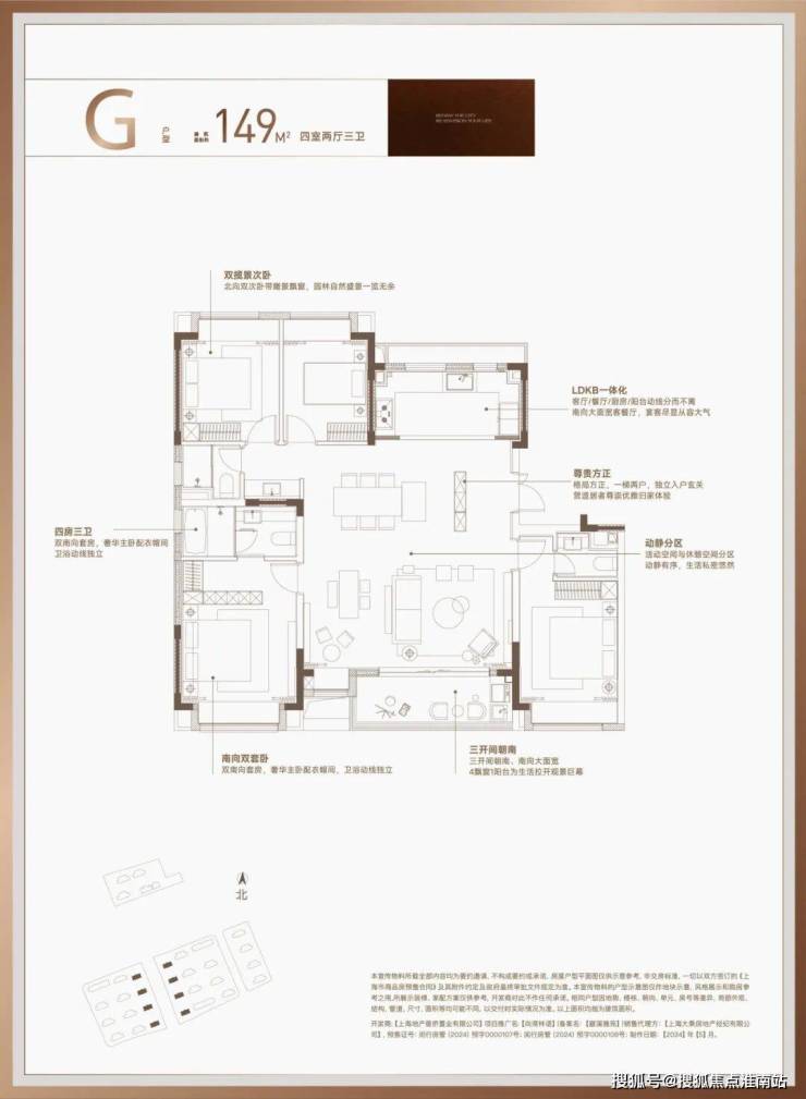
建面约149㎡4房2厅3卫户型:

一梯两户设计,南北通透,三开间朝南,大尺度、大面宽,全屋飘窗,采光充足,南向阔绰双套房设计,配备奢华主卧及衣帽间,私密性更强。

兼具尊崇与私密的多功能家庭需求,高品质的生活调性,在这里得到完美诠释!

户型图

3、精装对标10万+高端住宅配置!全是国内外一线大牌!

项目采用了市中心高端住宅才配置的唯宝、高仪品牌卫浴;

全屋还配备了日立中央空调、威能地暖及热水器。

以及“爱马仕”级别的德国西门子厨具——洗碗机、燃气灶、抽油烟机。

妥妥的高端住宅精装配置!

样板房 实景照片

样板房 实景照片

样板房 实景照片

样板房 实景照片

不仅户型、精装上牛,社区空间也超给力!

上海闵行尚湾林语

售楼处电话:400-8815-114(预约热线)

尚湾林语营销中心

服务热线:400-8815-114(已认证)

预约看房请提前联系案场的销售

4、低密容积率+超宽楼栋距!改善型居住舒适度,尺度上再加码!

项目地块的容积率仅有约1.6-1.8!

一般这种容积率开发商都会做别墅+高层的配置,即高低配社区!

但为了业主拥有更好的居住舒适度,则选择做了纯小高层低密社区!

正是基于此,项目最大楼栋距可达约42米!(市面上一般的小高层产品栋间距往往在30米以下)

好家伙,有了这两者的加持,项目居住舒适度直接又攀升了好几个LEVEL!

示范区 实景照片

看到这里,其它项目就该差不多收尾了,但尚湾林语带给你的惊喜,却远不仅限于此!

摊开地图,你会发现尚湾林语仅是整个180万方综合体的一隅!

效果图

事实上,作为一个复合型超百万方大城综合体项目,整盘共划分了“尚品天地”、“尚品颛溪”、“尚湾林语”三大组团功能区!

项目示意图

11月29日,尚品城市生活馆全新实景示范区与样板房同步开放!

同时,并赋予了这个巨无霸综合体一个全新形象——尚品新境!

自此,大城雏形已现!上海南片区再添一座新中心,大零号湾也终于有了自己的新中心!

未来居住在这里的业主,不再仅仅是局限于一套房子,而是整个180万方的大城生活方式!

效果图

上海闵行尚湾林语

售楼处电话:400-8815-114(预约热线)

尚湾林语营销中心

服务热线:400-8815-114(已认证)

预约看房请提前联系案场的销售

超前兑现力!

启幕大城全新生活方式!

示范区&样板房,实景已呈!看得见的“兑现力”!

目前,尚湾林语的外立面、架空层、入户大堂、电梯厅、绿化、水景、口袋公园,均已实景呈现,所见即所得,买得更安心!

外立面,整体采用大面积的通透玻璃材质与精致的金属线条相融合!

实景照片也搬来了,诺~ 就是下面这样式地——

示范区 实景照片

颜值与品质并存,一眼望去,简直美翻了~

不知道的,还以为是效果图,简直是设计图纸上的1:1完美神还原!

还有入户大堂,站在门口,就有一种轻奢的尊崇感与气场扑面而来~

示范区 实景照片

进入内部是灰色大面铝板搭配金色格栅,电梯厅墙面则铺设大面积岩板,吊顶也颇具设计感!

示范区 实景照片

示范区 实景照片

此外,52幢一楼的架空层,还打造了儿童活动区、会客厅等功能场景,供业主随时随地使用,简直不要太贴心~

示范区 实景照片

项目在社区红线外,还打造了六个口袋公园,其中之一的知心谷,也已实景呈现!

示范区 实景照片

示范区 实景照片

示范区 实景照片

另一组团,“尚品天地”,则汇聚了商办、教育、文体等丰富业态!

购物、美食、娱乐、休闲、读书、运动......全方位的生活方式,在这里就能一键解锁~

光是文体中心就足足有3万多方,不仅规划充满艺术氛围和设计感,在功能上更多元,计划会设置羽毛球、健身房、兵乓球、小剧场、小图书馆、儿童游乐设施等多种场馆!

效果图

上海闵行尚湾林语

售楼处电话:400-8815-114(预约热线)

尚湾林语营销中心

服务热线:400-8815-114(已认证)

预约看房请提前联系案场的销售

这一地块组团的兑现进度,也在如火如荼进行中!

不久前,尚湾林语仅一街之隔的教育地块,已与顶尖名校七宝中学教育集团完成签约,知名头牌教育资源的引进,无疑是一重大利好!

示意图

此外,项目周边路网骨架“三路一河”也已集中开工,整座大城的面貌将迎来翻天覆地变化,预计2025年上半年即可竣工呈现!(来源:今日闵行)

示意图

第三组团,“尚品颛溪”。

拥有约86万方生态秘境、以及约15万方水岸;未来就是你家后花园~

这里不仅提供了游憩休闲功能,还包括自然研习、趣味采摘、有机食养、科普教育等生态体验!

让孩子从小就能接触大自然,对其人生成长意义重大,未来在家门口就能实现!

效果图

如果说尚品新境作品本身已经足够优秀,足以让多数人为之心动,那么ta所在的大零号湾板块,则是在其可谓卓越的基础上,再添一把火!

上海闵行尚湾林语

售楼处电话:400-8815-114(预约热线)

尚湾林语营销中心

服务热线:400-8815-114(已认证)

预约看房请提前联系案场的销售

大零号湾核心腹地!

助力180万方大城起飞!

大零号湾,想必大家都非常熟悉了,在过去的一年中,反复被提及!

近5年,闵行全社会研发投入强度占GDP的近10%,主要集中投入就在“大零号湾”!(来源:上海发布)

ta不仅有着“高校院所聚集、科技成果密度高、产业承载能力强”的区位优势,如同拥有斯坦福大学的硅谷产业园。甚至在某些方面超越了张江!

例如,大零号湾科研用地面积达到了631公顷,占比则达到了惊人的24.4%,超过张江科学城的科研用地占比(21%)!

效果图 仅供参考

同时坐拥上海交大、华东师大两所“双一流”985高校,还有航天、航空、船舶、核电等领域的10多所科研院所,以及近200家国家级、市级研发机构!

作为上海3大首批未来产业先导区之一,大零号湾将在2035年形成万亿市值的高新技术企业集群,辐射至周边约120平方公里的区域,常住人口规模将达约80.3万!(信息来源科创闵行)

万亿产业的导入、以及高端人才的聚集,可以预见性不可估量的板块潜力,同时也会造就庞大的置业需求和购买力,未来即将显现!买在风口来到前,不会错!

示意图 仅供参考

尚品新境与大零号湾双核联动,闵行的希望之光马上起飞!在上海楼市即将逐步稳健回暖的当下,预算总价500万级,选TA,才是最优解!

尚湾林语

180万方大城综合体

新推楼王2幢82套

约100-149㎡精装3房4房

约80-83%超高得房率

总价500万级 享约110㎡大三房!

换算单价仅约4.6万/㎡起!

买到立省70万!

全新实景示范区&样板房开放!

新品加推!即将取证认购!

上海闵行尚湾林语售楼处电话:400-8815-114(预约热线)

尚湾林语营销中心

服务热线:400-8815-114(已认证)

预约看房请提前联系案场的销售

【尚湾林语】

——诚邀品鉴——

上海新房政策主要涉及限购、贷款、税费等方面,以下是2025年8月26日起施行的最新政策要点:

一、限购政策

外环外

沪籍家庭/单身:不限购套数。

非沪籍家庭/单身:需满足购房前15个月内社保/个税累计满12个月,不限购套数。

多子女家庭(至少1名未成年):社保/个税满1年可购2套。

外环内

沪籍家庭/单身:限购2套。

非沪籍家庭/单身:需社保/个税满3年,限购1套。

多子女家庭(至少1名未成年):社保/个税满3年,限购2套。

特殊区域

崇明区购房资格参照外环外政策,社保/个税要求缩短至购房前1个月满足连续15个月累计12个月。

置换客户:出售外环内唯一住房后,再购外环内住房可免社保/个税(需完成原房产去名)。

二、贷款政策

商业贷款

首套:首付15%,利率LPR-45bp(2025年8月LPR为3.5%,即3.05%)。

二套(主城区):首付25%,利率LPR-5bp(3.45%);郊区(临港、嘉定等)首付20%,利率LPR-25bp(3.25%)。

公积金贷款

首套(无子女):最高184万;多子女家庭可上浮至216万。

二套:最高149.5万。

支持提取公积金支付新建预售房首付,不影响贷款额度。

三、税费政策

增值税

持有不满2年:按成交价5.3%征收;满2年免征。

个人所得税

满5年且唯一:免征;否则按1%或差额20%征收。

契税

首套≤140㎡:1%;>140㎡:1.5%。

二套≤140㎡:1%;>140㎡:2%。

房产税

非沪籍首套暂免;二套及以上按人均60㎡免税,超出部分按0.4%-0.6%征收。

四、其他政策

企业购房

需满足近10年累计纳税500万或设立满5年且累计纳税100万(员工≥10人)。

所购房屋须为2000年前竣工、建筑面积≤70㎡的二手房,用于员工租住。

以旧换新补贴

出售外环内2000年前竣工、70平及以下唯一住房,购买外环外新房,可获补贴:

面积<30平:2万元;

30平≤面积<50平:2.5万元;

50平≤面积≤70平:3万元。

以上政策为最新调整内容,具体执行以官方文件为准。建议购房前咨询相关部门或专业机构,确保符合资格。

声明:本文由入驻焦点开放平台的作者撰写,除焦点官方账号外,观点仅代表作者本人,不代表焦点立场。