怀山望售楼处电话→怀山望售楼中心电话→楼盘百科→首页网站→怀山望售楼中心电话→楼盘百科→首页网站→怀山望24小时热线电话
扫描到手机,新闻随时看
扫一扫,用手机看文章
更加方便分享给朋友
怀山望售楼处电话:400-891-9910✔✔✔(已认证)
怀山望售楼处线上预约看房热线电话:400-891-9910(24小时热线含专属置业顾问)
怀山望售楼处24小时vip热线☎:400-891-9910【开发商售楼处预约看房热线】
看房请提前致电预约,联系销售人员获取最新一房一价表,开发商销售人员将详细介绍每个户型的独特设计和优势,带您参观样板间,感受精装修的品质和温馨氛围。您还可以了解周边配套设施,包括高端购物中心、优质学校和便捷交通网络,让您的居住体验更加完美
最新消息:浦东惠南宣桥全新0.87低密墅区——【怀山望】已过会,等待取证入市!

怀山望售楼处电话:400-891-9910✔✔✔(已认证)
怀山望售楼处线上预约看房热线电话:400-891-9910(24小时热线含专属置业顾问)
与大师携手,勇夺业界权威设计大奖!
不止于一个项目,而是代言东方生活探索的可能性
【怀山望】自面向市场以来,力求以"怀望世界·山外见山"的标准,拓展"十年一遇"约0.87公园墅区的可能性。
荣获GHDA环球人居设计大奖:建筑设计 居住建筑设计类2024-2025年度金奖!
怀山望售楼处电话:400-891-9910✔✔✔(已认证)
怀山望售楼处线上预约看房热线电话:400-891-9910(24小时热线含专属置业顾问)
源于以东方哲学,平衡自然自我的力量。
也鉴证了"怀山望"在业界中的引领力与独创性
GHDA环球人居设计大奖【简介】
由新微设计媒体矩阵(国内最大设计类新媒体平台,粉丝超260万),联合 WHA 世界人居设计联合会发起。
50位国际评委,涵盖TOP50地产集团设计总监、国外知名设计机构负责人及国际设计大师
聚焦三大核心维度:前沿设计理念/空间独创性/技术创新。
【怀山望】塑造"公园旁"到"公园里"的绿色生态社区,并通过会所设计打造友好开放的创新性社区界面,以优圆弧线条、经典温润材质及精致细部设计打造新型海派建筑气韵。
引领者总是比他人走快一步,【怀山望】正是如此,携手建筑大师蒋愈/空间大师刘荣禄/景观大师宋淑华,致力于以业界引领者的标准,与大师共创新的作品!

怀山望售楼处电话:400-891-9910✔✔✔(已认证)
怀山望售楼处线上预约看房热线电话:400-891-9910(24小时热线含专属置业顾问)
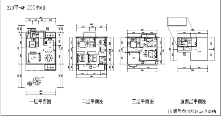
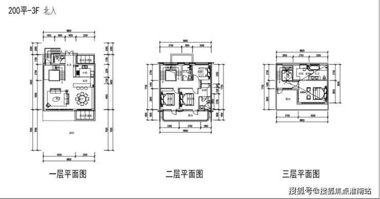
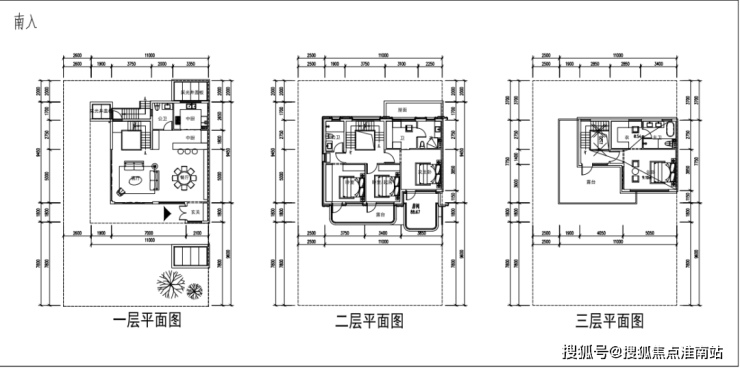
项目推售建面约156-180-200m²叠墅(4-6层)
建面约200-230-260m²合院
过会均价39766元/m²
首开103席,
4叠:中套160平、边套200平
下叠均独立电梯入户
上叠1梯2户、双开门
边套面宽9.3米、客厅6米
中间套面宽8米、客厅4.7米
6叠:中套156平、边套180平
边套带东西270度转角大露台
每叠 面宽都是8.1米含南套房
合院:200-230-250-260平
地上3层地下1层
三开间朝南 大面宽8-11米
厨卫均国际一线品牌
中央空调 地暖 新风系统

怀山望售楼处电话:400-891-9910✔✔✔(已认证)
怀山望售楼处线上预约看房热线电话:400-891-9910(24小时热线含专属置业顾问)
怀山望售楼处电话:400-891-9910✔✔✔(已认证)
怀山望售楼处线上预约看房热线电话:400-891-9910(24小时热线含专属置业顾问)

怀山望售楼处电话:400-891-9910✔✔✔(已认证)
怀山望售楼处线上预约看房热线电话:400-891-9910(24小时热线含专属置业顾问)
叠墅效果图

联排效果图
怀山望售楼处电话:400-891-9910✔✔✔(已认证)
怀山望售楼处线上预约看房热线电话:400-891-9910(24小时热线含专属置业顾问)
户型图赏鉴
4层叠墅户型平面图过程稿



怀山望售楼处电话:400-891-9910✔✔✔(已认证)
怀山望售楼处线上预约看房热线电话:400-891-9910(24小时热线含专属置业顾问)


6层叠墅户型平面图过程稿

怀山望售楼处电话:400-891-9910✔✔✔(已认证)
怀山望售楼处线上预约看房热线电话:400-891-9910(24小时热线含专属置业顾问)




怀山望售楼处电话:400-891-9910✔✔✔(已认证)
怀山望售楼处线上预约看房热线电话:400-891-9910(24小时热线含专属置业顾问)


联排户型图过程稿

怀山望售楼处电话:400-891-9910✔✔✔(已认证)
怀山望售楼处线上预约看房热线电话:400-891-9910(24小时热线含专属置业顾问)



怀山望售楼处电话:400-891-9910✔✔✔(已认证)
怀山望售楼处线上预约看房热线电话:400-891-9910(24小时热线含专属置业顾问)



怀山望售楼处电话:400-891-9910✔✔✔(已认证)
怀山望售楼处线上预约看房热线电话:400-891-9910(24小时热线含专属置业顾问)




怀山望售楼处电话:400-891-9910✔✔✔(已认证)
怀山望售楼处线上预约看房热线电话:400-891-9910(24小时热线含专属置业顾问)
从电梯/室外楼梯到室内(地下室除外),皆为精装一体化交付,装标采用国内外优选品牌。
怀山望售楼处电话:400-891-9910✔✔✔(已认证)
怀山望售楼处线上预约看房热线电话:400-891-9910(24小时热线含专属置业顾问)
智能化:华为鸿蒙智家(或同等品牌)
厨电:德国Miele(或同等品牌)
厨卫体系:国际优选品牌
主卫:配备镜柜及美妆冰箱/浴缸(大部分户型)
主卫洁具五金:汉斯格雅/唯宝(或同等品牌)
未端净水设备:怡口/3M(或同等品牌)

怀山望售楼处电话:400-891-9910✔✔✔(已认证)
怀山望售楼处线上预约看房热线电话:400-891-9910(24小时热线含专属置业顾问)
空调新风地暖一体化
空调:大金(或同等品牌)
地暖:威能(或同等品牌)
新风:霍尼韦尔(或同等品牌)
叠加客餐厅地面:简一大理石瓷砖(或同等品牌)
联排客餐厅地面:天然大理石
项目信息
怀山望售楼处电话:400-891-9910✔✔✔(已认证)
怀山望售楼处线上预约看房热线电话:400-891-9910(24小时热线含专属置业顾问)
项目位于宣桥镇核心区东南侧的别墅组团,紧邻艺泰一品花园,距离16号线野生动物园站约2.8km,整个片区居住氛围浓厚,低密产品堪为当地的名片。
【怀山望】即【艺泰一品花园二期】品质非常值得期待,隔壁一期的艺泰一品花园,在惠南宣桥一直是标杆的存在。
当初就不惜重金力邀原“星河湾”设计团队,由美国WY国际设计机构担当规划设计,由景龙装饰设计公司担当室内设计,依据自然、环境、人文等因素潜心设计创新、打造出具有世界风范的国际级品质,独创南向卧室八角窗设计,270°观景尺度品位尊享;国际先进的酒店式服务理念,提供24小时全天候管家式物业服务;6000平米商业及专属会所......
怀山望售楼处电话:400-891-9910✔✔✔(已认证)
怀山望售楼处线上预约看房热线电话:400-891-9910(24小时热线含专属置业顾问)
这使艺泰一品花园完全突破区域限制,造就出浦东难得的高品质的精品之作,如今的【怀山望】不仅继续延续往期精工细作的高品质,还推陈出新,势必再塑惠南宣桥新标杆。
取之山水 敬之上海
亚洲十大豪宅设计师
苏州桃花源/杭州凤起潮鸣/杭州武林壹号执笔者。
怀山望售楼处电话:400-891-9910✔✔✔(已认证)
怀山望售楼处线上预约看房热线电话:400-891-9910(24小时热线含专属置业顾问)
擅用借景手法,将自然环境转化为居住体验,不止于剪裁山水,更是以超尺度展现曲水意境。
环园而置,引水入园
场地双面紧邻公园,达成完全的嵌入感,而约400米园轴与约2100m的集中园景,达成内园与外园呼应,游走其中营造收放感恢弘园林尺度,正是给了曲水入心的写意之境
蒋愈钟情于将社区变成生活场景,融入全龄精神配套,让社区超越单一居住功能,构建复合型社区。
一圆万般,俯仰大千
约1600m²的"禅圆会所",融合健身房/泳池/茶酒吧等功能,以其为圆心,画出诗意生活布局,让精神复合空间,变成精神场域界面。
怀山望售楼处电话:400-891-9910✔✔✔(已认证)
怀山望售楼处线上预约看房热线电话:400-891-9910(24小时热线含专属置业顾问)
30x18米的悬浮景观廊架,从约9米的高度凌空而置,让走过曲水的每一位都能在峰谷的穿行中,感受不一样的风光。
怀山望售楼处电话:400-891-9910✔✔✔(已认证)
怀山望售楼处线上预约看房热线电话:400-891-9910(24小时热线含专属置业顾问)
蒋愈认为东方建筑的核心在于庭院,需满足"可赏、可游、可用",院里见东方
一墅立心,园中有院
布局上海难得的合院,让庭院成为东方意蕴底色,更丰富的曲径通幽,围绕"禅圆"形成新景观组团,一面是亲切的交流,一面是直击人心的峰谷。在自然过渡的"曲水"营造,松弛有了隐贵质感

怀山望售楼处电话:400-891-9910✔✔✔(已认证)
怀山望售楼处线上预约看房热线电话:400-891-9910(24小时热线含专属置业顾问)
取之海纳敬之栋感
百年中国的第一眼是上海
百年上海的第一眼是法式

怀山望售楼处电话:400-891-9910✔✔✔(已认证)
怀山望售楼处线上预约看房热线电话:400-891-9910(24小时热线含专属置业顾问)
蒋愈在传统与创新的辩证中重塑"东方居住意境",不仅是物理空间营造,更是关于文化认同与当代生活的哲学实践。因而注重在地化的同时,寻求东西方交融的和谐之道。

其更致力于复刻世界传统工法延续文化血脉,当高层现代成为美感的代表词,打造纯墅在有限的细节中寻求共鸣,回应上海海派传承中的精髓﹣﹣法式美学。
高技选新.艺术世纪
基于270°环幕全景舱,不止于窗墙比跃升,细化框线/屋顶及檐下空间,让光影雕琢立面,以三弧造型,同频西方苹果美学的大跨度玻面,通过纷繁的细节,平衡未来与经典。

新独栋感.法式世纪
怀山望售楼处电话:400-891-9910✔✔✔(已认证)
怀山望售楼处线上预约看房热线电话:400-891-9910(24小时热线含专属置业顾问)
"三段式+古典黄金比例+合院孟莎顶",在轻重之间,找到美学与尊贵的平衡,纵横"骨架"提供分户感,以层台点缀变化,创造韵律。多色拼贴多材运用,细腻铝板手工感于石材的点缀中流淌,一眼震撼独栋感,更是质璞艺术感。
弧的境界·峯峦世纪
同频中心豪宅的高技墅造,以曲面重定生活边界,立面全采用 Low - E 三玻两腔中空玻璃,创造更静谧境界,展现更舒展的风景交融,三弧立面,会所圆弧廊架,曲水走向,以三位一体的弧线手法,写意出"峯峦曲水画廊"。

怀山望售楼处电话:400-891-9910✔✔✔(已认证)
怀山望售楼处线上预约看房热线电话:400-891-9910(24小时热线含专属置业顾问)
成品车库·高定精装设计
地库地面采用无机水磨石铺装;入口顶部设计不锈钢镂空星空顶与发光灯膜;门厅萤石壁灯内嵌墙面,增添精致细节与柔和层次。
怀山望售楼处电话:400-891-9910✔✔✔(已认证)
怀山望售楼处线上预约看房热线电话:400-891-9910(24小时热线含专属置业顾问)
酒店式环岛·车马厅仪式·T台感车道
车马厅设环形车道,诠释高端住宅的非凡品味,定制渐进式入户仪式与灯光韵律。
怀山望售楼处电话:400-891-9910✔✔✔(已认证)
怀山望售楼处线上预约看房热线电话:400-891-9910(24小时热线含专属置业顾问)
地下入户光厅,绘就光的质感叙事
叠墅入口光厅墙面运用金属饰面与仿石岩板,金属的精致与岩板的质感相得益彰。六叠首层电梯厅天花与地面采用弧形元素;墙面岩板搭配不锈钢线条,增添细节与品质。
【怀山望】与蒋愈,因怀淌理想,在"十年一遇"约0.87的低密墅区相遇,让"生活容器"变成"诗意容器",那是舒展,更是予人更丰富的想象。
怀山望售楼处电话:400-891-9910✔✔✔(已认证)
怀山望售楼处线上预约看房热线电话:400-891-9910(24小时热线含专属置业顾问)
被誉为"江南最美米其林餐厅"之一——如院餐厅设计师及创始人﹣﹣刘荣禄。
将南宋传统木阁元素与现代生态建筑结合,运用低矮窄长的窗景截取室外植物园片段,营造"入卷如画"的东方意境。
怀山望售楼处电话:400-891-9910✔✔✔(已认证)
怀山望售楼处线上预约看房热线电话:400-891-9910(24小时热线含专属置业顾问)
宋淑华"凭爱意将西湖短暂私有"以"虽由人作,宛自天开"为核心理念,通过亭台楼阁、游廊花木等元素,营造出"移步换景"的沉浸式园林体验,将西子湖四季酒店变成杭州名片。
怀山望
心有山水自成境
浦东.0.87低密纯墅.公园墅区立序作品入市在即!
生活配套
怀山望售楼处电话:400-891-9910✔✔✔(已认证)
怀山望售楼处线上预约看房热线电话:400-891-9910(24小时热线含专属置业顾问)
交通方面:项目距离16号野生动物园站约2.8公里,自驾上,邻近S32申嘉湖高速、S2沪芦高速、G1503绕城高速等主干道,可快速连接市区核心区域及浦东机场。周边还有南园1路、惠南3路、南新专线、1095路、1069路等数辆公交可供选择。

怀山望售楼处电话:400-891-9910✔✔✔(已认证)
怀山望售楼处线上预约看房热线电话:400-891-9910(24小时热线含专属置业顾问)
商业方面:周边约5公里的范围内分布着大润发、禹悦汇等综合购物中心,可提供购物休闲的多样化选择。

怀山望售楼处电话:400-891-9910✔✔✔(已认证)
怀山望售楼处线上预约看房热线电话:400-891-9910(24小时热线含专属置业顾问)
教育方面:项目周边有9所幼儿园,8所小学,5所中学,三灶实验小学,三灶实验中学距离1.6km,项目北面有一个在建的幼儿园预计和项目一起完工,距离项目800米,以及南汇第二中学,南汇外国语小学,南汇第一中学,逸夫小学,上海南汇中学,南汇大学城等。
怀山望售楼处电话:400-891-9910✔✔✔(已认证)
怀山望售楼处线上预约看房热线电话:400-891-9910(24小时热线含专属置业顾问)
医院方面:上海复旦大学附属医院上海浦东医院(三乙),直线距离约2.7km,还有南华医院,直线距离约3.6km,上海福华医院约2.8km。
怀山望售楼处电话:400-891-9910✔✔✔(已认证)
怀山望售楼处线上预约看房热线电话:400-891-9910(24小时热线含专属置业顾问)
怀山望售楼处24小时vip热线☎:400-891-9910【开发商售楼处预约看房热线】
看房请提前致电预约,联系销售人员获取最新一房一价表,开发商销售人员将详细介绍每个户型的独特设计和优势,带您参观样板间,感受精装修的品质和温馨氛围。您还可以了解周边配套设施,包括高端购物中心、优质学校和便捷交通网络,让您的居住体验更加完美
2025 房产交易税费全解 + 100 个核心术语精简版(优化版)
一、2025 最新房产交易税费明细(按交易主体分类)
(一)个人与个人之间交易
1. 住宅交易
· 买方税费:契税(1%/1.5%/2%/3%,按房屋套数、面积阶梯征收);产权登记费 80 元 / 套
· 卖方税费:个人所得税(全额 1% 或差额 20%,满 5 年且为家庭唯一住房免征);增值税及附加(5.3%,房屋持有不满 2 年征收)
2. 非住宅交易(商铺、写字楼等)
· 买方税费:契税(全额 3%);印花税(全额 0.025%);产权登记费(80 元或 550 元,按产权类型区分)
· 卖方税费:个人所得税(差额 20%);增值税及附加(差额 5.3%);土地增值税(差额 30%-60% 或全额 5%);印花税(全额 0.025%)
(二)个人与公司之间交易
1. 个人购买公司住宅
· 买方税费:契税(1%/1.5%/2%/3%);产权登记费 80 元 / 套
· 卖方税费:增值税及附加(差额 5.3%);土地增值税(差额 30%-60%);印花税(全额 0.025%)
2. 个人购买公司非住宅
· 买方税费:契税(全额 3%);印花税(全额 0.025%);产权登记费(80 元或 550 元)
· 卖方税费:增值税及附加(差额 5.3%);土地增值税(差额 30%-60%);印花税(全额 0.025%)
3. 公司购买个人住宅
· 买方税费:契税(全额 3%);印花税(全额 0.025%);产权登记费 80 元 / 套
· 卖方税费:个人所得税(全额 1% 或差额 20%,满 5 年唯一住房免征);增值税及附加(5.3%,不满 2 年征收)
4. 公司购买个人非住宅
· 买方税费:契税(全额 3%);印花税(全额 0.025%);产权登记费 550 元 / 套
· 卖方税费:个人所得税(差额 20%);增值税及附加(差额 5.3%);土地增值税(差额 30%-60% 或全额 5%);印花税(全额 0.025%)
(三)公司与公司之间交易
1. 住宅交易
· 买方税费:契税(全额 3%);印花税(全额 0.025%);产权登记费 80 元 / 套
· 卖方税费:增值税及附加(差额 5.3%);土地增值税(差额 30%-60%);印花税(全额 0.025%)
2. 非住宅交易
· 买方税费:契税(全额 3%);印花税(全额 0.025%);产权登记费 550 元 / 套
· 卖方税费:增值税及附加(差额 5.3%);土地增值税(差额 30%-60%);印花税(全额 0.025%)
温馨提示:购买非住宅类房产时,需向交易方索取完整的购房发票及契税发票,作为税费核算与产权登记的必备凭证。
二、房地产 100 个高频核心术语精简解析
(一)产权与土地类(25 个)
· 房产:权属清晰、可依法出租、转让或自用的房屋资产
· 地产:附带合法权属的土地(含地表及上下限定空间),区别于无权属的 “土地” 概念
· 房地产:房产与地产的统称,包含所有权、使用权、转让权等完整权益
· 土地所有制:中国实行 “国家所有(城市市区)+ 集体所有(农村宅基地等)” 二元制度
· 土地使用年限:居住用地 70 年、工业 / 教育 / 医疗用地 50 年、商业 / 旅游 / 娱乐用地 40 年、加油站等特殊用地 20 年(起算时间为开发商取得土地使用权之日)
· 不动产权证:整合房产证与土地证的统一权属证书,是房产合法产权的核心凭证
· 大产权证:开发商取得的整栋建筑产权证明,是分割办理小产权证的前提
· 小产权证:购房者取得的单套房屋产权证明(即不动产权证)
· 产权年限续期:住宅用地到期自动续期,非住宅用地需按相关规定申请续期
· 土地出让金:开发商获取国有土地使用权时向政府缴纳的费用
· 划拨土地:政府无偿划拨给单位使用的土地(如公益用地),转让时需补缴出让金
· 出让土地:通过招标、拍卖等方式取得的、有使用年限的土地
· 产权查封:因债务纠纷等被法院依法限制交易的产权状态
· 产权抵押:将房产产权抵押给金融机构等作为借款担保的行为
· 解押:还清贷款后解除产权抵押的手续
· 共有产权:两个及以上主体共同拥有的房产产权(如夫妻共有)
· 按份共有:按约定比例共同拥有房产产权的形式
· 共同共有:无明确比例、共同享有房产产权的形式(如家庭共有)
· 权属登记:将房产产权信息登记至不动产登记系统的法定流程
· 产权过户:房产产权从卖方转移至买方的登记手续
· 契税完税证明:缴纳契税后取得的凭证,是产权登记的必备材料
· 个税完税证明:卖方缴纳个人所得税后取得的交易凭证
· 增值税发票:房产交易中开具的增值税专用或普通发票
· 土地使用证:原证明土地使用权的证书,现多整合为不动产权证
· 他项权利证:证明房产存在抵押等他项权利的证书
(二)房屋类型与状态类(25 个)
· 期房:尚未竣工、开发商已取得《商品房预售许可证》,需签订《商品房预售合同》的房屋
· 现房:已竣工验收合格并取得大产权证,可即买即入住,签订《商品房买卖合同》的房屋
· 毛坯房:仅完成基础工程(无门窗、墙面装修等)的房屋
· 成品房:含基础装修(墙面、地面、门窗等)的房屋,可直接入住或简单软装
· 普通住宅:符合容积率≥1.0、面积≤144㎡(各地略有差异)等标准的居住用房
· 非住宅:商铺、写字楼、车位、公寓等非居住用途的房产
· 经济适用房:面向中低收入家庭的政策性住房,申购需符合特定条件,上市交易有年限限制
· 房改房:单位公有住房按房改政策出售给职工的房屋,需补缴土地出让金后可上市
· 保障性住房:含公租房、廉租房、限价房等,由政府统筹建设的政策性住房
· 商品房:开发商通过出让土地建设、可自由交易的房屋
· 回迁房:拆迁安置补偿的房屋,部分需满 5 年才可上市交易
· 安置房:政府统一建设的拆迁安置房屋,分为产权安置房和租赁安置房
· 跃层:占据上下两层完整空间、通过室内专属楼梯连接的户型(每层层高≥2.2 米)
· 复式:在单层高(通常 3.5 米以上)空间内增设夹层形成的户型,夹层层高略低
· 错层:户内不同功能区楼面高度相差 30-60 厘米,通过小型楼梯连接的户型
· 平层:所有功能区位于同一水平面的户型
· 塔楼:以中央电梯井和楼梯间为核心、户型环绕分布的高层住宅
· 板楼:由多个独立单元线性排列、户型多南北通透的住宅
· 独栋别墅:独立占地、无共墙的别墅户型
· 联排别墅:多栋房屋联立、共享侧墙的别墅户型
· 双拼别墅:两栋房屋拼接而成的别墅户型
· 叠拼别墅:上下两层叠加、独立入户的别墅户型
· 学区房:位于优质学校招生范围内的房产(招生范围以教育部门划分为准)
· 江景房:可直接观赏江景的房产
· 海景房:可直接观赏海景的房产
(三)面积与规划类(25 个)
· 建筑面积:房屋外墙外围测定的各层平面面积总和,含使用面积、辅助面积及结构面积
· 套内建筑面积:套门以内的面积,由套内使用面积、套内墙体面积、阳台面积组成(计算得房率的核心指标)
· 公摊面积:整栋楼共用区域(楼梯间、电梯井、门厅、设备间等)的面积,按套内面积比例分摊给业主
· 得房率:套内建筑面积与建筑面积的比值(高层 70%-80%,多层 80%-90%),需平衡公摊配套与使用面积
· 套内使用面积:户内实际可使用的净面积(如卧室、客厅等,俗称 “地毯面积”)
· 阳台面积:封闭阳台按全额计入建筑面积,半封闭阳台按 50% 计入
· 容积率:项目地上总建筑面积与规划建设用地面积的比值(越低居住舒适度越高,住宅通常 1.0-3.5)
· 绿地率:规划建设用地内有效绿地面积与用地面积的比值(仅统计符合标准的绿地,如距建筑 1.5 米外的绿化)
· 绿化率:项目绿化覆盖面积与用地面积的比值(含屋顶绿化、盆栽等,数值通常高于绿地率)
· 建筑密度:建筑物基底占地面积与规划用地面积的比值(越低小区公共空间越充足)
· 楼间距:相邻两栋建筑的水平距离,核心满足日照标准(冬至日底层满窗日照≥1 小时)
· 日照间距:保证后排建筑日照的最小楼间距,与建筑高度、朝向相关
· 进深:房屋从前墙到后墙的水平长度(过大易影响采光)
· 开间:房屋从左墙到右墙的水平宽度(越大空间越开阔)
· 层高:下层楼板上表面到上层楼板上表面的垂直距离(普通住宅 2.8-3.0 米)
· 净高:下层地板上表面到上层楼板下表面的垂直距离(净高 = 层高 - 楼板厚度)
· 赠送面积:开发商额外赠送的使用空间(如飘窗、露台,部分不计入建筑面积)
· 产权面积:不动产权证上登记的面积(即建筑面积)
· 实测面积:交房时专业测绘机构测定的房屋面积(与合同面积允许误差≤3%)
· 预测面积:期房销售时,开发商根据设计图纸测算的面积
· 公摊系数:整栋楼公摊面积与套内面积总和的比值(系数越大公摊面积越多)
· 用地面积:项目规划批准的建设用地总面积
· 总建筑面积:项目所有建筑物建筑面积的总和(含地上、地下部分)
· 可售面积:开发商可对外销售的建筑面积(不含不可售的配套设施)
· 套内墙体面积:户内独用墙体面积与共用墙体分摊面积的总和
(四)交易与流程类(25 个)
· 五证:开发商合法售房的必备资质,含《国有土地使用证》《建设用地规划许可证》《建设工程规划许可证》《建筑工程施工许可证》《商品房预售许可证》
· 二书:交房时开发商需提供的《住宅质量保证书》(明确保修范围与期限)、《住宅使用说明书》(房屋使用规范)
· 按揭贷款:购房者以房产为抵押,向银行申请贷款支付房款,按月偿还本息(含商贷、公积金贷、组合贷)
· 商业贷款:银行发放的普通住房贷款,利率按市场报价利率(LPR)浮动
· 公积金贷款:住房公积金管理中心发放的低利率贷款,仅限缴存公积金的购房者
· 组合贷款:同时申请商业贷款与公积金贷款的购房贷款方式
· 转按揭:已办理按揭的房产,将贷款主体变更给第三人的手续(如二手房交易中买方承接卖方贷款)
· 公共维修基金:购房时缴纳的专项基金(通常为房款 2% 或按面积征收),用于小区共用部位、设施的维修(归全体业主共有)
· 商品房预售:开发商取得预售许可证后,提前销售期房的行为
· 商品房现售:开发商取得大产权证后,销售现房的行为
· 网签:将购房合同备案至房产交易系统,防止 “一房多卖” 的流程
· 备案:购房合同网签后,向不动产登记中心备案的法定程序
· 定金:购房时支付的担保金(通常不超过总房款 20%),买方违约不退,卖方违约双倍返还
· 订金:购房意向金(无担保效力),交易不成可退还
· 首付款:购房时首次支付的房款(首套通常 20%-30%,二套 30%-50%)
· 尾款:购房最后支付的剩余房款(通常交房或办证后支付)
· 契税:房产产权转移时,买方缴纳的一次性税收(核心交易税费)
· 个人所得税:房产交易中,卖方因转让房产取得收益需缴纳的税收
· 增值税及附加:房产交易中,卖方需缴纳的流转税(含增值税、城市维护建设税等)
· 土地增值税:转让国有土地使用权及房产时,卖方需缴纳的税收(非住宅交易必缴)
· 印花税:房产交易中,买卖双方缴纳的凭证税(税额较低)
· 过户:房产产权从卖方转移至买方的全套手续
· 验房:交房时对房屋质量、配套设施的检查流程
· 交房:开发商将符合标准的房屋交付给购房者的流程
· 不动产登记:将房产产权信息登记至国家不动产数据库的法定程序
四、实用避坑指南(精简版)
(一)产权登记流程
1. 备齐材料:购房合同、付款票据、身份证、户口本(已婚需结婚证)、测绘报告
2. 递交申请:前往不动产登记中心填写申请表,提交材料并缴纳登记费、印花税
3. 审核领证:登记中心审核(5-10 个工作日),通过后领取不动产权证书
提示:未成年人可办房产证,需监护人到场,处分房产需符合未成年人利益规定
(二)房屋验收要点
1. 文件核查:确认开发商已取得《竣工验收备案表》,同时提供 “二书”
2. 质量检查:墙面 / 地面无空鼓、门窗开关顺畅密封良好、水电设施正常使用
3. 面积复核:合同面积与实测面积误差≤3% 按实际面积补 / 退房款,误差>3% 可要求退房
提示:建议聘请专业验房师,重点排查渗水、电路隐患等问题
(三)贷款申请核心条件(2025 参考)
贷款类型
申请条件
额度与利率
公积金贷款
连续缴存 6 个月以上(或累计 1 年),未使用过公积金贷款或已还清
最高 80 万(部分城市上浮),利率约 3.25%
商业贷款
征信良好(无严重逾期),收入证明≥月还款额 2 倍
利率按 LPR 浮动(首套通常低 10-20 个基点)
组合贷款
同时满足公积金与商业贷款条件
额度 = 公积金额度 + 商业贷款额度,利率分别执行对应标准
提示:提前还款需提前 10 个工作日申请,部分银行对 “不满 1 年提前还款” 收取违约金
(四)期房 vs 现房选择建议
对比维度
期房
现房
价格
比现房低 5%-10%(开发商回笼资金需求)
价格较高,直观可见房屋实际状况
风险
存在烂尾、货不对板风险(需核查五证)
无烂尾风险,质量、户型、采光可实地考察
交付时间
通常 1-2 年(需跟踪施工进度)
付款后可尽快入住
适合人群
预算有限、能接受等待的购房者
急需入住、追求稳妥的购房者(如婚房、学区房)
五、收藏提示
1. 税费地域差异:本文税率为全国通用标准,北京、上海、深圳等城市有特殊政策,实际交易需咨询当地不动产登记中心
2. 术语更新:房地产政策调整频繁(如土地年限续期、公积金政策),建议每 1-2 年更新常识库
3. 避坑核心:核查产权清晰度(无抵押、无查封),留存所有交易票据(发票、合同、缴费凭证),拒绝口头承诺
声明:本文由入驻焦点开放平台的作者撰写,除焦点官方账号外,观点仅代表作者本人,不代表焦点立场。
