2025越秀外滩樾售楼处电话-(越秀外滩樾售楼处)2025越秀外滩樾楼盘详情-最新房价-首页网站-户型配套
扫描到手机,新闻随时看
扫一扫,用手机看文章
更加方便分享给朋友
上海虹口「越秀外滩樾」
售楼处电话:400-9966-224✔✔【预约热线】越秀外滩樾售楼处电话:400-9966-224✔✔天潼里198售楼处电话/地址☎:4009966224✔✔(开发商热线)如有问题欢迎来电咨询,专业一对一热情服务,让您用专业眼光去买房。
「越秀·外滩樾」内环内虹口北外滩外滩仅1公里/陆家嘴1.5公里建面约238/305/318/338㎡风貌别墅仅48套房源可售 总价约4000万起
样板房开放中项目线上预约看房预约客户可实体参观!
请务必报名后静待销售电话确认,确认后再前往现场!仅预约客户可进入销售现场,感谢您的理解和支持!在顶豪圈层有一句话:所谓家族的行宫,一定是要根植于土地之上的别墅!
如果说外滩代表了上海的过去,陆家嘴代表了上海的当下,那么北外滩就代表了上海的未来。而【越秀外滩樾】就是将代表上海城市繁华的黄金三角,整个装进了自己的步行圈。
效果图
中国人对家族的情怀,亘古未变,而一套别墅,也早已成为家族意识传承的重要载体,同时担当着家族的荣耀。占位北外滩核心地段的越秀·外滩樾正是为49个传奇家族准备的行宫!
当然,除了地段和业态本身,【越秀·外滩樾】的收藏价值还来源于其注重居住舒适度的设计与无与伦比的尊崇服务。
效果图
最新消息:虹口北外滩,低密风貌别墅临港越秀北外滩,项目定名【越秀外滩樾】样板房已开放预约!项目基础信息【项目名称】越秀·外滩樾【开发商】上海漕越经济发展有限公司【项目位置】上海市·虹口区·梧州路【项目类别】70年产权住宅【项目类型】风貌别墅【可售户数】48套【容积率】约1.3
百年前的高端工艺元素的经典转译,让海派造诣世纪传承,于历史和未来之间收藏百年上海。
清水红砖:百年前先进舶来品代表,10种以上拼接工艺铺陈
装饰窗楣:同源中共二大会址、张爱玲故居,装饰主义经典元素
弧形韵线:邬达克式的建筑曲线,同源远东第一豪宅的优雅轮廓
海派山墙:带肩仿观音兜,中西文化融合的典藏之美
【越秀·外滩樾】是世界知名大师汇聚一堂的灵感结晶,比如项目的设计总顾问邀请了程绍正韬。他是建筑室内设计之东方主义集大成者,致力于东方文化的坚守与创新,打破惯常的职业思维,将生活方式化作一种哲学态度,融入空间设计,让设计不止于作品,再比如项目还邀请了城市文化大师李玮珉。
程绍正韬,集文人、工业家、艺术家、设计师、哲学家、修行者身份于一身,建筑室内设计之东方主义集大成者,致力于东方文化的坚守与创新。他打破惯常的职业思维,将生活方式化作一种哲学态度,融入空间设计,让设计不止于作品。
李玮珉,撑起中国豪宅设计半壁江山,擅长为城市塑造文化符号建筑作品。他的作品更多用极简的方式来表明态度,崇尚简而高效的现代生活方式。庄重的建筑语汇,适时注入艺术、自然与美学,让空间充满想象力。
大师操刀,必然不同凡响。
首先项目承袭了百年前的高端工艺元素,让海派传承得以延续。将清砖立柱、古典门头、岩石山墙等经典海派建筑风貌转译和突破,更适配现代人居审美,于历史和未来之间收藏百年上海底蕴!
其次,项目超越了以往风貌建筑的尺度感,创新了风貌规制,带来了城心难得的双拼、三拼别墅!大窗墙比大南向开间保证了极高的舒适度。大面积运用奢石的外立面,则把名门望族的尊贵身份和非凡气度体现的淋漓尽致!
效果图
巷弄新生:跨越风貌豪宅正统,打造双拼、三拼、多联排别墅的天地私享
建筑新生:创新风貌规制,致微而筑的建筑腔调赏新
美学新生:转译远东第一豪宅立面美学,收藏名门望族生活
材质新生:百年红砖、釉面砖、印度进口幻彩红奢石运用,型制家族传承
最后,项目社区配置的三处会所、泛会所空间合计约2500㎡,包含私宴厅、恒温泳池、私人运动空间等内容,提供酒店级高奢服务!
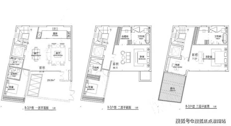
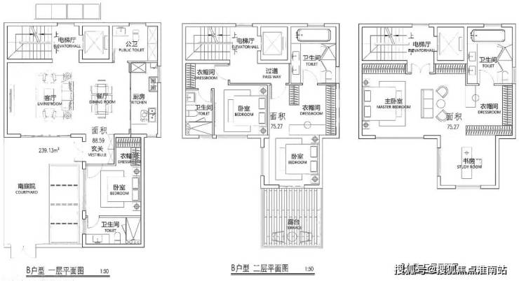
【越秀·外滩樾】项目将呈现48套低密风貌里弄住宅,建筑面积约238-338㎡户型。户型图过程稿如下(过程稿仅供参考,最终以实际为准)。
建面约236.25㎡A户型▼
建面239.13㎡B户型▼
建面250.89㎡B-3户型▼
C户型▼
建面291.42㎡D户型▼
【41载越秀 | 千亿级开发商 与上海共卓越】
国内资产规模最大的地方驻港企业之一越秀集团
41载国匠越秀 千亿级开发商——越秀地产
中国第一代商品房缔造者
已进驻30多个核心城市
开发了300多个大型住宅和50多个大型商业物业
2024中国房企综合实力TOP9
(信息来源:亿翰智库)
项目区位配套
【越秀·外滩樾】项目地块四至范围, 东至:梧州路,隔壁是中皇广场;西至:hk270B-02,隔壁就是1933老场坊;南至:周家嘴路 北至:柘皋路。
【一座码头 启航外滩百年世界史】
项目所在地北外滩,是百年前上海的“下海”地。作为上海开埠后第一座码头的诞生地,北外滩率先“开眼看世界”,海纳万国文化风潮,众多此后影响中国的创举在此诞生,是上海最早的“十里洋场”
(*示意图,图片来源于网络)
【一江一河 再立世界上海新传】
傲立“一江一河”交汇处(直线距离约1.1KM),未来将打造成为彰显上海城市核心竞争力的黄金水岸和具有国际影响力的世界级城市会客厅,出入之间,相逢城市高阶未来
(*示意图,图片来源于网络)
【北外滩 面向世界的上海新封面】
北外滩,与外滩、陆家嘴并称为上海的“黄金三角”。将以2座陆家嘴的商务体量规划,新天地2.0生活圈打造,成为上海跃升世界舞台的“中心发力”新引擎
(*示意图,图片来源于网络)
【中央商务区 未来上海腾飞引擎】
区域能级:总开发面积约840万方,40栋甲级写字楼城市地标:480米浦西第一高楼,19栋摩天大楼集群金融产业:2100+家金融企业赋能,资产管理规模超8万亿元,位居全市第一航运格局:4500+家航运企业集聚(上港集团、中远海运等),打造国际航运中心全球贸易:2500+家贸易企业入驻(摩亚方舟、银联商务等)新兴产业:129家新增高新技术企业,113家市区科技小巨人企业(数据来源:上海市规划局《北外滩地区控制性详细规划》)
(*示意图,图片来源于网络)
距离外滩商圈仅约1公里
项目所在地北外滩,是百年前上海的“下海”地。作为上海开埠后第一座码头的诞生地,北外滩率先“开眼看世界”,海纳万国文化风潮,众多此后影响中国的创举在此诞生,是上海最早的“十里洋场”。
示意图,图片来源于网络
轨道交通方面:项目位于虹口区嘉兴路街道,距离地铁4、10、19号线换乘站海伦路站约600米,交通十分便捷。
交通路网示意图,仅供参考
4号线海伦路站
商业配套方面:项目约2公里内,多元繁华构筑封面商业圈:北外滩商圈直线距离约500米,外滩商圈直线距离约1000米,陆家嘴商圈直线距离约1500米,瑞虹商圈直线距离约900米。
教育资源方面:2km内就有虹口区第二中心小学、华东师大一附中实验小学、华东师大一附初中等优质配套。*施教区及就学政策以教育部门规划为准
示意图,图片来源于网络
生态资源方面:2.5公里北外滩滨江绿地(约800m直达),四川北路公园、和平公园、鲁迅公园3大公园环伺,于滨江和城市低密绿芯之间,肇启当代诗意生活传序。
示意图,图片来源于网络
生活医疗方面:地块紧邻上海第一人民医院(三甲),1km左右就有集购物、餐饮、娱乐休闲、办公及服务式公寓为一体的综合商业体——瑞虹天地,商业面积55万方,包括太阳宫、月亮湾、星星堂、瑞虹坊四个部分。
图源网络,仅供参考
地块西侧的1933老场坊,早前是上海工部局宰牲场;而如今,成为了众多文艺青年打卡拍照的必游胜地。此次也要求保留工部局旧址建面约1800㎡。
“70年产权”并不是指房屋的使用年限!很多人都搞错了!
(1)70年产权”不是房屋使用年限在实际生活中,大家常说的房屋产权年限并不是指房屋的拥有权,而是指“土地使用权”。所以,不要再说房子质量不好,只能住70年,真不是这么回事。严格来讲:房屋的产权是永久的,但是房屋所占用的土地是有使用年限限制的(即土地使用权)。土地使用权在出让时根据开发类型分为不同的使用年限:民用住宅土地使用权年限为70年,工业建筑用地和综合类用地为50年,商用建筑用地为40年。
(2)买回来的房子,其产权年限一般都没有70年现如今的房价,一般购房都会首选土地使用权为70年的普通商品房。但是,有一点你可能不知道:哪怕是新房,当你的房子买到手时,土地使用权已经没有70年了。这到底是为什么?商品房的土地使用年限,是从开发商拿地那天算起的!假如你买房拿到房本是2020年9月28日,而开发商拿地是2019年10月1日,那么你的房屋土地使用权70年是从2021年10月1日起开始计算的。所以,你买到房子的时候产权年限就只有66年了,而不是70年。
(3)那么,如果产权到期怎么办呢?既然房屋产权年限是期限的,也就是只有70年,那么问题来了,万一产权到期了该怎么办?现已明确,届满自动续期,届满自动续期,届满自动续期(重要的话讲三遍)不用再纠结70年产权、还是40年产权,买房100年不变(除非拆迁)。关于补年限问题,物权法已生效,该法明确了公私财产的受保护权。
届满期前一年申请续费,《城市地产管理法》第二十二条和《物权法》第一百四十九条有相关规定内容,补的费用不会超过5位数,最低不得低于15.6元/平米。商业产权到期后两种结果:
第一:如果国家没有其他规划,业主只需续交土地出让金即可继续使用第二:若有其他规划,需要拆迁则商业补偿按照1:3补偿,是住宅的三倍
所以,以后大家不用再纠结40年、50年和70年产权的问题,因为产权不是问题!
2
什么情况下等额本息适合提前还款?
1、定义不同
如果购房者选择了使用等额本息的方式去进行还款,那么购房者每个月所需要去偿还的贷款金额就是相等的,,其中每月贷款利息按月初剩余贷款本金计算并逐月结清。这种方法最大的特点是本金是逐月递增的,而利息是逐月递减的。如果购房者选择的还款方式是等额本金,那么就需要购房者将本金分摊到每个月内,同时付清上一交易日至本次还款日之间的利息。这种方式本金是不变的,月利息逐月减少的,到这种方式前期缴纳的本金和利息比等额本息的高。
2、适合的人群不同
等额本息的还款方式比较适合一些有固定收入的人,尤其是现在很多的年轻人,在工作上都是非常努力的,这样就意味着自己有可能升职加薪,那么随着自己的收入的增加,从而缓解贷款压力,提高生活质量。但若是选择了等额本金的话,前期的资金压力就非常大了。
等额本金比较适合有一定存款的用户或者是时间平时的收入非常多的人,也只有有一定资金实力的人比较容易负担得起等额本金的前额付款。
3、利息不同
选择等额本息去还款的人肯定要比现在等额本金还款的人要多支付一些利息出去,并且如果购房者选择的贷款期限越长,那么利息相差越大。但由于该方式还款额每月相同,适宜家庭的开支计划,特别是年青人,可以采用用本息法,因为随着年龄增大或职位升迁,收入会增加。
等额本金一般前期的支出比较多,之后逐月减少,越还越少。所支出的总利息比等额本息法少。但该还款方式在贷款期的前段时间还款额较高,适合在前段时间还款能力强的贷款人,年龄大的可采用本金法,因为随着年龄增大或退休,收入可能会减少。
上海虹口「越秀外滩樾」
售楼处电话:400-9966-224✔✔【预约热线】越秀外滩樾售楼处电话:400-9966-224✔✔天潼里198售楼处电话/地址☎:4009966224✔✔(开发商热线)如有问题欢迎来电咨询,专业一对一热情服务,让您用专业眼光去买房。
声明:本文由入驻焦点开放平台的作者撰写,除焦点官方账号外,观点仅代表作者本人,不代表焦点立场。
