城发鼎盛华庭售楼处电话:400-998-9694城发鼎盛华庭售楼处电话:400-998-9694城发鼎盛华庭位于嘉定,140㎡以上户型稀缺,改善需求难满足,300万级仅能购入小三房,深度改善无门。
城发鼎盛华庭
售楼处电话:400-998-9694
如有问题欢迎来电咨询,来电即可享受买房优惠!
预约来电尊享购房优惠,可预约案场内部销售人员,专业一对一热情服务,让您用专业眼光去买房。
楼盘项目全面介绍,本电话为开发商提供线上售楼处电话,楼盘项目全面介绍(包含楼盘简介,楼盘积分,房价,价格,楼盘地址,户型图,交通规划,备案价,项目配套,楼盘详情,售楼处电话,最新消息,最新详情,周边配套,最新进展等详情咨询)
城发鼎盛华庭售楼处电话:400-998-9694
城发鼎盛华庭售楼处电话:400-998-9694
上海目前新房市场,90-100㎡是绝对主流;而120㎡常规项目多少会配一些,也不算太难买。
真正难上加难的一定是“140㎡以上优质改善户型”!数据也能印证:
2022年至今,上海总计供应约158000套新房,其中140㎡+房源仅约20000套,占比约13%。
而这一数据在五个新城更为紧俏!就拿嘉定来说,今年迄今有约5400套供应,其中140㎡+房源仅410套,占比仅约7%!
200㎡以上户型则出现惊人的零供应!
嘉定本地寻求深度改善非常难,70/90政策在供应端就压根不给你机会!
城发鼎盛华庭售楼处电话:400-998-9694
城发鼎盛华庭售楼处电话:400-998-9694

说得再细一点:
可能你与父母共住,家庭成员众多,300万级在嘉定只能勉强买一个90㎡小三房,空间捉襟见肘,功能性也无法满足大家庭需求。
你急需一个能更好承载家庭欢乐,让父母、让孩子住得更舒适的大房子!
当然,你也可能已经渡过了需要上海学区的人生阶段,考虑的是给予家人更高质量的生活和环境,需要的是更具档次的社区,更宽敞明亮的客厅、卧室,更豪华精致的装修...
但嘉定这两年从嘉定北到嘉定新城再到马陆、南翔,几乎清一色90-100㎡小三房,装修也很一般。
300万级只能买一个入门产品,深度改善无门!
示意图

城发鼎盛华庭售楼处电话:400-998-9694
所以现在有一个“海阔天空”的选择:
300万级与其一家人挤在一套紧凑三房,不如选择嘉定隔壁,与上海、嘉定同城的太仓娄江新城!
太仓N年等一回的顶豪项目城发·鼎盛华庭登场,项目已开盘,正在热销中!
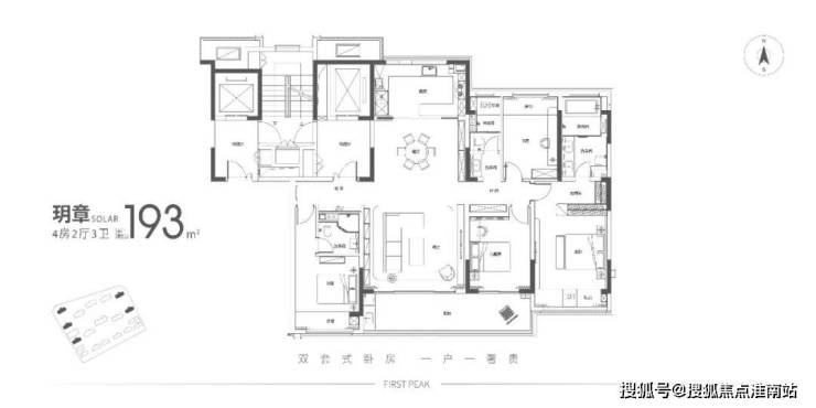
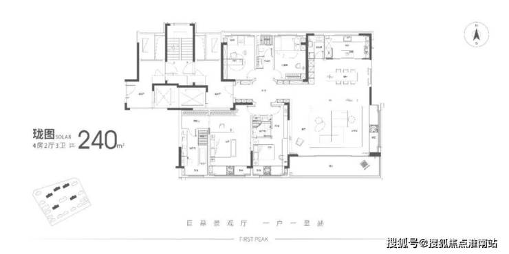
从面积看,项目推出建面约143-193-240-330㎡大平层,清一色大户型,已经对未来业主的身价有了相当的筛选,保证了圈层绝对的纯粹,无疑就是太仓当下封面之作!
从装修看,出手就是奢华的“劳芬”卫浴,不用问是进口的还是国产的,因为劳芬的工厂只设置在欧洲。在鼎盛华庭,主卫最高配置的劳芬全智能化马桶,官方价格就在十万元以上。
事实上,这是一个现在上海2000万级豪宅都不一定舍得用的牌子,却出现在了太仓这样一个县级市。更厉害的是,鼎盛华庭据悉还是全国县级市中屈指可数的运用“劳芬”品牌的楼盘,足见开发商诚意之强、项目定位之高!
除了硬件,项目很注重生活体验感的营造,人性化细节遍布全屋,直戳购房者心坎。
城发鼎盛华庭售楼处电话:400-998-9694
建面约143㎡主卫同时带淋浴房和浴缸!你在上海见过吗?马桶、浴缸还是劳芬品牌的;
样板间实景图

城发鼎盛华庭售楼处电话:400-998-9694
约1.8米宽阳台,可以从容放置躺椅!起码比上海同面积产品宽20-30公分!栏杆也采用高品质不锈钢玻璃材质,安全和质感兼具!
样板间实景图

城发鼎盛华庭售楼处电话:400-998-9694
橱柜45度倾斜“轻松抽”设计,无需蹲下就可轻松拿取餐具、调料。这在上海我也几乎没见过。
样板间实景图

城发鼎盛华庭售楼处电话:400-998-9694
...
所以,以嘉定小三房门槛价,在城发·鼎盛华庭不仅房子更大、住得更舒适,买到的还是堪比沪上2000万级豪宅的品质体验!

城发鼎盛华庭售楼处电话:400-998-9694
从地段看,占位太仓未来城市核芯,嘉定后花园娄江新城腹地,左手嘉闵线北延伸十八港路站(规划,直线距离约150米),右手集太仓高规格商业、教育、医疗、休闲配套于一身。
在上海轨交TOD备受购房者青睐,其势能甚至能颠覆一个板块的价值,保值能力也更胜一筹。
而嘉闵线北延伸是太仓第一条轨交,十八港路站则是上海进太仓后的首站,在轨交之上更将有太仓首个TOD综合体,太仓众多“首个”高标准设施都集中在项目周边,也是太仓未来更有可能产生价值蝶变的区域!
从价格看,鼎盛华庭均价只有嘉定新城、嘉定北约一半!而且太仓目前首付只要20%,首付70-80万轻松上车!
所以买鼎盛华庭,在自住舒适度提升一大LEVEL的同时也是一次珍藏嘉定后花园城市稀缺资产的机会,物以稀为贵,如此“地段+产品力”的双顶配项目,太仓N年才出一个!
城发鼎盛华庭售楼处电话:400-998-9694 城发·鼎盛华庭
已开盘,正在热销中
感兴趣的小伙伴,赶紧预约看房

城发鼎盛华庭售楼处电话:400-998-9694

城发鼎盛华庭售楼处电话:400-998-9694
娄江新城无缝连接嘉定,多维立体交通融沪
鼎盛华庭,嘉闵线北延旁+TOD综合体
太仓严格来讲不应称为环沪,而是真正的融沪、同城。
与花桥、汾湖相比,太仓是上海周边唯一一个市区紧贴上海的城市,这意味你来回上海通勤,每天享受的不是乡镇级配套,而是市区高能级的生活体验。
而娄江新城就是太仓市区的一部分,与嘉定无缝衔接,更有着多维立体交通加持,已经高度同城化。
城发鼎盛华庭售楼处电话:400-998-9694 自驾层面:
从鼎盛华庭出发沿白云渡大道-城北路进入上海境就是嘉定工业区北区,再开约10公里就能到达11号线/嘉闵线(在建)嘉定北站。
沿胜辛北路约11公里即是11号线嘉定西站。
示意图,图中距离来源百度地图,价格来源网上房地产

城发鼎盛华庭售楼处电话:400-998-9694
如果去嘉定新城、南翔,可以走沈海高速。
从鼎盛华庭开车到G15沈海高速出入口不过1公里,目前G15嘉浏段已双向八车道。
若你想去大虹桥或者中环,也是走G15,可转嘉闵高架以及绕城高速-沪嘉高速。

城发鼎盛华庭售楼处电话:400-998-9694
示意图
我导航到了虹桥万科中心和市北高新,大家可以参考路线,胜在红绿灯少,高速转高架,通勤效率高!
住在太仓早上开车去公司,可能比你上海同事先到单位。
来源百度地图,仅供参考

城发鼎盛华庭售楼处电话:400-998-9694
更厉害的是嘉闵线北延伸(规划),真正意义把娄江新城拉入上海生活圈!
嘉闵线确认北延伸,在太仓段(规划)有3站,其中十八港路站是这条轨交从上海进太仓的首站,而鼎盛华庭直线距离该站点仅约150米。

城发鼎盛华庭售楼处电话:400-998-9694
项目区位示意图
据太仓发布的信息,嘉闵线北延伸太仓段预计2024年开工,力争与主线共同开通。
届时住在鼎盛华庭,不仅可以便捷去往嘉定各重要节点,更是可以直达大虹桥、闵行南部。工作在上海,改善生活在太仓将愈发便捷。
更振奋人心的是,根据娄江新城规划馆消息,十八港路站规划占地约493亩TOD综合体,其中北虹桥国际Super mall占地约207亩,将包含体验式文体旅商综合体、大型知名仓储式会员店、特色市集、空中联桥等。

城发鼎盛华庭售楼处电话:400-998-9694
来源娄江新城规划馆
如此一来,鼎盛华庭在城市顶豪的基底上又有着“地铁房+TOD商业”的光环,价值更稳固!

城发鼎盛华庭售楼处电话:400-998-9694
娄江新城——太仓未来城市核芯
高端商业、教育、医疗、交通配套皆集中于此
刚才说的是与上海的连接性。
那对内,娄江新城是太仓举全市之力发展的板块,是太仓未来城市核芯。
城发鼎盛华庭售楼处电话:400-998-9694 什么是举全市之力?
十年前太仓把高端配套给了万达板块,成就了万达板块的辉煌。
如今,太仓不仅把整座城市更国际化的配套都留给了娄江新城,更把城市的命运与娄江新城深深捆绑在一起!
太仓更高端的医疗配套:
娄江新城在建瑞金医院太仓分院(按三级甲等综合医院标准建设),已结构封顶,计划 2025年建成投入使用。
瑞金医院太仓分院效果图

城发鼎盛华庭售楼处电话:400-998-9694
太仓更前沿化的商业配套:
娄江新城不仅有规划的十八港路站TOD(规划),还有长江后浪商业街(招商中)、临沪国际商业中心(在建)等商业,鼎盛华庭离太仓万达广场、东盛广场、新美术馆、博物馆、图书馆等开车也就2-3公里,共享万达商圈。
太仓更优质的教育氛围:
上海外国语大学附属学校已经签约,即将落地娄江新城;
板块内还聚集西北工业大学(太仓校区)和西交利物浦大学(太仓校区),已建成投用。
太仓轨交、高铁站皆汇于此:
嘉闵线北延太仓段所有三个站点全部位于娄江新城,足见它融沪桥头堡的地位。
同时,太仓站更将汇聚沪苏通一期、二期,沪宁沿江高铁、北沿江铁路、苏锡常城际铁路、嘉闵线北延伸等6条铁路、轨交,成为上海西北方向的一个超级聚合点。
而太仓站辐射的首站就是娄江新城!
城发鼎盛华庭售楼处电话:400-998-9694 来源太融e
太仓更丰富的运动休闲配套:
鼎盛华庭紧邻新工人文化宫,内部羽毛球馆、乒乓球馆、游泳馆、健身馆等一应俱全,室外还有篮球场、网球场。
新工人文化宫实景图

城发鼎盛华庭售楼处电话:400-998-9694
项目南侧约400米处还有壮丽的滨河公园,风光旖旎。
事实上,生态田园城市是太仓给自己的定位,也多次蝉联最具幸福感城市,不管养老还是你想逃离上海的快节奏,太仓都能给予你想要的田园慢生活!
不少嘉定客户说,从城北路驶入太仓,绿化明显更好,节奏更惬意,“宜居”是太仓一张硬核名片。
太仓新东海高尔夫实景图

城发鼎盛华庭售楼处电话:400-998-9694
当然,一座新城归根到底要靠人才、要靠产业。
娄江新城聚焦“高端制造”,发展智能汽车、航空航天、精准医疗。特别是航空航天产业,太仓已明确将其作为城市“十四五”重点发展的战略性新兴产业之一。
所以,娄江新城承接的将是太仓高端改善层峯人群,本地收入不错的高精尖产业客,以及上海改善客群,它是太仓新一代富人区,而鼎盛华庭则是富人区中的标杆住宅!
城发鼎盛华庭售楼处电话:400-998-9694 总结起来就是一句话:
当高规格商业、交通、教育、产业等配套都开始汇聚在一个板块时,那它一定就处在价值大爆发的前夜,也是入手的好时机。你要做的就是静待花开,说不定等到交房,就是花开之时!
城发鼎盛华庭售楼处电话:400-998-9694
娄江新城之上,太仓顶豪新封面
城发·鼎盛华庭登场
上海客户买太仓,小胖君真心建议就瞄准当地的顶豪产品!
因为从太仓二手房表现看,只有积水裕沁庭跑出了独树一帜的行情,二手房价约4万/㎡,700万起步!
城发鼎盛华庭售楼处电话:400-998-9694
总结起来就是它占据“太仓当时未来城芯”+“太仓当时更高端的配套”+“全系大平层、太仓当时碾压级的产品力”!
上海的一些高档住宅也同样如此,比如古北壹号,一方面占据城市核芯闹中取静的环境,坐拥便捷交通;另一方面拥有碾压级的产品力,比如领衔全市的圈层、无会所不豪宅、成片集中的阔景园林、奢华精装品牌以及诸多人性化细节。
项目效果图

城发鼎盛华庭售楼处电话:400-998-9694
而鼎盛华庭和它们的逻辑是一样的!
占位太仓未来核芯的同时,在产品配置上即便相比上海2000万级豪宅也不遑多让!
首先,开发商太仓城发集团,同频太仓发展14载,打造了太仓多个城市地标,是备受太仓人信赖的本地国企,资金&开发实力都很靠谱!
其次,项目在品质上已经完全不是太仓市场上的同质化产品了,而是打出了“高级定制”牌,项目很多元素在太仓是首次出现,即便放在上海也是高级货。
鼎盛豪庭规划、建筑、景观由高品质住宅的缔造者HZS汇张思及上海申城设计担纲,从顶层设计上就赢麻了,保证国际化审美和超前居住理念!

城发鼎盛华庭售楼处电话:400-998-9694

项目效果图
1、高级定制巨幕玻璃立面,点亮娄江新城天际线!
项目采用高性能系统窗配置,打造约270°景环幕城市视野,搭配超流体曲线的艺术立面造型,极具艺术张力,营造出一方高颜、高格且历久弥新的美学住区。

城发鼎盛华庭售楼处电话:400-998-9694
项目效果图
2、高级定制约19000㎡中央花园,太舍得下血本了!
上海近几年的新房,有1万㎡中央花园的都屈指可数,鼎盛华庭足足做到约19000㎡,相当于2个标准足球场那么大,有两点很有感触:
第一,与一般项目堆砌材质不同,除仪式感外,你更能在项目中感受到久违的“出则繁华、入则幽静”的享受。
整体景观布局以森林之心为小区核心,目之所及皆是绿意渗透,从极富美学造诣的大堂入口开始就有归家即度假的既视感,涤荡奔波与忙碌的身心。
项目效果图

城发鼎盛华庭售楼处电话:400-998-9694
第二,通过森林之心、冥想花园、森林课堂、森林氧吧、光影水院、森林树屋六大主题花园,营造丰富的社交场景,并且很好地融于自然、户外,满足幼-青-中-老全龄段需求,社区生活充满温度。

城发鼎盛华庭售楼处电话:400-998-9694
项目效果图
3、高级定制的恒温泳池会所和健身会所,太仓不曾有过的圈层空间!
层峯人群对高端住宅的社交、圈层空间十分重视。
鼎盛华庭打造了娄江新城首个拥有恒温泳池的专属会所,并配高标准规划健身设施。
在保护业主隐私的同时,更为精英人群,提供了商业欢聚、会客洽谈、亲子交互、友邻互动等多元场景下的美好生活交流平台。

城发鼎盛华庭售楼处电话:400-998-9694
项目效果图
4、高级定制媲美上海2000万级豪宅的装修标准,人性化细节直击人心,保证层峯人群更舒适的居住体验!
以建面约143㎡样板间为例:
精巧细节从入户就开始了,两梯两户享一梯一户的体验,每户都有阔绰的电梯前室。
上海几乎所有新房入户门下都有不锈钢门槛,日常进出容易绊脚,而鼎盛华庭采用了无门槛设计,为此防盗门下侧采用了进口五金。
样板间实景图
入户后的玄关柜,包括岩板台面全部是交付的,玄关柜内部采用科学活动层板设计,儿童鞋、长筒靴都可以轻松收纳。并贴心考虑到了扫地机器人的使用,预留了扫地机器人的空间和电源。

样板间实景图

城发鼎盛华庭售楼处电话:400-998-9694
豪宅该有的三件套全部配齐:大金中央空调、霍尼韦尔全热交换新风机、阿里斯顿地暖。
240㎡以上户型甚至把中央空调“武装”到了厨房、卫生间、衣帽间,这一细节在市场凤毛麟角。夏天做菜你再也不会汗流浃背;即使黄梅天,女主人的衣物也能始终保持干爽。
为了方便业主使用,项目更把三件套操作全部集成到一个面板上。
样板间实景图

城发鼎盛华庭售楼处电话:400-998-9694
值得一提,如果你参观样板间,开关面板强烈建议触摸一下,采用了霍尼韦尔的玻璃材质,太有质感了。
什么是细节,这就是!一切为了业主能有更舒适的体验。
把视线下移,项目把都踢脚线都“藏”入墙面,内凹入墙式的做法,灰尘就失去了积攒的地方;并通过金属饰条装饰,更显纤细、美观。
地面更通铺马拉齐超大地砖,没有门槛石!
两者结合,扫地机器人可以无障碍通扫全屋。

城发鼎盛华庭售楼处电话:400-998-9694
样板间实景图
厨房方面,采用骊住橱柜,45度“轻松抽”设计更符合人体工程学。
油烟机、煤气灶,洗碗机采用了博世品牌,太仓新房市面上的厨电基本都是国产品牌,配洗碗机的更是屈指可数,怡口净水器也是标配。
水槽用的则是汉斯格雅大单槽,经常做饭的人都知道大单槽洗涤局限小、空间利用率高,比小双槽好用;龙头也是抽拉式的,真正做到想洗哪儿就洗哪。
还预留了双开门冰箱位置。
交付时还有上轨道移门,相比常见的“下轨道”,上轨道没有门槛,因此完全不用担心磕绊,清洁起来很方便。
样板间实景图

城发鼎盛华庭售楼处电话:400-998-9694
卧室方面,第一眼感觉就是氛围感高级,从吊顶到地板皆是诚意细节。
吊顶做了罕见的阳角灯带,施工难度大,但更美观!
墙布是交付的,选用了国内顶尖品牌,并采用糯米胶施工,配色柔和,材质环保。
地板也铺设了工艺更复杂,成本更高的人字拼,而不是单调的一字型。
窗户采用成本高昂的三玻两腔系统窗,为的就是给业主营造更保温、隔音更好的居住效果。同时连窗套都不惜成本用不锈钢包边,你要知道窗套,绝大多数开发商都选择忽视。
飘窗惊艳的宽度与深度,也为室内增加了可观的使用面积。
另外,卧室、客厅移门处都预留了窗帘盒,并预留电动窗帘的电源,隐蔽窗帘打褶更加美观。
样板间实景图

卫浴方面,采用了瑞士劳芬品牌,该品牌只会用于高端住宅中,比如上海陆家嘴壹号院,滨江壹十八等。次卫配劳芬壁挂式马桶,主卫则是劳芬智能马桶。
让人大开眼界的是,建面约143㎡主卫竟然同时安放了淋浴房和浴缸,即便放在上海都非常罕见,浴缸也是劳芬品牌的。
淋浴房底部则做了大理石凹槽防滑处理,四周也设置了排水沟,可加速水流排放。同时安装了挡水石,不用担心水流外漏。
除了可见的设计,项目还有诸多隐藏细节比如全屋WIFI,既免去你后期自己组网的麻烦,又方便实现全屋智能家居。
城发鼎盛华庭售楼处电话:400-998-9694
更多细节大家可以去样板间感受...
总之,如此多“想客户之所想”背后,是开发商一切从客户需求出发,深研每一处细节的匠心,为的就是给业主提供更舒适、更具档次的生活体验!
5、高级定制的大面宽神户型!
以建面约143㎡为例:
城发鼎盛华庭售楼处电话:400-998-9694 两梯两户,享一梯一户的体验;
四开间朝南、厨房、餐厅、客厅、阳台一体化,空间大气;
客厅面宽约4.5米,南向次卧开间约3-3.3米,主卧面宽更达到约3.5米,每个功能间舒适度都是同级PLUS版;
双开间约7.5米全景阳台,杜绝南向客厅晾衣干扰,也能解锁美好生活的N种“享”法,可以一侧是晾晒区,另一侧是品茗区、健身区、绿境区...
主卧气场十足,卧室放一张床尾凳绰绰有余,也能从容安排L型衣帽间,更配有淋浴房+浴缸。


城发鼎盛华庭售楼处电话:400-998-9694


城发鼎盛华庭售楼处电话:400-998-9694
值得一提,建面约330㎡5房5卫,还有霸气的270度跑道式阳台和超级转角厅:

项目效果图

1、查看五证
购买期房的话,则一定要确定开发商五证两书一表齐全,这是关于买房的基本知识中最重要的一项,所谓五证就是指《国有土地使用证》、《建筑用地规划许可证》、《建筑工程规划许可证》、《建筑工程施工许可证》和《商品房预售许可证》,有了五证两书才能办房产证,这是个先决条件,而且这个过程中开发商拿地的出让金都结清,楼盘本身没抵押才行。两书为质量保证书和使用说明书。这两书是房屋竣工并且通过验收后获得的。房子盖完了没有通过验收不行。一表为竣工备案表。这个是由当地质检站在所有验收工作完成以后加盖公章交给开发商的。
2、选择开发商
新手第一次买房注意事项中慎重选择开发商也很重要,因为一个好的开发公司它必然有一个好的理念和好的团队、好的物管服务,它已经开发和服务的小区是经得起时间的检验,可以得到业主的口碑传颂的。好口碑的开发商是房屋质量的保障,一般好的开发商资质高、资金充足。
3、挑选户型
新手购房须知,户型的挑选不能马虎,不同朝向、不同通风采光的户型会直接影响业主的居住舒适度,maigoo小编为大家整理了几点:1、南北通透,户型方正,采光通风俱佳;2、朝向优劣:正南>东南>西南>东>西>北;3、对侧通风,是通风条件最好的;4、房子内部,各功能区域面积分布均匀,开间:进深=1:1.5;5、动静分区,卧室与客餐厅、厨房不要挤在一起。
4、 挑选楼层
挑选楼层也像挑选户型一样重要,初次买房须知中的关键一项,不同的楼层,房子的通风采光、视野景观以及业主的私密性、居住舒适度,甚至噪音污染、出行便利性等都或多或少有所不同,一般来说,低楼层出行更方便,如遇意外也更容易逃生,但是通风、采光、视野等相对高楼层较差,私密性较差,噪音污染也严重;高楼层视野好、空气清新,通风采光都更佳,但是如果电梯故障,可能会影响出行,总的来说,一栋楼的1/3至2/3之间的楼层是较好的楼层,属于不高不低的“黄金楼”。

5、多学习选房知识
学无止境,能看到这篇买房须知的18个常识就说明读者朋友已经在努力了,很多购房者认为,当下房价过高,所以买房时,一般会在同等区域、同等地段选择价位便宜的楼盘,或者买房时看到区位好而不管户型、内部环境、物管服务、生活成本等,这就像买一件衣服,你只管款式而不管布料、价格等,正确的做法是多学习选房知识,关注户型好坏,房屋质量等干货。
6、评估购房能力
即使掌握了很多关于买房的基本知识,但很多人却对自己的经济能力认识不清,这也是很不明智的,买房之前一定要评估自己的购房能力,量力而行,对于刚需族来说,由于经济能力有限,所以都会采取贷款的方式买房。而贷款每个月需要交一定数额的月供,为了保证生活质量不受影响,避免断供的风险,maigoo小编建议月供的数额最好控制在总收入的50%以内。而且不仅要评估当前收入,还包括你接下来三至五年内短期的工作发展潜力以及未来十年至二十年后可能的职业安排,同时还包括你平时的消费习惯,以及家人的健康状况等,最后估算出一个数据。
7、看优惠
等待时机抓住又会也是买房须知的重要常识,买房子原本要花比较多的钱,买房子的时候能省一些算一些,所以购房者要懂得一些买房子的优惠政策。对于初次购买房屋的朋友来说,一般情况下都能享受首套房优惠政策,也就是说只要没买过房或没有贷款记录就可享受,开发商经常找“托”这样让购房者觉得“一房难求”在买房的时候职业顾问也会说再考虑一天就会被别人抢走房源,这样一来就会冲动消费,大家一定要耐住性子。
8多看多比较
年轻人买房时,最好不要好大喜贵,而且还想着一步到位,一定要像买东西一样货比三家,经过比较能获得有些经验,而房产综合性太强,它包含的面太宽,主要看你在比较过程中关心的内容全不全面,而且根据自己能承受的范围做出合理的决定,因为没有十全十美的房子,买房也不可能考虑到各方面的细节。
9、看规划
买房当然要挑楼盘,挑小区,挑户型,但是也不能只看房子,还要看房子的位置,这也是买房须知和注意事项中很重要的一点,内行人买房首先看的是地段,华人首富李嘉诚也说过:“决定房地产价值的因素,第一是地段,第二是地段,第三还是地段。”好地段的房产保值或升值的空间更大,购房风险相对城市偏远郊区较小,就算未来房价暴跌,首先下跌的也是地段较偏的房产,地段好的房产房价一般都是最后下降的。建议大家在购置房产时,要切记紧跟城市发展的方向。

10、楼间隔
什么是楼间隔?就好似两相邻楼的外墙面距离,同一个小区两栋相邻的楼与楼之间的距离,建筑间距的控制是为了保障人们工作、生活的质量与安全,大楼间隔宽的住宅区不一定能建造好的住宅区,大楼间隔特别宽也能建造好的住宅区,间隔宽是业主生活安静、隐私、视野广阔,也是景观建设的平台,但是利用平台建造景观安静、隐私、舒适的环境相反,大楼的间隔并不特别宽,但是这样的理念和团队创造了美丽、舒适、健康的环境,也被称为好的住宅区。
11、小区环境
重点看小区环境是买房须知的重要常识,小区景观、绿化、配套等与生活密切相关,更是楼盘质量的体现,大超市、医院、学校,关乎生活便捷度;是否是学区房,关乎小孩上学;附近的公交线路、地铁线路,交通是否便捷;好小区内部和周边的配套设施也相对完善一些,不仅水、电、燃气、煤气、宽带、停车场、公共厕所、多功能儿童活动空间、园区休闲场所、物业公司等内部配套设施能满足业主的日常居住需求,周边还有便利店、菜市场、食品店、药店、小型超市、学校、公交站点或者地铁站点等多功能服务配套满足业主以及孩子的衣食住行的更高需求。
12、避免楼层
选择楼层的时候经常是不随人愿,既然选不到“黄金楼层”,至少不要选到一些太糟糕的,比如极端层,顶层和底层不建议买,高层住宅如果选择低楼层的房子的话,采光可能就不是很好,而且容易潮湿,发霉,滋生蚊子。顶层容易出现漏水现象,虽然能修理但耗时耗力,修理时间极可能被无限延长。设备层则是专门供水,供电的中间楼层,要是常年居住在设备层的附近的话,不仅机器设备的噪音把人折磨得无法休息,连机器的辐射也会影响人的身体健康。
13、价格挑选
很多购房者认为房价才是买房最关键的因素,其实不然,适不适合自己才是最关键的。在自己能力范围内,如果房价偏高你也能接受,这样你就会觉得地段好、配套好、户型好、楼层好的房子才是最好的,就算房价贵点也愿意买。但是,如果你能力有限、购房资金有限,那么估计买哪里都会觉得贵,甚至觉得房价越便宜越好,价格挑选要比较个人承受范围、交通状况、社区环境、户型结构等条件衡量楼盘价格。

14、不要贪大
买房一定不要贪大是买房时的重要事项,面积以适用为原则,不要为大而大,现在年轻人都喜欢独自出来居住,所以一般买个80、90平的大两室或者小三室就完全足够居住,非要买大房子,不仅不实用,而且还会涉及到一定的税费,国家区分豪宅和普通住宅的分界线就是144平米,所以在购买房子的时候,不要超过140平,除了税费要多交不少,对于一些物业费取暖费等等各个方面都会高出很多,长时间算下来,多出的这些没准在日后还能多出一套首付钱。
15、考虑孩子问题
考虑孩子是买房时非常必要的,既然婚恋是买房子的重要原因,那么孩子就是一个不得不考虑的因素,首先在购房的户型上必须考虑孩子的房间,购房的户型最好要两居室以上;其次那就是注意考察周边的教育设施配套,孩子要上学,从幼儿园到小学到中学,同时还要考虑孩子路上的安全问题,尽量选择距离近的房子。这样可以给孩子节约大量的时间,让孩子有充裕的时间学习和休息。
16、了解物业
物管的好坏要看有没有专业的团队,有无完善的设施、健全的内部管理。不同的物业公司所做的服务千差万别,物业公司能否尽善尽美地完成自己的任务牵扯到小区的整体质量。保障安全、常规服务是物管的基本职责,好的物管主要看能否与业主达到共建和谐的社区环境,改变邻里关系为业主提供交流平台。活动的目的,不止热闹高兴,而是使业主与业主间、业主与物管间更加融洽,物管的用心和细心能不能坚持下去是最重要的,最后的评比结果是业主的口碑效益。
17、购房定金
“订金”与“定金”是不同的法律概念,这是开发商欲规避法律责任的惯用做法,《中华人民共和国担保法》规定:定金的数额由当事人约定,但不得超过主合同标的额的20%。商品房交易中,买家履行合同后,定金应当抵作价款或者收回;若买家不履行合同,无权要求返还定金,开发商不履行合同的,应双倍返还定金。而订金并非一个规范的法律概念,实际上它具有预付款的性质,并不具备担保性质。很多开发商会打出多少抵多少的优惠活动,但是需要缴纳一定的定金,要知道这里交了的定金是不能退的。辨别“订金”与“定金”是买房必知的重中之重。
18、签认购书
购房者应慎签认购书,认购书是商品房买卖的预约合同,是独立合同。签认购书时常会引发一系列纠纷,具体表现在购房者要收回定金,而发展商却不一定会退还。因此,为避免过多的麻烦,购房者在决定买房,可以向发展商提出看正式合同样本,房屋买卖合同一般只会对房子本身做出承诺,但是售房者很可能为了签单而给你很多的口头承诺,在觉得正式合同可以接受的情况下,再签署认购书,以免被套牢。
城发鼎盛华庭售楼处电话:400-998-9694
城发鼎盛华庭
售楼处电话:400-998-9694
如有问题欢迎来电咨询,来电即可享受买房优惠!
预约来电尊享购房优惠,可预约案场内部销售人员,专业一对一热情服务,让您用专业眼光去买房。
楼盘项目全面介绍,本电话为开发商提供线上售楼处电话,楼盘项目全面介绍(包含楼盘简介,楼盘积分,房价,价格,楼盘地址,户型图,交通规划,备案价,项目配套,楼盘详情,售楼处电话,最新消息,最新详情,周边配套,最新进展等详情咨询)
城发鼎盛华庭售楼处电话:400-998-9694
楼盘项目全面介绍,本电话为开发商提供线上预约售楼电话,楼盘项目全面介绍(包含楼盘简介,均价,房价,现房,期房,别墅,叠墅,大平层,价格,楼盘地址,户型图,交通规划,备案价,备案名,项目配套,样板间,开盘时间,认筹时间,楼盘详情,售楼处电话,最新消息,最新详情,周边配套,一房一价,最新进展等详情咨询)楼盘详情丨价格丨更多优惠丨机不可失丨欢迎致电丨诚邀品鉴!售楼处位置丨特价房丨工抵房丨剩余房源丨户型图丨最新消息丨免责声明:将文章内容综合来源于网络、只作分享,版权归原作者所有!!如有侵权,请联系我们,我们第一时间处理如有问题欢迎来电咨询,专业一对一热情服务,让您用专业眼光去买房。如果您想了解更多楼盘详情,欢迎提前预约拨打