雅韵玖里售楼处电话☎:400-998-9694✔✔ 雅韵玖里售楼处电话☎:400-998-9694✔✔ 雅韵玖里项目曝光,定位高端别墅,主打联排与洋房,容积率1.2,配备2梯2户,售楼处电话400-998-9694。
雅韵玖里
售楼处电话☎:400-998-9694✔✔
如有问题欢迎来电咨询,来电即可享受买房优惠!
预约来电尊享购房优惠,可预约案场内部销售人员,专业一对一热情服务,让您用专业眼光去买房。
雅韵玖里售楼处电话☎:400-998-9694✔✔
雅韵玖里售楼处电话☎:400-998-9694✔✔
古城又一别墅项目案名曝光
雅韵玖里
即2024-WG-Z08号地块
拟建5幢3-7F住宅
联排为主,4幢联排+1洋房
体量非常精致,粗略估计仅28套
洋房最大面宽约17米
南向双套房+三阳房,面积段超200㎡
联排带露台,赠送空间较大
目测也在200多平

雅韵玖里售楼处电话☎:400-998-9694✔✔
雅韵玖里售楼处电话☎:400-998-9694✔✔雅韵玖里营销中心电话:400-9989-694【24小时热线】雅韵玖里预约热线:4009989694【售楼处电话】
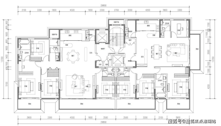
项目即苏地2024-WG-Z08号地块,位于姑苏区桐泾北路西、东沁苑东,占地0.53万㎡,体量非常小,粗略估计仅28套。
鸟瞰图如下:

雅韵玖里售楼处电话☎:400-998-9694✔✔雅韵玖里营销中心电话:400-9989-694【24小时热线】雅韵玖里预约热线:4009989694【售楼处电话】
容积率1.2,拟建5栋3-7F住宅,其中4栋3F联排,及1栋7F洋房,小区在桐泾北路设有出入口。
总平面图如下:

雅韵玖里售楼处电话☎:400-998-9694✔✔雅韵玖里营销中心电话:400-9989-694【24小时热线】雅韵玖里预约热线:4009989694【售楼处电话】
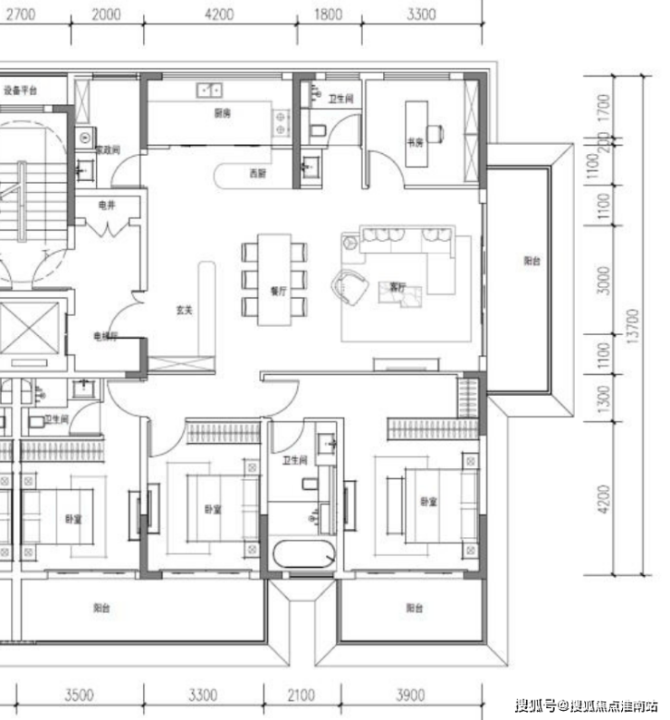
7#洋房标准层平面图如下:同步曝光2个户型,2梯2户。

具体来看,西边户4房2厅3卫
1梯1户,约17米南向面宽
南向双阳台分别为9.8米、3.9米
中西双厨带家政间,LDKB一体化设计
客厅开间6.3米,外接双联阳台
南向三房,其中双套房,主卧开间约3.9米

雅韵玖里售楼处电话☎:400-998-9694✔✔雅韵玖里营销中心电话:400-9989-694【24小时热线】雅韵玖里预约热线:4009989694【售楼处电话】
东边户4房2厅3卫
1梯1户,约12.8米南向面宽
三阳台设计,南向双阳台+东向阳台
开间分别为6.8米、3.9米、7.6米
中西双厨带家政间
南向三房,其中双套房,主卧开间约3.9米

雅韵玖里售楼处电话☎:400-998-9694✔✔雅韵玖里营销中心电话:400-9989-694【24小时热线】雅韵玖里预约热线:4009989694【售楼处电话】
7#南立面图如下:层高3.05米。

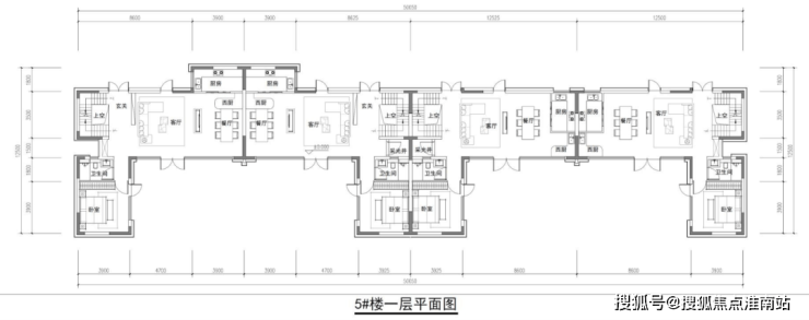
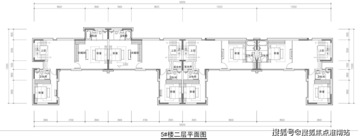
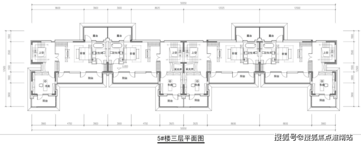
5#4联排一层平面图如下:同步曝光1个户型,南向面宽约12.5米。


雅韵玖里售楼处电话☎:400-998-9694✔✔雅韵玖里营销中心电话:400-9989-694【24小时热线】雅韵玖里预约热线:4009989694【售楼处电话】

5#联排立面图如下:首层高3.6米,二层高3.2米,三层高2.8米。

雅韵玖里售楼处电话☎:400-998-9694✔✔雅韵玖里营销中心电话:400-9989-694【24小时热线】雅韵玖里预约热线:4009989694【售楼处电话】
最后再来回顾下拿地经过——
地块在2024年7月份出让,被苏州瑞嘉商业发展有限公司竞得,拿地总价1.3亿,成交楼面地价20500元/㎡,溢价率0。

雅韵玖里售楼处电话☎:400-998-9694✔✔雅韵玖里营销中心电话:400-9989-694【24小时热线】雅韵玖里预约热线:4009989694【售楼处电话】
交通方面,地块距地铁1号线桐泾北路站约800米,距2号线石路约1.4公里。商业方面,地块近石路商圈,还可通过地铁直达山塘街、观前街等。周边还有苏州第五中学、金阊实小、金阊外国语等教育资源。
旁边就是保利姑苏瑧悦(拿地价27562元/㎡,备案价4.6万+/㎡),以及建发璟园(拟建8幢4-6F宋风纯叠墅)。
古城又一纯新盘待售,低密别墅精致社区,未来入市价格可以期待一下~
雅韵玖里
售楼处电话☎:400-998-9694✔✔
如有问题欢迎来电咨询,来电即可享受买房优惠!
预约来电尊享购房优惠,可预约案场内部销售人员,专业一对一热情服务,让您用专业眼光去买房。
雅韵玖里售楼处电话☎:400-998-9694✔✔
楼盘项目全面介绍,本电话为开发商提供线上预约售楼电话,楼盘项目全面介绍(包含楼盘简介,均价,房价,现房,期房,别墅,叠墅,大平层,价格,楼盘地址,户型图,交通规划,备案价,备案名,项目配套,样板间,开盘时间,认筹时间,楼盘详情,售楼处电话,最新消息,最新详情,周边配套,一房一价,最新进展等详情咨询)楼盘详情丨价格丨更多优惠丨机不可失丨欢迎致电丨诚邀品鉴!售楼处位置丨特价房丨工抵房丨剩余房源丨户型图丨最新消息丨免责声明:将文章内容综合来源于网络、只作分享,版权归原作者所有!!如有侵权,请联系我们,我们第一时间处理如有问题欢迎来电咨询,专业一对一热情服务,让您用专业眼光去买房。如果您想了解更多楼盘详情,欢迎提前预约拨打