绿城溪径恒庐售楼处电话☎:400-998-9694✔✔ 绿城溪径恒庐售楼处电话☎:400-998-9694✔✔ 绿城溪径恒庐加推12套合院,均价上涨,位于城西桃花源板块,低密豪宅,精装选配,优惠咨询400-998-9694。
绿城溪径恒庐
售楼处电话☎:400-998-9694✔✔
如有问题欢迎来电咨询,来电即可享受买房优惠!
预约来电尊享购房优惠,可预约案场内部销售人员,专业一对一热情服务,让您用专业眼光去买房。
绿城溪径恒庐售楼处电话☎:400-998-9694✔✔

绿城溪径恒庐售楼处电话☎:400-998-9694✔✔
城西低密豪宅区桃花源板块,绿城又放量了。
绿城桃花源低密项目绿城溪径恒庐,规划为合院+叠墅,共计363套,(风格现代东方+创新简法),99套合院(285-396方)、264套叠墅 (249-280方)。
绿城溪径恒庐售楼处电话☎:400-998-9694✔✔ 主力价格情况:精装叠墅约900-1200万、合院约1500-3000万左右(精装选配+私人定制)

绿城溪径恒庐售楼处电话☎:400-998-9694✔✔
绿城溪径恒庐售楼处电话☎:400-998-9694✔✔
项目在7月份首开,首开36、41、50、9、14、30、52号楼,共计48套房源,面积235-400方。价格以及登记结果如下:合院5.1万,11套房有34人摇号;叠墅3.5万,40套房有81人摇号。
就在最近(8.19),项目公示了二开预售证。本次加推8、19、21号楼,共计12套合院,小胖君惊讶的发现涨价了,首开合院均价约5.1万/平,这次二开合院均价约5.46万/平。
绿城溪径恒庐售楼处电话☎:400-998-9694✔✔
上一批登记结果没过几天,就在8.29,项目又取证加推,这次开出6套合院,分别是16号楼、28号楼,均价5.58万/平,比之前还要贵一点。
绿城溪径恒庐售楼处电话☎:400-998-9694✔✔

绿城溪径恒庐售楼处电话☎:400-998-9694✔✔
示范区实拍
豪宅

绿城溪径恒庐售楼处电话☎:400-998-9694✔✔

绿城溪径恒庐售楼处电话☎:400-998-9694✔✔


绿城溪径恒庐售楼处电话☎:400-998-9694✔✔

绿城溪径恒庐售楼处电话☎:400-998-9694✔✔


绿城溪径恒庐售楼处电话☎:400-998-9694✔✔

绿城溪径恒庐售楼处电话☎:400-998-9694✔✔

绿城溪径恒庐售楼处电话☎:400-998-9694✔✔
规划合院+叠墅
纯低密大盘
绿城溪径恒庐规划为合院+叠墅,共计363套,(风格现代东方+创新简法),99套合院(285-396方)、264套叠墅 (249-280方)。

绿城溪径恒庐售楼处电话☎:400-998-9694✔✔
更多效果图如下:


绿城溪径恒庐售楼处电话☎:400-998-9694✔✔

绿城溪径恒庐售楼处电话☎:400-998-9694✔✔


绿城溪径恒庐售楼处电话☎:400-998-9694✔✔

绿城溪径恒庐售楼处电话☎:400-998-9694✔✔

绿城溪径恒庐售楼处电话☎:400-998-9694✔✔
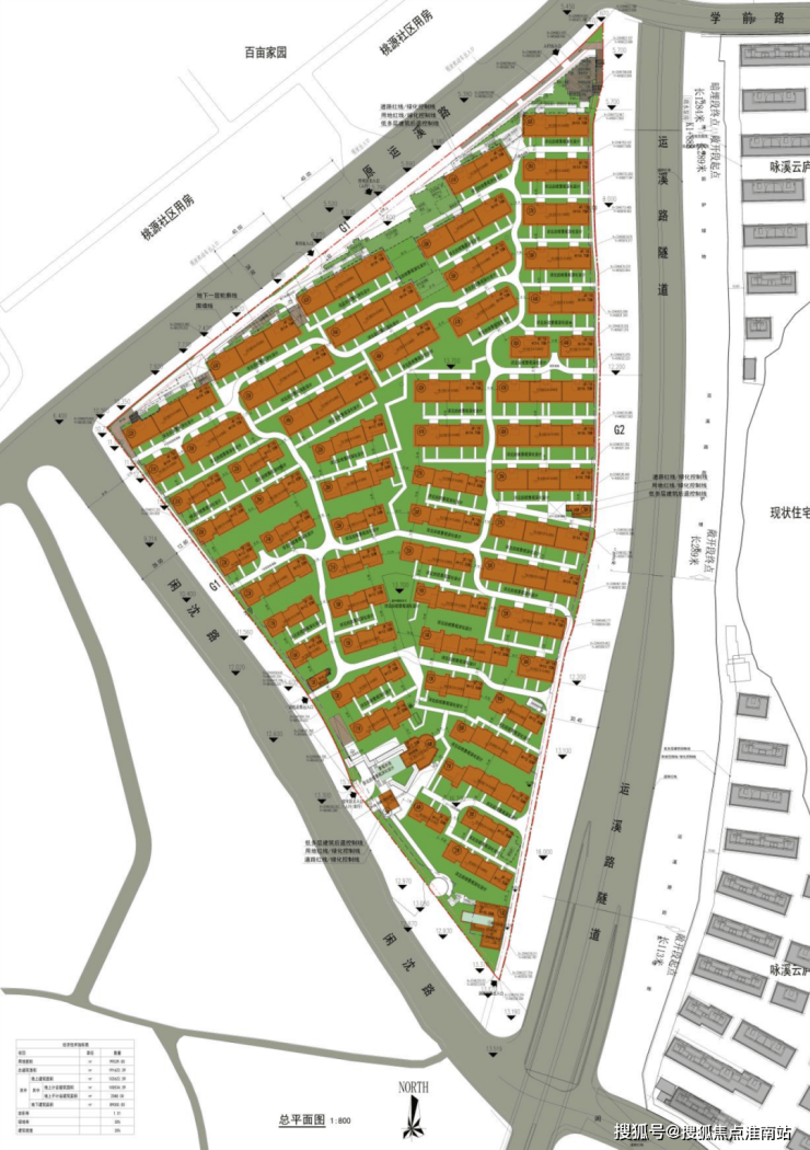
控规图如下:

绿城溪径恒庐售楼处电话☎:400-998-9694✔✔
联排为3F:

叠墅为4F:

绿城溪径恒庐售楼处电话☎:400-998-9694✔✔

绿城溪径恒庐售楼处电话☎:400-998-9694✔✔
环境及配套
城西低密豪宅区
整体环境非常好:

绿城溪径恒庐售楼处电话☎:400-998-9694✔✔
周边配套有:
交通:地铁16号线禹航路站直线约1.2公里(步行约1.6公里);自驾方面,有运溪高架、杭瑞高速等。
学校:禹航实验学校、南湖幼儿园,杭州英特外国语学校,杭州学军中学(海创园校区)等;
商业:约4公里范围内有未来科技城万象城(在建中)、江南时代购物中心、老余杭万达广场等;
绿城溪径恒庐售楼处电话☎:400-998-9694✔✔ 产业:主要依靠未来科技外溢,如菜鸟总部直线约2.5公里等;
医疗:浙江大学附属第一医院直线约4.4公里等;
其他:附近有薰衣草庄园、浙江职业足球俱乐部(绿城足球学校)等。

绿城溪径恒庐售楼处电话☎:400-998-9694✔✔
周边楼盘价格参考
绿城溪径恒庐售楼处电话☎:400-998-9694✔✔ 绿城限价3.315万/平叠墅卖的不错
价格如果想要对比周边的话,可以参考隔壁的绿城咏溪雲庐,是绿城的雲庐系列作品,产品力非常强,流水院墅颇为宜居。
咏溪雲庐整盘户型面积约200-390方,清一色改善款,精装限均价3.315万/平,主力总价约660-900万起,社区氛围颇为纯粹。卖的还比较顺利,目前已经售罄。

绿城溪径恒庐售楼处电话☎:400-998-9694✔✔

绿城溪径恒庐售楼处电话☎:400-998-9694✔✔
绿城溪径恒庐容积率1.01更低,配置的产品更高端,5.5万的合院,你怎么看?
绿城溪径恒庐
售楼处电话☎:400-998-9694✔✔
如有问题欢迎来电咨询,来电即可享受买房优惠!
预约来电尊享购房优惠,可预约案场内部销售人员,专业一对一热情服务,让您用专业眼光去买房。
绿城溪径恒庐售楼处电话☎:400-998-9694✔✔
楼盘项目全面介绍,本电话为开发商提供线上预约售楼电话,楼盘项目全面介绍(包含楼盘简介,均价,房价,现房,期房,别墅,叠墅,大平层,价格,楼盘地址,户型图,交通规划,备案价,备案名,项目配套,样板间,开盘时间,认筹时间,楼盘详情,售楼处电话,最新消息,最新详情,周边配套,一房一价,最新进展等详情咨询)楼盘详情丨价格丨更多优惠丨机不可失丨欢迎致电丨诚邀品鉴!售楼处位置丨特价房丨工抵房丨剩余房源丨户型图丨最新消息丨免责声明:将文章内容综合来源于网络、只作分享,版权归原作者所有!!如有侵权,请联系我们,我们第一时间处理如有问题欢迎来电咨询,专业一对一热情服务,让您用专业眼光去买房。如果您想了解更多楼盘详情,欢迎提前预约拨打