平江观梅雅园
售楼处电话☎:400-998-9694✔✔
如有问题欢迎来电咨询,来电即可享受买房优惠!
预约来电尊享购房优惠,可预约案场内部销售人员,专业一对一热情服务,让您用专业眼光去买房。
平江观梅雅园售楼处电话☎:400-998-9694✔✔
平江新城首个联排案名公示
平江观梅雅园
容积率仅有1.05
规划9幢3F联排+2幢8F洋房
南向面宽近10米,侧边大露台
沿河而建 自带商业配套
妥妥的出入皆繁华静谧

平江观梅雅园售楼处电话☎:400-998-9694✔✔平江观梅雅园营销中心电话:400-9989-694【24小时热线】平江观梅雅园预约热线:4009989694【售楼处电话】
根据规划公示显示,该项目将打造11幢住宅,其中9幢3F联排,2幢8F洋房,比较纯粹的低密改善住宅。
平江观梅雅园售楼处电话☎:400-998-9694✔✔平江观梅雅园营销中心电话:400-9989-694【24小时热线】平江观梅雅园预约热线:4009989694【售楼处电话】
分布上,联排别墅沿河排开,洋房沿分布,圈层更加纯粹。小区东侧为主出入口,北侧为次出入口,出入口均设计了汽车坡道,是姑苏核心区罕见的地下停车位。

项目的外立面让人惊艳,大面积落地玻璃窗+深灰色屋檐+金属线条勾勒,既有现代感又不失姑苏古城古韵底色。

平江观梅雅园售楼处电话☎:400-998-9694✔✔平江观梅雅园营销中心电话:400-9989-694【24小时热线】平江观梅雅园预约热线:4009989694【售楼处电话】
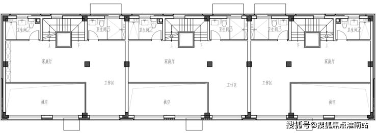
项目户型也同步公示,3F联排南北接口入户,南向面宽近10米。
1F为活动区,餐客厅一体化,中西双厨,干湿分离客卫,预留电梯位,南向卧室,可作为老人房。

2F生活区,餐客厅上空挑空,两个独立的卫生间,可根据自己的需求,设计成两个套房。

平江观梅雅园售楼处电话☎:400-998-9694✔✔平江观梅雅园营销中心电话:400-9989-694【24小时热线】平江观梅雅园预约热线:4009989694【售楼处电话】
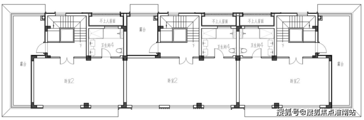
3F为生活区,边户主卧大套房+侧边L型大露台,中间户主卧大套房+北侧露台。让生活充满更多可能。

8F洋房户型,4房2厅2卫设计,全屋飘窗,南向面宽约10.2米,四开间朝南,其中3卧室均朝南,并且南向双套房。
南北双阳台,南向双联阳台,保证采光和通风的充足,入户家政间,保证收纳空间。

平江观梅雅园售楼处电话☎:400-998-9694✔✔平江观梅雅园营销中心电话:400-9989-694【24小时热线】平江观梅雅园预约热线:4009989694【售楼处电话】
土拍回顾——
该地块成交于今年1月中旬,由苏州荣和工程建设拿下,成交楼面价18022元/㎡,地块容积率约1.05!

苏地2024-WG-Z46号地块,紧邻护城河,地块占地约1.18万㎡,非常迷你。

平江观梅雅园售楼处电话☎:400-998-9694✔✔平江观梅雅园营销中心电话:400-9989-694【24小时热线】平江观梅雅园预约热线:4009989694【售楼处电话】
该地块也是一宗商住混合用地,容积率约1.05,根据出让要求,建筑高度≤40米。
根据拿地要求,该项目建筑立面要与周边区域整体风貌协调,强化建筑“第五立面”设计,立面材质以铝板、石材为主,采用透视围墙。



该地块还自带一个建面约不小于700㎡的商业。未来业主下楼即可满足日常生活所需,生活方便。

1、什么是房产:房屋产权的简称。
2、什么是地产:是指土地财产。
3、什么是房地产:是房产和地产的总称。
4、什么是房地产业:从事房地产开发、建设、经营、管理以及维修、装饰和服务的综合性产业。
5、什么是房地产开发:是指在依法取得土地使用权的土地上按照使用性质的要求进行基础设施、房屋建筑的活动。
6、什么是土地开发:是将“生地”开发成可供使用的土地。
7、集体土地是指:农村集体所有的土地。
8、征用土地是指:国家为了公共利益的需要,可依照法律规定对集体所有的土地实行征用。
9、什么是土地所有权:是指国家或集体经济组织对国家土地和集体土地依法享有的占有、使用、收益和处分的权能。
10、什么是土地使用权的出让:指国家以协议、招标、拍卖的方式将土地所有权在一定年限内出让给土地使用者,由使用者向国家支付土地使用权出让金的行为。
11、什么是土地使用权转让:是指土地使用者通过出售、交换、赠与和继承的方式将土地使用权再转移的行为。
12、什么是地籍、产籍:是对在房地产调查登记过程产生的各种图表、证件等登记资料,经过整理、加工、分类而形成的图、档、卡、册等资料的总称。
13、生地是指:不具备开发条件的土地。
14、熟地是指:已完成三通一平(水、电、道路,土地平整)或七通一平,具备开发条件的土地。
15、什么是宗地:是地籍的最小单元,是指以权属界线组成的封闭地块。
16、什么是宗地图:是土地使用合同书附图及房地产登记卡附图。它反映一宗地的基本情况。包括:宗地权属界线、界址点位置、宗地内建筑位置与性质、与相邻宗地的关系等。
17、证书附图是指:房地产后面的附图,主要反映房地产情况及房地产所在宗地情况。
18、什么是物业管理:泛指一切有关房地产开发、经营、商品房销售、租赁及售后服务。
19、什么是业主委员会:是在物业管理区域内代表全体业主实施自治管理的组织。是代表
物业全体业主合法权益的社会团体,其合法权益受国家法律保护。
20、业主委员会是如何产生的:由业主大会从全体业主中选举产生。
21、住房补贴是指:国家为职工解决住房问题而给予的补贴资助。
22、房屋的所有权是指:对房屋全面支配的权利。
23、房地产交易的两种主要形式是:地产交易形式与房产交易形式。
24、建筑物是指:人工建造而成的房屋和构筑物。
25、构筑物是指:建筑物中除房屋以外的东西。
26、什么是期房:是指消费者在购买时不具备即买即可入住的商品房。
27、期房是如何介定的:房地产开发商拿到商品房预售许可证开始至取得房地产权证大产证或竣工验收合格可以直接入住使用)为止。
28、什么是预售合同:消费者在购买期房时签定的销售合同。
29、什么是现房:是指消费者在购买时具备即买即可入住的商品房,即开发商已办妥所售的商品房的大产证(或已经竣工验收合格并交付使用)的商品房。
30、什么是毛坯房:房地产商交付屋内只有门框没有门,墙面地面仅做基础处理而未做表面处理的房叫毛坯房。
31、什么是成品房:是指对墙面、天花、门套、地板实行装修。
32、什么是商品房:是指以完全的市场价格向购房者出售的房子。
33、商品房预售是指:在房地产尚未建成以前,房地产的经销商在取得受买人一定数量的定金后,将期房出售给受买人。
34、商品房现售是指:指房地产开发企业将竣工验收合格的商品房出售给买受人。
35、二手房通常指的是:再次进行买卖交易的住房。
36、经济适用房指的是:面向中低收入家庭的普通住宅。
37、例出3种以上的安居房的种类:准成本房、全成本房、全成本微利房和社会微利房。
38、低层住宅的介定:1-3层的住宅。
39、多层住宅的介定:4-6层的住宅。
40、小高层住宅的介定:7-11层的住宅。
41、中高层住宅的介定:12-16层的住宅。
42、高层住宅的介定:16层以上为高层住宅。
43、超高层建筑的介定:总高度超过100米的建筑。
44、商品房的结构是指:房屋主体所使用的施工工艺和用材。
45、钢结构的意思是:承重的主要结构是用钢材料建造的,包括悬索结构。
46、钢混结构的意思是:承重的主要结构是用钢和混凝上建造的。
47、砖木结构的意思是:承重的主要结构是用砖、木材建造的。
48、砖混结构的意思是:主要是砖墙承重,部分是钢盘混凝土承重的结构。
49、框架结构的意思是:以钢筋混凝土浇捣成承重梁柱,再用预制的隔墙分户的结构。
50、开间指的是:一间房屋内一面墙的定位轴线到另一面墙的定位轴线之间的实际距离。
平江观梅雅园
售楼处电话☎:400-998-9694✔✔
如有问题欢迎来电咨询,来电即可享受买房优惠!
预约来电尊享购房优惠,可预约案场内部销售人员,专业一对一热情服务,让您用专业眼光去买房。
平江观梅雅园售楼处电话☎:400-998-9694✔✔
楼盘项目全面介绍,本电话为开发商提供线上预约售楼电话,楼盘项目全面介绍(包含楼盘简介,均价,房价,现房,期房,别墅,叠墅,大平层,价格,楼盘地址,户型图,交通规划,备案价,备案名,项目配套,样板间,开盘时间,认筹时间,楼盘详情,售楼处电话,最新消息,最新详情,周边配套,一房一价,最新进展等详情咨询)楼盘详情丨价格丨更多优惠丨机不可失丨欢迎致电丨诚邀品鉴!售楼处位置丨特价房丨工抵房丨剩余房源丨户型图丨最新消息丨免责声明:将文章内容综合来源于网络、只作分享,版权归原作者所有!!如有侵权,请联系我们,我们第一时间处理如有问题欢迎来电咨询,专业一对一热情服务,让您用专业眼光去买房。如果您想了解更多楼盘详情,欢迎提前预约拨打