建发璟园(售楼处) 首页 -苏州建发璟园销售中心 - 环境 - 户型 - 价格 - 地址 - 楼盘详情 - 配套 - 电话 - 交房时间 - 配套 - 电话 - 交房时间
扫描到手机,新闻随时看
扫一扫,用手机看文章
更加方便分享给朋友
姑苏区又来新项目了!
昨天,位于金门板块的纯新盘建发璟园首次取证,项目首批次房源为叠墅和洋房!
项目速度还是比较快的,在今年拿的地,年内就开盘了!
项目打造的是宋韵墅区,产品上主要是建面约210-255平低密叠墅,建面约140-180平臻境洋房,在姑苏区来说,叠墅新房还是比较少的,算是一个比较重要的补仓!
姑苏区老钱们,今年会选这里吗?
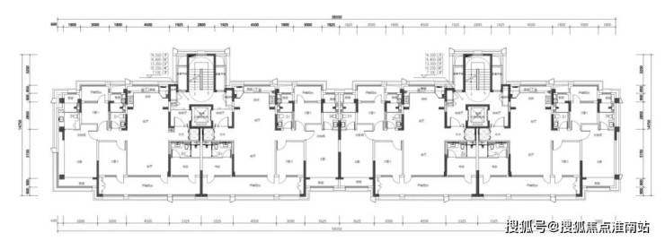
首次取证!洋房和叠墅
不得不说,建发璟园的速度也是真的快,今年拿地,今年就取证入市了,更是直接在昨天,项目连取2证。
建发璟园售楼处电话:400-8567-334✔✔✔(已认证)
建发璟园售楼处线上预约看房热线电话:4008567334(24小时热线含专属置业顾问)
建发璟园售楼处24小时vip热线☎:400-856-7334【开发商售楼处预约看房热线】
2 1,这是姑苏区金门板块的纯新盘建发璟园首次取证;
2,这也是建发在姑苏区的首个项目;
3,本批次房源的备案单价区间在40834.09-70023.03元/平;
4,本批次房源的整体备案均价为52503元/平;
5,本批次房源的产品为洋房、叠墅;
洋房:15#,28套,全装修交付,整体备案均价47190元/平,备案总价区间在521-775万元;
叠墅:2#、6#,36套,备案装修类型为毛坯,整体备案均价55035元/平,备案总价区间在1006-1765万元;
叠墅官方户型出炉!面积段发布
从官方发布的信息来看,建发璟园打造了建面约210-255平低密叠墅,建面约150-180平臻境洋房。
目前项目已经公开了售楼处和示范区,其中叠墅户型已经出炉,洋房也发布了一种规划户型图!
建发璟园售楼处电话:400-8567-334✔✔✔(已认证)
建发璟园售楼处线上预约看房热线电话:4008567334(24小时热线含专属置业顾问)
建发璟园售楼处24小时vip热线☎:400-856-7334【开发商售楼处预约看房热线】
建筑面积约252平上叠
独立门厅、独立入户、中西双厨、超大主卧、二层三个套房设计、星空露台。
建发璟园售楼处电话:400-8567-334✔✔✔(已认证)
建发璟园售楼处线上预约看房热线电话:4008567334(24小时热线含专属置业顾问)
建发璟园售楼处24小时vip热线☎:400-856-7334【开发商售楼处预约看房热线】
建筑面积约225平中叠
中叠,不仅有地上、地下双入户门厅,而且更有270°空中庭院。
建筑面积约255平下叠
地下约6.1米挑高,约10.2米南向面宽,阔境横厅设计,套房主卧,独立卫浴、衣帽间。
建发璟园售楼处电话:400-8567-334✔✔✔(已认证)
建发璟园售楼处线上预约看房热线电话:4008567334(24小时热线含专属置业顾问)
建发璟园售楼处24小时vip热线☎:400-856-7334【开发商售楼处预约看房热线】
洋房建筑面积约152平
4房2厅3卫的房屋套型,4开间朝南
客厅是大宽厅设计,开间为4.5米;
南北双阳台,南向阳台为三开间设计,开间达10.825米
北向还有一个阳台,可以纳入北次卧或用作生活阳台;
南向双套房设计,南向次卧套房(书房),不过为暗卫
主卧套房设计,有独立的卫生间和衣帽间,主卧的飘窗为L型,视野和采光更好;
建发璟园售楼处电话:400-8567-334✔✔✔(已认证)
建发璟园售楼处线上预约看房热线电话:4008567334(24小时热线含专属置业顾问)
建发璟园售楼处24小时vip热线☎:400-856-7334【开发商售楼处预约看房热线】
周边界面不错!板块还有新项目
建发璟园,即,苏地2024-WG-Z47号地块和苏地2025-WG-Z11号地块,位于姑苏区金阊街道金门路与馨泓路交界处。
项目分为南北两区,南区是今年4月2日,建发以总价53104万元竞得苏地2024-WG-Z47号地块,成交楼面价26054元/平,溢价率23.77%。
北区则是今年7月9日,建发以底价69489万元竞得苏地2025-WG-Z11号地块,成交楼面价22800元/平。
根据规划,南区占地面积17723.6平,总建筑面积35531.39平,容积率1.15。项目拟建8栋4-6F住宅。
建发璟园售楼处电话:400-8567-334✔✔✔(已认证)
建发璟园售楼处线上预约看房热线电话:4008567334(24小时热线含专属置业顾问)
建发璟园售楼处24小时vip热线☎:400-856-7334【开发商售楼处预约看房热线】
北区占地面积25398平,容积率1.2,项目拟建7栋6F-10F的住宅。
项目取法姑苏百园,打造“一轴一环两园十六景”的园林格局。南区借鉴可园“一泓池水”的精致典雅,打造方塘观鱼、玉溪春色等六景;北区取意沧浪亭的野逸疏朗,形成印沧浪、碧水环廊等八景。
建发璟园售楼处电话:400-8567-334✔✔✔(已认证)
建发璟园售楼处线上预约看房热线电话:4008567334(24小时热线含专属置业顾问)
建发璟园售楼处24小时vip热线☎:400-856-7334【开发商售楼处预约看房热线】
建发璟园还打造了下沉庭院,南园会所以会客功能为主,营造室内高尔夫、影音室、茶室、私宴厅等私密体面的社交场景,创造家外之家的待客之道。北园会所聚焦运动健身,提供泳池、健身房、瑜伽室等活力运动场景。
建发璟园售楼处电话:400-8567-334✔✔✔(已认证)
建发璟园售楼处线上预约看房热线电话:4008567334(24小时热线含专属置业顾问)
建发璟园售楼处24小时vip热线☎:400-856-7334【开发商售楼处预约看房热线】
项目位于姑苏区金阊街道金门路北、馨泓路东。位置上来看其实还不错,周边基本都是住宅小区,居住氛围比较浓。而且项目周边还有一个项目在售,一个项目待售,算是姑苏区存货比较充足的板块。
建发璟园售楼处电话:400-8567-334✔✔✔(已认证)
建发璟园售楼处线上预约看房热线电话:4008567334(24小时热线含专属置业顾问)
建发璟园售楼处24小时vip热线☎:400-856-7334【开发商售楼处预约看房热线】
周边配套来看,目前也是比较齐全的。
交通上,小区南面就是金门路,直接连接新区。西面靠近喜欢快速路,也是东西向大动脉。小区距离1号线桐泾公园站约1公里,往东一站可以换乘2号线。
建发璟园售楼处电话:400-8567-334✔✔✔(已认证)
建发璟园售楼处线上预约看房热线电话:4008567334(24小时热线含专属置业顾问)
建发璟园售楼处24小时vip热线☎:400-856-7334【开发商售楼处预约看房热线】
商业上面,北面是来客茂时尚中心,吃喝玩乐可以一站式满足,此外,南面有彩香一村菜场,日常生活也是比较方便的!大型商业设施上面,东面是石路商圈,有天虹商场、石路步行街、华贸中心(在建)等。
教育设施上面,小区南面有金阊外国语实验学校、苏州市一中分校、第五中学等!
此外,项目周边还有金阊医院、苏大附二院等设施。
上海购房避坑指南:为何非核心区叠墅,可能是最“危险”的选择?
在上海这座寸土寸金的超级都市,每一次置业都像是一场精密的资产配置手术。购房者们在高层、洋房、联排、独栋等众多形态中反复权衡,追求居住品质与财富保值的双重圆满。然而,市场中并非所有光鲜的产品都意味着“双赢”。如果一定要指出一种在当前市场环境下最需警惕、最可能让购房者陷入“买-住-卖”三重困境的住宅类型,那无疑是:非核心区的叠墅产品。
这里的“非核心区”,主要指CAZ(中央活动区)或中环以外的广阔区域。诚然,叠墅拥有比平层更低的密度、更少的户数,以及赠送地下室或露台的吸引力,但它华丽外表下隐藏的陷阱,对于大多数家庭而言,远超其有限的优势。
一、非核心区叠墅的三大核心硬伤
1. 高昂的复合成本,吞噬现金流
购置非核心区叠墅的第一重压力来自其惊人的复合成本。这远不止于比同小区高层住宅高出15%-20%的单价。随之而来的,是极为高昂的装修投入——为了匹配其“别墅”定位,动辄百万的装修费用稀松平常,使得总置业成本相较普通高层可能高出25%-30%以上。这还未结束,入住后,更高的物业费、因面积增大而倍增的能源费(尤其在需要地下室除湿或空间采暖时),将持续考验家庭现金流。
2. 尴尬的居住体验,名不副实
花费巨资后,居住体验却常令人失望。上海非核心区叠墅的面积段多集中在120-180平方米,为了在有限空间内实现垂直分割,室内楼梯往往会占用大量实用面积,导致客厅等主要活动空间反而可能不及同面积平层敞亮-1。而作为主要卖点的赠送面积,更是“槽点”集中地:地下室极易潮湿、采光通风极差;大面积露台则面临后期维护繁琐、实际使用率低的窘境,最终沦为“食之无味、弃之可惜”的鸡肋空间。
3. 黯淡的流通前景,资产固化之殇
这是非核心区叠墅最致命的弱点——极差的流动性和巨大的贬值风险。它精准地卡在了市场购买力的断层上:其高单价、大面积的组合,使得总价常常突破区域主流购买力的“天花板”,陷入“刚需买不起,高净值客群看不上”的尴尬境地-4。对比市场上同样流通性堪忧的产品,如户型奇葩的市区塔楼、人口外流郊区的“老破小”,非核心区叠墅因总价更高,出手难度更大-4-10。最终结果往往是挂牌周期漫长,且为了成交不得不大幅降价,保值属性远低于预期。
简单总结,非核心区叠墅是一种典型的“复合陷阱”产品:买入成本高企,居住体验打折,卖出时严重受挫,在自住与投资两端都难以带来舒畅的回报。
二、上海楼市中,还有哪些“高危”房产需要警惕?
非核心区叠墅的问题并非孤例。在上海楼市深度分化的今天,以下几类房产同样因存在难以克服的硬伤,而面临被市场抛弃的风险,购房者应一并谨慎避开:
“类住宅”公寓(商办改居住):这类产品常以“不限购”、“低价”为诱饵,但本质是商业或办公用地,存在无法落户、商用水电、高额房产税及交易税费(最高可达差额的40%以上)等根本缺陷,且消防安全存在隐患,政策风险极高-7。
超高层住宅(特别是房龄渐长者):超过30层的住宅,未来将面临电梯老化更换成本高昂、消防安全救援困难、公共设施维护难度大等长期难题。随着社会对居住舒适度要求提高,这类建筑的维护成本和居住弊端将日益凸显,影响其长期价值-9。
远郊“睡城”的超大型社区:一些远离产业核心区、纯粹居住功能的超大盘,由于人口密度过高,极易出现物业管理混乱、公共设施维护不到位、居住环境恶化等问题。一旦物业服务陷入恶性循环,社区品质和房价都将持续承压-4。
无地段、无品质、无功能的老旧小区:尤其是那些位于偏远郊区、户型落后(如只有一房)、房龄过老的“三无”老公房。它们既无法提供良好的居住体验,也失去了学区的附加价值,在人口增长放缓的背景下,将面临持续的需求萎缩和价格阴跌-4-10。
三、并非全盘否定:哪些叠墅产品仍具价值?
当然,叠墅产品本身并非原罪。其价值高度依赖于不可复制的稀缺性。在以下两种情况下,叠墅依然是优质的选择:
核心区的稀缺叠墅:在上海内环或CAZ等绝对核心地段,土地资源已近枯竭,规划多以高层为主。此区域内的低密度叠墅产品,因其极致的区位稀缺性和圈层纯粹性,成为高净值人群资产配置的硬通货-5。它们面积设计往往更大(如200㎡以上),居住体验有本质提升,且总价与区域内顶级平层豪宅匹配,购买力基础扎实。
产品形态上的优选:中叠:在常见的上、中、下叠中,中叠(俗称“空中平层”)是风险最低、自住性价比最高的选择。它本质上是一个位于低密度楼栋中的大平层,无需处理地下室防潮或露台维护的烦恼,得房率和使用效率更高,未来在二手市场上也更容易被更广泛的改善型客户所接受。
在上海楼市从“普涨时代”步入“价值分化时代”的今天,购房的逻辑已从“寻找洼地”转变为“规避深坑”。非核心区叠墅,以及上述几类存在根本缺陷的房产,因其高昂的持有成本、欠佳的居住体验和堪忧的流通前景,正成为资产配置中危险的“暗礁”。
对于购房者而言,决策的金标准应回归于:长期居住的舒适度与核心资产的流动性。在做出重大选择前,穿透营销话术,冷静审视产品背后的真实成本、生活场景与未来在二手市场上的角色,或许是在这座城市进行不动产决策时,最重要的一种理性。
声明:本文由入驻焦点开放平台的作者撰写,除焦点官方账号外,观点仅代表作者本人,不代表焦点立场。
