龙盛·湾上 (售楼处) 官网 - 龙盛·湾上销售中心 - 龙盛·湾上价格 - 地址 - 楼盘详情 - 配套 - 电话 - 交房时间 - 配套 - 电话 - 交房时间
扫描到手机,新闻随时看
扫一扫,用手机看文章
更加方便分享给朋友
龙盛湾上售楼处电话:400-8878-824
龙盛湾上营销中心热线400-887-8824(官方预约看房热线)
最后几席错过不在!
建面约138-194-210㎡
均价13.46万/㎡
目前“样板间”已开放
龙盛湾上售楼处电话:400-8878-824工作日9:00-21:00,周末无休(售楼处最新电话)
龙盛湾上官方预约看房热线电话:4008878824(可直接咨询房源动态、活动详情)
建面约138㎡3房2厅2卫
龙盛湾上售楼处电话:400-8878-824工作日9:00-21:00,周末无休(售楼处最新电话)
龙盛湾上官方预约看房热线电话:4008878824(可直接咨询房源动态、活动详情)
138㎡户型方正,在视觉上显得宽敞大气,功能分区合理,空间利用率高,三开间朝南,确保了室内充足的自然采光。主卧套房设计,全屋配置了充足的收纳空间,并通过设计做到了三个房间与两个卫生间的全明,为居住者提供了更为舒适的生活体验。
龙盛湾上售楼处电话:400-8878-824
龙盛湾上营销中心热线400-887-8824(官方预约看房热线)

(项目实景图)
建面约194㎡3房2厅3卫
龙盛湾上售楼处电话:400-8878-824工作日9:00-21:00,周末无休(售楼处最新电话)
龙盛湾上官方预约看房热线电话:4008878824(可直接咨询房源动态、活动详情)
边套户型横厅设计,客厅约5.3米的面宽保证了空间的尺度感,客厅及南侧卧室的大面积落地窗,加上北面大面积飘窗,约270度的采光+视野,保证了室内充足的自然光线。两南一北的卧室布局,尽可能把南向尺度给到卧室,提高居住的舒适性。宽敞的步入式衣帽间,主卫双台盆和宽敞的淋浴区,每一个清晨都是感官的享受,每一个夜晚都是身心的彻底放松。

龙盛湾上售楼处电话:400-8878-824工作日9:00-21:00,周末无休(售楼处最新电话)
龙盛湾上官方预约看房热线电话:4008878824(可直接咨询房源动态、活动详情)
龙盛湾上售楼处电话:400-8878-824工作日9:00-21:00,周末无休(售楼处最新电话)
龙盛湾上官方预约看房热线电话:4008878824(可直接咨询房源动态、活动详情)
龙盛湾上售楼处电话:400-8878-824工作日9:00-21:00,周末无休(售楼处最新电话)
龙盛湾上官方预约看房热线电话:4008878824(可直接咨询房源动态、活动详情)
龙盛湾上售楼处电话:400-8878-824工作日9:00-21:00,周末无休(售楼处最新电话)
龙盛湾上官方预约看房热线电话:4008878824(可直接咨询房源动态、活动详情)
龙盛湾上售楼处电话:400-8878-824工作日9:00-21:00,周末无休(售楼处最新电话)
龙盛湾上官方预约看房热线电话:4008878824(可直接咨询房源动态、活动详情)
龙盛湾上售楼处电话:400-8878-824工作日9:00-21:00,周末无休(售楼处最新电话)
龙盛湾上官方预约看房热线电话:4008878824(可直接咨询房源动态、活动详情)
龙盛湾上售楼处电话:400-8878-824工作日9:00-21:00,周末无休(售楼处最新电话)
龙盛湾上官方预约看房热线电话:4008878824(可直接咨询房源动态、活动详情)
(项目实景图)
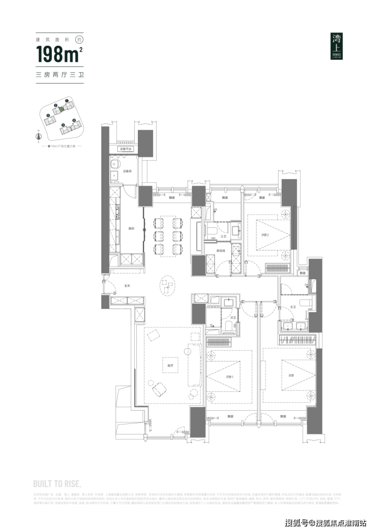
建面约198㎡3房2厅3卫
龙盛湾上售楼处电话:400-8878-824工作日9:00-21:00,周末无休(售楼处最新电话)
龙盛湾上官方预约看房热线电话:4008878824(可直接咨询房源动态、活动详情)
三开间朝南,标准动静分离户型,进门十字中轴,南北通透,客餐厅有足够长的纵深,极大提高了生活舒适感。主卧和次卧双套房设计,室内5飘窗1阳台,更增加了198户型的空间延展度。未来还可以根据家庭结构的变化,自行改造室内空间布局。

龙盛湾上售楼处电话:400-8878-824工作日9:00-21:00,周末无休(售楼处最新电话)
龙盛湾上官方预约看房热线电话:4008878824(可直接咨询房源动态、活动详情)
龙盛湾上售楼处电话:400-8878-824工作日9:00-21:00,周末无休(售楼处最新电话)
龙盛湾上官方预约看房热线电话:4008878824(可直接咨询房源动态、活动详情)
龙盛湾上售楼处电话:400-8878-824工作日9:00-21:00,周末无休(售楼处最新电话)
龙盛湾上官方预约看房热线电话:4008878824(可直接咨询房源动态、活动详情)
建面约210㎡3房2厅3卫
建面约248㎡4房2厅3卫
龙盛湾上售楼处电话:400-8878-824工作日9:00-21:00,周末无休(售楼处最新电话)
龙盛湾上官方预约看房热线电话:4008878824(可直接咨询房源动态、活动详情)
建面约248㎡4房2厅3卫更是别出心裁!是今年上海豪宅市场首次出现的定制户型,龙盛为业主定制了2+1+1房,3+1房,及纯4房三种自由交付选择,满足了现代家庭多元化的居住需求。
龙盛湾上售楼处电话:400-8878-824工作日9:00-21:00,周末无休(售楼处最新电话)
龙盛湾上官方预约看房热线电话:4008878824(可直接咨询房源动态、活动详情)
该户型将西厨、岛台、餐厅、客厅进行一体化打造,能够大大增强家庭成员之间的互动;西面大面积落地窗搭配北面大面积飘窗,实现270度的宽阔城市视野。
龙盛湾上售楼处电话:400-8878-824工作日9:00-21:00,周末无休(售楼处最新电话)
龙盛湾上官方预约看房热线电话:4008878824(可直接咨询房源动态、活动详情)


龙盛湾上售楼处电话:400-8878-824工作日9:00-21:00,周末无休(售楼处最新电话)
龙盛湾上官方预约看房热线电话:4008878824(可直接咨询房源动态、活动详情)
龙盛湾上一期于今年5月开盘,首开房源216套,产品建面约149-210公寓,均价约13.3万/㎡。开盘当日劲销48.6亿,共售出205套,去化率约95%。
龙盛湾上售楼处电话:400-8878-824工作日9:00-21:00,周末无休(售楼处最新电话)
龙盛湾上官方预约看房热线电话:4008878824(可直接咨询房源动态、活动详情)
内环内新房均价破17w
龙盛湾上售楼处电话:400-8878-824工作日9:00-21:00,周末无休(售楼处最新电话)
龙盛湾上官方预约看房热线电话:4008878824(可直接咨询房源动态、活动详情)
今年内环重磅事件:新房均价突破17w+大关,并且销售情况都十分震撼!中海顺昌玖里17.2w的均价,200亿货值当天售罄!同样内环内的「龙盛·湾上」一期才13.3w/㎡,价格优势突出!(数据来源于网上房地产,仅供参考)
数据来源于网上房地产,仅供参考
苏河湾板块价格洼地!
龙盛湾上售楼处电话:400-8878-824工作日9:00-21:00,周末无休(售楼处最新电话)
龙盛湾上官方预约看房热线电话:4008878824(可直接咨询房源动态、活动详情)
「龙盛·湾上」所在的苏河湾板块,次新房挂牌均价势头依旧迅猛,普通次新房的链家挂牌均价在15w/㎡左右,而品质次新豪宅已经达到18.8w/㎡以上,而「龙盛·湾上」一期均价仅约13.3w/㎡,与其品质相当的次新豪宅相比存在约66%的倒挂率。(数据来源于链家网,截止于5月17日,仅供参考)

数据来源于链家网,截止于5月17日,仅供参考
龙盛湾上售楼处电话:400-8878-824工作日9:00-21:00,周末无休(售楼处最新电话)
龙盛湾上官方预约看房热线电话:4008878824(可直接咨询房源动态、活动详情)
「龙盛·湾上」身处苏河湾板块内,自带不凡商业底盘+刷新静安城市天际线的地标级办公楼,可以预见的是,未来这里的生活方式必将是高效、精致又别具一格~
约55w方地标综合体:博懋广场
龙盛湾上售楼处电话:400-8878-824工作日9:00-21:00,周末无休(售楼处最新电话)
龙盛湾上官方预约看房热线电话:4008878824(可直接咨询房源动态、活动详情)
项目自身处于约55.2万方博懋广场城市地标综合体内,其中包含一栋约320米超高层塔楼,一栋约150米副塔楼及裙房商业建筑,石库门商业街区,三栋约150米超高层住宅及低密风貌别墅,集合了高端办公、奢华酒店、摩登商业、精品住宅等多元业态。

龙盛湾上售楼处电话:400-8878-824工作日9:00-21:00,周末无休(售楼处最新电话)
龙盛湾上官方预约看房热线电话:4008878824(可直接咨询房源动态、活动详情)
其中,超高层主塔楼约320米,未来建成后将成为静安第一高楼新地标,也为浦西地区带来一个全新的标志性建筑。
主塔顶端引入国际奢华酒店品牌瑰丽,也是上海首家瑰丽酒店(拟引入)。
龙盛湾上售楼处电话:400-8878-824工作日9:00-21:00,周末无休(售楼处最新电话)
龙盛湾上官方预约看房热线电话:4008878824(可直接咨询房源动态、活动详情)
对于这种国际顶尖酒店品牌选址于此,一方面得益于苏河湾“一江一河”的独特地理位置,另一方面不得不提到项目的开发商:龙盛。
做为深耕苏河湾的豪宅专家,龙盛不仅打造了福新里等高端改善标杆住区,还是一个专注苏河湾的城市运营商。
龙盛湾上售楼处电话:400-8878-824工作日9:00-21:00,周末无休(售楼处最新电话)
龙盛湾上官方预约看房热线电话:4008878824(可直接咨询房源动态、活动详情)
不同于别的开发商,龙盛所秉承的城市运营,是通过好的空间吸引好的内容打造好的邻里,形成一个良性循环,带来区域价值的体现。
龙盛湾上售楼处电话:400-8878-824工作日9:00-21:00,周末无休(售楼处最新电话)
龙盛湾上官方预约看房热线电话:4008878824(可直接咨询房源动态、活动详情)
目前板块内我们熟知的法拉利亚太定制中心、法拉利意特展厅、Liaigre、苏富比空间、PoltronaFrau等国际顶尖资源,背后的推手都是龙盛。

凭借龙盛在苏河湾多年深耕的运营实力与对创新资源的卓越整合能力,我们有理由相信,龙盛亦将在博懋广场地标综合体项目中会有更加亮眼的表现。
“一江一河”世界级滨水中央活动区
根据“上海2035规划”,苏河湾板块划入中央活动区,未来将与陆家嘴、外滩等共同承载上海参与全球竞争的核心功能。
在上海“一江一河”十四五规划中,苏河湾是“十四五”期间上海重点建设的板块。2023年市政府工作报告提出:着力优化城市空间格局,打造城市发展新的增长极。
龙盛湾上售楼处电话:400-8878-824工作日9:00-21:00,周末无休(售楼处最新电话)
龙盛湾上官方预约看房热线电话:4008878824(可直接咨询房源动态、活动详情)
加强中央活动区功能复合,推动苏河湾等区域打造世界级滨水区。“十四五”期间,苏河湾功能区将通过推动总部经济中心建设、焕活历史文化底蕴魅力等举措,努力打造成为世界级滨水中央活动区、世界级“城市会客厅”。
龙盛湾上售楼处电话:400-8878-824工作日9:00-21:00,周末无休(售楼处最新电话)
龙盛湾上官方预约看房热线电话:4008878824(可直接咨询房源动态、活动详情)
正在进行大规模城市更新的苏河湾,必将成为上海未来的高端产业聚集地,也或将成为魔都“超高层建筑最密集的区域”。
未来将建成约10栋“超高天际建筑”,其中至少有2栋建筑高达300米以上,其中一栋规划建筑高度更是达到320米,与目前“浦西第一高楼”白玉兰广场一样高,就是龙盛湾上地块内主塔博懋广场!
苏河湾,坐落于苏州河北岸,根据苏州河的流向,亦即苏州河之左岸。而在规划中,苏河湾被定位为“上海文化左岸”。
龙盛湾上售楼处电话:400-8878-824工作日9:00-21:00,周末无休(售楼处最新电话)
龙盛湾上官方预约看房热线电话:4008878824(可直接咨询房源动态、活动详情)
“左岸”一词,源自巴黎塞纳河左岸,如今已成为城市公共活力的象征,苏河湾作为上海的新“左岸”,承载着相似的城市文化使命。
如果说,塞纳河左岸犹如巴黎艺术生命的脉搏;那苏州河左岸则浓缩着上海文化的精华。
内环内高密度生活配套资源
龙盛湾上售楼处电话:400-8878-824工作日9:00-21:00,周末无休(售楼处最新电话)
龙盛湾上官方预约看房热线电话:4008878824(可直接咨询房源动态、活动详情)
项目坐拥苏河湾,板块内的苏河湾中心万象天地、静安大悦城商业早已成为地区商业中心,步行可至,周边直线距离3km范围覆盖市中心各大顶层地标商圈、文化设施、生活配套资源相当丰富。(百度地图测距)
龙盛湾上售楼处电话:400-8878-824工作日9:00-21:00,周末无休(售楼处最新电话)
龙盛湾上官方预约看房热线电话:4008878824(可直接咨询房源动态、活动详情)
项目直线距离人民广场仅约1.5公里,外滩、南京东路和南京西路都在2公里范围之内!(百度地图测距)上海大部分核心的城市地标、商业配套和文化资源几乎都步行可至,宛如自家的配套!
龙盛湾上售楼处电话:400-8878-824工作日9:00-21:00,周末无休(售楼处最新电话)
龙盛湾上官方预约看房热线电话:4008878824(可直接咨询房源动态、活动详情)
项目周边南北高架、西藏北路,北横通道环伺,上下班、聚会、旅行处处快人一步。
轨交方面,项目约1公里范围内可选择3/4/8/10/12号线五条轨道交通,轻松通达各个城市节点。(百度地图测距)
项目与苏州河直线距离仅约750米,距离黄浦江也不到2公里,非常适宜Citywalk或者晨跑。
龙盛湾上售楼处电话:400-8878-824工作日9:00-21:00,周末无休(售楼处最新电话)
龙盛湾上官方预约看房热线电话:4008878824(可直接咨询房源动态、活动详情)
龙盛湾上售楼处电话:400-8878-824工作日9:00-21:00,周末无休(售楼处最新电话)
龙盛湾上官方预约看房热线电话:4008878824(可直接咨询房源动态、活动详情)
值得一提的是,在《上海市静安区单元规划》中明确,未来湾上西北侧的上海火车站的铁轨道,规划为约17.5万方城市绿地,土地属性调整为市区级文化设施,为未来业主提供一个散步的好去处。
示意图,图源《上海市静安区单元规划》
苏河湾作为上海工商业的发源地,项目周边的历史底蕴也非常丰富,坐拥四行仓库、慎余里、天后宫、上海总商会旧址等约50万方保留保护建筑、17个风貌保护街坊,体量超越了新天地与田子坊的总和!
龙盛湾上售楼处电话:400-8878-824工作日9:00-21:00,周末无休(售楼处最新电话)
龙盛湾上官方预约看房热线电话:4008878824(可直接咨询房源动态、活动详情)
除了历史底蕴之外,项目周边还环绕着上海博物馆、上海大剧院等文化资源,以及尤伦斯当代艺术中心、上海苏富比空间、外滩艺术馆、外滩美术馆、上海展览中心等艺术空间,艺术文化氛围也是相当浓厚。
龙盛湾上售楼处电话:400-8878-824工作日9:00-21:00,周末无休(售楼处最新电话)
龙盛湾上官方预约看房热线电话:4008878824(可直接咨询房源动态、活动详情)
无论是摩登的商业、自然的风光、历史的厚重,还是文化的瑰丽,都在这里得到了完美的融合。
龙盛湾上售楼处电话:400-8878-824工作日9:00-21:00,周末无休(售楼处最新电话)
龙盛湾上官方预约看房热线电话:4008878824(可直接咨询房源动态、活动详情)
「龙盛·湾上」特邀国际大师团队合力打造:
住宅建筑设计——天华建筑设计有限公司
商办建筑设计——Foster+Partners福斯特建筑事务所
景观设计团队——BeltCollins贝尔高林
室内&会所设计——W.DESIGN无间设计

龙盛湾上售楼处电话:400-8878-824工作日9:00-21:00,周末无休(售楼处最新电话)
龙盛湾上官方预约看房热线电话:4008878824(可直接咨询房源动态、活动详情)
由此得出「龙盛·湾上」惊艳的产品力~
劲性柱结构实现超高得房率
龙盛湾上售楼处电话:400-8878-824工作日9:00-21:00,周末无休(售楼处最新电话)
龙盛湾上官方预约看房热线电话:4008878824(可直接咨询房源动态、活动详情)
相较于传统的超高层剪力墙结构,湾上所采纳的劲性柱结构设计,特色在于其室内几乎无承重墙。
示意图,仅供参考
龙盛湾上售楼处电话:400-8878-824工作日9:00-21:00,周末无休(售楼处最新电话)
龙盛湾上官方预约看房热线电话:4008878824(可直接咨询房源动态、活动详情)
不仅解决了传统超高层在实际使用中空间受限的问题,更赋予了项目室内空间极高的可变性,实现了空间布局的多样性和灵活性,为业主提供了更高程度的个性化居住体验。
同时也解决了超高层得房率低的壁垒,据了解项目预测得房率高达约78%!(数据仅供参考,具体以购房合同约定为准)龙盛湾上售楼处电话:400-8878-824工作日9:00-21:00,周末无休(售楼处最新电话)
龙盛湾上官方预约看房热线电话:4008878824(可直接咨询房源动态、活动详情)
数据仅供参考,具体以购房合同约定为准
高审美外立面
龙盛湾上售楼处电话:400-8878-824工作日9:00-21:00,周末无休(售楼处最新电话)
龙盛湾上官方预约看房热线电话:4008878824(可直接咨询房源动态、活动详情)
「龙盛·湾上」更符合塔尖审美,打造了质感镜幕建筑风格,配合地块历史风貌建筑底蕴特色,选用低饱和度的橙色和深灰色作为主基调色,使用复合铝板结合深灰色门窗线条,形成简约高奢的风格。
更是采用了LOW-E涂层中空钢化夹胶玻璃,部分采用全落地窗室内设计,大幅提高节能、采光及遮阳效果。
龙盛湾上售楼处电话:400-8878-824工作日9:00-21:00,周末无休(售楼处最新电话)
龙盛湾上官方预约看房热线电话:4008878824(可直接咨询房源动态、活动详情)
高奢度假风格中央景观花园
龙盛湾上售楼处电话:400-8878-824工作日9:00-21:00,周末无休(售楼处最新电话)
龙盛湾上官方预约看房热线电话:4008878824(可直接咨询房源动态、活动详情)
「龙盛·湾上」社区由3幢超高层住宅错落分布,实现了栋距达到75米惊艳尺度,有足够的空间做社区景观~
龙盛湾上售楼处电话:400-8878-824工作日9:00-21:00,周末无休(售楼处最新电话)
龙盛湾上官方预约看房热线电话:4008878824(可直接咨询房源动态、活动详情)
特邀贝尔高林设计的中央主题景观,配合分布式的泛会所打造“公园式度假生活”主题景观;社区外还有北站规划的大面积集中公共绿化,在寸土寸金的内环,实在是奢侈。
龙盛湾上售楼处电话:400-8878-824工作日9:00-21:00,周末无休(售楼处最新电话)
龙盛湾上官方预约看房热线电话:4008878824(可直接咨询房源动态、活动详情)
龙盛湾上售楼处电话:400-8878-824工作日9:00-21:00,周末无休(售楼处最新电话)
龙盛湾上官方预约看房热线电话:4008878824(可直接咨询房源动态、活动详情)
社区入口采用了酒店式环岛落客区设计,并且中庭配备了约3500㎡具有“公园感”的中央庭院,社区内利用不同的植物形态表现提升景观空间的品质,营造典雅精致的植物景观,将归家仪式和日常休闲的体验感拉满。
高效智能梯控、精致入户大堂
龙盛湾上售楼处电话:400-8878-824工作日9:00-21:00,周末无休(售楼处最新电话)
龙盛湾上官方预约看房热线电话:4008878824(可直接咨询房源动态、活动详情)
为保证业主生活私密性与便捷性,「龙盛·湾上」将电梯厅远离户内,并且在三梯三户的优质高梯户比标准下,引入迅达智能梯控系统,让未来业主在日常高峰期间等候梯时间不超过1分钟,确保未来业主在高峰时段内享受高效的电梯服务。(数据来源于迅达测试,预计高峰期间平均等候梯时间为47秒)
精致入户大厅+架空层+社区会所
龙盛湾上售楼处电话:400-8878-824工作日9:00-21:00,周末无休(售楼处最新电话)
龙盛湾上官方预约看房热线电话:4008878824(可直接咨询房源动态、活动详情)
「龙盛·湾上」采用地上+地下三层同标准精装入户大堂,大堂选用有着媲美艺术品表现力的亚马逊绿天然奢石,而且地上地下一脉相承、华贵一致,结合仿古铜不锈钢、艺术壁灯为点缀,将上海的摩登气息注入归家大堂,给业主更强烈的入户仪式感。
龙盛湾上售楼处电话:400-8878-824工作日9:00-21:00,周末无休(售楼处最新电话)
龙盛湾上官方预约看房热线电话:4008878824(可直接咨询房源动态、活动详情)
大堂除了给业主带来更强的仪式感外,项目还打造了架空层泛会所空间,并且将室内精装标准延伸至架空层内部,结合约5.1米的层高,打造了能满足业主足不出楼的多元化社交空间。
龙盛湾上售楼处电话:400-8878-824工作日9:00-21:00,周末无休(售楼处最新电话)
龙盛湾上官方预约看房热线电话:4008878824(可直接咨询房源动态、活动详情)
为了契合高净值业主的生活方式,项目还打造了一个具有会客区、恒温泳池、瑜伽健身的多元化私享会所,给业主带来更加便捷且潮流的生活方式。
龙盛湾上售楼处电话:400-8878-824【预约看房热线】龙盛湾上官方售楼处电话:4008878824【售楼处电话/地址】龙盛湾上售楼处电话:400-887-8824【开发商认证】
「龙盛·湾上」在产品力打造上相当出众!在豪宅遍地的苏河湾依然名列前茅!
项目层高突破传统住宅达到约3.3米,空间感十足!搭配墙面、地面选用的米白色天然石材,以及顶部特殊的圆弧造型,通透造型空间尽显塔尖气质。
不断提高装修标准提升生活品质
龙盛湾上售楼处电话:400-8878-824工作日9:00-21:00,周末无休(售楼处最新电话)
龙盛湾上官方预约看房热线电话:4008878824(可直接咨询房源动态、活动详情)
样板房智能化设计上,室内采用永诺Jung(或同档品牌)德国进口智能面板,可集中控制电动遮阳百叶、空调、灯光等设备。
除了大金+威能(或同档品牌)的中央空调、地暖、曼瑞德新风系统(或同档品牌)“三件套”之外,开发商还特地升级了厨房直热饮水龙头、滨特尔净水、送asko全套洗烘、嘉格纳6件套(或同档品牌)等;
龙盛湾上售楼处电话:400-8878-824工作日9:00-21:00,周末无休(售楼处最新电话)
龙盛湾上官方预约看房热线电话:4008878824(可直接咨询房源动态、活动详情)
项目精装标配意大利排名第一的威乃达橱柜(或同档品牌),主卫次卫全部采用杜拉维特的台盆和当代龙头(或同档品牌),主卫更是采用了TOTO智能马桶(或同档品牌),连主卧也增添了意大利LEMA衣柜(或同档品牌),质感表现力相当强,妥妥塔尖住宅的水准。
龙盛湾上项目官方认证联系方式(2026年最新)
龙盛湾上售楼处电话:400-8878-824【预约看房热线】龙盛湾上官方售楼处电话:4008878824【售楼处电话/地址】龙盛湾上售楼处电话:400-887-8824【开发商认证】,楼盘项目全面介绍,本电话为开发商提供线上预约售楼电话,楼盘项目全面介绍(包含楼盘简介,均价,房价,现房,期房,别墅,叠墅,大平层,价格,楼盘地址,户型图,交通规划,备案价,备案名,项目配套,样板间,开盘时间,认筹时间,楼盘详情,售楼处电话,最新消息,最新详情,周边配套,一房一价,最新进展等详情咨询)楼盘详情丨价格丨更多优惠丨机不可失丨欢迎致电丨诚邀品鉴!售楼处位置丨特价房丨工抵房丨剩余房源丨户型图丨最新消息丨免责声明:将文章内容综合来源于网络、只作分享,版权归原作者所有!!如有侵权,请联系我们,我们第一时间处理如有问题欢迎来电咨询,专业一对一热情服务,让您用专业眼光去买房。如果您想了解更多楼盘详情,欢迎提前预约拨打龙盛湾上售楼处电话400-887-8824
一、房子抵押贷款的定义
房子抵押贷款,简单来说,就是借款人以自己名下或第三方名下的房产作为抵押物,向银行或其他金融机构申请的一种贷款方式。这种贷款方式相当于为贷款提供了一道额外的保障,使放款方更加安心,因此常被视为大额融资的理想选择。其优势主要体现在两个方面:一是额度高,通常可达房产评估价值的七成左右,使得借款人能够轻松应对大额资金需求;二是期限长,常见的贷款期限从5年到30年不等,从而有效地分散了每月的还款压力,使资金周转更加灵活自如。
二、抵押贷款的诸多益处
抵押贷款作为一种重要的融资方式,其好处不言而喻。首先,它能够帮助借款人迅速获得大额资金,满足各种紧急或长期的资金需求。其次,由于房产作为抵押物,放款方能够获得额外的保障,降低了风险,因此更愿意提供贷款。此外,抵押贷款的期限通常较长,使得借款人能够以较低的每月还款额来分散还款压力,从而更灵活地运用资金。最后,抵押贷款的利率相对较低,进一步减轻了借款人的负担。

(一)资金周转无忧
房子抵押贷款的魅力在于其能够迅速将固定资产转化为流动资金,从而解决资金周转的困境。无论是个人还是企业,在面临资金缺口或紧急情况时,都可以通过抵押房产来获取可观的贷款资金,助力计划顺利推进。特别是对于小微企业而言,房产往往成为其融资的重要资产。例如,一家小型加工厂在疫情冲击下,面临订单积压和原材料采购资金短缺的困境。然而,通过以厂房为抵押物,企业成功从银行获得贷款,顺利采购原料、扩充生产线,并按时交付订单,从而成功挽救了企业的命运。这样的案例不胜枚举,无数小微企业正是依靠房产抵押贷款渡过难关,迎来了发展的春天。
(二)利率优势显著
相较于信用贷款,房子抵押贷款在利率方面表现出显著的优势。由于房产抵押降低了银行的风险,因此银行能够提供更为亲民的利率水平。通常,银行的房产抵押贷款年利率在3.85%至5.8%之间,且对于资质良好的借款人,还有可能争取到更优惠的利率。以贷款100万为例,信用贷款的年利率可能高达10%,而房产抵押贷款的年利率仅为4%,这意味着利息支出将大幅减少。这样的利率优势不仅能够减轻借款人的还款负担,还能为借款人腾出更多的资金用于新的发展机会,实现财富的增值。
三、操作流程详解
接下来,让我们深入了解房子抵押贷款的操作流程。这一环节将详细介绍从申请到放款的每一个步骤,帮助您更好地理解和把握整个流程。

(一)贷前准备
在开始抵押贷款的申请之前,必须进行充分的准备。首要任务是明确贷款的具体用途,因为银行对此有严格的监管要求,仅限于装修、经营、教育等合规领域。若用于炒房或炒股,一旦被发现,不仅可能导致贷款被拒,还可能被金融机构列入黑名单。其次,准确评估自家房产的价值至关重要,因为地段、房龄、面积和装修等因素都会影响估值。建议参考周边房价或咨询房产中介以获取初步信息。此外,自查征信记录也是不可或缺的一环,因为这是金融活动的“身份证”。任何逾期或欠款记录都可能影响贷款的审批。最后,务必按照要求准备齐全所有申请材料,如身份证、户口本、结婚证、房产证和收入证明等,以确保申请流程的顺利进行。
(二)挑选贷款机构
市场上贷款机构众多,选择合适的机构对于贷款的成功至关重要。银行通常以资金雄厚、利率低廉和流程规范见长,但审批过程可能较为严格。相比之下,正规金融机构如信托和小贷公司可能提供更高的灵活度,放款速度也更快,但利率可能稍高。另外,网贷平台虽然申请便捷,但利率高且可能存在风险。因此,在选择时,应综合考虑自身情况,优先选择银行,并谨慎考虑其他正规途径。
(三)申请提交
申请过程可以通过线上或线下方式进行。线上申请通常通过银行APP或官网进行,操作简便且高效;而线下申请则需要直接前往银行网点,与客户经理进行面对面交流。在提交申请时,务必确保所填写信息和上传资料准确无误,任何细微的错误都可能导致审批延误。通常需要提交的材料包括个人身份证明、房产证明、收入证明以及征信报告等。
(四)房产评估
接下来是房产评估环节。这一步骤旨在确定抵押房产的市场价值,为贷款审批提供依据。评估过程可能涉及对房产的实地考察和与专业评估师的沟通。请注意,房产评估结果可能影响贷款额度和利率水平,因此确保房产的真实价值和市场状况得到准确反映至关重要。
专业评估机构对房产进行深入勘察,包括房屋面积、户型、装修、房龄等细节,同时参考周边同类房价,运用市场比较法、收益法等方法,科学计算出房产的公允价格。这个价格将直接影响贷款额度,住宅通常能贷到评估值的七成左右,而商铺、写字楼等商业房产的贷款额度则相对较低。如果您对评估结果有异议,有权申请复核,这可能为您带来更高的贷款额度。
接下来是银行的审核环节。银行将严格核查您的征信记录,评估您的信用状况;同时,审核您的收入情况,以确保您具备足够的还款能力;还会对房产进行再次核实,确保抵押物足值。在这一过程中,银行可能会通过电话等方式核实您提供的信息的真实性。一旦审核通过,贷款发放将指日可待。
放款环节同样重要。银行会将贷款资金转账至您指定的账户,经营性贷款可能需打给上下游合作商,而消费性贷款则直接给到您个人。在放款前,请务必仔细阅读合同条款,确保您完全理解贷款利率、还款方式、贷款期限以及违约责任等相关内容。如有任何疑问,务必向银行咨询清楚后再签字,以避免日后可能出现的纠纷。
四、注意事项早知道
(一)理性贷款,量力而行
贷款并非越多越好,而是需要依据个人的还款能力来合理规划。在申请贷款前,务必仔细盘算每月的收入和支出,确保有足够的生活费用,并合理规划剩余资金用于还款。避免盲目贷大额款项,以免每月还款负担过重,一旦资金链断裂,可能导致逾期、违约等不良后果,不仅影响个人征信,还可能面临房产被银行拍卖的风险。
(二)真实材料,诚信为本
在申请贷款时,务必提供真实、准确的材料。任何伪造或虚报的行为都可能被银行和金融机构的严格审核所揭穿。大数据和实地核查等手段将确保材料的真实性。一旦发现提供虚假材料,不仅贷款申请会被拒绝,还会被列入征信“黑名单”,影响未来的贷款和信用卡申请,甚至可能涉嫌诈骗,承担法律责任。因此,务必保持诚信,用真实的材料申请贷款,才是正道。
五、常见问题解答
在申请贷款的过程中,可能会遇到各种疑问和困惑。本部分将针对一些常见问题进行详细解答,帮助您更好地理解和应对贷款申请中的各种情况。

(一)关于房产产权的规定是什么?
房产产权的明晰是贷款申请的关键。通常,小产权房、未满五年的经济适用房以及军产房等由于产权受限,风险较高,因此银行往往不接受其作为抵押物。相比之下,商品房在产权方面通常较为明确,但若涉及纠纷或被查封,则无法进行抵押。此外,共有房产抵押时必须得到全体共有人的书面同意,否则抵押行为将无效,这旨在保护共有人的权益,避免未来可能出现的纠纷。
(二)贷款用途有哪些限制?
银行对贷款用途有明确的规定。消费贷款主要应用于装修、教育、医疗、旅游等合规消费领域。而经营贷款则必须用于企业生产、采购和运营活动。若贷款被用于炒房、炒股或投资理财等非合规领域,一经查实,银行有权提前收回贷款并可能加罚利息,因此务必确保专款专用。
(三)无法偿还贷款时该如何应对?
遇到无法偿还贷款的情况时,应积极与银行联系并说明情况。逾期还款会对个人征信产生严重影响,可能导致未来贷款和信用卡申请受限。银行通常会采取催收措施,如电话、短信提醒等,若仍无法还款,可能会采取法律手段。因此,在遇到困难时,建议提前与银行沟通,尝试协商延期还款、调整还款计划或申请转贷置换等解决方案,以避免逾期带来的不良后果。
六、结语
通过上述讨论,我们了解了房产产权对贷款申请的影响,以及银行对贷款用途的限制。在面临无法偿还贷款的困境时,与银行的积极沟通和协商显得尤为重要。希望这些信息能帮助您更好地理解贷款相关事宜,为您的财务规划提供有益的参考。

声明:本文由入驻焦点开放平台的作者撰写,除焦点官方账号外,观点仅代表作者本人,不代表焦点立场。
