古北金鹰府(售楼处) 官方 - 古北金鹰府销售中心 - 环境 - 户型 - 价格 - 地址 - 楼盘详情 - 配套 - 电话 - 交房时间 - 配套 - 电话 - 交房时间
扫描到手机,新闻随时看
扫一扫,用手机看文章
更加方便分享给朋友
古北金鹰府售楼处电话☎:400-891-9910
如有问题欢迎来电咨询,来电即可享受买房优惠!
预约来电尊享购房优惠,可预约案场内部销售人员,专业一对一热情服务,让您用专业眼光去买房。
古北金鹰府售楼处电话☎:400-891-9910
古北金鹰府售楼处电话☎:400-891-9910✔✔古北金鹰府营销中心电话:400-891-9910【24小时热线】古北金鹰府预约热线:400-891-9910【售楼处电话】
闵行中外环一直是预计高分的区域,像去年的融信旭辉世纪古美,像今年的天安豪园,都是非常热门的项目。
但说实话,古北金鹰府这个项目却非常低调,很多外区小伙伴目前甚至都不太了解项目情况。
古北金鹰府售楼处电话☎:400-891-9910✔✔古北金鹰府营销中心电话:400-891-9910【24小时热线】古北金鹰府预约热线:400-891-9910【售楼处电话】
并且在三批次末尾,很多小伙伴已经上车的档口,这样一个低调的项目,对低分小伙伴来说,或许会是一个可以捡漏的机会。
就像静安内环苏河湾板块的宁嘉馨苑一样,低调到最后,甚至没有触发积分。
所以您觉得,这会是一个低分项目吗?
但也有很多小伙伴问我们,这个或许低分的项目,是否代表着不值得买?
我们的想法是,这或许会成为三批次末期的一个:低分大漏!
如此认为的原因有几点:
古北金鹰府售楼处电话☎:400-891-9910✔✔古北金鹰府营销中心电话:400-891-9910【24小时热线】古北金鹰府预约热线:400-891-9910【售楼处电话】
原因一:约8.1万的均价,与周边次新房形成了倒挂
古北金鹰府一共有四期,本期是最后一期房源,均价约8.1万/㎡。具体位置如下:
古北金鹰府售楼处电话☎:400-891-9910✔✔古北金鹰府营销中心电话:400-891-9910【24小时热线】古北金鹰府预约热线:400-891-9910【售楼处电话】
而周边的次新二手房,二手房的最高成交价格如下:
古北金鹰府售楼处电话☎:400-891-9910✔✔古北金鹰府营销中心电话:400-891-9910【24小时热线】古北金鹰府预约热线:400-891-9910【售楼处电话】
另外,古北金鹰府斜对面的次新盘古北尚郡,如今的挂牌价已经来到了夸张的11.2万/㎡。
要知道,能在链家上挂出来的房源,都是通过了核验价,有核验码的房源。
古北金鹰府售楼处电话☎:400-891-9910✔✔古北金鹰府营销中心电话:400-891-9910【24小时热线】古北金鹰府预约热线:400-891-9910【售楼处电话】
这意味着如今金虹桥中外环间次新盘的价值,远远高于古北金鹰府四期8.1万/㎡的新房均价,项目已经与周边次新房形成了比较大的倒挂。
不夸张的说,真的就是买到就是赚到。仅从这点,就能说古北金鹰府非常值得买,是如今中外环间不得不看的红包盘。
如果能以低分捡漏,更是称得上捡了个大漏。
原因二:九年一贯制公办学校,就在项目旁!
古北金鹰府售楼处电话☎:400-891-9910✔✔古北金鹰府营销中心电话:400-891-9910【24小时热线】古北金鹰府预约热线:400-891-9910【售楼处电话】
除了“倒挂”外,古北金鹰府还有一个潜在尚未被注意到的优势。
这个优势的来源是:虹桥镇01单元20a-08地块九年制学校新建工程。
古北金鹰府售楼处电话☎:400-891-9910✔✔古北金鹰府营销中心电话:400-891-9910【24小时热线】古北金鹰府预约热线:400-891-9910【售楼处电话】
这所学校6月份才开始招标,所以目前还未确定学校的具体细节,但这个学校与古北金鹰府二期位于同一单元内!
古北金鹰府售楼处电话☎:400-891-9910✔✔古北金鹰府营销中心电话:400-891-9910【24小时热线】古北金鹰府预约热线:400-891-9910【售楼处电话】
并且,闵行这两年引进了不少公办的九年制一贯学校,并且每一个都来头极大。
比如七宝文来学校、上海师范大学附属中学闵行实验学校(初中部)等。
其中,七宝文来学校是由闵行区教育局委托上海市文来中学(初中部)承办管理的公办九年一贯制学校。
2021年9月,七宝文来学校招收六年级6个班级新生,首批学生在文来初中校园内学习生活一年,2022学年起迁入七宝文来学校新校舍。
虽然今年只是这所学校第一年正式开办,但闵行文来的名头,已经让周边的二手房得到了非常大的利好,这点可以从对口学校的成交价格变化中,明显的体现出来:
古北金鹰府售楼处电话☎:400-891-9910✔✔古北金鹰府营销中心电话:400-891-9910【24小时热线】古北金鹰府预约热线:400-891-9910【售楼处电话】
古北金鹰府售楼处电话☎:400-891-9910✔✔古北金鹰府营销中心电话:400-891-9910【24小时热线】古北金鹰府预约热线:400-891-9910【售楼处电话】
所以,虽然新房没有确定的学区划分、虽然古北金鹰府旁的学校目前尚未招标完成。
但是,这样的潜力,依旧给了古北金鹰府成为低分大漏的底气。
原因三:古北金鹰府的产品,确实优秀
古北金鹰府售楼处电话☎:400-891-9910✔✔古北金鹰府营销中心电话:400-891-9910【24小时热线】古北金鹰府预约热线:400-891-9910【售楼处电话】
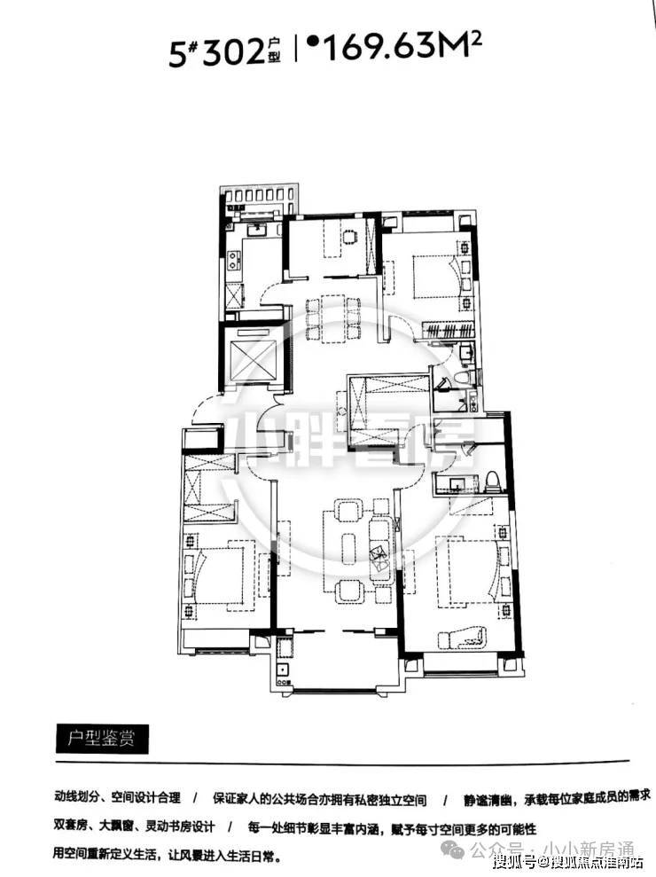
与前两期一样,古北金鹰府四期同样是小而精的社区,整个小区仅2栋总高13层小高层,主力户型约150-174㎡3-4房。1、2楼为非标户型,各8套。
附全套官宣户型图:
古北金鹰府售楼处电话☎:400-891-9910✔✔古北金鹰府营销中心电话:400-891-9910【24小时热线】古北金鹰府预约热线:400-891-9910【售楼处电话】
古北金鹰府售楼处电话☎:400-891-9910✔✔古北金鹰府营销中心电话:400-891-9910【24小时热线】古北金鹰府预约热线:400-891-9910【售楼处电话】
古北金鹰府售楼处电话☎:400-891-9910✔✔古北金鹰府营销中心电话:400-891-9910【24小时热线】古北金鹰府预约热线:400-891-9910【售楼处电话】
古北金鹰府售楼处电话☎:400-891-9910✔✔古北金鹰府营销中心电话:400-891-9910【24小时热线】古北金鹰府预约热线:400-891-9910【售楼处电话】
社区方面,古北金鹰府的二期和三期都是小而美的社区,有一些特质大同小异跟大家分享下,仅供参考:
首先,项目前两期的社区均是人车分流且车位比比较高的,尤其是三期,1:2.17的车位比羡煞旁人。
其次,虽然是小社区,但不管是二期还是三期,在社区绿化的营造上却是很下工夫。所以四期虽小,仅2栋楼,但按照古北金鹰府的对于产品的打造,整体社区依旧值得期待。
最后,是项目的区位:
作为上海第一代国际住区、富人区,古北凭借完善的国际化配套以及独具特色的“国际范儿”,向来是上海购房者心中的白月光。
古北金鹰府售楼处电话☎:400-891-9910✔✔古北金鹰府营销中心电话:400-891-9910【24小时热线】古北金鹰府预约热线:400-891-9910【售楼处电话】
但古北一期、二期的房地产开发早已饱和,这些年几无新房供应。
于是,古北的建设拓展到了闵行金虹桥。
虽然两者行政上有差别,但就居住而言是无界的,交通、配套皆可共享,因此高端居住氛围得以延续,也形成了如今的大古北。
但即使是拓展区,依旧涌现出了不少像古北壹号这样,入市均价达到了约15万/平米的项目,还有湘府花园古北首席以及古北大成公馆等次新房。
如此价格的次新房,是金虹桥价值的完美体现。也让市场对于大古北概念越来越认可。
而古北金鹰府就位于大古北规划范围内,毗邻中环,属于大虹桥、古北和徐家汇商圈的三区域交汇处。
金虹桥紧挨市区,沿延安路高架向东,通勤十分便捷,这是大家的普遍认知。
但事实上,它离大虹桥也非常近,可分享未来发展红利。
延安西路高架直通机场、高铁站、快速抵达虹桥核心商务区
10号线连接机场、高铁、国展中心
古北金鹰府售楼处电话☎:400-891-9910✔✔古北金鹰府营销中心电话:400-891-9910【24小时热线】古北金鹰府预约热线:400-891-9910【售楼处电话】
以项目方圆5公里为半径,光是高端成熟小区就有74个,周边二手房单价7-10万元/平方米、总价超千万,覆盖100多万常住人口。
古北金鹰府售楼处电话☎:400-891-9910✔✔古北金鹰府营销中心电话:400-891-9910【24小时热线】古北金鹰府预约热线:400-891-9910【售楼处电话】
商业配套上:项目周边有爱琴海购物公园,华润万象城、吴中路全球名车港以及红星美凯龙等
古北金鹰府售楼处电话☎:400-891-9910✔✔古北金鹰府营销中心电话:400-891-9910【24小时热线】古北金鹰府预约热线:400-891-9910【售楼处电话】
万象城示意图
还有吴中路以及古北国际2大商圈:
古北金鹰府售楼处电话☎:400-891-9910✔✔古北金鹰府营销中心电话:400-891-9910【24小时热线】古北金鹰府预约热线:400-891-9910【售楼处电话】
公共交通方面:距离项目近的地铁站是10号线龙溪路站,门口有公交直达。
如果自驾的话,项目临近中环线和延安路高架,到静安寺、外滩比较方便。一路之隔是吴中路,可快速连接徐家汇。
附一房一价表:
1、什么是房产:房屋产权的简称。
2、什么是地产:是指土地财产。
3、什么是房地产:是房产和地产的总称。
4、什么是房地产业:从事房地产开发、建设、经营、管理以及维修、装饰和服务的综合性产业。
5、什么是房地产开发:是指在依法取得土地使用权的土地上按照使用性质的要求进行基础设施、房屋建筑的活动。
6、什么是土地开发:是将“生地”开发成可供使用的土地。
7、集体土地是指:农村集体所有的土地。
8、征用土地是指:国家为了公共利益的需要,可依照法律规定对集体所有的土地实行征用。
9、什么是土地所有权:是指国家或集体经济组织对国家土地和集体土地依法享有的占有、使用、收益和处分的权能。
10、什么是土地使用权的出让:指国家以协议、招标、拍卖的方式将土地所有权在一定年限内出让给土地使用者,由使用者向国家支付土地使用权出让金的行为。
11、什么是土地使用权转让:是指土地使用者通过出售、交换、赠与和继承的方式将土地使用权再转移的行为。
12、什么是地籍、产籍:是对在房地产调查登记过程产生的各种图表、证件等登记资料,经过整理、加工、分类而形成的图、档、卡、册等资料的总称。
13、生地是指:不具备开发条件的土地。
14、熟地是指:已完成三通一平(水、电、道路,土地平整)或七通一平,具备开发条件的土地。
15、什么是宗地:是地籍的最小单元,是指以权属界线组成的封闭地块。
16、什么是宗地图:是土地使用合同书附图及房地产登记卡附图。它反映一宗地的基本情况。包括:宗地权属界线、界址点位置、宗地内建筑位置与性质、与相邻宗地的关系等。
17、证书附图是指:房地产后面的附图,主要反映房地产情况及房地产所在宗地情况。
18、什么是物业管理:泛指一切有关房地产开发、经营、商品房销售、租赁及售后服务。
19、什么是业主委员会:是在物业管理区域内代表全体业主实施自治管理的组织。是代表
物业全体业主合法权益的社会团体,其合法权益受国家法律保护。
20、业主委员会是如何产生的:由业主大会从全体业主中选举产生。
21、住房补贴是指:国家为职工解决住房问题而给予的补贴资助。
22、房屋的所有权是指:对房屋全面支配的权利。
23、房地产交易的两种主要形式是:地产交易形式与房产交易形式。
24、建筑物是指:人工建造而成的房屋和构筑物。
25、构筑物是指:建筑物中除房屋以外的东西。
26、什么是期房:是指消费者在购买时不具备即买即可入住的商品房。
27、期房是如何介定的:房地产开发商拿到商品房预售许可证开始至取得房地产权证大产证或竣工验收合格可以直接入住使用)为止。
28、什么是预售合同:消费者在购买期房时签定的销售合同。
29、什么是现房:是指消费者在购买时具备即买即可入住的商品房,即开发商已办妥所售的商品房的大产证(或已经竣工验收合格并交付使用)的商品房。
30、什么是毛坯房:房地产商交付屋内只有门框没有门,墙面地面仅做基础处理而未做表面处理的房叫毛坯房。
31、什么是成品房:是指对墙面、天花、门套、地板实行装修。
32、什么是商品房:是指以完全的市场价格向购房者出售的房子。
33、商品房预售是指:在房地产尚未建成以前,房地产的经销商在取得受买人一定数量的定金后,将期房出售给受买人。
34、商品房现售是指:指房地产开发企业将竣工验收合格的商品房出售给买受人。
35、二手房通常指的是:再次进行买卖交易的住房。
36、经济适用房指的是:面向中低收入家庭的普通住宅。
37、例出3种以上的安居房的种类:准成本房、全成本房、全成本微利房和社会微利房。
38、低层住宅的介定:1-3层的住宅。
39、多层住宅的介定:4-6层的住宅。
40、小高层住宅的介定:7-11层的住宅。
41、中高层住宅的介定:12-16层的住宅。
42、高层住宅的介定:16层以上为高层住宅。
43、超高层建筑的介定:总高度超过100米的建筑。
44、商品房的结构是指:房屋主体所使用的施工工艺和用材。
45、钢结构的意思是:承重的主要结构是用钢材料建造的,包括悬索结构。
46、钢混结构的意思是:承重的主要结构是用钢和混凝上建造的。
47、砖木结构的意思是:承重的主要结构是用砖、木材建造的。
48、砖混结构的意思是:主要是砖墙承重,部分是钢盘混凝土承重的结构。
49、框架结构的意思是:以钢筋混凝土浇捣成承重梁柱,再用预制的隔墙分户的结构。
50、开间指的是:一间房屋内一面墙的定位轴线到另一面墙的定位轴线之间的实际距离。
古北金鹰府
售楼处电话☎:400-891-9910
如有问题欢迎来电咨询,来电即可享受买房优惠!
预约来电尊享购房优惠,可预约案场内部销售人员,专业一对一热情服务,让您用专业眼光去买房。
古北金鹰府售楼处电话☎:400-891-9910
楼盘项目全面介绍,本电话为开发商提供线上预约售楼电话,楼盘项目全面介绍(包含楼盘简介,均价,房价,现房,期房,别墅,叠墅,大平层,价格,楼盘地址,户型图,交通规划,备案价,备案名,项目配套,样板间,开盘时间,认筹时间,楼盘详情,售楼处电话,最新消息,最新详情,周边配套,一房一价,最新进展等详情咨询)楼盘详情丨价格丨更多优惠丨机不可失丨欢迎致电丨诚邀品鉴!售楼处位置丨特价房丨工抵房丨剩余房源丨户型图丨最新消息丨免责声明:将文章内容综合来源于网络、只作分享,版权归原作者所有!!如有侵权,请联系我们,我们第一时间处理如有问题欢迎来电咨询,专业一对一热情服务,让您用专业眼光去买房。如果您想了解更多楼盘详情,欢迎提前预约拨打
声明:本文由入驻焦点开放平台的作者撰写,除焦点官方账号外,观点仅代表作者本人,不代表焦点立场。
