大华公园柏翠售楼处电话→大华公园柏翠售楼处电话→售楼处电话→首页网站→售楼处电话→户型价格→小区环境周边配套→交房时间→24小时热线电话
扫描到手机,新闻随时看
扫一扫,用手机看文章
更加方便分享给朋友
【大华公园柏翠】
上海宝山大华公园柏翠售楼处电话:400-8815-114(预约热线)
大华公园柏翠营销中心
服务热线:400-8815-114(已认证)
预约看房请提前联系案场销售
手握600-700万预算还能买到中环旁的新房吗?
针对这个问题而言,个人认为静安中环爆款「大华公园柏翠」无疑是优中之选!
它的地理优势明显,距离静安只有约400米、距离中环线直线约3km,同频享受静安的商业、医疗、文化等资源;品质方面能够比肩千万级奢宅的楼盘,价格却超香!
并且更重要的是,就在4月17日,项目收官房源也正式取证了!《房在上海》拿到了独家首发一房一价表!「大华·公园柏翠」6批次加推164套房源,均价65327元/㎡,建面约101-142㎡3-4房,火爆认购!
大宁之上 双轨交1/18号线
收官房源火爆认购中!
加推建面约101-142㎡3-4房
低密小高层+超大面宽“神”户型
四期建面约101㎡精装3房在售中
上海宝山大华公园柏翠
售楼处电话:400-8815-114(预约热线)
大华公园柏翠营销中心
服务热线:400-8815-114(已认证)
预约看房请提前联系案场销售






上海宝山大华公园柏翠
售楼处电话:400-8815-114(预约热线)
大华公园柏翠营销中心
服务热线:400-8815-114(已认证)
预约看房请提前联系案场销售
Part01
静安400米、大宁下一站
南北高架旁距离中心城区最近的新房!
关于大华公园柏翠的地段,有几大关键词:
第一,南北高架+中环,大华公园柏翠串联起了上海更昂贵的置业地。
大华公园柏翠距离北中环直线约3km,通过南北高架几乎可以实现无缝衔接。
而如今整条北中环线上的房价相当昂贵,整体均价都在约11万+。但这些置业地距离大华公园柏翠不过是一脚油门的事情。
这是大华公园柏翠性价比和潜力的体现,也是未来业主出行的保障。
第二,静安400米,与大宁新房房价相差一半有余。
大华公园柏翠距离静安区只有约400米左右的直线距离,是整个宝山距离中心城区最近的新房。
同时,项目距离大宁的市北高新园区直线仅约2.5km。
一方面,这是地段价值的体现,尤其是在康宁路-万荣路、南北高架、1号线等三条超级大动脉的加持下。
大宁的配套、产业几乎与大华公园柏翠共享。
另外一方面,在大宁在前不久出让的土地,其可售楼板价约8.6万/㎡,网上猜测这块宅地未来售价的声音很多,例如12万、14万甚至是16万。
但不管卖多少钱,这个大宁新房都比大华公园柏翠的价格高出一倍有余。
这意味着什么?
首先,上海新房的定价确实与所在区域有很大的关系,举个例子:
大华公园柏翠与大宁之间的关系,与宝山新江湾城与杨浦新江湾之间的关系很相似。
不同区,但几乎享受相同的配套、交通以及产业利好。
在新房定价时,宝山新房均价约7万/㎡、杨浦新江湾约10万+/㎡,这无可厚非。
但一旦步入二手,这两者之间的房价差距迅速拉近,因为在配套、交通、产业相近的情况下,产品力才是决定一切的根本。

示意图
而大华公园柏翠的产品力,有着不输任何对手的底气!一旦步入二手,这就是整个北中环的王者,拥有极强的未来潜力。
第三,四大顶级规划围绕下的“北中环真核心”,无限潜力。
除了出众的地段、配套、价格优势外,大华公园柏翠享受的利好和潜力,同样惊人。
一方面,大宁市北高新园区就在项目南侧,咫尺的距离。
这座园区对于北中环的意义,与张江对于浦东的意义是相同的,代表着更高阶、更高能级的产业规模和能级。
更重要的是,市北高新园区的重点项目正在不断加码!
在上海建设“科创中心”的大目标下,上海市大数据中心已带头落址市北高新。这里将会是上海数据资源最丰富、数据类企业最集中、数据应用场景最广泛的区域。
大宁北部的投资强度和经济密度都会进一步加强。
另外一方面,宝山其实从去年南北转型开始,就展现出了完全不同以往的发展势头来。
大华公园柏翠以西的南大智慧城、以东的吴淞创新城,在规划中都是科创产业的主阵地建设的两大核心承载区,建设速度肉眼可见。
同时,今年宝山公示了《吴淞江-蕰藻浜沿线地区专项规划》。
就在大华公园柏翠北侧,将规划整体打造一条蓝绿交织、清新明亮、连湖串链、通江达海和水韵特色鲜明、创新功能集聚、滨水活力彰显的上海大都市江南水廊发展带,体现中华风范、江南风光、创新风尚。

图片来源网络
以大华公园柏翠为核心,周边聚集了宝山最重要的科创产业、资源能级。
同时,项目又是整个北中环距离静安、大宁,以及上海主动脉南北高架更近的项目。
示意图
可以预想到,未来以项目为中心,周边未来聚集的高薪产业、高知人口以及城市菁英不计其数。
而大华公园柏翠遥遥领先的产品力,未来将吸引这些改善置业客户的不断追逐,直至将其顶上北境之王的价格和地位。
这样的潜力和未来预期,是其他单核发展的板块所无法比拟的。
上海宝山大华公园柏翠
售楼处电话:400-8815-114(预约热线)
大华公园柏翠营销中心
服务热线:400-8815-114(已认证)
预约看房请提前联系案场销售
Part02
约80米门头、星级酒店大堂
内外双公园,比肩千万级豪宅的公区
大华公园柏翠西侧是60多万方的规划绿地,接近1.5个长风公园大小。
而项目是一个容积率约2.2的全17F以下低密小高层社区。
在叠加项目距离静安直线约400米的地段,这几乎就是一个位于城市中央、生长在森林里的低密大居。
同时,大华公园城市一二三期均已交付入住,整个大社区的居住环境、氛围已经非常浓郁。大华公园柏翠这个王冠之上的作品一旦交付,即刻就能享受生活。
项目在归家动线上特别打造了“三进式”归家礼序,并且每一层归家礼序的打造,都是按照千万级豪宅才有的规格。
一进:宽约80米、高约6米的气派大门。
并且在选材上选用来自吴哥窟的进口石材,尽显静谧奢华的气质。
主入口利用108片伯爵灰大理石打造12座景墙单元,辅以香槟色不锈钢修饰。
整体迎宾空间耗材约1800片大理石,这样的大门规格、石材用料以及用心程度,无不体现出大华公园柏翠对标豪宅的决心。
社区实景图
二进:围合庭院。
庭院由4处归家通道、8扇造型屏风和1座水景雕塑的一体化设计打造而成,由此开始拉开了低密森氧居住生活的大幕,这是市面上其他新房所没有的高规格。
用料上,庭院两侧设计师选用大理石与镂空铝板虚实结合,利用2层柏翠造型铝线条错拼而成,更显精致;
这样的设计和用料,在600万级的新房市场中,简直是降维打击。
社区实景图
三进:宅门。
归家大堂能给业主更尊贵归家体验的同时,也能作为柏翠业主专属的城市会客厅。
整座大堂外墙采用伯爵灰大理石满铺高墙,电动门镶嵌宝格绿奢石,实现无感通行;
社区实景图
内墙材料选用来自保加利亚的维纳多石材,整块大理石圆弧拉槽,这是顶级豪宅才有的用料和细节。
社区实景图
大堂接待台选用产自意大利山脉的宝格绿奢石一体打造而成。
社区实景图
这些用料和最终呈现出来的浓郁海派氛围,是对大华集团实力和匠心最好的体现。
丰富的架空层空间,足不出楼就能享受生活。
社区内还在部分楼栋内设置了架空层泛会所空间,用于亲子陪伴或是朋友会面。
上海宝山大华公园柏翠
售楼处电话:400-8815-114(预约热线)
大华公园柏翠营销中心
服务热线:400-8815-114(已认证)
预约看房请提前联系案场销售
社区实景图
对于有孩子的家长而言,足不出户就能让孩子有更安全、更具乐趣的成长空间,这是多少人的梦想。
社区还拥有极高的审美和艺术表达能力。
对于很多新房而言,公区的用料可能就代表一切,因为这个只要“肯花钱”,很容易就能达成。
真正考验开发商能力和匠心的,是审美和艺术表达能力。
而大华公园柏翠在这一点上,值得全上海的豪宅学习和模仿。
首先,大华公园柏翠利用12级叠水、2座树池、9步水上汀步,运用六重造景的手法打造近500平的中央水景!
用一颗柏翠树型的构筑物形成独具艺术气质的“大树咖啡厅”,不仅拔高了社区的整体审美艺术和品味,也可供业主闲时聊天赏景、遛宠遛娃。
社区实景图
并且将中心场地抬高1米,在水系池底通铺1300多片的PRADA绿石(仿石砖)、精选斜飘乌桕、造型紫薇等名贵树种...
不难看出,大华公园柏翠不仅卷用料,更在审美艺术、生活方式上接轨国际前沿,拔升了高端住宅的品味和调性,整体的公区用料更是媲美高端豪宅!
就比如前不久刚刚举办的大树生活节&光年社的社群启幕活动。
现场不仅有巨型圣诞树,大宁久光同款小食屋,还飘下了2024年上海的“第一场雪”。现场的圣诞氛围满满,人气火热。
上海宝山大华公园柏翠
售楼处电话:400-8815-114(预约热线)
大华公园柏翠营销中心
服务热线:400-8815-114(已认证)
预约看房请提前联系案场销售
Part03
中环之上、大宁之上
上海距离静安更近的新房
2024年静安的新房供应主要集中在西藏北路和江宁路板块,均价都是12万/㎡起步。大宁已经许久没有新房供应,但是中外环的静安府、仁恒静安世纪、融创静安映等挂牌价都来到11-13万/㎡。
为什么说「大华·公园柏翠」的地理位置绝佳?
在地段上,项目有三个标签:
项目距离静安直线约400米、地铁3站大宁核心区!
项目距离中环线约3km!
繁华配套!
我们来解析以上这三个标签。
第一,距离静安直线约400米、地铁3站大宁核心意味着什么?
一方面,这意味着距离静安、黄浦更近,直接影响上班通勤便捷性,即使你将来换工作,只要还占位外环内,不管单位在哪里,都能从容应对。
要知道,如今置业肉眼可见的边缘化,主力供应已到外环外5-10公里,如今却还能碰到大华公园柏翠,甚是难得。
尤其对于工作在大宁的小伙伴来说,1号线3站就是上海马戏城,大宁核心区。
地理位置决定了享受到的资源浓度,大宁的繁华咫尺可得。
目前的大宁已是大家公认的北上海新的商业、产业中心。
约56万平大宁音乐广场、约25万平大宁国际商业广场、约30万平大宁久光百货,静安大融城等商场一路连缀。

这个出行便捷度,在同能级的板块中,几乎是属于一梯队。
另外一方面,这意味着大华公园柏翠有出众的未来前景。
举个例子:整个浦东外环外,唐镇无疑是王者级的。约10万+的二手房房价、约7万+的新房价格,板块价值可见一斑。
而造成这种原因也很简单:唐镇距离张江仅3站。
于是,唐镇就成为了张江精英们外溢的首站。而围绕着这些精英,唐镇落地了大量高能级的教育、商业、生态等资源。
这样的良性循环,让这个板块的价值水涨船高,甚至突破环线价格限制。
同样道理,大华公园柏翠距离静安直线约400米、1号线3站即大宁核心商圈,是整个上海距离静安最近的新房。
对于工作在大宁、苏河湾、静安寺、南京西路、人民广场、虹口等区域的购房者来说,大华公园柏翠就是地段更好的新房。
并且相比静安、大宁的约1500万级置业门槛,大华公园柏翠的价格几乎是差了一半多,这样的性价比谁能抵挡?
未来当大水漫灌下,大华公园柏翠的项目价值、配套能级、居住氛围和圈层,都会有大提升。
第二,项目距离中环线约3km!
与大华公园柏翠同纬度的板块,新房均价起码约8.58万/㎡起,单价约10万+的区域比比皆是。
第三,已经成熟的繁华配套!
商业配套方面,项目周边从生活配套到高端商场到大型商超,应有尽有。
· 地铁3站直达:大宁久光中心、大宁音乐广场、大宁国际商业广场等
· 周边约900M范围:共康商圈、社区邻里中心商业广场、场北集贸市场、北斗星广场
· 直线距离约1.5KM范围内:宝山万达广场、宝山购物中心等
· 直线距离约2.7KM:宝山日月光,多类型商业形态荟萃
上海宝山大华公园柏翠
售楼处电话:400-8815-114(预约热线)
大华公园柏翠营销中心
服务热线:400-8815-114(已认证)
预约看房请提前联系案场销售
教育方面,项目周边教育资源丰富,包括陈伯吹实验幼儿园(上海市示范幼儿园)、陈伯吹实验小学,华师大宝山实验学校等学校。
项目正南侧一墙之隔,还有九年一贯制公办学校在建设中。免责声明:以上教育资源整理仅代表楼盘与学校的距离,该房屋所在项目暂未划分学区,开发商不对项目交房后所属学区、学校做任何承诺。教育资源分配或学校/学区划分以及学校的具体招生规则等请以政府相关主管部门、教育机构公开的最新信息为准。
生态方面,项目坐拥五大公园:
约80万方伟岸绿境环抱,包括千亩绿境(约60万方绿化在侧),约3万方庙行公园、约4.2万方共和公园,约2.7万方三泉公园、约9.3万方彭浦四季公园等。
这样的生态能级,媲美“新江湾湿地公园、世纪公园、长风公园”等,拥享“自然生态+稀臻难寻”双重价值属性。
不管是从出行便捷度、未来潜力、现有配套还是同纬度的对比中,大华公园柏翠的地段都是更具竞争力的。光凭这一点,这个项目就已经足够有吸引力了。
但在产品力上,大华依旧给了我们足够的诚意和惊喜。
上海宝山大华公园柏翠
售楼处电话:400-8815-114(预约热线)
大华公园柏翠营销中心
服务热线:400-8815-114(已认证)
预约看房请提前联系案场销售
Part04
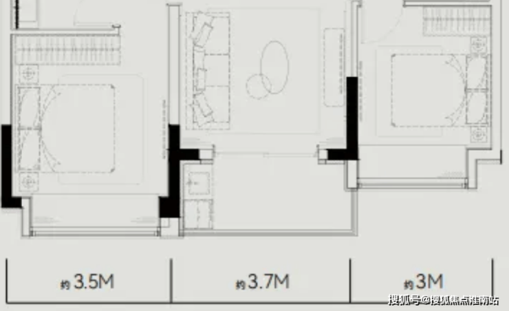
建面约101-142㎡神户型
一梯两户的无连廊飞机户型
项目整个社区由4栋16层、10栋17层小高层组成,是纯粹的低密小高层住宅。
一方面, 小高层在近期的上海市场中非常稀缺,尤其是在中环线上的位置上,小高层住宅凤毛麟角。
但另外一方面,小高层天然的高得房率、私密性和居住舒适度也保证了这个产品的受欢迎程度。
换句话说,大华公园柏翠的产品力,从天赋上就已经与其他项目拉开了差距。
其次,产品上:项目建面约101-124㎡房源一梯两户、建面约142㎡两梯两户。
而这意味着,大部分的房源均是无连廊的设计,将带来更高的采光通透度、更好的通风以及更高的得房率。
再加上项目飞机户型的设计,室内几乎0空间浪费,即使是小户型也有超高的尺度感。
具体来看下:
建面约101㎡的三房两厅两卫
建面约101㎡3房2卫户型,非常标准的飞机户型。
三开间朝南整体约11.5米的面宽。什么概念呢?
上海这些年其实也有不少三开间朝南的飞机户型,但都不如了大华公园柏翠。
例如以下这个:总价约千万左右,建面约104㎡的房源。
这个项目凭借着出色的户型,获得了不少高净值人群的青睐,但他约104㎡的户型南向面宽只有10.2米,比大华公园柏翠约101㎡的户型还小了约1.3米。
别小看这约1.3米,整体的尺度感完全不同。

更重要的是,项目是大横厅+超大阳台的设计。撑起气场的同时,也能为家庭带来更多的生活想象。
另外,南北通透+3房5飘窗的设计,保证了户型的通风以及视野。
超大的U型厨房十分宽绰,让切配煮更加合理从容。
细节方面,次卫的干湿分离也能保证室内的干燥,入户的玄关、主卧的套房,保证了主人的私密空间。
这个户型拥有一个“好户型”的所有特质,上车必看的首选户型!
建面约142㎡的四房两厅两卫
真正一步到位的改善型4房产品,大横厅的设计,
四开间朝南+大横厅,约15.4米的南向面宽堪比别墅。
大横厅也可以灵活运用在各种生活场景,例如作为妈妈的瑜伽室、孩子的游乐天地等,都是很好的选择。
这样的户型,能满足各个家庭成员的需求!
最后,还有一点:项目将标配国际家装大牌、臻选精奢材质、把关精细施工,悉心规划4大定制系统、100+精工细节,精琢非凡空间。
来看样板间实拍
注:以下为项目概念展示间实景图,非交付标准
大宁之上 双轨交1/18号线
低密小高层+超大面宽“神”户型
四期建面约101㎡精装3房在售中
均价62480元/㎡
价格比前三期更低,性价比更高!
上海宝山大华公园柏翠售楼处电话:400-8815-114(预约热线)
大华公园柏翠营销中心
服务热线:400-8815-114(已认证)
预约看房请提前联系案场销售
【大华公园柏翠】
——诚邀品鉴——
购房注意事项和流程
以下是购房的注意事项和流程,供您参考:
购房注意事项:
查看证件
购房前务必核实开发商的“五证一照”(《房地产开发企业资质证书》《国有土地使用权证》《建设工程规划许可证》《建筑工程施工许可证》《商品房预售许可证明》《企业法人营业执照》),确保项目合法合规。可通过售楼处公示或住建局官网查询。
实地考察
关注房屋实际面积、户型、朝向、采光、通风及周边环境(如交通、学校、医院、商业配套等)。
核实公摊面积、得房率、容积率等指标,避免被样板间误导。
了解小区规划、车位配比、物业服务质量及开发商口碑。
合同条款
仔细阅读购房合同,明确房屋价格、面积误差处理、交房时间、质量标准、违约责任等条款。
将开发商口头承诺(如赠送面积、配套设施等)以书面形式写入合同,避免纠纷。
警惕合同中的不公平条款,必要时咨询律师。
资金安全
所有购房款项(定金、首付、贷款等)必须存入《商品房预售许可证》上注明的预售资金监管账户,确保资金安全。
保留好付款凭证、收据等票据,作为后续办理房产证的依据。
贷款事宜
提前查询个人征信报告,确保信用良好,避免因征信问题导致贷款失败。
了解贷款政策、利率及还款能力,合理评估月供压力,建议月供不超过家庭月收入的30%。
收房验房
收房时查验“三书一证一表”(《住宅质量保证书》《住宅使用说明书》《建筑工程质量认定书》《房地产开发建设项目竣工综合验收合格证》《竣工验收备案表》)。
对房屋质量进行验收,如墙面、地面、水电、门窗等是否存在质量问题,如有问题及时要求开发商整改。
购房流程:
前期准备
确定购房预算、需求(如房屋类型、面积、位置等),了解当地购房政策。
通过房产网站、中介或实地考察筛选房源,对比不同楼盘的优缺点。
认购房源
选定房源后,与开发商签订《认购书》,缴纳定金(一般不超过总房款的20%)。
签订认购书前,可要求查看正式合同文本,确保条款无异议。
签订合同
在约定时间内签订《商品房买卖合同》,支付首付款。
合同签订后,开发商需在30日内进行网签备案,购房者可通过住建局官网查询备案状态。
贷款审批
如需贷款,向银行或公积金管理中心提交申请材料,银行审核通过后发放贷款。
贷款审批过程中,需配合银行提供相关资料,如收入证明、征信报告等。
房屋交付
开发商通知收房后,购房者进行验房,验收合格后办理入住手续,缴纳契税、维修基金等费用。
开发商协助购房者办理房产证,购房者需提供相关材料并缴纳相关税费。
产权登记
开发商完成房屋首次登记后,购房者办理产权转移登记,领取《不动产权证书》,至此购房流程完成。
购房过程中需保持谨慎,仔细核实各项信息,确保自身权益不受侵害。如有疑问,可咨询当地住建局、房管局或专业律师。
声明:本文由入驻焦点开放平台的作者撰写,除焦点官方账号外,观点仅代表作者本人,不代表焦点立场。
