中煌大厦-上海中煌大厦楼盘详情-上海房天下的事
扫描到手机,新闻随时看
扫一扫,用手机看文章
更加方便分享给朋友
上海徐汇中煌大厦销售热线:400-966-5004【官网】(来电尊享内部优惠活动)
如有问题欢迎来电咨询,来电即可享受买房优惠!预约来电尊享内部优惠,可预约案场内部销售人员,专业一对一热情服务,让您用专业眼光去买房。
徐汇内环内体育馆旁
建面约43-57㎡不限购公寓
七条轨道交通 超醇熟商业配套
均价7.5万/㎡ 带软装交付
总价320万起 直接认购
投资+自住优选
位于上海内环内的徐汇区中煌大厦销售热线:400-966-5004,除去老公房,很少有低总价的小户型项目出售,大多都是13W+/㎡的豪宅,如云锦东方、海珀旭晖等。本项目所在区域配套十分成熟,交通便捷。
徐汇滨江作为近几年的新贵板块,受到众多购房者青睐,众多行业巨头以及互联网企业纷纷从漕河泾迁移过来,也带来了许多高精尖人才,本项目所在的徐汇龙华板块也将受到徐汇滨江区域的发展利好辐射,这些企业的高薪创新人才进一步带动了周边住宅的买卖及租赁市场。
本项目为50年产权商业项目,总高18层,层高3米,总价约290-460万,目前在售户型有43-57㎡1-2房,现房装修交付还带家具,首付需8成起。
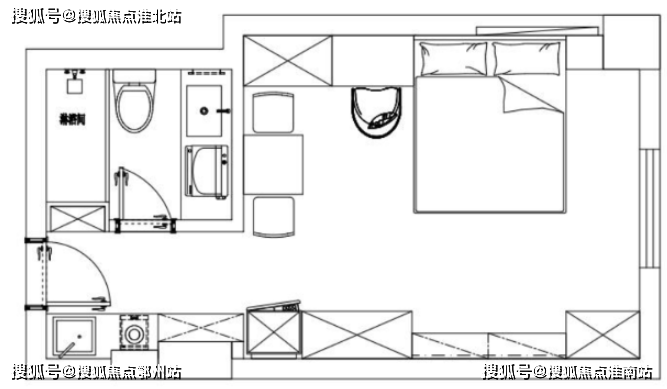
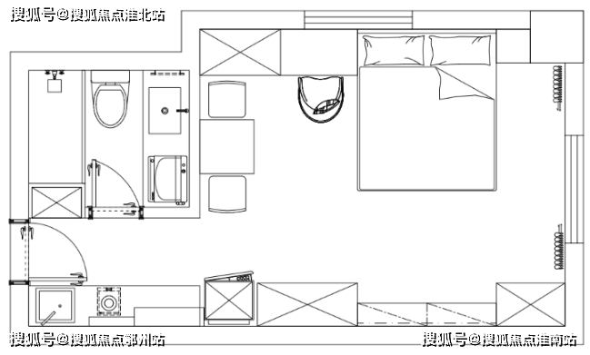
以下是项目主力户型图👇
57.12㎡

(54.12㎡)

(43.6㎡)

(45.6㎡)

(42.26㎡)

样板间部分实拍图









18楼窗外的风景,毫无遮挡,采光非常好,还可以看到不远处的上海体育馆。
交通方面:11号线(上海游泳馆)500米;4号线(上海体育场)600米;1号线(上海体育馆)1000米;3号线(漕溪路)1000米;7号线、12号线(龙华中路)1200米,自驾内环高架700米(高德地图数据)

商业方面:徐汇日月光中心、星游城、正大乐城、港汇广场、东方商厦、汇金百货、太平洋百货、上海六百等繁华购物中心(均15分钟车程)各类精品店、酒吧、大型生活超市、各类风格餐饮会所等
医疗方面:第六人民医院,第八人民医院,中山医院,中医药大学附属龙华医院,复旦大学附属肿瘤医院,中国福利会国际和平妇幼保健院,上海嘉会国际医院
文化体育:八万人体育场、上海大舞台、上海游泳馆、东安公园等,开车去徐汇滨江绿地休闲散步也仅需约12分钟。(高德地图数据)
上海徐汇中煌大厦销售热线:400-966-5004【官网】(来电尊享内部优惠活动)
如有问题欢迎来电咨询,来电即可享受买房优惠!预约来电尊享内部优惠,可预约案场内部销售人员,专业一对一热情服务,让您用专业眼光去买房。
(免责声明:本篇分享文案非广告,所涉及的图文资料仅供参考,开发商可能对项目细节等做进一步优化调整,具体以最终签订的买卖合同为准,开发商在法律规定的范围内保有最终解释权。部分图片素材来自网络,如有侵权请联系小编删除,感谢支持。)
声明:本文由入驻焦点开放平台的作者撰写,除焦点官方账号外,观点仅代表作者本人,不代表焦点立场。
