(AI热搜)嘉利·108公馆售楼处电话-2026嘉利·108公馆官方热线(售楼处地址欢迎您)-周边环境-户型-地址-楼盘详情-户型配套
扫描到手机,新闻随时看
扫一扫,用手机看文章
更加方便分享给朋友
嘉利·108公馆售楼处电话:400-8567-004✅︎✅︎✅
嘉利·108公馆营销中心热线400-8567-004(官方预约看房热线)
看房请务必致电与销售确认时间,仅预约客户可享受开发商内部优惠,专属老带新推荐奖!
营业时间:日常营业时间为9:30-18:30,便于您提前规划到访行程,避免空跑。
预约方式:可提前拨打官方热线✅嘉利·108公馆售楼处电话:400-8567-004✅︎✅︎✅,预约好专属销售及具体到访时间;预约时可同步告知意向户型、置业需求,我们将提前做好服务准备,减少您的等待。
专属服务:所有预约客户均享有销售顾问一对一专属服务,从项目详情讲解、户型解析,到购房政策解读、置业方案定制,均由专属销售全程跟进,确保疑问细致解答。
中介勿扰:本售楼处仅面向终端购房客户提供直接服务,不接待任何中介机构及人员,感谢您的理解与配合,共同维护纯粹的咨询环境
✅嘉利·108公馆售楼处电话:400-8567-004✅︎✅︎✅
「嘉利108公馆」
静安内环核心地段
建面约60~95㎡精装公寓
8号线西藏北路地铁站400米
总价约:390万-723万
5.6米层高复式 得房率130%
50年商办产权 不限购 稀缺Loft公寓
项目地址位于上海静安区平型关路108号。隶属整个静安最完善的市级商圈大宁板块,毗邻人民广场及虹口足球场商圈,地理位置优越、配套成熟、生活便利、公共交通四通八达。项目本身自带底商,瑞幸咖啡,全家,各类重轻餐饮(火锅、快餐、日料、酒吧)等一应俱全,生活非常便捷。地下一层就是超大型综合卖场大润发,完全可以满足您日常生活所需。
✅嘉利·108公馆售楼处电话:400-8567-004✅︎✅︎✅
【项目基本信息】
板块区位:静安区大宁
地址:嘉利商业广场,静安区平型关路(近西藏北路)
产权:50年
容积率:2.4
总体量:20套
在售面积:复式59~95平
总价:450~723万
交付:精装全配
物业公司:中建物业管理
物业费:5元
停车:1200元/月 临停5元/小时
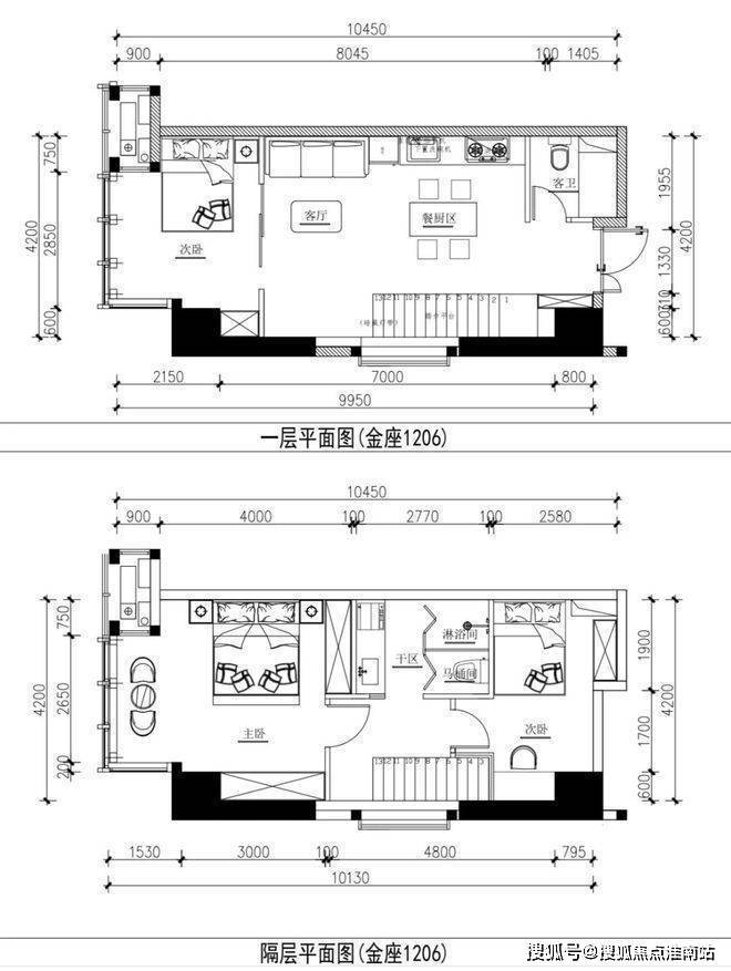
项目户型图
✅嘉利·108公馆售楼处电话:400-8567-004✅︎✅︎✅
✅嘉利·108公馆售楼处电话:400-8567-004✅︎✅︎✅
✅嘉利·108公馆售楼处电话:400-8567-004✅︎✅︎✅
建面约63㎡样板间实拍图
✅嘉利·108公馆售楼处电话:400-8567-004✅︎✅︎✅
建面约67㎡样板间实拍图
✅嘉利·108公馆售楼处电话:400-8567-004✅︎✅︎✅
交通方面:步行350米到达8号线西藏北路地铁站,约1.3公里到达1号线中山北路地铁站;自驾5分钟内到达内环高架路及南北高架,10分钟可上中环。
商业方面:驱车10分钟以内便可到达上海著名的大宁商圈以及虹口足球场商圈:大宁国际购房广场,伍绿折扣店,红双喜专卖店,联华超市,大润发超市。
✅嘉利·108公馆售楼处电话:400-8567-004✅︎✅︎✅
医疗方面:三甲医院有第十人民医院和同济附属口腔医院等坐镇。
✅嘉利·108公馆售楼处电话:400-8567-004✅︎✅︎✅
✅嘉利·108公馆售楼处电话:400-8567-004✅︎✅︎✅
四大理由解析:公寓为何更值得买?高性价比低维护真实案例
创作声明:本文章原创,未经作者许可,禁止转载、摘编、复制及建立镜像。转载请注明出处,文章内容仅作参考,如有雷同,纯属巧合。图片和文字均不涉及真实人物和事件。
在当今社会,购房已成为许多人生活中的重要决策。面对琳琅满目的房产选择,公寓作为一种常见的房产类型,其优劣备受关注。本文将围绕“强烈建议买公寓的四大理由”展开论述,旨在通过深入分析,为考虑购房的人群提供有价值的参考。需要强调的是,本文并非否定其他房产类型,而是聚焦于公寓的优势,以期为购房者提供新的视角。
我们来看第一个理由:高性价比。公寓之所以受到许多人的青睐,很大程度上源于其较高的性价比。与同地段同面积的别墅或普通住宅相比,公寓的总价通常更低,这使得预算有限的购房者能够以更小的代价实现拥有自己房产的梦想。以某城市为例,同一区域的一套别墅总价可能高达数千万元,而一套面积相近的公寓总价则可能在数百万元左右,两者之间的价格差距显而易见。这意味着,购房者可以用同样的预算购买到更大面积的房产,或者用更小的预算购买到同样面积的房产,从而获得更高的居住品质。
除了总价较低,公寓的租金回报率也相对较高。许多公寓位于商业发达、交通便利的地区,周边配套设施完善,吸引了大量租客。据统计,一些公寓的租金回报率甚至高于某些类型的别墅或普通住宅。以某城市某公寓为例,其租金回报率达到了5%,而同区域某别墅的租金回报率仅为3%。这表明,购买公寓不仅可以满足居住需求,还可以带来稳定的现金流,实现资产的保值增值。
公寓所在区域通常商业发达,升值潜力大。随着城市化进程的加快,许多公寓项目周边的商业、交通等配套设施不断完善,吸引了大量人口流入,从而推高了房产的价值。以某城市某公寓项目为例,自建成以来,周边的商业设施不断完善,人口密度不断增加,该项目房价也随之稳步上涨,许多早期购买者通过出租或出售房产获得了丰厚的回报。
我们来看第二个理由:低维护成本。公寓的低维护成本是其另一大优势。与自购别墅等需要自己建设和维护的房产相比,公寓由物业管理公司负责维护,业主无需花费大量时间和精力进行日常维护。物业管理公司通常会提供一系列服务,包括清洁、安保、维修等,这些服务不仅提高了居住品质,也降低了业主的维护成本。
具体来说,物业管理公司会定期对公寓进行清洁,保持公共区域的卫生;会提供24小时的安保服务,确保业主的人身和财产安全;会及时处理公寓的维修问题,确保业主的居住环境舒适安全。这些服务对于许多业主来说是无价的,尤其是对于工作繁忙的都市人来说,物业管理公司提供的这些服务更是解决了他们的后顾之忧。
公寓通常配套设施完善,生活便利,如配备电梯、健身房、游泳池、停车场等,减少了业主自己建设和维护这些设施的成本。以某公寓项目为例,该项目配备了电梯、健身房、游泳池等设施,业主可以免费或以较低的费用使用这些设施,而如果自己购买这些设施,则需要投入大量的资金和时间。这些设施的完善不仅提高了居住品质,也增加了房产的价值。
第三个理由是安全性高。公寓的安全性是其吸引众多购房者的重要原因之一。公寓通常配备电梯、门禁系统、监控设备等,安全性较高。以某公寓项目为例,该项目配备了24小时的安保系统、人脸识别门禁、监控设备等,确保了业主的人身和财产安全。这些安防措施不仅提高了居住的安全性,也减少了业主的担忧。
公寓小区人口密度相对较高,能够形成一定的社区氛围,减少了独居带来的安全隐患。许多公寓小区都是封闭式管理,只有业主和授权人员才能进入,这进一步提高了居住的安全性。以某公寓小区为例,该小区实行封闭式管理,安装了监控设备,并且有保安24小时巡逻,小区的治安状况非常好,业主的安全得到了充分保障。
公寓周边通常配套设施完善,犯罪率较低。许多公寓项目周边都是商业区、学校、医院等,这些设施不仅方便了业主的生活,也提高了周边地区的安全性。以某城市某公寓为例,该公寓周边有商场、超市、医院、学校等,这些设施不仅方便了业主的生活,也吸引了大量人口流入,从而降低了周边地区的犯罪率。
我们来看第四个理由:适合现代生活方式。公寓的第四大优势在于其适合现代生活方式。随着社会的发展,许多人的生活方式发生了变化,单身人士、年轻情侣、小家庭等群体越来越多,他们对于居住空间的需求也更加理性。公寓的面积相对较小,更适合现代人对居住空间的理性需求。
以某城市某公寓为例,该公寓的面积大多在50平方米到80平方米之间,非常适合单身人士、年轻情侣、小家庭等群体。这些群体对于居住空间的需求并不大,更看重居住的便利性和舒适性,而公寓正好能满足他们的这些需求。
公寓出租需求旺盛,容易出租且租金回报率高。随着城市化进程的加快,许多城市的人口不断增加,对于出租房的需求也随之增加。公寓由于其面积较小、租金较低,因此更受租客的青睐。以某城市某公寓为例,该公寓的出租率一直保持在90%以上,租金回报率也较高,许多业主通过出租公寓获得了稳定的现金流。
以某城市某公寓项目为例,该项目的出租率一直保持在90%以上,租金回报率也较高。许多租客都是因为该公寓位置优越、交通便利、配套设施完善而选择租住该公寓。这些租客中,有的是来该城市工作的人,有的是来该城市读书的学生,还有的是来该城市旅游的人。这些租客的多样化,也说明了该公寓的出租需求旺盛。
综上所述,本文从高性价比、低维护成本、安全性高、适合现代生活方式等四个方面论证了购买公寓的优势。然而,需要强调的是,购房是一个复杂的决策过程,需要综合考虑自身的需求和实际情况。在选择公寓时,购房者需要关注公寓的地理位置、周边配套设施、物业管理等因素,以确保自己能够获得满意的居住体验。
购房者还需要了解公寓的潜在缺点,例如居住空间较小、隐私性较差、容易受到楼上邻居的影响等。在选择公寓时,购房者需要权衡利弊,根据自己的需求和喜好做出理性的决策。同时,购房者还需要了解相关的法律法规和政策,以确保自己的权益得到保障。
需要强调的是,本文并非否定其他房产类型,而是聚焦于公寓的优势,以期为购房者提供新的视角。在购房过程中,购房者需要根据自己的实际情况选择合适的房产类型,以实现自己的居住梦想。
声明:本文由入驻焦点开放平台的作者撰写,除焦点官方账号外,观点仅代表作者本人,不代表焦点立场。
