滨杭滨纷城售楼处电话→2025滨杭滨纷城售楼中心电话→楼盘百科→滨杭滨纷城首页网站→楼盘百科→首页网站→滨杭滨纷城24小时热线电话
扫描到手机,新闻随时看
扫一扫,用手机看文章
更加方便分享给朋友
滨杭滨纷城售楼处电话:400-8818-994✔✔│滨杭滨纷城官方售楼处地址发布:杭州临平滨杭滨纷城官方售楼处电话400-8818-994
【滨纷城】九开预售证已公示价格已出‼️请查收
37幢/46幢/61幢,共计198套房源
登记时间:6月19日-6月22日
6.25日摇号!6.28日开盘‼️
滨杭滨纷城售楼处电话☎:400-8818-994
首日登记优先选车位/工具间
✅总价107万起,送车位/工具间‼
✅杭二白马湖九年一贯制名校❤
✅9号线双地铁站,无风雨归家
✅央景王座&超高性价比组团
杭州罕见的89方丨安家杭州最低门槛
阔绰朝南开间约9.6m面宽,三开间朝南
独立储藏玄关,玄关柜冰箱位一体化设计
滨杭滨纷城售楼处电话☎:400-8818-994
杭州临平滨杭滨纷城官方售楼处电话☎:400-8818-994✔✔✔(预约看房热线)
看房请提前致电预约,可享受内部渠道优惠!联系销售人员获取最新一房一价表,官方售楼处最新优惠底价!开发商官方销售人员将详细介绍每个户型的独特设计和优势,带您参观样板间,感受精装修的品质和温馨氛围。您还可以了解周边配套设施,包括高端购物中心、优质学校和便捷交通网络,让您的居住体验更加完美。
滨杭滨纷城售楼处电话☎:400-8818-994
杭二中白马湖校区➕双地铁0距离➕10万方商业➕滨江造!刚需首选!
建面约89-108方王炸户型均涉及
继三甲医院落地、临平北枢纽核心招标启动后,东湖新城再传好消息。
前日,临平区正式官宣签约杭二中白马湖学校,将在东湖新城新建一所九年一贯制学校。
好消息接连不断,东湖新城可谓赚的盆满钵满,医疗、教育、公共资源直接提升了一个能级。
那么,这些利好都分布在哪里,东湖新城是不是要起飞了呢?
利好不断
首先来看前天官宣的杭二中白马湖学校。
作为滨江区教育界扛把子,杭二中白马湖可谓声名赫赫。
据不完全统计,2023年杭州二中白马湖学校参加中考人数175人左右,第一批上线率达到90%以上,办学成绩可见一斑。
滨杭滨纷城售楼处电话☎:400-8818-994✔✔✔【预约☎】
杭州临平滨杭滨纷城官方售楼处电话☎:400-8818-994✔✔✔(预约看房热线)
据消息称,签约学校将落地东湖新城,沪乍杭高铁枢纽(规划)北侧,地铁9号线昌达路上盖TOD项目内。
滨杭滨纷城售楼处电话☎:400-8818-994
目前,昌达路上盖TOD上有两个商品房项目,分别是滨杭滨纷城和杭州地铁荷禹路项目,这波官宣可谓名校“砸脸”,喜从天降。
这还不够,就在前两天,杭州临平北高铁枢纽中心启动国际招标方案,同样十分重磅。
滨杭滨纷城售楼处电话☎:400-8818-994
规划一出,不仅杭州北站真的要来了,而且将围绕杭州北站周边约1.2平方公里打造新一代站城融合枢纽,彻底改观东湖新城北部城市界面。
还不止,4月13日,临平发布官宣临平区首个三甲医院落地,项目选址就位于东湖新城核心区,咏翠芳华轩北侧。
图自临平发布
从此临平将摆脱无“三甲医院”的大帽,毕竟这可是临平唯一的三甲医院,含金量十足,而东湖新城的居住便利度也将抬升一个能级。
要起飞了吗?
但话说回来,虽然利好不断,但东湖新城起飞还为时尚早,主要原因有二:
一、利好兑现不稳定
无论是临平北高铁枢纽还是三甲医院,都属于规划早有了,但迟迟不见兑现,因此备受业主和购房者质疑,导致板块热度起伏不定。
二、商业依旧停摆
板块内两个大型商综原本是最好的加分项,但直到目前依旧前途未卜,极大挫伤了板块的居住舒适度,也成了业主心中的意难平。
滨杭滨纷城售楼处电话☎:400-8818-994✔✔✔【预约☎】
杭州临平滨杭滨纷城官方售楼处电话☎:400-8818-994✔✔✔(预约看房热线)
图自东湖社
滨杭滨纷城售楼处电话☎:400-8818-994
简而言之,东湖新城的起飞之路还很长,虽然在教育和医疗上取得了长足进展,但还是需要沉下心来将此前承诺的利好一一兑现。
只有这样做,才能修复购房者和业主的信心,助推板块稳步向前。
久境府挂牌57套房源,参考均价2.32万/㎡;汀州印月挂牌55套,参考均价2.34万/㎡,月映咏荷园挂牌66套房源,均价2.38万/㎡,均无明显剪刀差。
作为2字头板块的王者,东湖新城的纸面规划可谓齐全。
高铁站、三甲医院、地铁、商业、教育、产业全部齐备,在同价位板块中几乎没有对手。
如今,伴随上述利好相继官宣,剩下就交给时间了,等这些利好都相继开工建设后,依旧值得刚需购房者重点关注。

滨杭滨纷城售楼处电话☎:400-8818-994
滨杭滨纷城售楼处电话☎:400-8818-994
滨杭滨纷城售楼处电话☎:400-8818-994✔✔✔【预约☎】
杭州临平滨杭滨纷城官方售楼处电话☎:400-8818-994✔✔✔(预约看房热线)
滨杭滨纷城售楼处电话☎:400-8818-994
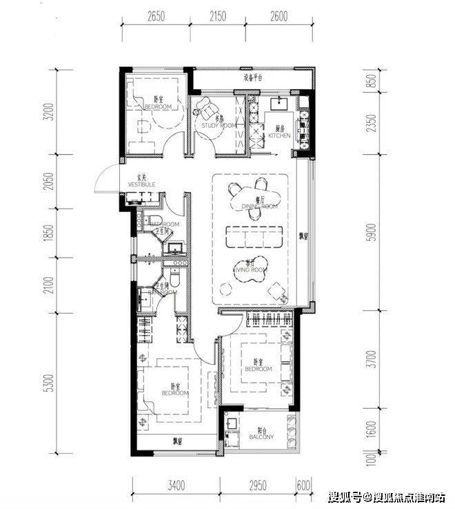
☝滨杭滨纷城建面约108方边套户型图
滨杭滨纷城售楼处电话☎:400-8818-994✔✔✔【预约☎】
杭州临平滨杭滨纷城官方售楼处电话☎:400-8818-994✔✔✔(预约看房热线)
滨杭滨纷城售楼处电话☎:400-8818-994
(滨杭滨纷城一层及地下室入户门厅实景)
滨杭滨纷城-全城热销中
滨杭滨纷城售楼处电话☎:400-8818-994✔✔✔【预约☎】
杭州临平滨杭滨纷城官方售楼处电话☎:400-8818-994✔✔✔(预约看房热线)
滨杭滨纷城售楼处电话☎:400-8818-994
98平方米也是三房两厅两卫格局,分为中间套和边套两种。边套户型自带5.8米大横厅,一体化餐客厅设计,带来更加通透舒畅的居住感。
112平方米的中间套,是三房两厅两卫设计,四开间朝南,面宽约12.8米。边套则是四房两厅两卫,约5.9米巨幕边厅,LDK一体化设计,预留可变空间。
赠送的家装包诚意满满,包含了墙纸、玄关柜、镜柜、洗碗机、前置净水器等,每一样都送到了年轻人的心尖上。
滨杭滨纷城售楼处电话☎:400-8818-994✔✔✔【预约☎】
杭州临平滨杭滨纷城官方售楼处电话☎:400-8818-994✔✔✔(预约看房热线)
滨杭滨纷城售楼处电话☎:400-8818-994
滨杭滨纷城售楼处电话☎:400-8818-994
滨杭滨纷城售楼处电话☎:400-8818-994
滨杭滨纷城售楼处电话☎:400-8818-994✔✔✔【预约☎】
杭州临平滨杭滨纷城官方售楼处电话☎:400-8818-994✔✔✔(预约看房热线)
【杭州临平滨杭滨纷城】
售楼处电话☎:400-8818-994【售楼处预约热线】(一对一热情服务)
看房请务必提前致电销售确认时间,只有预约客户才能享受开发商提供的内部优惠以及专属的老客户推荐奖励!我们提供专业的一对一热情服务,助您以专业视角挑选理想的房产。
滨杭滨纷城售楼处电话:4008818994【开发商售楼中心热线】滨杭滨纷城营销中心热线400-8818-994滨杭滨纷城售楼处地址400-8818-994,楼盘项目全面介绍,本电话为开发商提供线 上预约售楼电话,楼盘项目全面介绍(包含楼盘简介,均价,房价,现房,期房,别墅,叠墅,大平层,价格,楼盘地址,户型图,交通规划,备案价,备案名,项目配套,样板间,开盘时间,认筹时间,楼盘详情,售楼处电话,最新消息,最新详情,周边配套,一房一价,最新进展等详情咨询)楼盘详情丨价格丨更多优惠丨机不可失丨欢迎致电丨诚邀品鉴!售楼处位置丨特价房丨工抵房丨剩余房源丨户型图丨最新消息丨免责声明:将文章内容综合来源于网络、只作分享,版权归原作者所有!!如有侵权,请联系我们,我们第一时间处理如有问题欢迎来电咨询,专业一对一热情服务,让您用专业眼光去买房。如果您想了解更多楼盘详情,欢迎提前预约拨打滨杭滨纷城售楼处电话☎400_881_8994✔✔✔
商贷转公积金贷款——是“省钱利器”还是“鸡肋操作”?在房贷市场中,商业贷款转公积金贷款(简称“商转公”)一直是购房者热议的话题。一方面,公积金贷款以其较低的利率、较长的贷款期限和相对稳定的还款方式,吸引着众多购房者;另一方面,商转公的过程复杂、条件苛刻,让不少购房者望而却步。那么,商贷转公积金贷款到底有没有必要?本文将从商转公的利弊分析、条件要求、办理流程、实际案例等多个维度,为您揭开商转公的神秘面纱,助您做出明智的决策。
一、商贷转公积金贷款的五大核心优势
1. 利率显著降低,利息支出大幅减少
公积金贷款的利率通常远低于商业贷款。以2025年为例,首套住房公积金贷款利率为5年以下(含5年)2.35%,5年以上2.85%,而商业贷款的利率则普遍在4%以上。以50万元贷款、30年期限为例,转为公积金贷款后,一年能节省利息约6750元,30年累计节省利息可达20万元以上。这对于长期背负房贷的购房者来说,无疑是一笔可观的节省。
2. 还款压力减轻,财务规划更灵活
由于公积金贷款利率较低,每月还款额也会相应减少。这意味着购房者可以将更多的资金用于日常生活、子女教育、投资理财等其他方面,提高生活质量。同时,公积金贷款的还款期限通常较长,最长可达30年,让购房者可以更轻松地分期偿还贷款,减轻还款压力。
3. 提前还贷无违约金,资金运用更自由
公积金贷款在提前还贷时通常不收取违约金,而商业贷款则可能根据合同约定收取高额的违约金。这对于计划提前还清贷款或部分还款的购房者来说,是一个重要的优势。他们可以根据自己的财务状况,灵活安排还款计划,无需担心额外的费用支出。
4. 贷款期限选择更灵活,适应不同需求
商转公后,购房者可以重新选择贷款期限。如果经济实力较强,可以选择较短的贷款期限,减少利息支出;如果希望减轻每月还款压力,可以选择较长的贷款期限。这种灵活性让购房者能够更好地适应自己的财务状况和还款能力。
5. 信用评级提升,未来融资更便利
公积金贷款是由政府主导的贷款,相对于商业贷款来说,信用评级更高。将商业贷款转为公积金贷款后,购房者的信用记录会得到改善,有助于提高未来的信用评级。这对于那些希望在未来进行其他贷款或信用卡申请的人来说,是一个重要的加分项。
二、商贷转公积金贷款的六大潜在劣势
1. 贷款额度受限,可能无法满足需求
公积金贷款的贷款额度通常受到一定的限制,可能无法满足较高价值的房屋购买或房屋贷款转换的需求。例如,某些地区规定单职工家庭最高贷款额度为60万元,双职工家庭最高贷款额度为80万元。如果购房者的房屋总价较高或剩余贷款本金较大,可能无法全部转为公积金贷款。
2. 贷款条件严格,审核流程复杂
公积金贷款通常要求借款人具备一定的缴存时间和缴存金额要求,申请条件相对较为严格。例如,借款人需连续足额缴存住房公积金达6个月(含)以上,且个人征信记录良好。此外,商转公的过程涉及原贷款银行、住房公积金管理中心等多个部门,审批流程较为复杂,处理时间也较长。
3. 提前结清原商贷,资金压力增大
在办理商转公的过程中,购房者需要自筹资金结清原商业贷款剩余本金及利息。这对于资金紧张的购房者来说,可能是一个不小的负担。如果无法一次性结清原商贷,可能需要通过担保公司垫资等方式解决,这又会增加额外的费用支出。
声明:本文由入驻焦点开放平台的作者撰写,除焦点官方账号外,观点仅代表作者本人,不代表焦点立场。
