张家港(融创·滨江映)2025最新价格-楼盘百科→24小时热线@张家港(融创·滨江映)2025最新价格-房价-户型→区位交通→核心配套
扫描到手机,新闻随时看
扫一扫,用手机看文章
更加方便分享给朋友
融创滨江映售楼处电话:400-8878-824
融创滨江映营销中心热线400-887-8824(官方预约看房热线)
世界的港城时代的滨江映
长三角国际都市2021影响力作品
高铁城芯建筑面积约90-130㎡精装宽境住区

融创滨江映售楼处电话:400-8878-824
融创滨江映营销中心热线400-887-8824(官方预约看房热线)
一、基础信息
项目名:滨江映
开发商:融创中国|美好置业
项目产品:建筑面积约90-130㎡精装宽境住区
总户数:1087户
住宅产权:70年

融创滨江映售楼处电话:400-8878-824
融创滨江映营销中心热线400-887-8824(官方预约看房热线)
交付标准:精装交付
交房时间:预计2024年11月份
物业公司:融创物业
物业费:2.5
容积率:2.0

融创滨江映售楼处电话:400-8878-824
融创滨江映营销中心热线400-887-8824(官方预约看房热线)
绿化率:35%
车位配比:1:1.25
首付:5万
均价:1.1-1.2万/平,总价108万起
1、品牌价值
2021年,融创中国、美好置业,重磅联袂,将融创映系美学迭代新品——滨江映,落址张家港中心,为时代创造更多元的生活方式。
【融创中国美好城市共建者】
融创中国共建升级未来城市中心,参与苏州相城高铁新城、太仓娄江新城等多个城市CBD打造,与世界级长三角城市群共潮头。
融创滨江映
咨询高峰期请耐心等待,预约来电尊享内部优惠,专业一对一热情服务,让您用专业眼光去买房。
【美好置业美好心灵美好人生】
美好置业(000667),中国百强房企。31载沉淀,布局25城,匠筑40余红盘,致力于为消费者提供精筑纯粹品质社区。
2、配套价值
◎多维交通城市瞬息切换
高铁枢纽:张家港站(直线距离约3.5公里),1小时长三角通勤圈,深度融入上海“半小时经济圈”;
城市干线:塘桥客运站、202县道、204国道、吴弘大道、西环路、北京路、北环路、南京路、维达路,快速联通港城主城、苏州主城;
机场环绕:苏南硕放国际机场、上海虹桥国际机场、上海浦东国际机场;

◎鎏金配套绘就国际前沿生活版图
国际门户:张家港奥体中心(规划中)、国际会展中心(规划中)、国际会议中心(规划中)、东渡国际人才创业街区(在建中)等;
国际配套:第三人民医院、张家港市音乐厅(规划中)、长江数字文化博物馆(规划中)等;

国际商业:大润发、曼巴特购物广场、万达广场、吾悦广场等;
国际教育:塘桥高级中学、塘桥中心小学、梁丰学校等;
国际生态:约17.7平方公里黄泗浦城市生态公园、文化生态双轴;
融创滨江映
咨询高峰期请耐心等待,预约来电尊享内部优惠,专业一对一热情服务,让您用专业眼光去买房。
产品价值
极简内核:轻盈飘逸和通透现代流线体裁,以利落的线条、极简的色彩,让建筑通体如水晶般闪耀,辉映时代光芒。
极质底色:萃取全球高端居所的奢华底色——莫兰迪,辅以大面积玻璃和金属线条勾勒,淬炼时间的品格艺术。
全龄谧境:以“高级、定制、艺术”为核心理念。匹配时代人物精神境界,超阔楼间距,6大社区欢乐场景,将生活与景观融合。

科学布局:打破空间限制,起居厅与餐厨极尽铺展,户型科学布局,超高窗墙比,室外配置宽幕观景阳台。
品牌精装:国际品牌精装,同步全球健康理念,中央空调(部分户型)+新风配置(部分户型),筑就精英人群高品质的生活方式。
4、服务价值
【融创服务中国品质服务引领者】
融创物业(01516.HK),壹级物业管理资质,以“至善·致美”为服务理念,为客户提供全面的高品质物业服务。
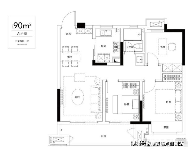
5、【户型赏析】




融创滨江映售楼处电话:4008878824【售楼中心热线】融创滨江映营销中心热线400-887-8824融创滨江映售楼处地址400-8878-824,楼盘项目全面介绍,本电话为开发商提供线上预约售楼电话,楼盘项目全面介绍(包含楼盘简介,均价,房价,现房,期房,别墅,叠墅,大平层,价格,楼盘地址,户型图,交通规划,备案价,备案名,项目配套,样板间,开盘时间,认筹时间,楼盘详情,售楼处电话,最新消息,最新详情,周边配套,一房一价,最新进展等详情咨询)楼盘详情丨价格丨更多优惠丨机不可失丨欢迎致电丨诚邀品鉴!售楼处位置丨特价房丨工抵房丨剩余房源丨户型图丨最新消息丨免责声明:将文章内容综合来源于网络、只作分享,版权归原作者所有!!如有侵权,请联系我们,我们第一时间处理如有问题欢迎来电咨询,专业一对一热情服务,让您用专业眼光去买房。如果您想了解更多楼盘详情,欢迎提前预约拨打融创滨江映售楼处电话☎400-887-8824
上海对房地产市场政策进行优化调整,涉及住房限购、公积金、住房信贷、住房税收等方面调整,这是今年以来首次调整。
核心内容有以下几点:
1、符合条件的家庭,外环外不再限制购房套数
2、单身人士买房将迎来重大利好,成年单身人士按照居民家庭执行住房限购政策
3、公积金贷款额度大幅提高,多子女家庭最高可贷216万元,且允许公积金“又提又贷”
4、商贷不再区分首套二套,统一利率水平
5、完善个人住房房产税政策,非户籍首套免房产税,二套人均60平方米以下免税。
此前北京松绑五环外的限购时,我们预计上海也会出台相应措施,如今靴子落地。对比北京,上海限购调整力度大于市场预期。
上海、北京楼市限购政策松绑有一个共同点,即“核心区严控、郊区松绑”,这已成为房地产市场因城施策新的风向标。
此次调整最大的亮点是进一步调减外环外住房限购政策。
一是符合条件的居民家庭,在外环外购房不限套数。即户籍家庭、社保满1年的非户籍家庭,在外环外购买一二手房不再限制套数。从非户籍家庭社保年限来看,上海外环外购房社保年限门槛仅为1年,低于北京的2年,力度明显比北京大。
二是成年单身人士按照居民家庭执行住房限购政策。也就是说,户籍单身人士可在外环内购买2套住房,非户籍单身社保满3年在外环内限购1套,外环外社保满一年单身人士也不限套数。
和北京类似,这并不意味着上海全面放开外环外限购,只是针对原本就有购房资格的人,而对于在上海没有社保的人,依然无法购买。
为衔接优化住房限购政策,个人住房房产税政策同步完善。对符合条件的非本市户籍居民家庭购买的第一套住房暂免征收房产税;购买的第二套及以上住房在合并计算家庭全部住房面积后,给予人均60平方米的免税面积扣除。
公积金政策优化有两大亮点:
首先,公积金贷款额度大幅提升,对缴存人购买二星级及以上新建绿色建筑住房的,住房公积金(含补充公积金)最高贷款额度上浮15%,多子女家庭首套上浮比例可叠加计算,政策调整后上海公积金最高贷款额度已达216万元,远超北京160万元的标准,基本能有效覆盖部分购房资金需求。
其次,“又提又贷”的政策落地,能够直接缓解购房者的首付压力。
为减轻居民购房利息负担,《通知》明确优化个人住房信贷政策,商贷不再区分首套二套,也就是说二套房贷款利率与首套房实现“齐平”,进一步降低了购房的利息成本。
以100万贷款本金、30年期等额本息方式计算,按照当前首套房3.05%利率下限来计算,调整后每月月供将减少220元,这将进一步促进改善性住房需求的释放。
盘点近年来上海楼市政策可以看出,当前已是政策最为最宽松的一年。
本次调整为2025年来首次,在此之前,上海于2024年调整过两次限购政策,且政策发布后对于市场起到了明显的推动作用。
去年5月27日上海发布“沪九条”,随后的6月上海新建商品住宅成交面积达到79.89万平方米,环比增长63.49%。
2024年9月29日,上海再次发布“沪七条”,调整限购、降低首付比例等,随后市场销售明显提升,新房成交面积自10月份开始实现同比“五连升”,环比“三连升”,其中,12月新房销售面积达到80.79万平方米,为近一年新高。
不过,今年二季度开始全国楼市出现新情况,其中上海6月和7月新房成交面积环比下跌,其中7月新房成交面积同环比分别下降25.27%、28.48%。
而且项目7月开盘去化压力凸显,据克而瑞上海机构数据,7月上海共24盘入市,平均去化率为41%,较上月下降9个百分点。
这意味着上海楼市稳中向好的态势还需要利好政策进一步巩固。
值得注意的是,上海外环外一直是新房供应和成交的主力,其中一手房供应和成交占比近五年都在一半以上,今年前7月外环外新房成交188.31万平方米,占比为54.39%。从趋势来看,2021年以来外环外成交占比逐年下降。
与之相对应的是,外环外的库存压力明显高企。
CRIC数据,截至2025年7月末,上海新建商品住宅库存面积为733.21万平方米,以近12个月商品住宅流速看,去化周期为13.3个月,而外环外库存面积达到了561.65万平方米,占比达到了76.6%,去化周期为17.6个月,而同期外环内去化周期仅7.3个月,外环外去库存压力明显高于外环内。
此次上海“定向”调整限购后,部分高库存板块去化压力将有所缓解。

在“金九银十”关键节点到来前,一线城市北京和上海相继发布楼市新政,楼市迎来新一轮止跌回稳“保卫战”。
从上海和北京政策共同点可以看出,两个城市均“定向”取消郊区购房套数限制,通过“核心区严控、郊区松绑”的差异化策略,消除核心区投机顾虑,同时释放郊区购房需求,进一步优化区域供需结构,既能缓解高库存板块去化压力,同时还能实现区域协同的城市发展目标。
声明:本文由入驻焦点开放平台的作者撰写,除焦点官方账号外,观点仅代表作者本人,不代表焦点立场。
