建屋新棠玥
售楼处电话☎:400-998-9694
如有问题欢迎来电咨询,来电即可享受买房优惠!
预约来电尊享购房优惠,可预约案场内部销售人员,专业一对一热情服务,让您用专业眼光去买房。
建屋新棠玥售楼处电话☎:400-998-9694
建屋新棠玥售楼处电话☎:400-998-9694
今年的园区,接下来纯新盘真的少了!
星合晋墅、绿城沁百合、天熠东方都已经先后取证,现在还没取证的项目只有绿城湖西凤起潮鸣和建屋新棠玥了!
其中,建屋新棠玥的产品信息在近期首次对外发布,项目两种官方户型172平和215平正式公布!
作为板块目前地价第一低的地块,2025年,斜塘价格能开出来彩蛋吗?
建屋新棠玥售楼处电话☎:400-998-9694

实景示范区即将盛大公开
建屋·新棠玥,即斜港置业斜塘86号地块项目,即,苏地2023-WG-86号地块项目, 位于工业园区星塘街西、独墅湖大道北 ,是2023年11月29日,斜港置业以底价150039万元竞得, 成交楼面价22000元/平 。

建屋新棠玥售楼处电话☎:400-998-9694
该项目的地块用途为城镇住宅用地,占地面积40117.34平,建筑面积106364.42平,计容建筑面积68014.72平,容积率1.7.
根据规划,项目拟建 11栋13-17F住宅,其中,1栋13F小高层、1栋14F小高层、2栋16F小高层、7栋17F小高层 。

建屋新棠玥售楼处电话☎:400-998-9694
项目的产品发布会在上周举办,部分产品信息也首次发布!同时,项目预计将于近期公开实景示范区!
项目对标沧浪亭的整体设计,引入六大苏园核心场景,打造“三轴六境六园七会所”,通过“池岛-静潭-山石-水榭-草林-竹嬉”六种水岸度假生活美学,重塑当代游园体验,并且通过下沉会所、以及架空层设计,引入水景、绿植与灰空间,营造一种仿若置身一座“大园子”的体感,在建筑排布的设计主动减容,最终达成了19.8%的容积率,也就是在五分之一土地上造房,实现“低密”基因的强化,以及人均均好的景观实现。

建屋新棠玥售楼处电话☎:400-998-9694

建屋新棠玥售楼处电话☎:400-998-9694
1,这是斜塘板块的纯新盘;
2,该项目的容积率为1.7,其产品为11栋小高层,以17F小高层产品为主;
3,从效果图来看,其住宅的风格为现代化;
4,其外立面的材料为浅灰色铝板、中灰色铝板、银白色铝板、灰色型铝板、米白色石材、灰色金属格栅、香槟金铝板等;
5,项目的每层层高为3.1米;
6,根据要求,项目的住宅为全装修交付, 装标要求在2000-5000元/平 ;
建屋新棠玥售楼处电话☎:400-998-9694

建屋新棠玥售楼处电话☎:400-998-9694
两种户型出炉
建屋·新棠玥目前只公布了两种户型,分别是建筑面积约172平和215平!

建屋新棠玥售楼处电话☎:400-998-9694


建屋新棠玥售楼处电话☎:400-998-9694


建屋新棠玥售楼处电话☎:400-998-9694 建屋新棠玥售楼处电话☎:400-998-9694
效果图过程稿,非交付标准

建屋新棠玥售楼处电话☎:400-998-9694

建屋新棠玥售楼处电话☎:400-998-9694


建屋新棠玥售楼处电话☎:400-998-9694

建屋新棠玥售楼处电话☎:400-998-9694
效果图过程稿,非交付标准
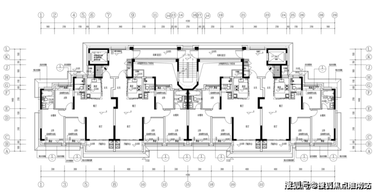
此前公示中,项目还公布了一种小高层户型!
10#,14F小高层
2梯4户

3房2厅2卫

3房2厅3卫的房屋套型
3开间朝南
客厅是方厅,开间为4米
建屋新棠玥售楼处电话☎:400-998-9694 阳台开间为4米
主卧,套房设计,有独立卫生间,主卧的开间为3.3米

周边界面 近独墅湖
建屋·新棠玥位于工业园区星塘街西、独墅湖大道北,属于斜塘板块,不过项目南面就是独墅湖板块。
建屋新棠玥售楼处电话☎:400-998-9694 周边界面来看,居住氛围也是比较浓的。
北面是住宅小区莲花新村,东面河流,南面是独墅湖大道,隔河就是住宅小区翰林缘,西面则是在建的保利珺华赋。

建屋新棠玥售楼处电话☎:400-998-9694
周边配套来看目前还是比较完备的,项目周边已经比较成熟。
交通上来看,目前距离西面最近的是8号线莲池桥站,大约在1.2公里左右,东面距离较近的是在建的6号线北斜步站,约2.0公里。
自驾是比较方便的,项目南面就是独墅湖大道,往西直接连接南环和东环,去往市区是比较方便的,东面的星塘街,可以连接奥体和独墅湖高教区。再往东面的中环东线,串联湖东、青剑湖。

建屋新棠玥售楼处电话☎:400-998-9694 建屋新棠玥售楼处电话☎:400-998-9694
商业上面,距离比较近的是独墅湖的翰林邻里中心了,此外南面还有文星广场、文萃广场等,北面则有莲花商业街。大型商业设施上则要去往奥体中心、联丰广场、斜塘邻里中心等。
教育资源上,周边主要有莲花学校、斜塘学校等。
其他设施来看,还有独墅湖医院、苏州外国语学校、苏大附属儿童医院等。

建屋新棠玥售楼处电话☎:400-998-9694
价格会在多少?
这两年,斜塘板块有多个项目入市,所以板块房价其实已经基本出炉了。
距离项目最近的就是保利珺华赋了,项目在成交楼面价22075元/平,备案均价38419元/平。
而建屋·新棠玥地块成交楼面价22000元/平,是目前斜塘板块新出让地块中楼面价最低的一个,而且对比保利珺华赋,有着75元/平的价差,差异不是很大,未来也可以作为一个参考价!斜塘新的洼地来了?
1、什么是房产:房屋产权的简称。
2、什么是地产:是指土地财产。
3、什么是房地产:是房产和地产的总称。
4、什么是房地产业:从事房地产开发、建设、经营、管理以及维修、装饰和服务的综合性产业。
5、什么是房地产开发:是指在依法取得土地使用权的土地上按照使用性质的要求进行基础设施、房屋建筑的活动。
6、什么是土地开发:是将“生地”开发成可供使用的土地。
7、集体土地是指:农村集体所有的土地。
8、征用土地是指:国家为了公共利益的需要,可依照法律规定对集体所有的土地实行征用。
9、什么是土地所有权:是指国家或集体经济组织对国家土地和集体土地依法享有的占有、使用、收益和处分的权能。
10、什么是土地使用权的出让:指国家以协议、招标、拍卖的方式将土地所有权在一定年限内出让给土地使用者,由使用者向国家支付土地使用权出让金的行为。
11、什么是土地使用权转让:是指土地使用者通过出售、交换、赠与和继承的方式将土地使用权再转移的行为。
12、什么是地籍、产籍:是对在房地产调查登记过程产生的各种图表、证件等登记资料,经过整理、加工、分类而形成的图、档、卡、册等资料的总称。
13、生地是指:不具备开发条件的土地。
14、熟地是指:已完成三通一平(水、电、道路,土地平整)或七通一平,具备开发条件的土地。
15、什么是宗地:是地籍的最小单元,是指以权属界线组成的封闭地块。
16、什么是宗地图:是土地使用合同书附图及房地产登记卡附图。它反映一宗地的基本情况。包括:宗地权属界线、界址点位置、宗地内建筑位置与性质、与相邻宗地的关系等。
17、证书附图是指:房地产后面的附图,主要反映房地产情况及房地产所在宗地情况。
18、什么是物业管理:泛指一切有关房地产开发、经营、商品房销售、租赁及售后服务。
19、什么是业主委员会:是在物业管理区域内代表全体业主实施自治管理的组织。是代表
物业全体业主合法权益的社会团体,其合法权益受国家法律保护。
20、业主委员会是如何产生的:由业主大会从全体业主中选举产生。
21、住房补贴是指:国家为职工解决住房问题而给予的补贴资助。
22、房屋的所有权是指:对房屋全面支配的权利。
23、房地产交易的两种主要形式是:地产交易形式与房产交易形式。
24、建筑物是指:人工建造而成的房屋和构筑物。
25、构筑物是指:建筑物中除房屋以外的东西。
26、什么是期房:是指消费者在购买时不具备即买即可入住的商品房。
27、期房是如何介定的:房地产开发商拿到商品房预售许可证开始至取得房地产权证大产证或竣工验收合格可以直接入住使用)为止。
28、什么是预售合同:消费者在购买期房时签定的销售合同。
29、什么是现房:是指消费者在购买时具备即买即可入住的商品房,即开发商已办妥所售的商品房的大产证(或已经竣工验收合格并交付使用)的商品房。
30、什么是毛坯房:房地产商交付屋内只有门框没有门,墙面地面仅做基础处理而未做表面处理的房叫毛坯房。
31、什么是成品房:是指对墙面、天花、门套、地板实行装修。
32、什么是商品房:是指以完全的市场价格向购房者出售的房子。
33、商品房预售是指:在房地产尚未建成以前,房地产的经销商在取得受买人一定数量的定金后,将期房出售给受买人。
34、商品房现售是指:指房地产开发企业将竣工验收合格的商品房出售给买受人。
35、二手房通常指的是:再次进行买卖交易的住房。
36、经济适用房指的是:面向中低收入家庭的普通住宅。
37、例出3种以上的安居房的种类:准成本房、全成本房、全成本微利房和社会微利房。
38、低层住宅的介定:1-3层的住宅。
39、多层住宅的介定:4-6层的住宅。
40、小高层住宅的介定:7-11层的住宅。
41、中高层住宅的介定:12-16层的住宅。
42、高层住宅的介定:16层以上为高层住宅。
43、超高层建筑的介定:总高度超过100米的建筑。
44、商品房的结构是指:房屋主体所使用的施工工艺和用材。
45、钢结构的意思是:承重的主要结构是用钢材料建造的,包括悬索结构。
46、钢混结构的意思是:承重的主要结构是用钢和混凝上建造的。
47、砖木结构的意思是:承重的主要结构是用砖、木材建造的。
48、砖混结构的意思是:主要是砖墙承重,部分是钢盘混凝土承重的结构。
49、框架结构的意思是:以钢筋混凝土浇捣成承重梁柱,再用预制的隔墙分户的结构。
50、开间指的是:一间房屋内一面墙的定位轴线到另一面墙的定位轴线之间的实际距离。
建屋新棠玥
售楼处电话☎:400-998-9694
如有问题欢迎来电咨询,来电即可享受买房优惠!
预约来电尊享购房优惠,可预约案场内部销售人员,专业一对一热情服务,让您用专业眼光去买房。
建屋新棠玥售楼处电话☎:400-998-9694
楼盘项目全面介绍,本电话为开发商提供线上预约售楼电话,楼盘项目全面介绍(包含楼盘简介,均价,房价,现房,期房,别墅,叠墅,大平层,价格,楼盘地址,户型图,交通规划,备案价,备案名,项目配套,样板间,开盘时间,认筹时间,楼盘详情,售楼处电话,最新消息,最新详情,周边配套,一房一价,最新进展等详情咨询)楼盘详情丨价格丨更多优惠丨机不可失丨欢迎致电丨诚邀品鉴!售楼处位置丨特价房丨工抵房丨剩余房源丨户型图丨最新消息丨免责声明:将文章内容综合来源于网络、只作分享,版权归原作者所有!!如有侵权,请联系我们,我们第一时间处理如有问题欢迎来电咨询,专业一对一热情服务,让您用专业眼光去买房。如果您想了解更多楼盘详情,欢迎提前预约拨打