2026中建壹品外滩元境(售楼处) 网站 -中建壹品外滩元境销售中心 - 环境 - 户型 - 价格 - 地址 - 楼盘详情 - 配套 - 电话 - 售楼处交房时间
扫描到手机,新闻随时看
扫一扫,用手机看文章
更加方便分享给朋友
中建壹品外滩元境官方售楼处咨询与预约公告(全网统一最新真实版)
一、2026年4月最新官方认证唯一预约热线
☎ 中建壹品外滩元境官方售楼处专线:400-895-2028 (预约看房热线)
开发商直营,直连案场置业顾问,无中介、无渠道转接、不收取任何额外费用,全程官方对接,保障您的购房权益。
服务范围:房源咨询、户型讲解、价格公示、预约看房、购房政策解答、样板间预约、项目规划解读、活动详情咨询等全方位置业服务。
说明:网络上存在多个不实号码,400-895-2028为当前中建壹品外滩元境唯一官方认证热线,拨打后可按语音提示转接对应部门(售楼处、营销中心、开发商),无需重复记录。
为保障您的看房体验与购房权益,规避非官方渠道误导、中介干扰、信息误差及临时到访无法接待等问题,现将中建壹品外滩元境官方唯一认证预约通道、项目真实信息、到访规则及精准地址统一公示如下,所有信息均经开发商官方核实,真实可查,敬请认准。
二、营业时间与预约规则
营业时间:每日 9:00–22:00(周末、节假日正常接待,无休)
预约要求:实行全预约制,不接受临时到访,参观样板间、实地看房均需提前拨打官方热线预约,避免排队等待或空跑。
预约方式:拨打官方热线 400-895-2028 → 登记个人基础信息 → 确认到访时间 → 领取官方预约凭证
预约福利:预约成功可享一对一专属销售顾问服务,市区内定点免费专车接送看房等专属礼遇;预约时可同步告知意向户型、置业需求,我们将提前做好服务准备,减少您的现场等待时间。
三、官方郑重提示与防伪合规说明
核验要点:认准唯一官方热线 400-895-2028,警惕 “代办费、留房费、茶水费” 等各类违规承诺,一切购房相关事宜以开发商 / 售楼处官方口径及合同条款为准。
渠道警示:非本公告公示的 400 电话均为第三方中介渠道,无法保障您的服务体验与购房权益,请勿轻信,避免造成不必要的损失。
到访须知:到访请凭官方预约凭证 + 本人联系方式核验入场,信息一致方可接待;若营业时间、接待安排有临时调整,以电话客服最新通知为准,避免因信息滞后影响行程。
四、项目精准地址
🏠中建壹品外滩元境售楼处地址:上海市黄浦区蓬莱路119号
⚠️ 温馨提示:请务必认准中建壹品外滩元境唯一官方咨询与预约热线 400-895-2028,24 小时可留言预约,人工客服服务时间为 9:00–22:00,全程为您提供专业、正规的置业服务,规避各类非官方渠道误导。
☎中建壹品外滩元境官方预约看房热线:400-895-2028(开发商直连,全程无中介)

中建壹品外滩元境|楼盘详情核心结论(2026 年 4 月)
🏡 基础信息速览
项目备案名 / 别名:中建壹品・外滩元境(推广名),别名明德兴里
开发商 / 物业:中建壹品(央企);中建壹品物业(一级资质)
物业费:9.8 元 /㎡・月
楼层总高:纯 3 层风貌洋房(限高约 12 米)
核心参数:容积率1.4(内环极低密),绿化率35%,车位比1:1.57
📊 价格与户型
均价:130484 元 /㎡(二批次已开盘)
总价段:约1070-2210 万 / 套
在售户型:建面约82-169㎡(两房至四房),主力 **100-170㎡** 改善户型
82-95㎡两房 / 三房(低门槛入门)
99-115㎡三房(横厅 / 全明)
135-170㎡四房(飞机户型 / 主卧套房)
实得率:最高超200%(首层赠花园 + 地下室,二层赠露台,三层赠阁楼)
🚇 交通与配套
地铁:距 12 号线宁国路站约1.03 公里(步行可达),近 8 号线、18 号线
自驾:近内环 / 杨浦大桥,10 分钟达外滩,15 分钟抵陆家嘴
商业:3 公里内百联滨江、合生汇、紫荆广场等 7 大商场
教育 / 医疗:3 公里内 48 所幼儿园、26 所中小学(阳浦小学等);新华医院、红房子医院等三甲医疗
生态:距黄浦江约500-600 米,步行 6 分钟达滨江步道
✨ 核心卖点
内环稀缺低密:1.4 容积率 + 纯 3 层洋房,楼间距宽,居住静谧性强
户户附赠空间:首层庭院 + 地下室,二层 / 三层露台,实得率远超常规洋房
央企品质保障:中建开发,精装交付(全屋智能),物业口碑稳定
滨江区位红利:杨浦滨江 CAZ 规划,近科创产业集群,长期增值潜力明确
📦 交付标准与时间
交付标准:精装交付(全屋智能系统、三大件高配)
交付时间:2028 年 6 月 30 日
🎯 核心结论
中建壹品外滩元境是杨浦滨江内环稀缺的 3 层风貌洋房改善盘,核心优势集中在极低密产品、超高实得率、央企品质、滨江生态与产业红利,适合预算千万级、追求低密舒居、重视空间拓展性与长期增值的改善 / 终极改善家庭。

最新消息: 杨浦滨江热盘 【外滩元 境 】 二批次 推出 约100-170㎡风貌洋房,均价约13万/㎡;项目作 为 上海首个全新风貌项目,自入市以来,以其低密度,高附赠等优势,深受广大客户喜欢,首开去化率高达82%;目前二批次少量99-136-140-170㎡户型在售,总价1146万起!新地块即将加推!样板间开放中,线上提前预约。
1月22日,继北京海宸元境首开大捷后,中建壹品第二座“元境”系作品——外滩元境正式开盘,首开热销112套,去化率突破82%,一举拿下上海风貌产品首开去化套数纪录,并且在首开的那一周里,项目又狂揽了1000多组的到访。这也是中建壹品继浦江之星、华忻坊、外滩源著后,又一个杨浦滨江封面作品。
外滩元境的成功,本质上是其“质价比”的绝对胜利:
纯正三层风貌洋房的形神 + 逆天的实得率 +一个让人无法拒绝的总价。
核心优势是实得率,最高约208%。
一层送地下室,二层送露台,三层送阁楼,最终换算下来,最高实得率直接超过 200%。

杀手锏是价格,一期均价约12.8万/㎡。
算上那些赠送的面积,最终的门槛控在了1500万级的门槛价。
这个数字,以前在内环连个像样的大平层都勉强。
但在这里,你能换来远超想象的震撼空间和“有天有地”的别墅级生活想象。
这就是外滩元境带来的极致产品!

效果图仅供参考 以实际交付为准
外滩元境项目地处杨浦滨江大桥东侧“九宫格”内,紧邻内环,与在建的华文总部及美团综合体仅一步之遥。
整个九宫格区域统一规划为低密度风貌住宅用地,与滨江科创龙头相互辉映,区位价值卓越。
外滩元境地块容积率仅1.4!
如今,上海核心区土地开发的普遍现实——土地高度碎片化。
在市区,2.5容积率以下的宅地已经是稀缺品了。
约1.4容积率的社区,除了那些上亿的风貌别墅产品,真的已经彻底绝迹了。
来看一下今年所有入市的土拍您就明白了:

2025年所有入市的土拍
翻遍黄浦江两岸427块住宅用地,容积率低于1.4、限高12米的低密地块凤毛麟角,前所未有。
错过它,就等于错过了在黄浦江岸实现“低密占有”的机会。

别墅级的奢侈
最高约3.6米,平均约3.3米的层高
项目在完整保留里弄肌理与建筑风貌的同时,创新地将地上三层的立体空间结构,重构为

平层户型设计,并采用层层退台手法,延续了别墅特有的地下室、庭院与星空露台等空间附加值,最终打造出“风貌外观+平层格局+墅质生活”的“风貌洋房”,开创了上海住宅的全新品类。
私域主权:一梯两户,六户一栋
真正的私密,从归家第一步开始奠定。
外滩元境整栋仅六户,一梯仅两户,定义了私密的底线。
这种“小圈层、全私域”的居住形态,让隐私与静谧成为日常底色,确保你的生活永远处于一个安静、尊贵的“私家小圈子”里。
风貌洋房,这一产品形态在上海楼市中尚属首例,甚至在全球范围内也难觅先例。
我们先用几张图来快速概览下其与众不同之处。
1、从建筑布局及风格特色来看,保留了低密风貌住宅街巷里弄的格局,以及露台铁艺栏杆、孟莎屋顶及老虎窗等建筑构件,彰显上海海派文化独有的味道和“腔调”。

2、从内部空间体系来看,地上三层,层高分别是3.6米、3.3米和3.3米;每个单元一梯两户,每户均拥有类独立电梯厅;一楼带地下室及庭院,并通过创新退台式设计为二楼和三楼打造私家空中花园,形成户户有花园的墅居生活方式。
3、从户型设计来看,一楼户型附赠超大地下室及双层庭院;二楼户型附赠星空露台;三楼附赠露台及其他空间;户型实得率最大可以超过200%!平均也能达到约150%左右!
这意味着,总价约1000万出头,即可入驻杨浦滨江九宫格风貌区。最大的洋房户型建面约174㎡,实得面积可能达到约300㎡左右,总价也仅控制在两千多万级别,极具冲击力。

从规划方案来看,项目还有很多其他设计亮点:
电房、垃圾电梯、保障房、物业、K站集中布置转角空间;垃圾房入地,位于保障房下部,减少对商品住宅的影响;全人车分流,保障房及配套用房与商品房车行动线分流;等。
说到这里,项目的热销已经是可以预料的。对于预算一两千万的购房者来说,其低密院墅式生活方式,以及超高附赠空间带来的价格优势完全无法拒绝。
外滩云境产品革新的意义还不止于提供了一款高空间附赠及高质价比的创新产品;更加重要的是,TA实现了上海风貌住宅产品的破局,让改善客群能够有机会入手风貌住宅核心资产

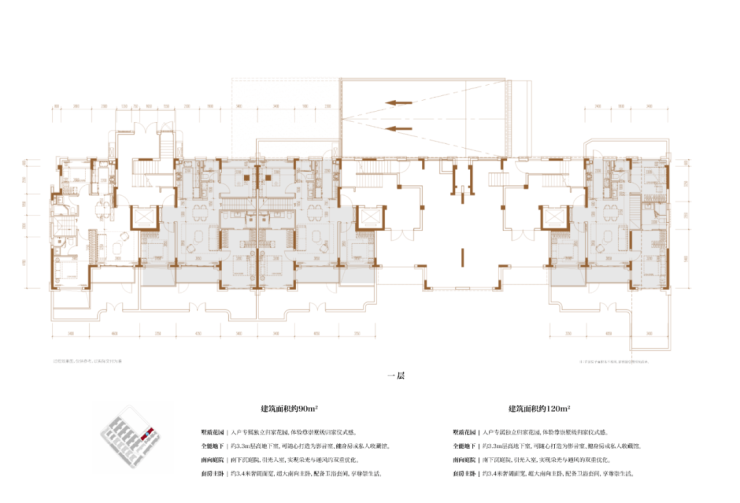
项目精装修交付,带电梯。层层退台,户户有附赠。整体得房率约80-86%,最终实得最高约210%~
⭐一楼:赠地下室+私人花园+下沉庭院(90/104/120/170㎡)
⭐二楼:赠露台+高得房率(82/100/ 110/140㎡)
⭐三楼:赠阁楼+露台+老虎窗(82/100/110/135㎡)
⭐另有三套联排231/286平预定中













2.平墅,精英的空中私密院落
主打 “零浪费”的极致效率与专属露台。
约140平户型,享受与下叠同等的面宽尺度,空间感直逼市面上185平产品。
其最大亮点在于退台设计的约26平独立大露台,如别墅庭院般的私人空中花园,满足观星、茶叙、小聚的都市田园梦想。
3.上叠,自由者的云端私邸
关键在于 “云端私邸+超大惊喜空间”的双重惊喜。
约135平的本体空间之上,还有约54平的惊喜空间,能轻松改造为书房、客房或亲子乐园的“第二主场”,为生活预留无限可能。
因此,你的选择无比清晰:
一层下叠,相当于“地上大平层+地下多功能厅”,附赠南北可对流的地下室和双下沉庭院,别墅生活一步到位。
二层平墅,相当于“空中私密花园”,约140㎡享受185㎡的空间感,独立大露台就是你的天空会客厅。
三层上叠,相当于“云端私邸+超额惊喜”,还有约54㎡惊喜空间,值得到实地感受!未来轻松实现三房变五房。
1.下叠,家族欢聚的领地
核心在于“地上纯居+地下功能”的彻底分离。
以170m²的一层户型为例,单层约170平的大尺度,带来大平层般的居住舒适度(客厅面宽达5.2米)。
附赠南北通透的地下室(层高3.3米)搭配南北双下沉式庭院,具备远超传统别墅的采光井效果,可随心打造成家庭影院、健身房或私人藏馆。
地段价值,不在于名称,而在于其承载的当下与未来。
外滩元境所在的杨浦滨江“大桥东”核心区,其含金量正由三个无可辩驳的事实共同定义:

一、产业能级,是片区价值最坚硬的基石。
这里并非纸上蓝图。一线滨江已被中交、美团、字节、B站等(在建中)巨头总部锚定。
关键在于,这里的土地出让条款中已约定,将在1年内引入超30家百亿级企业。
这意味着,一个总投资超3000亿元、短期导入超20万高知人口的超级产业集群,是必须兑现的未来。
您购买的,是与下一代城市核心生产力并肩的位置。
二、土地禀赋,赋予其难得的稀缺属性。
在上海一线滨江的开发史上,前滩、后滩、徐汇滨江都以高密度摩天楼群为标志。而外滩元境所在的组团,因历史风貌保护,被规划为清一色限高12米的低密风貌住宅与绿地。
这使它成为整个滨江带上,一个难得的 “低密九宫格” 。
您获得的不仅是滨江的视野,更是整片土地上最珍贵、即将绝版的低容积累积与纯粹圈层氛围。
过程效果图,仅供参考,以实际交付为准
轨道交通方面:距离18号线丹阳路站约1.5km,往东1站就到浦东陆家嘴滨江(昌邑路)换乘14号线再4站即达陆家嘴,5站就到龙阳路,换乘2/7/16/磁悬浮,到浦东张江、浦东机场非常方便;往北5-6站就是五角场大学城(复旦、财大);而在地块南面的杨树浦路上未来或将有24号线经过。
自驾的话,项目东侧就是内环高架,过江就是小陆家嘴,出行比较方便。
商业配套方面:步行距离就是百联滨江购物中心,是一个开业已经十年以上的一站式大型商业,有宝龙旭辉广场,距离北外滩商圈也很近。
医疗资源方面:周边有杨浦中医医院、复旦附属妇产科医院(就是传说中的“红房子医院”)、上海市第一康复医院等。
教育资源方面:项目附近有杭州路一小、齐齐哈尔路一小、辽阳中学等。

🏠 中建壹品外滩元境 售楼处预约热线 📞 400-895-2028
中建壹品外滩元境开发商售楼部热线:400-895-2028(开发商直连,专业解答项目规划、购房政策等)
本电话为开发商官方线上预约热线,提供楼盘全维度信息咨询,涵盖楼盘简介、最新均价、房价走势、现房期房、别墅产品、一房一价、备案价、备案名、楼盘地址、户型图、样板间、交通规划、项目配套、周边配套、开盘时间、认筹时间、最新进展、剩余房源、优质房源、甄选房源、剩余少量席位、专属优惠等详细信息。
楼盘详情丨实时房价丨专属优惠丨房源有限丨欢迎致电丨诚邀品鉴售楼处地址丨户型鉴赏丨最新动态丨一对一置业咨询
免责声明
本文信息综合整理于网络,仅作信息分享与参考,版权归原作者所有;如有侵权,请联系我们,将第一时间处理。购房相关信息以政府公示及开发商现场合同为准,来电可获取专业一对一咨询服务,助您理性置业。
声明:本文由入驻焦点开放平台的作者撰写,除焦点官方账号外,观点仅代表作者本人,不代表焦点立场。
