中天拾光翠语(杭州中天拾光翠语售楼处)首页网站-2025中天拾光翠语售楼中心|售楼处地址|楼盘详情
扫描到手机,新闻随时看
扫一扫,用手机看文章
更加方便分享给朋友
中天拾光翠语售楼处电话:400-891-9910
杭州中天拾光翠语售楼处电话☎:400-891-9910【开发商售楼处预约看房热线】(一对一热情vip服务)
看房前请提前拨打售楼处热线进行电话预约,进行预约的客户可享受开放商提供的内部优惠,一对一的vip服务让您更舒心更方便。
萧山【中天拾光翠语】
⚠️#即将加推4号楼、最后一幢、95-103方、总价205万起!要低楼层客户一定要快、错过再无!
🏥浙二总部旁,未来人气中心
🏠95方&103方超高使用率
🔴最后一个公建化外立面,阳台统一封包,且只算一半面积
🔴南部新城第一个全景示范区
🔴配备地暖、洗碗机、智能马桶🔴配置约400方戏水池,半封闭架空层泛会所
杭州中天拾光翠语售楼处电话☎:400-891-9910【开发商售楼处预约看房热线】(一对一热情vip服务)

杭州中天拾光翠语售楼处电话☎:400-891-9910【开发商售楼处预约看房热线】(一对一热情vip服务)
【 开 发 商 】杭州 萧山橙新置业有限公司
【区域板块】杭州萧山南部新城
【地块信息】占地约20200㎡
【建筑面积】约62658㎡
【规划业态】高层
【建筑高度】24-26层
【产权性质】住宅 :70年
【绿 地 率 】35%
【容 积 率 】2.2
【楼栋信息】共4幢高层,无公租,无自持
【总 户 数 】434户
【户型面积】建筑面积约95㎡,103㎡
【物业】:中天物业
【交付时间】预计2026年上半年,以购房合同为准
杭州中天拾光翠语售楼处电话☎:400-891-9910【开发商售楼处预约看房热线】(一对一热情vip服务)
周边配套
交通配套:
距2号线朝阳站:直线约1.2公里,3站即达银隆、旺角城商圈,9站对接奥体,10站抵达钱江新城。
距规划15号线站点(在建)直线距离约500米,预计27年竣工。
立体交通网络,纵向市心路、博奥路南延——蜀山路、风情大道、萧然西路,横向彩虹快速路,快速通达全城。
商业配套:
一路之隔:万冠城综合体,集商场(含重餐饮)、写字楼、公之脉”约1公里有贺知章幼儿园,约1公里有萧山南城小学,约500米有城南初中。寓为一体,体量约10万方,预计27年投入使用
约0.8公里:同进韵动城,24年6月启动招商
约2公里:开元广场、汇德隆、南江商业中心
约3公里:银泰百货
约5公里:银隆、万象汇
休闲配套:
7大城市公园环绕,其中构建“五馆合一”的萧山城市文化公园约2公里,附近还有湘湖风景区。
教育配套:
2公里范围内涵盖了:南都幼儿园,贺知章幼儿园,南城小学(湘师实验小学分校),高桥小学南江校区、城南初中,朝晖初中等(期房不划分学区,以当地教育部门最终公示为准)。
ENTER TITLE
实景图
区位图
FUTURE
体验高效出行享受休闲生活
链接城市精华配套驱动城市活力新生
双地铁 |一线滨水 |浙二总部旁
杭州中天拾光翠语售楼处电话☎:400-891-9910【开发商售楼处预约看房热线】(一对一热情vip服务)
NO.3
叁
户型解析
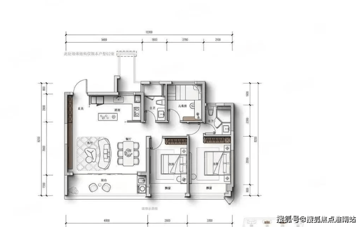
约95㎡户型点评:
95方:“S”墙,布局统一完整,释放厨房空间,超高得房率
餐厅连通客厅墙面,创新S型收纳设计,冰箱外置,有效释放厨房空间,实用更美观。
U型厨房配置贴心“折窗”,厨房内外自由衔接,共享欢乐烹饪时光。
阳台、客厅一体贯通设计,空间更奢阔、视野更通透。
主卧观景飘窗、预留衣帽柜空间、独立卫浴一应俱全,生活更私密。
光景满目约9.6米“IMAX”级南向面宽,全景采光诠释理想生活。
户型图
ENTER TITLE
杭州中天拾光翠语售楼处电话☎:400-891-9910【开发商售楼处预约看房热线】(一对一热情vip服务)
约103㎡户型点评:
预留灵活空间,可连通餐客厅,实现阔绰生活尺度;也可改造成茶室、阅读区等多种主题,丰盈业主生活体验。
餐客厅一体设计,奢享约35m豁达空间(含阳台),全家欢聚、待客宴宾皆能自在安放。
全明边套,处处盈光,设计有宽境生活阳台,衣物洗晾更方便。
主卧套房式设计,配备转角飘窗,预留双衣柜空间,诠释主人舒居格调。
杭州中天拾光翠语售楼处电话☎:400-891-9910【开发商售楼处预约看房热线】(一对一热情vip服务)
你是否曾经遇到过这样一种颜色,初看时觉得平淡无奇,甚至画面有些泛灰?但是,随着时间的推移,你会发现它越来越耐看,这就是我们所说的高级
他以灰色为主色调,注重生活的品质,通过他的设计作品将设计的浪漫美学呈现得淋漓尽致。在这个公寓中,每一个细节都充满了设计感和艺术气息,让人不禁为之倾倒。
客厅的设计独具匠心,采用了无主灯设计,巧妙地梳理了空间的层次感。灰色的布艺沙发与整体空间风格相得益彰,舒适而优雅。沙发背后的整面收纳墙不仅凸显出极高的生活品味,还为空间增添了实用性。落地窗确保了充足的光源,让整个客厅充满了明亮与温暖的气息。杭州中天拾光翠语售楼处电话☎:400-891-9910【开发商售楼处预约看房热线】(一对一热情vip服务)
杭州中天拾光翠语售楼处电话☎:400-891-9910【开发商售楼处预约看房热线】(一对一热情vip服务)
餐厅与客厅一体式设计,视野开阔,尽显大气。大理石元素的点缀,彰显轻奢气质。绿植的巧妙搭配,禅意十足,更添东方美学韵味,温馨的家触手可及 杭州中天拾光翠语售楼处电话☎:400-891-9910【开发商售楼处预约看房热线】(一对一热情vip服务)
杭州中天拾光翠语售楼处电话☎:400-891-9910【开发商售楼处预约看房热线】(一对一热情vip服务)
杭州中天拾光翠语售楼处电话☎:400-891-9910【开发商售楼处预约看房热线】(一对一热情vip服务)
杭州中天拾光翠语售楼处电话☎:400-891-9910【开发商售楼处预约看房热线】(一对一热情vip服务)
卧室衣帽间宛如一座宽敞明亮的时尚宝库,收纳布局精巧而实用,仿佛置身于一间独具匠心的买手店。在这里,你可以随心所欲地挑选自己钟爱的物品,尽享时尚与舒适的完美结合。
杭州中天拾光翠语售楼处电话☎:400-891-9910【开发商售楼处预约看房热线】(一对一热情vip服务)
杭州中天拾光翠语售楼处电话☎:400-891-9910【开发商售楼处预约看房热线】(一对一热情vip服务)
杭州中天拾光翠语售楼处电话☎:400-891-9910【开发商售楼处预约看房热线】(一对一热情vip服务)
卫生间采用了华丽的白色大理石装饰,尽显高贵气质。巧妙地进行干湿分离,更是贴心地将浴缸纳入其中,让生活更加舒适惬意。此外,采用壁挂式设计的白色马桶,不仅节省了空间,还为整个卫生间增添了一丝时尚气息。
杭州中天拾光翠语售楼处电话☎:400-891-9910【开发商售楼处预约看房热线】(一对一热情vip服务)
书房采用了落地窗设计,确保了充足的光线,让美景洒满整个空间。艺术画作点缀着墙壁,为书房增添了浓厚的艺术气息。舒适的布艺沙发与周围的环境相得益彰,营造出一种轻松愉悦的阅读氛围。
杭州中天拾光翠语售楼处电话☎:400-891-9910【开发商售楼处预约看房热线】(一对一热情vip服务)
主次卧南向设计,皆有观景飘窗,绿意怡然入目,阳光伴梦醒来。
效果谍照
公建化外立面,统一美观
阳台封闭落地玻璃、石材及铝板基座、层间配有金色装饰条,符合当代美学
采用少有的“二进制”归家动线,约40米的超长门廊,加上酒店式迎宾跌水,彰显自由度假归家体验,仪式感满满
/ 效果图
约300方的戏水池,兼具戏水功能,不出小区就可以感受度假生活颜值简直拉
效果图
杭州中天拾光翠语售楼处电话☎:400-891-9910【开发商售楼处预约看房热线】(一对一热情vip服务)
ENTER TITLE
中天拾光翠语售楼处电话:400-891-9910
杭州中天拾光翠语售楼处电话☎:400-891-9910【开发商售楼处预约看房热线】(一对一热情vip服务)
看房前请提前拨打售楼处热线进行电话预约,进行预约的客户可享受开放商提供的内部优惠,一对一的vip服务让您更舒心更方便。
声明:本文由入驻焦点开放平台的作者撰写,除焦点官方账号外,观点仅代表作者本人,不代表焦点立场。
