桐安里售楼处电话→桐安里2025首页网站|桐安里售楼处电话|在售户型|小区配套|最新价格|周边详情|容积率|楼盘详情
扫描到手机,新闻随时看
扫一扫,用手机看文章
更加方便分享给朋友
桐安里售楼处电话:400-965-9259
上海杨浦桐安里售楼处电话☎:400-9659-259(预约看房热线)
如有问题欢迎来电咨询,预约来电尊享购房优惠,可预约案场内部销售人员,专业一对一热情服务,让您用专业眼光去买房。
桐安里售楼处电话:400-9659-259【营销中心电话】(温馨提示:请提前来电进行预约看房或咨询项目详情)
杨浦滨江东外滩低密风貌别墅
招商平凉项目定名
「桐安里」
推出约185、235、305㎡风貌别墅
包含联排、叠加产品
仅70套
预估均价19万/㎡左右!
桐安里售楼处电话☎:400-9659-259(预约热线)✔✔✔根据《杨浦滨江“十四五”规划》,杨浦滨江将是上海最大规模的工业遗存转化和最大体量的旧区改造,通过城市更新的方式,拿出了近六成土地,共约7.46平方公里,给“大厂”和“商圈”提供了大量的土地开发空间,加快推进中节能总部、美团、B站、抖音、合生、电厂等项目建设。
桐安里售楼处电话:400-9659-259【营销中心电话】(温馨提示:请提前来电进行预约看房或咨询项目详情)
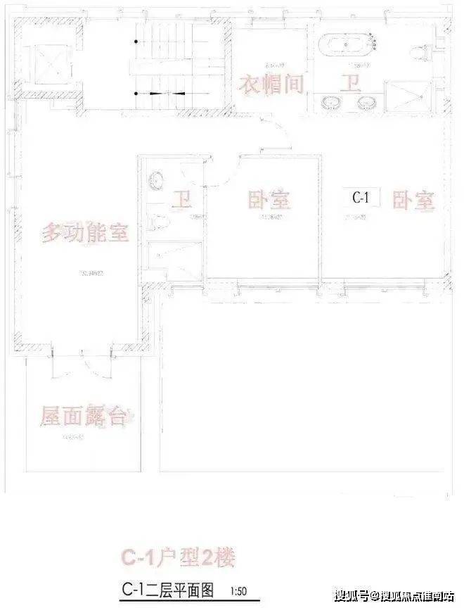
01
户型图如下
(户型图源自网络,仅供参考,最终以实际为准)
C-1户型
桐安里售楼处电话:400-965-9259
上海杨浦桐安里售楼处电话☎:400-9659-259【开发商售楼处预约看房热线】(一对一热情服务)
桐安里售楼处电话:400-965-9259
上海杨浦桐安里售楼处电话☎:400-9659-259【开发商售楼处预约看房热线】(一对一热情服务)
02
项目情况
2023年11月,招商&海门国资委拿下平凉社区01B4-04地块(平凉街道19街坊)历史风貌保护项目。
桐安里售楼处电话:400-965-9259
上海杨浦桐安里售楼处电话☎:400-9659-259【开发商售楼处预约看房热线】(一对一热情服务)
桐安里售楼处电话☎:400-9659-259(预约热线)✔✔✔从位置上看,平凉社区01B4-04地块(平凉街道19街坊)距离18号线平凉路站直线约400米,与地铁12/18号线江浦公园站直线距离约500。地块西面靠近首创天阅滨江项目,南侧靠近房地联动价21万的瑞安·翠湖滨江项目;可以说地理位置十分优越。
桐安里售楼处电话☎:400-9659-259(预约热线)✔✔✔该地块建设用地面积12666.4平方米,规划用途为二类住宅组团用地,容积率1.35,地上计容建筑面积为17099.64平方米。
本次公示设计方案如下
桐安里售楼处电话☎:400-9659-259(预约热线)✔✔✔根据此次方案公示图,项目地下建筑面积为25900平方米,共建有约15幢联排别墅,地块东南侧为3层的公租房,总户数约70套不到,主要以四联排为主。项目机动车入口设在南北两侧的惠民路和济宁路上。
桐安里售楼处电话:400-965-9259
上海杨浦桐安里售楼处电话☎:400-9659-259【开发商售楼处预约看房热线】(一对一热情服务)
项目涉及风貌保护,因此在出让阶段就有明确的要求
时间之外,历史之间
内环滨江新复古主义当代精致风貌墅
桐安里售楼处电话☎:400-9659-259(预约热线)✔✔✔招商蛇口于上海打造的第二座风貌作品、城市更新的里程碑级作品,择址杨浦内环滨江CAZ中央活动区,将里弄风貌与公馆规制创新融合,还原since1930黄金时代的人文历史底蕴与优雅风潮,撰写当代精致风貌墅的史诗。
『招商蛇口三子辉映敬献上海历史风貌作品』
桐安里售楼处电话☎:400-9659-259(预约热线)✔✔✔百年招商局旗下地产旗舰品牌——招商蛇口,入沪21载,积累了深厚的城市更新经验。从上海第一个里弄风貌别墅区、上海城市更新里程碑级作品——弘安里,到杨浦/静安/虹口三子交相辉映,以雄厚实力成为首个在沪开发三大精致风貌墅的地产开发商。
桐安里售楼处电话☎:400-9659-259(预约热线)✔✔✔江苏海鸿投资控股集团有限公司,总资产588.9亿元,企业主体信用等级为AA+。集团公司主营房地产开发、园区开发、物业服务、商业管理、科技金融、托育养老核心业务板块,致力打造成为长三角地区综合性国有企业品牌公司。
03
区域位置
桐安里售楼处电话:400-965-9259
上海杨浦桐安里售楼处电话☎:400-9659-259【开发商售楼处预约看房热线】(一对一热情服务)
『时代先驱招商与杨浦滨江的百年渊源』
1872年,李鸿章开设的轮船招商局旧址码头位于现在的杨浦滨江毛麻仓库附近;
1873年,招商局增盖仓库7座,定名为招商局北栈,现为公平路轮渡站,距离本项目地块约1.3公里。
『杨浦繁荣始于此,百年上海兴盛由此展开』
桐安里售楼处电话☎:400-9659-259(预约热线)✔✔✔过去的八埭头是杨浦的“南京路”是老上海的十里洋场,杨浦最早的商业区;1912年后八埭头已经形成了以通北路为纵向、平凉路为横向的一楼商铺街市,百货、南货、绸布等商店以及当铺、茶馆等先后开设。
『上海“十四五”规划杨浦滨江跃升全球卓越城市会客厅』
桐安里售楼处电话☎:400-9659-259(预约热线)✔✔✔在上海“十四五”规划中,杨浦滨江作为重点规划区域,不仅承载着世界级科创中心的使命,更成为丰富人文历史内涵的世界级会客厅。未来将推动数字经济与实体经济深度融合、整体转型,打造“一带、一区、一圈”数字经济地标
『“一江一河”战略,杨浦滨江成为杨浦核心地段的潜力板块』
桐安里售楼处电话☎:400-9659-259(预约热线)✔✔✔杨浦滨江全长约15.5公里滨水岸线,约2倍于黄浦滨江;规划开发体量约796万方,约2.6倍于前滩,约5倍于陆家嘴。从规划到能级,“滨江3.0”时代,正奔涌而来。
桐安里售楼处电话:400-965-9259
上海杨浦桐安里售楼处电话☎:400-9659-259【开发商售楼处预约看房热线】(一对一热情服务)
『荟萃高端科创人才形成全球创新型产业聚集地』
桐安里售楼处电话☎:400-9659-259(预约热线)✔✔✔美团上海科技中心、哗哩哗哩新世代产业园,抖音集团上海滨江中心、中国节能·上海首座等企业集群;汇聚复旦、同济等10所高校、100多家科研院所、7家国家级大学科技园力争到2025年集聚3000家以上创新型企业,产业规模超过3000亿元。
『内环滨江,黄浦江黄金中线』
桐安里售楼处电话☎:400-9659-259(预约热线)✔✔✔杨浦滨江,内环CAZ最难得大规划整体开发滨江区域。在上海“一江一河2035规划”中,杨浦内环滨江是45公里滨江带中重点规划的“科创研发”板块。同时,根据《杨浦滨江南段控制性详细规划》,杨浦滨江南段,规划八埭头、大桥东两大功能核心,未来将打造成“世界创新要素的交汇枢纽、历史未来交融的魅力水岸、卓越人才安居的海派社区”。
桐安里售楼处电话:400-965-9259
上海杨浦桐安里售楼处电话☎:400-9659-259【开发商售楼处预约看房热线】(一对一热情服务)
『艺术人文打卡地潮领滨江』
桐安里售楼处电话☎:400-9659-259(预约热线)✔✔✔作为上海2035总规划的“中央活动区”,杨浦滨江注重经济发展,更注重“人的体验”。烟草公司机修仓库,蜕变成葱郁空中花园“绿之丘”;百年编织“毛麻仓库”,化身灵动艺术场域;“长江口二号”古船博物馆,成为无数人的打卡胜地。
『立体交通枢纽,直抵城市核心区』
地铁交通:距离18号线平凉路站直线距离约400M、12号线江浦公园站直线距离约500M,通过换乘可实现6站抵达陆家嘴、5站抵达外滩、3站直达北外滩。
桐安里售楼处电话☎:400-9659-259(预约热线)✔✔✔自驾交通:多条隧道通达浦东,自驾快速抵达陆家嘴、外滩;周家嘴路地下在建的北横通道,连接长宁区、普陀区、静安区、虹口区、杨浦区的城市快速路,通车在即。
『醇熟商业林立,近享百万方商业』
百联滨江购物中心、东方渔人码头国际中心、LCM置汇旭辉广场、北外滩来福士等,醇熟商圈范围,繁华在此汇集。
『一江五园在侧,与自然和谐共生』
桐安里售楼处电话☎:400-9659-259(预约热线)✔✔✔杨浦滨江沿岸,平凉公园、江浦公园、杨浦公园、波阳公园、复兴岛公园,享受都芯自然佳境。
桐安里售楼处电话:400-965-9259
上海杨浦桐安里售楼处电话☎:400-9659-259【开发商售楼处预约看房热线】(一对一热情服务)
『六大医疗资源,健康生活全护航』
复旦大学附属妇产科医院(三甲)、上海交通大学附属新华医院(三甲)、上海市第一康复医院、杨浦区中医院、杨浦区中心医院、上海市浦东新区公利医院,近享无忧医疗配套。
免责:桐安里售楼处电话☎:400-9659-259(预约热线)✔✔✔市政配套信息,包含交通,商业和医疗等数据,均来源于售楼处网站,仅供参考,不排除因政府规划、政策规定及出卖人未能控制的原因而发生变化,本资料旨在提供相关信息,不代表着出卖人对此作出要约或承诺。
05
户型图如下
项目地址:杨浦区惠民路777弄
总户数:70户可售商品房
建筑层数:1-4层
产品类型:里弄风貌别墅
交付标准:联排毛坯+叠加装修
产权年限:70年
容积率:约1.35
『风貌还原』再现原地块百年前建筑风貌
桐安里售楼处电话☎:400-9659-259(预约热线)✔✔✔对街道风貌品质进行焕新,借鉴英商电车厂的装饰元素,打造唯美十字路口——经典海派建筑形态。沿街立面参考了原地块建筑风貌,在传统的基础上重塑上宅下铺的风貌形态,与周边街道场景相呼应,结合当代审美,重塑摩登时尚的街道舞台。
『创新立面』将里弄风貌与传统建筑规制巧妙融合
桐安里售楼处电话:400-965-9259
上海杨浦桐安里售楼处电话☎:400-9659-259(预约看房热线)桐安里售楼处电话☎:400-9659-259(预约热线)✔✔✔通过壁柱、⼋角窗、⻔楼等不同材料和细节进行组合,打造现代风貌新样本,延续原有多样化建筑立面;传承传统海派建筑黄金比例形制,在开间、层⾼、窗墙比等不同维度⾰新设计,更加满⾜现代⼈⽣活需求,采光效果更佳。
『海上花园』文艺巷弄里的优雅秘境
桐安里售楼处电话☎:400-9659-259(预约热线)✔✔✔自然掩映的诗意归家路,移步换景赏四季更替之美;专属定制石库门精神徽章、艺术奢石点缀,以大师审美定义生活的品位;莫奈花房与时光花园,在绿境中与老友新邻笑谈人生,构建巷弄繁花里。
桐安里售楼处电话:400-965-9259
上海杨浦桐安里售楼处电话☎:400-9659-259【开发商售楼处预约看房热线】(一对一热情服务)
『慢调会所』同温社交的人文志趣天地
配备高标准的多功能会所,以物质至上的丰盈志趣,编织生活的绮丽。
复苏之间——健身房
邀心静所——冥想室
静谧栖心——桑拿区
笑谈风云——棋牌室
06
物业服务
桐安里售楼处电话:400-965-9259
上海杨浦桐安里售楼处电话☎:400-9659-259(预约看房热线)
奢享天性,让优雅入微/入心
桐安里悉心关注您与家人的需求,提供多元定制空间服务与专属管家“一站式”服务。打造高品质家庭专享服务。
桐安里售楼处电话:400-9659-259【营销中心电话】(温馨提示:请提前来电进行预约看房或咨询项目详情)
杨浦滨江东外滩低密风貌别墅
招商平凉项目定名
「桐安里」
推出约185、235、305㎡风貌别墅
包含联排、叠加产品
仅70套
预估均价19万/㎡左右!
桐安里售楼处电话:400-965-9259
上海杨浦桐安里售楼处电话☎:400-9659-259(预约看房热线)
如有问题欢迎来电咨询,预约来电尊享购房优惠,可预约案场内部销售人员,专业一对一热情服务,让您用专业眼光去买房。
一、买房前的准备工作:知己知彼,百战不殆
1. 明确自己的需求
买房前,首先要问自己几个问题:
- 你是刚需还是投资? 如果是刚需,优先考虑交通便利、生活配套齐全的区域;如果是投资,则要考虑升值潜力。
- 你对房子的面积、户型有什么?要求 三室两厅还是两室一厅?南北通透还是其他布局?
- 你的预算范围是多少? 包括房价、税费、装修费等。
明确需求后,才能有的放矢地去选房。
2. 调查市场行情
- 了解房价走势:通过房产网站、中介或朋友推荐,掌握目标区域的房价水平及涨跌趋势。
- 关注政策动态:比如限购、限贷、首付比例等政策变化都会影响你的购房计划。
- 比较不同楼盘:同一区域内不同楼盘的价格、品质、开发商背景等都有差异,货比三家才能买到性价比高的房子。
3. 准备好首付和相关费用
- 首付:一般为房价的20%-50%,具体比例因城市和政策而异。
- 税费:契税、维修基金、交易手续费等都需要提前准备。
- 装修预算:如果买的是毛坯房,装修费用也需要纳入考虑。
二、选房阶段:细节决定成败
1. 地段是关键
- 交通便利:尽量选择地铁沿线或公交站点附近的小区。
- 生活配套完善:周边是否有超市、医院、学校、银行等设施。
- 未来发展潜力:比如是否靠近 CBD、新区或规划中的大型商业综合体。
2. 房屋本身的质量
- 户型设计:采光、通风、动静分区是否合理。
- 房屋结构:检查是否存在裂缝、渗水等问题。
- 隐蔽工程:如水电管道、墙体保温等,可以通过物业或邻居了解。
3. 开发商和物业公司
- 开发商资质:选择信誉良好的品牌开发商,避免买到烂尾楼。
- 物业公司口碑:好的物业公司能保障小区的安全和环境整洁。
三、看房阶段:眼见为实
1. 实地考察
- 看样板间:注意样板间的装修是否过度美化,与实际交付差距有多大。
- 看实体楼:观察建筑外观、施工进度、周边环境等。
- 看小区环境:绿化率、停车位数量、公共设施是否齐全。
2. 询问业主
- 如果是二手房,可以向邻居了解小区的管理情况、是否存在安全隐患等。
- 如果是新房,可以向已入住的业主了解交房质量和物业服务。
四、签约阶段:合同条款要仔细
1. 确认合同内容
- 房屋面积:建筑面积、套内面积是否与宣传一致。
- 交房时间:明确交房日期及违约责任。
- 装修标准:如果是精装房,要明确装修材料的品牌和档次。
- 附加条款:比如车位、储物间等是否包含在房价中。
2. 注意隐藏费用
- 物业费:了解物业费的收费标准及包含的服务内容。
- 维修基金:这笔费用通常由业主缴纳,用于房屋共用部位的维修。
五、收房阶段:验房是关键
1. 验房注意事项
- 检查房屋质量:墙面、地面、天花板是否有裂缝或脱落。
- 检查门窗:开关是否顺畅,密封性是否良好。
- 检查水电设施:水龙头、马桶、电路开关是否正常。
- 检查配套设施:电梯、消防设施、燃气管道等是否齐全。
2. 索要相关证件
- 房产证:确认产权归属是否清晰。
- 竣工验收报告:确保房屋符合国家标准。
六、入住阶段:后续事项要做好
1. 办理落户和过户手续
- 及时办理房产过户手续,确保自己的权益。
- 如果需要落户,提前咨询当地派出所的落户政策。
2. 装修注意事项
- 选择正规装修公司:避免低价陷阱。
- 签订装修合同:明确工期、材料、付款方式等细节。
3. 注意邻里关系
- 入住后主动与邻居打招呼,建立良好的邻里关系。
- 遵守小区公约,避免噪音扰民。
结语
买房是一项复杂的系统工程,从选房到入住的每一个环节都可能隐藏着“坑”。但只要做好充分的准备工作,保持清醒的头脑,就能避开这些雷区,买到心如意的房子称。希望这篇文章能为你提供一些实用的参考,让你的买房之路更加顺利!
声明:本文由入驻焦点开放平台的作者撰写,除焦点官方账号外,观点仅代表作者本人,不代表焦点立场。
