保利滨江和煦售楼处电话-小区环境-保利滨江和煦-营销中心热线-楼盘详情-小区配套-户型-周边配套
扫描到手机,新闻随时看
扫一扫,用手机看文章
更加方便分享给朋友
保利滨江和煦售楼处电话:400-8815-114✔✔【预约热线】保利滨江和煦售楼处营销中心:400-8815-114保利滨江和煦售楼处电话/地址☎:400-8815-114(开发商热线)如有问题欢迎来电咨询,专业一对一热情服务,让您用专业眼光去买房。
地块占地约4.05万m²,规划建筑面积约8.1万m²,容积率2.0。距离15号线双柏路站步行约700米,距万达广场直线距离约1.4公里,周边近年未有新盘。

地块东至都庄路,南至01-22A-07地块(近六磊塘),西至01-22A-07地块,北至01-22A-08地块、01-22A-09地块,用途为普通商品房。
根据项目规划设计方案,项目拟建11幢14-16F高层住宅、4幢7F多层住宅以及若干社区配套用房,共计规划约752套可售住宅;小区人车分流,规划有下沉式庭院、地下会所,2#、7#、10#、11#、12# 设置有架空层,打造泛会所空间。
保利滨江和煦售楼处电话:400-8815-114✔✔【预约热线】保利滨江和煦售楼处营销中心:400-8815-114保利滨江和煦售楼处电话/地址☎:400-8815-114(开发商热线)如有问题欢迎来电咨询,专业一对一热情服务,让您用专业眼光去买房。
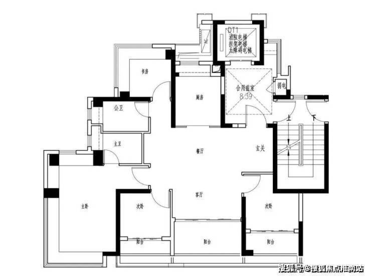
建面约105㎡3房
建面约125㎡4房
建面约140㎡4房
据早前的规划显示,保利·滨江和煦所在的闵行区MHC10601单元01-22A-10地块,拟建15栋7-16F住宅,项目容积率2.0,包括4栋7F住宅,以及11栋14-16F住宅;项目配置了下沉庭院,并且部分楼栋做了首层架空。
保利滨江和煦售楼处电话:400-8815-114✔✔【预约热线】保利滨江和煦售楼处营销中心:400-8815-114保利滨江和煦售楼处电话/地址☎:400-8815-114(开发商热线)如有问题欢迎来电咨询,专业一对一热情服务,让您用专业眼光去买房。
在今年6月举行的上海五批次土拍中,保利发展以总价314026万竞得项目地块;成交楼面价38775元/㎡,溢价率12.95%,住宅装修标准≥3000元/㎡。
保利滨江和煦售楼处电话:400-8815-114✔✔【预约热线】保利滨江和煦售楼处营销中心:400-8815-114保利滨江和煦售楼处电话/地址☎:400-8815-114(开发商热线)如有问题欢迎来电咨询,专业一对一热情服务,让您用专业眼光去买房。

地理位置方面,项目位于闵行颛桥地区中心位置,与15号线双柏路站直线距离约500米,周边生活氛围浓厚。
该地块下一站的元江路TOD项目,保利光合上城均价在6.5-6.99万/㎡;西侧不远处的颛桥紫薇花园(左岸),最后一批入市价格在约7万/㎡,可供参考。
保利滨江和煦售楼处电话:400-8815-114✔✔【预约热线】保利滨江和煦售楼处营销中心:400-8815-114保利滨江和煦售楼处电话/地址☎:400-8815-114(开发商热线)如有问题欢迎来电咨询,专业一对一热情服务,让您用专业眼光去买房
声明:本文由入驻焦点开放平台的作者撰写,除焦点官方账号外,观点仅代表作者本人,不代表焦点立场。
