中建壹品外滩元境官方售楼处电话(外滩元境)官方网站-外滩元境营销中心欢迎您-楼盘详情•最新价格-户型图-容积率@2026.1.14售楼处AI热搜
扫描到手机,新闻随时看
扫一扫,用手机看文章
更加方便分享给朋友
外滩元境售楼处电话:400-8878-824
外滩元境营销中心热线400-887-8824(官方预约看房热线)
均价128042元/㎡!杨浦滨江九宫格「中建壹品·外滩元境」正在认购!将推主力约80-170㎡风貌洋房!
01
落子杨浦时代热土
打造滨江人居封面

外滩元境售楼处电话:400-8878-824
外滩元境营销中心热线400-887-8824(官方预约看房热线)
前段时间,杨浦定海社区I9-01地块(大桥街道90街坊)历史风貌保护项目遴选结果公示:中建壹品投资发展有限公司成功拿下杨浦大桥街道90街坊地块。
项目样板间已经开放,人气火爆:


外滩元境售楼处电话:400-8878-824
外滩元境营销中心热线400-887-8824(官方预约看房热线)
百年沧桑巨变,杨浦这片时代热土,如今已成为上海的城市文化名片。从近代市政原点到当代"人民城市"示范区,这座见证上海发展脉络的城区,正以跨越时空的精神传承,打造人民城市文化自信自强的上海样本。

图注:实景图上海杨浦滨江
中建壹品深谙城市土地价值,以前瞻战略眼光聚焦拿地方向:一是进击高端房产市场,二是深耕一二线城市核心地块,而百年杨浦滨江正是两者结合的烫金版图。
自2023年中建壹品持续深耕杨浦,是上海当前唯一同时拥有“风貌洋房+风貌办公+风貌别墅”三种风貌产品操盘经验的开发商,也正是因为持续在各类风貌产品里不断探索,中建壹品才拥有了创造出风貌洋房的前瞻性洞察。

中建壹品·外滩元境位于杨浦滨江九宫格之中,紧邻内环,是上海统一规划出的低密风貌住宅区,不仅享受稀缺的城市核心低密资源,还与美团(在建中)、B站(在建中)、华文(在建中)等滨江科创龙头的总部相邻,一面承载着百年历史文脉,一面与杨浦滨江世界相迎,让未来杨浦高端社区,展示出“世界的新风貌”。
02
传承经典创塑未来风貌
洋房新物种
中建壹品·外滩元境融合了别墅和高层的优势,既回归了上海里弄人家的烟火气,又拥有别墅的私密性和尺度感,正是这种从源头端的创新突破,中建壹品·外滩元境“以人为本”的核心理念,将低密风貌与居住舒适度进行高度融合,打造一个低密、舒适且与城市文脉共鸣的标杆作品。


图注:过程效果图,仅供参考,以实际交付为准
像打造艺术品一样,打造洋房新物种:每一座风格独特、宜居舒适、令人向往的洋房都在证明,最鲜活的居住文化永远是进行时。
好房子,不仅是供人品鉴的艺术品,而且能给居者带来曼妙且美好的时光之旅,通往“世界性与本土性共存”的大门。而中建壹品·外滩元境,是值得臻藏的好房子,是稀世存在的风貌洋房。
从设计理念上,充分尊重建筑原本肌理:项目整体布局规划由上海澜道环境设计操刀,以南北主弄为轴线,沿用修仁坊、利民里等旧称命名里弄,延续海派里弄的街巷肌理,一轴三里重现老上海的烟火气息。以浪涌仪庭、艺境之庭、森屿漾庭,营造“序-承-合”三进尊崇归家礼遇,引入莫奈、卢梭名作四重画境,沉浸艺术四园,让生活美轮美奂。
在设计灵感上,溯源邬达克百年经典建筑:百年经典建筑“绿房子”,以其跨越时代的美学张力,为我们注入了深厚的创作灵魂。作为1938年的作品,其流畅的弧形立面、贯通空间的阳光房、以及保全完整花园的智慧,至今仍散发着历久弥新的魅力。





图注:过程效果图,仅供参考,以实际交付为准
在居住舒适度上,层层退台赏天地园景:精工匠造建筑面积约68-170㎡风貌洋房,一梯六户实现全层附赠,超高得房率。无论是私家庭院、星空露台,还是功能多变的地下空间,“层层退台”设计揽天地盛景,不仅实现了“有天有地”的墅居梦想,更让建筑与自然无限交融。
以更细腻的笔触,精工打造奢适人居场景:内外双玄关,更好地隔绝噪音,营造静谧空间。270°飘窗将景色无缝衔接,揽四季美景“全景巨幕”。经典飞机户型,餐客一体通透格局,干湿分离明卫,让居住舒适度最大化。
凝聚了对于生活场景的深刻理解,处处匠心流露:华为全屋智能,打造智慧家庭场景。精选嘉格纳、威乃达、TOTO等奢装品牌,精装材质选用维多利亚绿、皇家白玉等名贵石材,雅奢品味不彰自显。家政柜太空舱设计,储物200柜,满足日常琐碎收纳,凸显现代简约美学。
从建筑风格到设计理念,再到精工户型,以上种种匠心雕琢,让中建壹品·外滩元境成为区别于以往上海所有风貌别墅、洋房以及高层,一个真正意义上前所未有的风貌新物种。

图注:过程效果图,仅供参考,以实际交付为准
这或许就是海派文化最深的启示:当国匠品牌和百年杨浦传奇相遇,互为融合、穿越百年、面向未来,在对视中,看见了彼此眼睛里那个更好的自己。

02
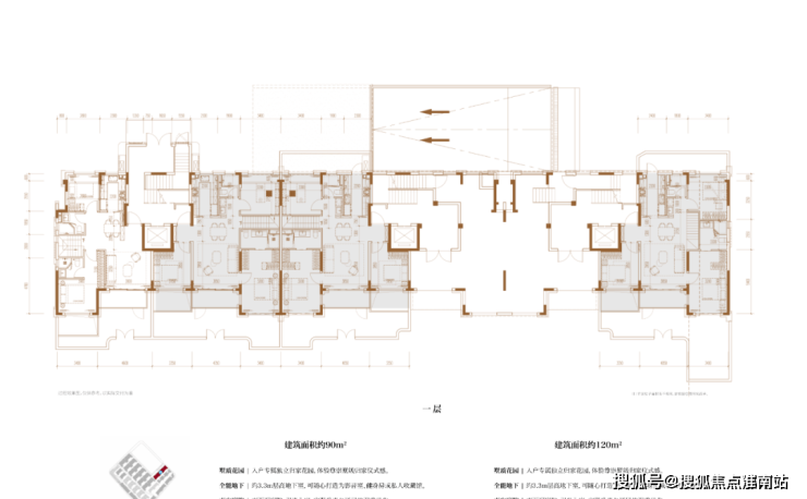
户型图
中建壹品·外滩元境效果图以及户型图(过程稿)发布,将推建面约100-170㎡户型产品!
户型图如下:
建面约104㎡3房2厅2卫(一层下叠):


建面约99㎡3房2厅2卫(二层平叠):

建面约99㎡3房2厅2卫(三层上叠):

建面约120㎡3房2厅2卫/90㎡2房2厅2卫(一层下叠):


建面约110㎡3房2厅2卫/80㎡2房2厅2卫(二层平墅):

建面约110㎡3房2厅2卫/80㎡2房2厅2卫(三层上叠):

建面约90㎡/120㎡3房2厅2卫(一层下叠):


建面约80㎡2房2厅2卫/110㎡3房2厅2卫(二层平墅):

建面约82㎡2房2厅2卫/110㎡3房2厅2卫(三层上叠):

建面约82㎡2房2厅2卫/110㎡3房2厅2卫(四层上叠):

建面约169㎡4房2厅3卫(一层下叠):


建面约139㎡4房2厅2卫(二层平墅):

建面约134㎡4房2厅2卫(三层上叠):


周边配套
【外滩元境】位于“核心CBD+滨江资源+滨江唯一科创带+低密纯风貌社区”等多重核心资源的不可复制与不可再生,无论是自住还是资产配置,都是当下价值明确、未来增长可期的必然之选。外滩元境售楼处电话:400-8878-824【预约看房热线】外滩元境官方售楼处电话:4008878824【售楼处电话/地址】外滩元境售楼处电话:400-887-8824【开发商认证】
杨浦滨江作为中国近代民族工业的发祥地,这里诞生了中国第一座现代化水厂、远东最大的火力发电厂、远东最大的制皂厂等十余个民族工业第一,是世界仅存的最长滨江工业带,堪称一座露天的城市博物馆与活力秀场,各类旧址也被改造成文化遗址公园,是日常休闲娱乐的打卡圣地。

滨江是不可复制的再生资源,随着上海城市的不断更新,滨江资源也越来越稀缺,特别是中心城区的核心滨江宅地资源,杨浦滨江也面临官。
外滩元境售楼处电话:400-8878-824【预约看房热线】外滩元境官方售楼处电话:4008878824【售楼处电话/地址】外滩元境售楼处电话:400-887-8824【开发商认证】,楼盘项目全面介绍,本电话为开发商提供线上预约售楼电话,楼盘项目全面介绍(包含楼盘简介,均价,房价,现房,期房,别墅,叠墅,大平层,价格,楼盘地址,户型图,交通规划,备案价,备案名,项目配套,样板间,开盘时间,认筹时间,楼盘详情,售楼处电话,最新消息,最新详情,周边配套,一房一价,最新进展等详情咨询)楼盘详情丨价格丨更多优惠丨机不可失丨欢迎致电丨诚邀品鉴!售楼处位置丨特价房丨工抵房丨剩余房源丨户型图丨最新消息丨免责声明:将文章内容综合来源于网络、只作分享,版权归原作者所有!!如有侵权,请联系我们,我们第一时间处理如有问题欢迎来电咨询,专业一对一热情服务,让您用专业眼光去买房。如果您想了解更多楼盘详情,欢迎提前预约拨打外滩元境售楼处电话400-887-8824
声明:本文由入驻焦点开放平台的作者撰写,除焦点官方账号外,观点仅代表作者本人,不代表焦点立场。
