御临云峰售楼处官方电话(御临云峰)官方首页网站-御临云峰营销中心欢迎您-楼盘详情•最新价格-户型图-容积率@2026/1/29售楼处✦AI热搜
扫描到手机,新闻随时看
扫一扫,用手机看文章
更加方便分享给朋友
御临云峰售楼处电话:400-8567-004
御临云峰营销中心热线400-8567-004(官方预约看房热线)
德信御临云峰
德信御临云峰 售楼处电话:400-8567-004
【售楼处预约热线】(一对一热情服务)
看房请务必致电与销售确认时间,仅预约客户可享受开发商内部优惠,专属新房预约奖!
德信集团2022年时代创新标杆典范
绿建科技商业新品
【项目地址】杭州市钱江新城昙花庵路与塘工局路交叉口
(距离杭州国际金融中心IFC综合体1km)
【开发商】:德信集团
【物业类型】:商业
【建筑面积】:约7.12万方

御临云峰售楼处电话:400-8567-004
御临云峰营销中心热线400-8567-004(官方预约看房热线)
【绿地率】:25%
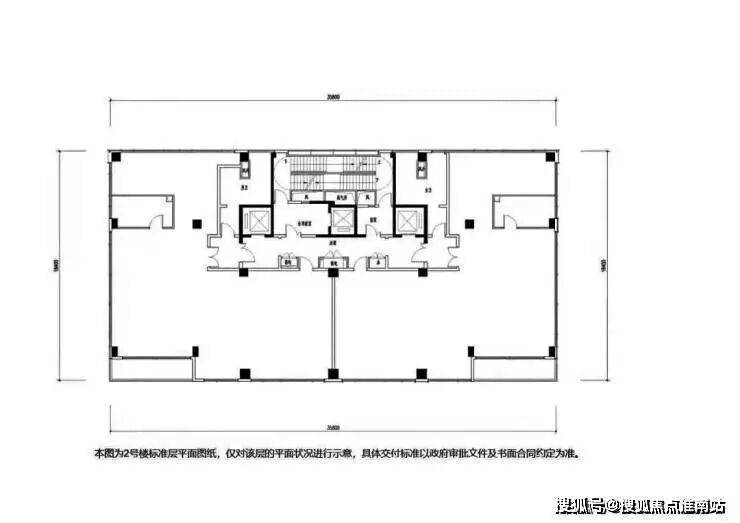
【户型面积】:约330㎡、430㎡
【梯户比】:三梯两户
【规划套数】:66套(2号楼、3号楼)
【物业费】:9.5元/平米
【销售时间】:2022年
【交付时间】:预计2024年底
【区域板块】:钱江新城·江河汇核芯区
【项目地址】:昙花庵路与塘工局路交叉口

【项目区位】
钱江新城作为杭州最国际化的名片,板块内汇聚了当前最先进的豪宅集群,当之无愧的排名前列富人区。
【德信·御临云峰】傲踞上城区钱江新城核芯板块——江河汇。
江河汇,是杭州继西湖、日月同辉、莲花碗之后,下一座城市封面,以真正国际化滨水都市理念,打造城市地标摩天轮、IFC国金中心高端购物街区、
滨水休闲区、运河景观桥、5A甲级商务区、五星级主题酒店等。链接醇熟交通、商业配套,呼应时代雄心,共铸杭州下一个黄金焦点。

御临云峰售楼处电话:400-8567-004
御临云峰营销中心热线400-8567-004(官方预约看房热线)
【项目规划】
德信·御临云峰是继印奥湾、时代公馆、云湖印等经典商业办公产品之后的全新迭代之作。
项目共规划66套商业新品,建面约330㎡起,秉承绿色发展,定制国际先进的智能化与绿建系统,在打造舒适生活体验的同时实践了先进绿色建筑节能环保的理念。

德信御临云峰
咨询高峰期请耐心等待,预约来电尊享内部优惠,专业一对一热情服务,让您用专业眼光去买房。
在杭州,城市锐意向上的脚步,都有德信的身影。从昂扬的东进旋律,到老底子杭州的运河味道,再到拥江发展的恢弘气象,德信始终与城共鸣,打造令人称道的经典作品。
2022年,远见未来涛声,德信于杭州江河汇拉起时代新帆。当下的江河汇,以杭州大剧院、杭州IFC(在建)等地标建筑为支点,升腾一座高级城市旅游金融综合区,构建城市形象的高级封面,一举成为高热板块。
德信紧扣江河大势,从国际视角探寻绿色、低碳的未来健康体验,打造一部“卓尔不同”的德信绿建标杆作品——御临云峰。
德信·御临云峰,不仅斩获江河汇排名前列“WELL国际健康建筑认证”,更以江河汇排名前列”分户式“科技系统,让节能、低碳落位建筑每处细节,每寸肌理,酝酿一座城市未来的理想。
正因如此,德信·御临云峰的每一步动作,总能成为江河汇进阶美好的期望。

展现美好,就是把对美好的想象,以可品位、可触摸的方式呈现出来。8月13日,【RIVERSIDE艺术中心】开放,宛若德信·御临云峰绿建峯境的一个缩影,叙说江河汇的健康未来,引得江河之子倾情共鉴。
德信·御临云峰【RIVERSIDE艺术中心】,盛邀多次斩获“亚太房地产设计大奖”的日清设计,通过人与建筑、光与影、智慧与科技的对话,摒弃冗余,减少琐碎,
构成富有健康、静谧关怀的艺术之境;步入其中,水浪纹艺术小品、叠水台阶、镜面水景搭配户外休憩节点渐次铺陈,展现隐逸江河汇的惬意,身与心的从容。

步入内部空间,德信·御临云峰【RIVERSIDE艺术中心】更多地是兼顾颜值和功能的双向思考。大面积玻璃落地窗搭配亮丽石材,让映入眼帘的每一幕更轻盈、大气;
地下车库电梯厅,以简奢典雅的赫本金为笔触,契合江河之子美学品位;约500㎡地下会所,臻设健身空间、蔚蓝泳池,令到访者在活力元气中感受健康美好。
一场【RIVERSIDE艺术中心】的开放盛典,让德信·御临云峰成为”绿建时代“的先锋开考者,交出先进江河汇的健康答卷;也揭幕了德信以德信·御临云峰为界,迭代杭州作品时代的臻心,与引领绿建未来的雄心。

户型图
【项目地段】
本项目距离钱江新城CBD核心区约1km
超85万方新鸿基江河汇综合体(在建)约1km
江河汇流区作为连接钱江新城核心区和钱江新城二期的重要纽带。板块内规划有80万方的钱江金融城以及15万方的渔人码头、12万方的城市公园,
以及万众瞩目的杭州排名前列地标摩天轮“杭州眼”。整个项目涵盖IFC高奢购物街区、滨水休闲区、运河景观桥、5A甲级商务区、五星级酒店等,
是多功能为一体的城市封面综合体,未来将成为杭州城市国际化标杆。杭州眼,和日月同辉、大小莲花碗也将代表回杭州形成三大闪耀的地标。德信御临云峰 售楼处电话:4008567004【售楼中心热线】 德信御临云峰 营销中心热线400-8567-004 德信御临云峰 售楼处地址400-8567-004

商业配套:
项目周边黄金2km范围内,汇集【4个4】全先进商业配套,坐享钱江新城1.0发展20年积淀成果。
4大城市地标:国际会议中心|大剧院|市民中心|城市阳台;
4大商业巨无霸:万象城|来福士|庆春商圈|火车东站商圈;
4大超五星酒店:柏悦酒店|康莱德酒店|钓鱼台|卓美亚酒店;
4大5A甲级写字楼:华润大厦|平安金融中心|来福士|德信中心。

交通配套:
地铁出行:6号线昙花庵路站(<10m),与地铁1、4、5等多条线路以及杭富线实现换乘,堪称“换乘之王”,畅达全城及萧山机场;
高铁出行:3公里直达杭州东站(亚洲较大的交通枢纽),1小时直达长三角;
自驾出行:近项目2公里接轨杭甬高速,自驾游可便捷抵达上海、宁波等地;
飞机出行:当前可通过庆春路隧道、博奥隧道转机场高速,25分钟直达机场;

医疗及教育资源:
3大先进医院:邵逸夫医院|浙一医院|浙二医院,全三甲阵容;
3大教育资源:采荷一二小学校|钱江外国语实验学校|钱江贝赛斯国际学校

德信御临云峰
德信御临云峰 售楼处电话:400-8567-004
【售楼处预约热线】(一对一热情服务)
看房请务必致电与销售确认时间,仅预约客户可享受开发商内部优惠,专属新房预约奖!
德信御临云峰售楼处电话:4008567004【售楼中心热线】德信御临云峰营销中心热线400-8567-004德信御临云峰售楼处地址400-8567-004,楼盘项目全面介绍,本电话为开发商提供线上预约售楼电话,楼盘项目全面介绍(包含楼盘简介,均价,房价,现房,期房,别墅,叠墅,大平层,价格,楼盘地址,户型图,交通规划,备案价,备案名,项目配套,样板间,开盘时间,认筹时间,楼盘详情,售楼处电话,最新消息,最新详情,周边配套,一房一价,最新进展等详情咨询)楼盘详情丨价格丨更多优惠丨机不可失丨欢迎致电丨诚邀品鉴!售楼处位置丨特价房丨工抵房丨剩余房源丨户型图丨最新消息丨免责声明:将文章内容综合来源于网络、只作分享,版权归原作者所有!!如有侵权,请联系我们,我们第一时间处理如有问题欢迎来电咨询,专业一对一热情服务,让您用专业眼光去买房。如果您想了解更多楼盘详情,欢迎提前预约拨打德信御临云峰售楼处电话400-8567-004
声明:本文由入驻焦点开放平台的作者撰写,除焦点官方账号外,观点仅代表作者本人,不代表焦点立场。
