和樾长宁(营销中心)首页网站-和樾长宁销售中心(售楼处)-和樾长宁楼盘欢迎您-地址-价格-户型-小区环境-楼盘详情-交房时间-周边配套-售楼处电话
扫描到手机,新闻随时看
扫一扫,用手机看文章
更加方便分享给朋友
和樾长宁售楼处电话:400-8567-334✔✔
上海长宁和樾长宁售楼处电话☎:400-8567-334✔✔✔
✅ 为您安排楼盘现场销售全程接待并讲解,给您更贴心的看房体验!
➤➤➤➤VIP贵宾置业〢欢迎来电咨询〢品鉴!!
和樾长宁售楼处电话:4008567334✔✔✔
最新消息,长宁上新!2号线北新泾站「和樾长宁」主推约120、143㎡3-4房,最快5月入市!长宁区内中环稀缺供应
2号线北新泾站约300米
越秀招商合作全新住宅定名
和樾长宁
最快5月入市!
主推建面约120、143㎡3-4房
效果图&户型首次曝光!
和樾长宁售楼处电话/地址☎:4008567334✔✔(开发商热线)上海和樾长宁售楼处电话☎:400_8567-334(售楼处预约热线)房价优惠折扣,户型图,平面图,样板间,高层户型,房型多样,高层洋房合院别墅,交房时间,交付标准,周边配套,学区配套,一房一价表,认筹时间,地铁口距离,区域板块!
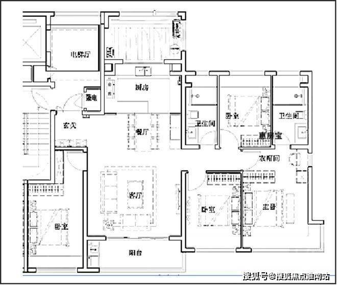
户型图如下:和樾长宁售楼处电话:400-8567-334✔✔
上海长宁和樾长宁售楼处电话☎:400-8567-334✔✔✔
(过程稿,以开发商发布为准)
约120㎡3房2厅2卫
约143㎡4房2厅2卫:和樾长宁售楼处电话:400-8567-334✔✔
上海长宁和樾长宁售楼处电话☎:400-8567-334✔✔✔
和樾长宁售楼处电话:400-8567-334✔✔
上海长宁和樾长宁售楼处电话☎:400-8567-334✔✔✔
地块近邻苏州河,距离地铁2号线北新泾站直线距离仅约300米。地块占地约1.12万方,容积率2.2,成交总价218251万元,溢价率约24.53%,楼板价88495元/㎡,装修标准不低于4000元/㎡。
和樾长宁售楼处电话:400-8567-334✔✔
上海长宁和樾长宁售楼处电话☎:400-8567-334✔✔✔
项目位于2号线北新泾站旁约300米,紧贴中环。一方面,环线产生的噪音值得注意。但这一点,三个项目都有影响。
另外一方面,北新泾周边主要有3个地铁上盖的商业体组成,分别是宜嘉坊广场、兆城馥邦汇和申亚珺悦18广场。年代比较久,能级和人气都不算太高。
和樾长宁售楼处电话:400-8567-334✔✔
上海长宁和樾长宁售楼处电话☎:400-8567-334✔✔✔
该地块并非位于长宁的传统豪宅区,但长宁的产业和商业重心正在西移!首先是产业方面,在虹桥古北之后,长宁是抓住了互联网风口的。
最出名的当然是位于娄山关路523号的金虹桥国际中心,也就是拼多多总部,是上海税收百亿楼!
另一个重点则是2号线淞虹路站附近的临空经济园区崛起。在上世纪90年代,临空园区还是典型的江南水乡景象,彼时的古北已经一片欣欣向荣,中山公园也蓄势待发。
2010年后,依托于虹桥优势,临空经济园区迎来蓬勃发展。截止最新,园区已吸引超3千家企业入驻,集聚了联合利华、德国博世等一批国内外知名企业总部,以及爱立信、史泰博、携程网等知名信息服务业企业。俨然是长宁甚至整个西上海的产业源动力之一。
和樾长宁售楼处电话:400-8567-334✔✔
上海长宁和樾长宁售楼处电话☎:400-8567-334✔✔✔
和樾长宁售楼处电话:400-8567-334✔✔
上海长宁和樾长宁售楼处电话☎:400-8567-334✔✔✔
以娄山关路和淞虹路为产业支点,一东一西,长宁西正在形成一整条高端商业办公链条。
「和樾长宁」可售商品房预计共174套,另有22套保障房。
主力户型有两个:建面约120㎡三房两厅两卫、建面约143㎡四房两厅两卫。
和樾长宁售楼处电话:400-8567-334✔✔
上海长宁和樾长宁售楼处电话☎:400-8567-334✔✔✔
项目拟建4幢可售住宅,总高12-14层,楼间距30米,每幢楼都可以拥有不错的采光和视野,部分楼栋底部架空/局部架空;小区内部有下沉式庭院,南侧沿街布置了商业配套,人行、车行出入口布局合理,但未完全实现人车分流!
目前长宁区待售项目极少,在售和待售新盘仅青溪雲邸、宁国府邸和西郊云庐。
青溪雲邸是建面约430-690㎡的别墅住宅;宁国府邸是建面约900-1600㎡的别墅住宅。
西郊云庐项目联动价11.8万/㎡,预计今年年中推出305套房源。
交通方面,距离地铁2号线北新泾站直线距离仅约300米,自驾可通过中环及北横通道通达全城。
和樾长宁售楼处电话:400-8567-334✔✔
上海长宁和樾长宁售楼处电话☎:400-8567-334✔✔✔
混乱的涂鸦打破了常规的束缚,让简约兼具了更多的力量感。
和樾长宁售楼处电话:400-8567-334✔✔
上海长宁和樾长宁售楼处电话☎:400-8567-334✔✔✔
和樾长宁售楼处电话:400-8567-334✔✔
上海长宁和樾长宁售楼处电话☎:400-8567-334✔✔✔
私密场域依旧保持静谧,黑白色基础上搭配了更多的色彩,例如深棕、浅紫等,艺术品的衬托深邃迷人,热络了家的氛围。
和樾长宁售楼处电话:400-8567-334✔✔
上海长宁和樾长宁售楼处电话☎:400-8567-334✔✔✔
和樾长宁售楼处电话:400-8567-334✔✔
上海长宁和樾长宁售楼处电话☎:400-8567-334✔✔✔
和樾长宁售楼处电话:400-8567-334✔✔
上海长宁和樾长宁售楼处电话☎:400-8567-334✔✔✔
和樾长宁售楼处电话:400-8567-334✔✔
上海长宁和樾长宁售楼处电话☎:400-8567-334✔✔✔
整个空间以静、雅、柔传达着家的精气神儿,黑白的交错,棱角的柔和,都是家的本色,都是极简的象征。
和樾长宁售楼处电话:400-8567-334✔✔
上海长宁和樾长宁售楼处电话☎:400-8567-334✔✔✔
示意图
商业方面,近距离有西郊百联,宜嘉坊广场,稍远距离有缤谷广场、巴黎春天、汇金百货、百盛优客城市广场、龙之梦和来福士两大超高能级商业。
和樾长宁售楼处电话:400-8567-334✔✔
上海长宁和樾长宁售楼处电话☎:400-8567-334✔✔✔
和樾长宁售楼处电话:400-8567-334✔✔
上海长宁和樾长宁售楼处电话☎:400-8567-334✔✔✔
医疗上,项目直线向南约600米,就有上海同仁医院,为三级乙等。附近也有一些小医院,神州医院、和睦家医院、西郊骨科医院、南山医院等。
长宁区内中环稀缺供应
2号线北新泾站约300米
越秀招商合作全新住宅定名
「和樾长宁」
主推建面约120、143㎡3-4房
效果图&户型首次曝光!
最快5月入市!
和樾长宁售楼处电话:4008567334【开发商售楼中心热线】和樾长宁营销中心热线400-8567-334和樾长宁售楼处地址400-8567-334,楼盘项目全面介绍,本电话为开发商提供线上预约售楼电话,楼盘项目全面介绍(包含楼盘简介,均价,房价,现房,期房,别墅,叠墅,大平层,价格,楼盘地址,户型图,交通规划,备案价,备案名,项目配套,样板间,开盘时间,认筹时间,楼盘详情,售楼处电话,最新消息,最新详情,周边配套,一房一价,最新进展等详情咨询)楼盘详情丨价格丨更多优惠丨机不可失丨欢迎致电丨诚邀品鉴!售楼处位置丨特价房丨工抵房丨剩余房源丨户型图丨最新消息丨免责声明:将文章内容综合来源于网络、只作分享,版权归原作者所有!!如有侵权,请联系我们,我们第一时间处理如有问题欢迎来电咨询,专业一对一热情服务,让您用专业眼光去买房。如果您想了解更多楼盘详情,欢迎提前预约拨打和樾长宁售楼处电话☎400_8567_334✔✔✔
买房注意事项
1、买房子尽量买一期开发的,一般说来价格便宜而且质量好。
2、买房前试验隔音情况,否则会很痛苦。
3、不要买二层,一般厨房下水道是二层往上一条,一层独立一条。这样二层是最容易发生堵塞的,如发生堵塞倒灌,其状惨不忍睹。
4、买房子要注意不要买临街的,噪音太大,即使是一条小路,也有发展成菜市场的潜力。
5、窗子外侧一定要是往外倾斜,否则窗子上的密封胶老化了就会水淹七军。
6、窗户的纱窗一定要买内置的,否则掉在地上还好,掉在人上就难办了。
7、窗户应是推拉式,在中间关的,密封性好。
8、注意你所买的房子的位置,小心你的楼下空地成为停车场。
9、不要买顶层,顶层容易出现漏水现象,虽然能修理但耗时耗力,修理时间极可能被无限延长不要买带厨房下水道的地下室,否则崩溃是早晚的事情。
10、卫生间的防水很重要!!!一定要鼓动你的楼上和你一起在交房时做足48小时的闭水试验,确定其防水性能,否则一旦漏水后果会非常痛苦。
11、要注意小区里的车位数量,也许近期你不买车但不带表以后不会。
12、家里的水管,暖气管道都要打压试一下,尤其是暖气。个别暖气片,会直接影响室温,如果安反了,想要改过来极其困难,全安反了还可以在外面改,但如果安错了一两片,则要砸地面。
13、如果你的房子是带单元对讲的,那别买一层,关门声能让你疯掉,报警声威力更是惊人。
14、房子里的对讲系统一定要问明性能和使用方法,并且仔细试验,否则那些宣传中优越的性能可能只是宣传而已。
15、厨房一定要有地漏,这样有个万一水管爆裂,还有个地方漏水,不至于让家里成了太平洋。
16、千万不要相信那些售楼小姐说的什么外国进口门窗,越是如此,门窗配件越难买,后期物业根本弄不了。
17、家里的入户门带猫眼的是防盗门,不带猫眼的是防火门,如果发生火灾猫眼会爆炸,但如果有陌生人,猫眼看得见。看你需要。
18、装修时不要动卫生间的地砖,不要自己重新做防水—除非你有钱没地方花,要知道开发商并不是心甘情愿的为你保修防水的,他们正愁找不到理由呢。
声明:本文由入驻焦点开放平台的作者撰写,除焦点官方账号外,观点仅代表作者本人,不代表焦点立场。
