绿城兴贤澜颂售楼处电话☎:400-998-9694绿城兴贤澜颂售楼处电话☎:400-998-9694绿城兴贤澜颂推出低密高端墅居,1.2容积率,7栋洋房+32栋联排别墅,主打东方文化,预计2025年落地。
绿城兴贤澜颂
售楼处电话☎:400-998-9694
如有问题欢迎来电咨询,来电即可享受买房优惠!
预约来电尊享购房优惠,可预约案场内部销售人员,专业一对一热情服务,让您用专业眼光去买房。
绿城兴贤澜颂售楼处电话☎:400-998-9694
绿城兴贤澜颂售楼处电话☎:400-998-9694
刚刚!浒墅关炸裂上新!
板块低密墅境大作是绿城产品!
案名已定:兴贤澜颂
运河文脉上的东方墅居序章
“绿城系高端别墅”,经典新中式风格
打造7栋奢阔洋房+32栋联排别墅
1.2超低容积率
颠覆浒关人居想象
绿城兴贤澜颂售楼处电话☎:400-998-9694

绿城出品!7栋6-11F洋房+32栋3F联排
浒关首个低密作品
绿城首入苏州浒墅关,即将带来板块全新高端低密作品!
苏地2024-WG-Z34号地块,是2024年12月7日,由永昌置业总价7.8亿竞得,该地块规划低密住宅用地,容积率仅1.2,引发市场高度关注。
后由绿城成功中标代建,和浒墅关投控合作,打造新区高端别墅系列!
如今案名已经确定:兴贤澜颂!
绿城兴贤澜颂售楼处电话☎:400-998-9694

绿城兴贤澜颂售楼处电话☎:400-998-9694
绿城代建近期在苏州项目众多,从园区到吴中,从相城到新区全面开花,品质出众的绿城,未来会迎来持续大爆发!
溯流运河千年文明,承袭绿城造墅匠心基因。2025,绿城首献浒墅关,以「颂承东方,风雅栖贤」为韵,尊重在地文化肌理,筑就低密东方墅境,为板块高端人居立序全新里程碑。
主城罕见低密墅区
🔥 1.2容积率+40%建筑密度
亮点如下:
✅ 7栋6-11层洋房:全装修交付,瞰景视野无敌!
✅ 32栋3层联排别墅:板块史上首现!壕级配置!
✅ 私密庭院+下沉式会所:圈层生活一步到位!

绿城兴贤澜颂售楼处电话☎:400-998-9694
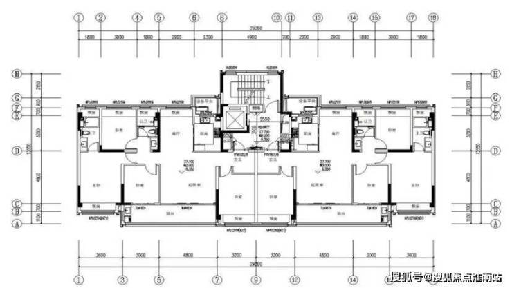
根据规划,项目拟建7栋6-11F洋房+32栋3F联排产品,别墅产品占比很大。

绿城兴贤澜颂售楼处电话☎:400-998-9694
绿城管理正式官宣中标Z34地块代建,引发市场轰动!
此次浒墅关Z34地块,绿城或将沿袭 经典新中式风格,打造 “绿城系高端别墅”,填补北新区高端改善市场空白!
绿城兴贤澜颂售楼处电话☎:400-998-9694
业内预测:
面积段:可能控制在地上200-300㎡(联排)主打高阶改善;
产品亮点:绿城标志性的园林景观、精工立面、高得房率将成为核心竞争力。
从总图上看,项目未来社区主入口以及物业配套用房在中虹路旁上,物业配套用房包含下沉式庭院,物业商业用房等。

绿城兴贤澜颂售楼处电话☎:400-998-9694
地块要求,6层以上住宅整栋为全装修成品住宅,住宅装修成本不低于1500元/㎡;6 层及6层以下的,可选择实施全装修,住宅装修成本不低于1500元/㎡。

绿城兴贤澜颂售楼处电话☎:400-998-9694

绿城兴贤澜颂售楼处电话☎:400-998-9694
核心联排与洋房户型曝光
据悉,项目打造联排和洋房两种产品,是纯粹的低密社区。
联排产品,可能控制在地上200-300㎡(联排)主打高阶改善。
具体的户型图如下,地上三层,【联排别墅户型】客厅挑空,大面宽,舒适度和排面气场拉满了!

绿城兴贤澜颂售楼处电话☎:400-998-9694
洋房户型,整体是4房2厅2卫,1梯两户高得房率,南向四面宽,主卧大套房,双联阳台,经典的改善户型。


区域核心地段,配套成熟
绿城兴贤澜颂售楼处电话☎:400-998-9694
绿城浒关永昌置业Z34号项目,即苏地2024-WG-Z34号地块。是去年12月7日,由永昌置业总价7.8亿竞得,成交楼面价11500元/㎡。
项目位于高新区经开区(镇)鸿禄路东、中虹路北,浒墅关主核位置,周边配套非常丰富,地块就在虹溪璟庭的西北侧,出行、购物都非常便利。

绿城兴贤澜颂售楼处电话☎:400-998-9694
项目紧邻中环西线北延主干道,1.5公里距离可达地铁苏州新区火车站,可同时搭乘3、6号线。
阳山实验小学、阳山初中、文昌实验幼儿园等优质教育机构汇聚于此,提供全方位的一站式教育服务。
医疗资源同样丰富,苏州大学附属第二医院浒关园区近在咫尺。
东侧紧邻汇金广场、大润发、兴贤商业广场等繁华商圈,仅需5分钟车程即可抵达宜家、开市客、迪卡侬、永旺梦乐城等核心商业地标,尽享便捷舒适生活。
作为浒关多年以来的首个别墅+洋房作品,项目地价11500元/㎡,不知后期价格会是多少?
1、什么是房产:房屋产权的简称。
2、什么是地产:是指土地财产。
3、什么是房地产:是房产和地产的总称。
4、什么是房地产业:从事房地产开发、建设、经营、管理以及维修、装饰和服务的综合性产业。
5、什么是房地产开发:是指在依法取得土地使用权的土地上按照使用性质的要求进行基础设施、房屋建筑的活动。
6、什么是土地开发:是将“生地”开发成可供使用的土地。
7、集体土地是指:农村集体所有的土地。
8、征用土地是指:国家为了公共利益的需要,可依照法律规定对集体所有的土地实行征用。
9、什么是土地所有权:是指国家或集体经济组织对国家土地和集体土地依法享有的占有、使用、收益和处分的权能。
10、什么是土地使用权的出让:指国家以协议、招标、拍卖的方式将土地所有权在一定年限内出让给土地使用者,由使用者向国家支付土地使用权出让金的行为。
11、什么是土地使用权转让:是指土地使用者通过出售、交换、赠与和继承的方式将土地使用权再转移的行为。
12、什么是地籍、产籍:是对在房地产调查登记过程产生的各种图表、证件等登记资料,经过整理、加工、分类而形成的图、档、卡、册等资料的总称。
13、生地是指:不具备开发条件的土地。
14、熟地是指:已完成三通一平(水、电、道路,土地平整)或七通一平,具备开发条件的土地。
15、什么是宗地:是地籍的最小单元,是指以权属界线组成的封闭地块。
16、什么是宗地图:是土地使用合同书附图及房地产登记卡附图。它反映一宗地的基本情况。包括:宗地权属界线、界址点位置、宗地内建筑位置与性质、与相邻宗地的关系等。
17、证书附图是指:房地产后面的附图,主要反映房地产情况及房地产所在宗地情况。
18、什么是物业管理:泛指一切有关房地产开发、经营、商品房销售、租赁及售后服务。
19、什么是业主委员会:是在物业管理区域内代表全体业主实施自治管理的组织。是代表
物业全体业主合法权益的社会团体,其合法权益受国家法律保护。
20、业主委员会是如何产生的:由业主大会从全体业主中选举产生。
21、住房补贴是指:国家为职工解决住房问题而给予的补贴资助。
22、房屋的所有权是指:对房屋全面支配的权利。
23、房地产交易的两种主要形式是:地产交易形式与房产交易形式。
24、建筑物是指:人工建造而成的房屋和构筑物。
25、构筑物是指:建筑物中除房屋以外的东西。
26、什么是期房:是指消费者在购买时不具备即买即可入住的商品房。
27、期房是如何介定的:房地产开发商拿到商品房预售许可证开始至取得房地产权证大产证或竣工验收合格可以直接入住使用)为止。
28、什么是预售合同:消费者在购买期房时签定的销售合同。
29、什么是现房:是指消费者在购买时具备即买即可入住的商品房,即开发商已办妥所售的商品房的大产证(或已经竣工验收合格并交付使用)的商品房。
30、什么是毛坯房:房地产商交付屋内只有门框没有门,墙面地面仅做基础处理而未做表面处理的房叫毛坯房。
31、什么是成品房:是指对墙面、天花、门套、地板实行装修。
32、什么是商品房:是指以完全的市场价格向购房者出售的房子。
33、商品房预售是指:在房地产尚未建成以前,房地产的经销商在取得受买人一定数量的定金后,将期房出售给受买人。
34、商品房现售是指:指房地产开发企业将竣工验收合格的商品房出售给买受人。
35、二手房通常指的是:再次进行买卖交易的住房。
36、经济适用房指的是:面向中低收入家庭的普通住宅。
37、例出3种以上的安居房的种类:准成本房、全成本房、全成本微利房和社会微利房。
38、低层住宅的介定:1-3层的住宅。
39、多层住宅的介定:4-6层的住宅。
40、小高层住宅的介定:7-11层的住宅。
41、中高层住宅的介定:12-16层的住宅。
42、高层住宅的介定:16层以上为高层住宅。
43、超高层建筑的介定:总高度超过100米的建筑。
44、商品房的结构是指:房屋主体所使用的施工工艺和用材。
45、钢结构的意思是:承重的主要结构是用钢材料建造的,包括悬索结构。
46、钢混结构的意思是:承重的主要结构是用钢和混凝上建造的。
47、砖木结构的意思是:承重的主要结构是用砖、木材建造的。
48、砖混结构的意思是:主要是砖墙承重,部分是钢盘混凝土承重的结构。
49、框架结构的意思是:以钢筋混凝土浇捣成承重梁柱,再用预制的隔墙分户的结构。
50、开间指的是:一间房屋内一面墙的定位轴线到另一面墙的定位轴线之间的实际距离。
绿城兴贤澜颂
售楼处电话☎:400-998-9694
如有问题欢迎来电咨询,来电即可享受买房优惠!
预约来电尊享购房优惠,可预约案场内部销售人员,专业一对一热情服务,让您用专业眼光去买房。
绿城兴贤澜颂售楼处电话☎:400-998-9694
楼盘项目全面介绍,本电话为开发商提供线上预约售楼电话,楼盘项目全面介绍(包含楼盘简介,均价,房价,现房,期房,别墅,叠墅,大平层,价格,楼盘地址,户型图,交通规划,备案价,备案名,项目配套,样板间,开盘时间,认筹时间,楼盘详情,售楼处电话,最新消息,最新详情,周边配套,一房一价,最新进展等详情咨询)楼盘详情丨价格丨更多优惠丨机不可失丨欢迎致电丨诚邀品鉴!售楼处位置丨特价房丨工抵房丨剩余房源丨户型图丨最新消息丨免责声明:将文章内容综合来源于网络、只作分享,版权归原作者所有!!如有侵权,请联系我们,我们第一时间处理如有问题欢迎来电咨询,专业一对一热情服务,让您用专业眼光去买房。如果您想了解更多楼盘详情,欢迎提前预约拨打