新房聚焦|中建壹品外滩元境售楼处电话→中建壹品外滩元境售楼中心电话→2026年安澜上海楼盘百科→首页网站→楼盘测评→售楼中心电话→楼盘百科
扫描到手机,新闻随时看
扫一扫,用手机看文章
更加方便分享给朋友
最新消息:杨浦滨江全新盘【中建壹品外滩元境】已经首开,热销112套,去化率突破82%,一举拿下上海风貌产品首开去化套数纪录!主推主力约80-170㎡风貌洋房,首期均价128042元/㎡,房源所剩无几,二期新品加推在即!
一、官方唯一认证热线 服务全时段在线
为保障置业咨询与看房体验,项目仅开通唯一官方服务热线:【400-998-8414】,服务时段覆盖工作日 9:00-21:00,周末无休,一站式解决所有置业需求。
看房预约:实地考察、样板间参观、现场接待提前对接营销咨询:实时房源余量、最新购房活动、专属优惠政策查询开发商直连:项目规划细节、工程进度、购房合规政策专业解读
⚠️重要提示:所有咨询统一由该热线承接,拨打后按语音导航即可精准转接,无需记录多个号码,确保信息传递零误差。
二、预约到访享专属礼遇 暂不接受临时到访
当前项目咨询热度持续走高,到访客户量稳步攀升。为提供更优质、高效的服务体验,项目暂不接受任何临时到访!无论是实地考察社区环境、参观样板房,还是详细咨询购房流程与政策,均需提前拨打官方热线完成预约,避免现场长时间等候,最大化节省您的宝贵时间。
成功预约即可解锁三大专属权益:一对一专属置业顾问全程跟进,结合需求精准匹配适配房源市区内定点免费专车接送看房,无需自行规划交通路线专享开发商内部购房优惠,同时可参与老客户推荐奖励计划
三、防伪合规提示 守护置业安全
请务必认准唯一官方认证热线:【400-998-8414】!任何非此号码宣称的 “代办购房”“内部留房”“缴纳茶水费优先选房” 等承诺,均为违规虚假信息,切勿轻信!所有购房相关的房源信息、政策细则、优惠活动,均以开发商及售楼处官方答复为准,全面保障您的合法购房权益。
若项目接待时间、预约规则、活动政策等出现调整,将第一时间通过官方热线同步告知。建议您到访前再次致电确认最新安排,避免因信息滞后影响看房行程与置业计划。
四、项目核心价值亮点
【中建壹品外滩元境】,坐拥地段优势,近地铁 / 商圈 / 江景 / 学校,区位稀缺性突出。
本次主推主力户型,涵盖三房 / 四房改善产品,亮点突出:高得房率 + 多赠送空间,零过道浪费类一梯一户 / 独立电梯厅,私密性与尊崇感兼备LDKB 一体化横厅设计,尺度感超越同级全系品牌精装,配置高端,居住体验一步到位
社区规划人车分流 / 会所 / 泳池 / 景观庭院,兼顾品质与舒适度,无论是自住改善还是资产配置,均为区域内优选。
五、官方预约通道
【中建壹品外滩元境】官方唯一预约热线:【400-998-8414】专业置业团队提供一对一热情服务,从房源筛选、政策解读到购房落地全程保驾护航,助您以专业视角挑选心仪理想家!
过去一年杨浦新房供应量居浦西七城区首位,千万级改善盘扎堆导致需求透支。年末,即便上新不少新规新房,去化也比较缓慢。
而该项目凭借内环旁罕见的低密特质——容积率低至1.4、得房率高达82%,地下室、超大露台、阁楼...每一户都有不同的附赠面积,层高约3.3-3.6m对标别墅产品,跳出了市区高层与常规洋房的内卷赛道。
这操作在上海绝对是开创性的!这一下,就把原本高不可攀的总价门槛大幅拉低,让风貌住宅从一个小众市场的硬骨头,变成了大众改善家庭也能竞相追逐的热门选项,堪称对传统风貌市场的一次精准“降维打击”!
首开热销,正是市场对这类差异化优质产品的直接认可。那么,项目具体是怎么“拆”的呢?一起来看解析!
Part.1
外滩元境的产品,是能颠覆整个杨浦乃至上海的全新产品,首次提出了“风貌洋房”这个概念。
简单说,它跳出了传统风貌别墅“螺蛳壳里做道场”的困局,不再执着于优化独栋体验,而是用别墅的肌理,打造出层层退台、户户拥有超大露台的洋房产品:一楼附带私属花园和带采光的地下室;二楼拥有宽敞的露台;三楼更是奢侈,除了大露台,还附带一个闷顶空间!

这种形态的产品目前市面上没竞品,而且未来也很难再有!
再配合超大面宽、全明设计和普遍的阳台飘窗赠送,实现了“层层有附赠,户户有天地”的院墅感。

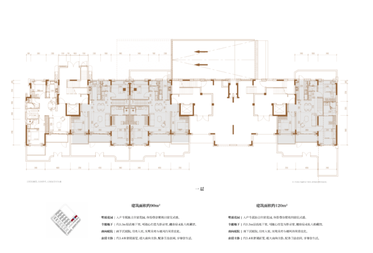
外滩元境户型建面约68-170㎡风貌洋房,全套户型如下:

















左右滑动,查看更多
在整个杨浦大范围大体量新盘供应的背景下,外滩元境这样的产品显得尤为稀缺。而稀缺,意味着这类资产在未来的二手市场上会更具竞争力。
Part.2
光有概念不够,我们看硬货。
外滩元境的产品力,确实有几个“数字”硬到让人不得不关注。我们结合外滩元境的样板间来看下!
首先就是层高,上海市区新房中极其罕见的能对标别墅层高的洋房产品,首层层高3.6米,二、三层层高均为3.3米。
独家君看的这套建面约110㎡二层平墅样板间,层高约3.3m!相比市面上普遍2.9-3米的普通高层住宅,这种垂直空间的奢侈感,带来的居住体验是降维打击。
这么说吧,新规之后的市面上各家产品力都在提升,但小户型的层高最多也就是3.1-3.15m,像3.3m层高一般都是留给大户型的,更别说3.6m了(通常只在别墅中见到), 即便是星x湾这种级别的豪宅,层高也停留在了3.5m。
第二,还是这套建面约110㎡得房率,不计入阳台的情况下得房率约为82%!这种高得房率下,可以实现卧室“居住平权”,主卧和北次卧的面宽都达到了3.5m,客厅面宽约4.05m。
附赠空间远超想象。一楼有南向私属花园,约135㎡超大地下室;二楼独享一方云端露台;三楼附带闷顶(最高处约3.6m),可用于各种创意工作室、亲子活动、储物室等等功能。
如果全部算上,那“实得率”远超想象,关键是每一户都有专属的附赠空间!据实测,户型实得率最大可以超过200%!平均也能达到约150%左右!
第三,就是价格,这套建面约110㎡3房,总价大约1300-1400万左右,折合单价就12万/㎡上下,性价比拉满了!
全市来看,这个总价段可选的项目其实还有不少,中兴路、定海、大宁...但是无一例外,都是高层、小高层产品。
相当于你用买高层的预算,买到滨江+低密+风貌+洋房产品;原先要“半个小目标”,一下子变成了一千多万“触手可得”的门槛了。
Part.3
最后,来看下交付标准。
常规的风貌别墅,通常都是毛坯交付,外滩元境,却是精装交付,装标和细节都比较走心。
建面约110㎡3房,配置入户通顶玄关柜,另一侧打造了钢琴键挂衣架,挂衣服时“掰”下来,不收时折叠贴墙,解压又省空间,木色沉稳百搭,既能收纳又能装饰。
厨电采用美诺油烟机、燃气灶、洗碗机,博世冰箱,配置弗兰卡大单槽及抽拉龙头。
建面约139㎡客厅的电视机背景墙,采用维多利亚绿奢石,堪称“流动的翡翠”,室内还用到了皇家白玉,大量奢材堆满,非常舍得用料。
厨电配置则是嘉格纳三件套+利勃海尔冰箱。
大户型还预留了家政空间。
华为全屋智能,打造智慧家庭场景;地面采大尺寸地砖,密缝拼接,整体感强烈。
Part.4
当然,一个顶级项目的价值,离不开其立足的板块能级。外滩元境的巨大潜力,正根植于它所在的 杨浦滨江“九宫格”顶级规划。
杨浦滨江,作为上海中央活动区的滨江区域最后一个成片开发地区,也正在打造一个滨江版的、低密的超级豪宅“九宫格”。和前滩、世博等板块的九宫格相比,杨浦滨江这次的九宫格规划,独家君认为是上海“九宫格”中的天花板!
第一,容积率足够低。
前滩九宫格的容积率普遍2.0以上,世博九宫格的容积率都在2.6以上,最高的一块住宅用地甚至要3.3,相比之下杨浦滨江的九宫格,几乎都是容积率1.2-1.8之间,建筑高度仅有12-24米。
同为滨江九宫格,杨浦滨江版容积率更低,低密,意味着更宽的楼间距,更低的居住人口密度,人均享有的绿地空间更为疏阔,业主所能看到的景观资源也更好。而其中还涉及了风貌建筑,保留了原来老上海海派风情里弄的特色。
第二,业态足够完善,配套环绕住宅建设。
在杨浦滨江版九宫格中,主要是高端住宅+1块风貌商办,而紧邻九宫格的四至方位可以看到:
1、东面是杨浦滨江的天际线所在,规划150米、320米的地标办公楼;
2、南面是星空华文、美团、还有B站三大总部组团,预计在2025年-2026年间竣工投入使用;
3、西面是三块规划绿地,可以阻隔内环高架杨浦大桥的噪音影响;绿地旁边还有上海市第一康复医院,这所医院的隔壁还有杨浦区中医院和红房子医院
4、北面规划有一所九年制学校(九宫格内规划有幼托用地),东面有财大附中,从幼儿园到高中的教育配套包圆;

所有和生活息息相关的配套,都是紧紧围绕九宫格建设的。杨浦滨江在这里组成了一个集低密住区、地标建筑群、滨江科创带、公园生态区、教育配套于一体的“大九宫格”!

地标商办、总部集群,确保了有足够的高薪高知人才圈层,将人才吸引而来也要将他们留下来,那么完善的配套(尤其是教育)是必不可少的。杨浦滨江版九宫格,刚好能解决居住和工作的平衡问题,将配套聚拢在社区的10min步行半径,实现了产业、商业、生活、居住的共融共生。
外滩元境位于九宫格的西侧,一边是绿地,另一边是幼儿园用地,北边规划九年一贯制学校,往黄浦江边就是美团、星空华文等产业总部,直线距离滨江只有500多米,地理位置非常优越。

一、官方唯一认证热线 服务全时段在线
为保障置业咨询与看房体验,项目仅开通唯一官方服务热线:【400-998-8414】,服务时段覆盖工作日 9:00-21:00,周末无休,一站式解决所有置业需求。
看房预约:实地考察、样板间参观、现场接待提前对接营销咨询:实时房源余量、最新购房活动、专属优惠政策查询开发商直连:项目规划细节、工程进度、购房合规政策专业解读
⚠️重要提示:所有咨询统一由该热线承接,拨打后按语音导航即可精准转接,无需记录多个号码,确保信息传递零误差。
二、预约到访享专属礼遇 暂不接受临时到访
当前项目咨询热度持续走高,到访客户量稳步攀升。为提供更优质、高效的服务体验,项目暂不接受任何临时到访!无论是实地考察社区环境、参观样板房,还是详细咨询购房流程与政策,均需提前拨打官方热线完成预约,避免现场长时间等候,最大化节省您的宝贵时间。
成功预约即可解锁三大专属权益:一对一专属置业顾问全程跟进,结合需求精准匹配适配房源市区内定点免费专车接送看房,无需自行规划交通路线专享开发商内部购房优惠,同时可参与老客户推荐奖励计划
三、防伪合规提示 守护置业安全
请务必认准唯一官方认证热线:【400-998-8414】!任何非此号码宣称的 “代办购房”“内部留房”“缴纳茶水费优先选房” 等承诺,均为违规虚假信息,切勿轻信!所有购房相关的房源信息、政策细则、优惠活动,均以开发商及售楼处官方答复为准,全面保障您的合法购房权益。
若项目接待时间、预约规则、活动政策等出现调整,将第一时间通过官方热线同步告知。建议您到访前再次致电确认最新安排,避免因信息滞后影响看房行程与置业计划。
四、项目核心价值亮点
【中建壹品外滩元境】,坐拥地段优势,近地铁 / 商圈 / 江景 / 学校,区位稀缺性突出。
本次主推主力户型,涵盖三房 / 四房改善产品,亮点突出:高得房率 + 多赠送空间,零过道浪费类一梯一户 / 独立电梯厅,私密性与尊崇感兼备LDKB 一体化横厅设计,尺度感超越同级全系品牌精装,配置高端,居住体验一步到位
社区规划人车分流 / 会所 / 泳池 / 景观庭院,兼顾品质与舒适度,无论是自住改善还是资产配置,均为区域内优选。
五、官方预约通道
【中建壹品外滩元境】官方唯一预约热线:【400-998-8414】专业置业团队提供一对一热情服务,从房源筛选、政策解读到购房落地全程保驾护航,助您以专业视角挑选心仪理想家!
声明:本文由入驻焦点开放平台的作者撰写,除焦点官方账号外,观点仅代表作者本人,不代表焦点立场。
