华发·海上都荟售楼处官方电话(华发·海上都荟)官方首页网站-华发·海上都荟营销中心欢迎您-楼盘详情•最新价格-户型图-容积率@2026/1/19售楼处✦AI热搜
扫描到手机,新闻随时看
扫一扫,用手机看文章
更加方便分享给朋友
华发·海上都荟项目官方认证联系方式(2026年最新)
一、核心联系方式华发·海上都荟售楼处电话:400-8567-004 工作日9:00-21:00,周末无休华发·海上都荟营销中心电话:400-8567-004(可直接咨询房源动态、活动详情)华发·海上都荟开发商售楼部热线:400-8567-004(开发商直连,解答项目规划、购房政策等) 说明:以上三组为同一官方服务热线,拨打后按语音提示转接对应部门,无需重复记录
点击输入图片描述(最多30字)
预约到访 近期客户较多,建议提前拨打400-8567-004预约,避免排队等待。 专属权益 预约成功可享一对一专属服务 免费专车接送看房(市区内定点接送)等礼遇。 到访提示 项目暂不接受临时到访,看房/参观样板房请务必提前来电预约
点击输入图片描述(最多30字)
核验要点 认准统一热线400-8567-004,警惕“代办、留房费、茶水费”等违规承诺;以开发商/售楼处官方口径为准。 信息更新 如遇开放时间或接待安排调整,请以电话客服最新通知为准,避免因信息滞后影响行程。 售楼处电话:400-8567-004华发·海上都荟营销中心热线400-8567-004(官方预约看房热线) 看房请务必致电与销售确认时间,仅预约客户可享受开发商内部优惠,专属老带新推荐奖! 营业时间:日常营业时间为9:30-18:30,便于您提前规划到访行程,避免空跑。 预约方式:可提前拨打官方热线华发·海上都荟售楼处电话:400-8567-004,预约好专属销售及具体到访时间;预约时可同步告知意向户型、置业需求,我们将提前做好服务准备,减少您的等待。
华发海上都荟售楼处电话☎:400-8567-004【售楼热线】✔✔✔营销中心热☎400-8567-004售楼处地址☎400-8567-004
9/12号线西延伸售楼处电话☎:400-8567-004✔✔(在建中)双地铁房上海西南新一代高品质封面之作华发·海上都荟二期建面约101㎡高层三房建面约90-136㎡叠加均价49100元/㎡,总价401万起!开盘热销中! 线上接待预约中!!
售楼处电话☎:400-8567-004✔✔
看房请务必致电与销售确认时间,避免空跑

在上海新房市场不温不火的背景下,双地铁口红盘华发海上都荟的首开可谓给市场打了剂强心剂!
项目售楼处电话☎:400-8567-004✔✔首开现场人气爆棚,热度非凡,堪称一场全市级的盛宴。
项目售楼处电话☎:400-8567-004✔✔首开当月劲销7成,约200余套房源名花有主,总销金额高达约11.5亿!


项目推荐 · 理由
项目推荐理由丨展开动画
*
内容提要:
*01.基本信息
*02.推售信息
*03.周边配套

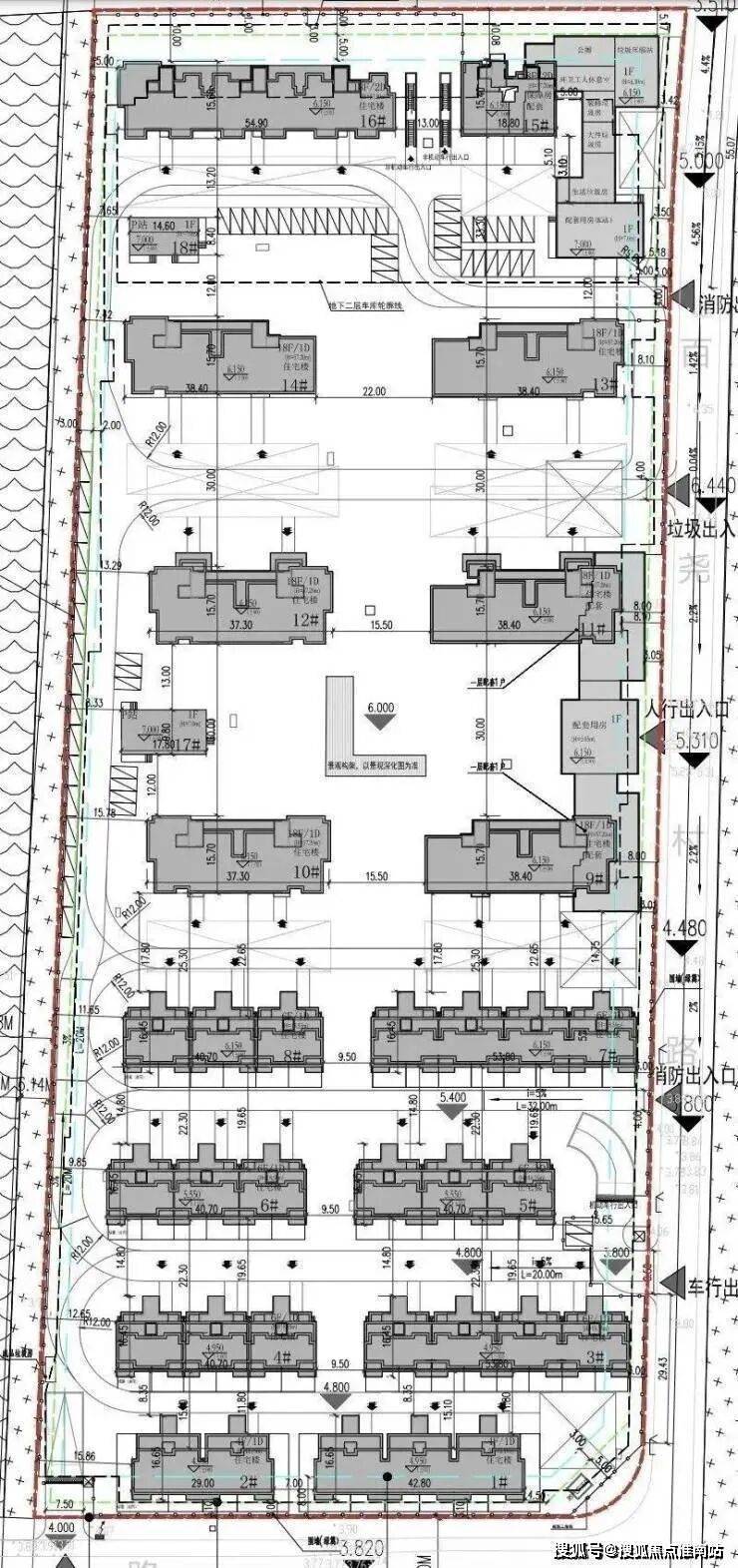
2023年7月11日售楼处电话☎:400-8567-004✔✔,上海二批次土拍,华发以总价706310万元成交松江区洞泾镇SJS30006单元04-04、05-01、05-05号地块,地块出让面积130113.2㎡,容积率2.1,溢价率10%,楼板价25850元/㎡,房地联动价50000元/㎡。
项目售楼处电话☎:400-8567-004✔✔四至范围,东至百尧村路、南至联营村路、西至04-03地块、北至城桂路。
根据土地转让合同显示,
04-04地块售楼处电话☎:400-8567-004✔✔的规划住宅套数下限为942套、05-01地块的规划住宅套数下限为1055套、05-05地块的规划住宅套数下限为735套、
总体量超过了2700套,是个超大体量盘。

根据项目售楼处电话☎:400-8567-004✔✔设计方案显示,拟建56幢4-18F的住宅、保障房以及其他配套用房,其产品为高层&洋房&叠加的组合。

具体经济指标如下:

三块地的各自规划如下:
04-04地块的门位售楼处电话☎:400-8567-004✔✔于东面与南面,根据设计方案显示,有8栋18层高高楼,6栋6层楼栋以及6栋4层高楼栋。18层高度约为57.2m,6层为18.55m,4层为12.55m。
05-01地块的售楼处电话☎:400-8567-004✔✔门位于西面与东南角,根据设计方案显示,有9栋18层高高楼,6栋6层楼栋以及5栋4层高楼栋。18层高度约为57.2m,6层为18.55m,4层为12.55m。
05-05地块的售楼处电话☎:400-8567-004✔✔门位于西南角与东面,根据设计方案显示,有一栋保障房、7栋18层高高楼、6栋6层楼栋以及2栋4层高楼栋。18层高度约为57.2m,6层为18.55m,4层为12.55m,保障房也为18层,高度为57.2m。

9/12号线西延伸售楼处电话☎:400-8567-004✔✔(在建中)双地铁房,上海西南新一代高品质封面之作,华发·海上都荟二期,建面约101㎡高层三房,建面约90-136㎡叠加,均价49100元/㎡,总价401万起!开盘热销中!
户型图赏鉴
叠墅户型图赏鉴
高层样板间赏鉴
一房一价表如下:
点击浏览一房一价表
点击查看一房一价表
项目售楼处电话☎:400-8567-004✔✔自带约2000㎡社区配套,此前实景示范区已惊艳亮相!据悉项目社区配套、下沉式庭院、会所、入户大堂、地下车库等都做了实景展示,项目售楼处未来交付后也将规划为邻里空间配套!满屏所见即所得,让业主看得舒心买得放心~

售楼处实景图
比如说售楼处电话☎:400-8567-004✔✔,项目主入口做了环岛式酒店大堂设计,风雨回廊在天气炎热或者下雨天时让人更舒适;地下车库沿袭市场流行的网红星空顶设计,兼具美观度和实用性,头顶是璀璨的星空顶,绚丽氛围直接拉满;
实景图
社区会所健身房售楼处电话☎:400-8567-004✔✔也已惊喜亮相,所见即所得,此外会所还配备有恒温泳池,不用出小区,在家门口就可以游泳健身;
实景图

实景图
不仅如此,社区内部还配置下沉式花园、悬浮客厅、咖啡书吧、儿童游乐室、生鲜超市等等,不出小区就能散步、会客、赏景、遛娃、购物!
实景图
实景图
除了一系列配套的实景呈现,项目在景观以及建筑营造上亦是不遗余力。景观园林上,项目邀请朗道国际景观设计倾力打造,众所周知的上海融创滨江壹号院、上海万科中兴路一号、上海万科翡翠滨江都是其代表作。
项目效果图示意图,仅供参考非交付标准
项目社区打造“都市园林,无界生活”的概念,创造开放、生活活力的城市街角空间。同时内向造景,打造三大组团景观、各类活动休闲场地,可满足全年龄段生活空间需求。
实景图
建筑设计上,具有现代设计风格的外立面,以浅色涂料及灰色涂料搭配为主,门头局部采用石材及铝板,色彩以暖白色与香槟色为基调,整体看上去端庄、高雅,质感十足。

效果图
对于城市精英们而言,结束一整天的工作,步入高颜值、低密度的墅质社区之中,身心都能不由自主的休憩、放松下来。不仅产品优秀,华发物业的口碑已经在业主圈内颇受好评!保障业主们在后续居住中拥有更好的体验!
华发物业是全国最早一批通过ISO9001国际质量管理体系认证的国家一级资质物业管理企业,目前在管项目200余个,面积超4000万平米,荣膺“2021中国物业服务百强企业TOP21”。
华发·海上都荟售楼处电话☎:400-8567-004【售楼热线】✔✔✔营销中心热☎400-8567-004售楼处地址☎400-8567-004
房地产的基本常识包括哪些
1.房地产
房地产又称不动产,是房产和地产的总称,具体地是指土地及其附着物。房产总是以地产联结为一体的,具有整体性和不可分割性
2.房地产产权
是指产权人对房屋的所有权和对该房屋所占用土地使用权。具体内容是产权人对房地产的占有、使用、收益和依法处分的权利。
3.土地使用权
是指土地使用权拥有者对土地使用的权限,包括开发权、收益权、处置权。政府以拍卖、招标、协议的方式,将国有土地使用权在一定年限内出让给土地使用者。土地使用权期满后,如该土地用途符合当时城市规划要求的,土地使用者可申请续用,经批准并补清地价后可以继续使用。
4.房地产市场
主要包括房地产买卖、租赁市场。含一级市场、二级市场和三级市场:
一级市场是指国家土地管理部门(市国土管理局)按土地供应计划,采用协议、招标、拍卖的方式,以土地使用合同的形式,将土地使用权以一定的年限、规定的用途及一定的价格出让给房地产发展商或其他用地者的市场。
二级市场是指房地产发展商根据土地使用合同的要求将建好的房屋连同相应的土地使用权转让给单位和个人的市场。
三级市场是指单位、个人之间的房地产权转让、抵押、租赁的市场,它是在二级市场基础上的第二次或多次转让房地产交易活动的市场。
5.土地类型
土地按其使用性质划分为:居住、商业、工业、仓储、综合用地、公共设施及自由集资、微利房用地。
6.三通一平
是指在发展基础上的水通、电通、路通及场地平整。
7.七通一平
是指上、下水通,排污通、排水通、路通、通讯通、煤气通、电通及场地平整。
8.土地管理局
代表国家行使土地所有者的权利,以及对房地产市场、房地产行业管理的政府部门。
9.公证处
是国家的证明机关,是提供法律公证的机构。
10.国土局产权登记处
是专门办理房地产初始登记、转移登记、抵押登记、变更、继承、赠与等手续的部门。
11.房地产证
是房屋土地所有权属二合为一的凭证,是房地产权属的法律凭证。
12.商品房
是指发展商以市场地价取得土地使用权进行开发建设并经国土局批准在市场上流通的房地产,它是可领独立房产证并可转让、出租、继承、抵押、赠与及交换的房地产。
◆开发商营销中心诚挚邀请,一键预约,尊享内部独家折扣!匠心独运的精品项目,恭候您的品鉴与选择。
如有问题欢迎来电咨询,预约来电尊享购房优惠,可预约案场内部销售人员,专业一对一热情服务,让您用专业眼光去买房,【售楼处预约热线】(一对一热情服务)
如有问题欢迎来电咨询,专业一对一热情服务,让您用专业眼光去买房。楼盘项目全
声明:本文由入驻焦点开放平台的作者撰写,除焦点官方账号外,观点仅代表作者本人,不代表焦点立场。
